Размещено на портале Архи.ру (www.archi.ru)

11.07.2018

Типичная аномалия

Елена Петухова
Объект:
Административно-деловое здание в Мясницком проезде
Адрес:
Россия, Москва. Мясницкий проезд, вл. 3/26, стр.2
Архитектор:
Андрей Гнездилов
Александр Скокан
Мастерская:
АБ «Остоженка»
Авторский коллектив:
А.А. Скокан,А.Л. Гнездилов, Е.Н. Копытова, Д.Н. Ступина, А.М. Таирова

Оригинальный фасад из стеклянных ламелей принес проекту делового центра на Садовом кольце от бюро «Остоженка» заслуженную победу на конкурсе ArchGlass 2018.

Административно-деловое здание в Мясницком проезде. Фасад по Садово-Спасской улице. Ночной вид
Административно-деловое здание в Мясницком проезде. Фасад по Садово-Спасской улице. Ночной вид
© АБ Остоженка

Архитектурный парад-алле
Проектировать здание на Садовом кольце – одной из самых статусных магистралей центра Москвы, особая честь и ответственность. Едва ли не каждое второе здание здесь – памятник архитектуры или достопримечательность. К усадебным домам, доходным домам рубежа XIX-XX веков, харизматичным и брутальным зданиям расцвета конструктивизма и ветшающим на глазах «коробкам» из стали и стекла советского периода наше время добавляет новые экспонаты, которые отличаются не столько архитектурными достоинствами, сколько амбициозностью, привлекая к себе внимание ценителей современной архитектуры и хранителей исторического наследия. Недавние бурные обсуждения башни МФК «Оружейный» на пересечении кольца и Долгоруковской улицы и проекта «Московский силуэт» от звездных голландцев MVRDV, показали, как непросто бывает найти нужный образ для здешнего притязательного контекста. И неуклюжая стилизация, и провокационный архитектурный жест, как оказалось, создают в «пестром» ряду застройки Садового кольца слишком большой диссонанс, который мало кого из патриотичных москвичей радует. Любой новый проект строительства или реконструкции на Садовом кольце рассматривается в профильных инстанциях едва ли не под микроскопом и согласовывается с большими трудностями. Но для некоторых проектов горнило согласований оборачивается качественной трансформацией и шансом внести достойный вклад в архитектурную коллекцию Садового кольца. Все решают профессионализм и методика работы с контекстом архитектурной команды.

Аномальное место
Историю с проектом делового здания, замыкающего периметр треугольного квартала между Садово-Спасской, Мясницкой улицей и одноименным проездом, можно было бы назвать типичной для московской проектной практики, если бы не ряд аномальных обстоятельств. Счастливый полуфинал (согласование проекта и премия ArchGlass) предваряла драматичная предыстория.
Административно-деловое здание в Мясницком проезде. Схема ситуационного плана
Административно-деловое здание в Мясницком проезде. Схема ситуационного плана
© АБ Остоженка
Административно-деловое здание в Мясницком проезде. Расположение и объем будущего здания
Административно-деловое здание в Мясницком проезде. Расположение и объем будущего здания

Прежде всего, на этом участке не было и не должно было быть дома. Узкая лента глубиной всего 10 метров, зажатая между двумя брандмауэрами, лучше всего подошла бы для какого-нибудь чахлого садика, упрямо сражающегося с загазованностью соседней магистрали, которая словно в насмешку, носит название «Садовой». Но именно благодаря выходу на одну из главных столичных магистралей ценность участка как места для размещения «золотых» офисных площадей была слишком велика, чтобы отдать его под ботанические нужды. Так появился аномальный по своим габаритам и потенциалу участок площадью всего 0,02 га. В 2014 году компания «Вектор» выкупила его у правительства Москвы и заказала проект мастерской Сергея Ткаченко в «Моспроекте-5». Оперативно подготовленный проект начиная с 2015 года несколько раз был представлен на архитектурный совет Москвы, но никак не мог преодолеть этот «Рубикон».
Административно-деловое здание в Мясницком проезде. Перспектива по Садово-Спасской улице © Моспроект-5
Административно-деловое здание в Мясницком проезде. Перспектива по Садово-Спасской улице © Моспроект-5

Проблема была не в планировке. С ней сложностей не возникло, кроме катастрофически маленькой глубины корпуса (max. 7,8 метров) и площади этажа 230 м2, из-за которой понадобилось выпускать спецтехусловия, обосновывающие отсутствие второй эвакуационной лестницы. Команда «Моспроекта-5» предложила грамотное и взвешенное решение, учитывающее все особенности микро-участка, спроектировав прямоугольный пятиэтажный корпус высотой 24,4 м и еще парой подземных этажей для паркинга, оснащенного системой роботизированной парковки.

Камнем преткновения стали фасады здания. В первую очередь парадный, выходящий на Садовое кольцо. С задним фасадом, обращенным в маленький внутренний двор, загроможденный пристройками и ризалитами, тоже было непросто, но не настолько трагично, как с главным. Подготовленные варианты, как достаточно радикальные по цвету, так и контекстуальные, с рельефной каменной облицовкой, не были поддержаны архсоветом. Поиски решений продолжались около года, но ни к чему и не привели. Нужно было найти какой-то свежий образ, способный разрешить патовую ситуацию для и без того аномального участка. Девелопер обратился в бюро «Остоженка» с предложением доработать проект – задача более чем подходящая для команды «Остоженки», стоявшей у истоков «контекстуального подхода». 

Посмотри вокруг
Прежде всего требовалось учесть географию. Участок находится на внутренней стороне Садового кольца и главный фасад будущего здания обращен на северо-северо-восток. Почти весь день он в тени, солнце освещает его утром и вечером в начале лета, и то косым светом, отбрасывая резкие тени от любого рельефа. Эта особенность не учитывалась в предыдущих вариантах фасада, а Андрей Гнездилов ездил фотографировать утреннее солнце на фасадах соседних домов – чтобы представить, какой эффект свет будет оказывать на будущее здание. Нужен был прием, превращающий проблему в преимущество, одинаково эффектно работающий в тени, при косых лучах солнца, и при вечернем искусственном освещении.

Кроме того, нельзя было не учитывать окружение здания. В радиусе 400 м от аномального участка расположены несколько безусловных архитектурных шедевров: «высотка» на Красных воротах Алексея Душкина, южный павильон метро «Красные ворота» Николая Ладовского, «Наркомзем» Алексея Щусева и конечно «Дом Центросоюза» Ле Корбюзье. В первых эскизах команда «Остоженки» пробовала отрефлексировать мотивы соседних памятников, используя сходные материалы и цвета, но очень быстро пришла к выводу, что сам подход к разработке облика «странного» здания выбран неправильно. По словам Александра Скокана, «...было ошибкой делать настоящий, нормальный дом на этом аномальном участке. И рисовать для него фасад, как у настоящего дома. Участок и сам дом настолько узки, что больше походят на театральную декорацию, изображающую дом. Поэтому, для фасада нужно было найти какой-то адекватный декоративный прием».

Так появилась идея экрана, отделяющего внешний мир с стремительным движением машин по магистрали и бесконечным потоком пешеходов от внутреннего размеренного существования обитателей будущего офиса. Это сосуществование рядом, но изолировано, с эффектом присутствия, но не нараспашку, нашло выражение в образе полога, прикрывающего, но не скрывающего друг от друга внешний и внутренний миры, реагирующего на них и дающего возможность обитателям здания регулировать степень взаимодействия. Рождение образа легко прослеживается на эскизах, в которых видно, как на четкую каркасную структуру здания словно бы набрасывают легкий занавес, как бы испещренный складками от порывов ветра и проносящихся мимо автомобилей.
Административно-деловое здание в Мясницком проезде. Фасад по Садово-Спасской улице. Эскиз А.Скокана © АБ Остоженка
Административно-деловое здание в Мясницком проезде. Фасад по Садово-Спасской улице. Эскиз А.Скокана © АБ Остоженка
Административно-деловое здание в Мясницком проезде. Фасад по Садово-Спасской улице. Эскиз А.Скокана © АБ Остоженка
Административно-деловое здание в Мясницком проезде. Фасад по Садово-Спасской улице. Эскиз А.Скокана © АБ Остоженка

Стеклянный полог
Единственным материалом, при помощи которого можно было бы создать такой экран, было стекло. Вопрос заключался в том, какой тип стекла и какую технологию выбрать, чтобы добиться максимального эффекта при минимальной толщине конструкции.
Административно-деловое здание в Мясницком проезде. Фасад по Садово-Спасской улице.
Административно-деловое здание в Мясницком проезде. Фасад по Садово-Спасской улице.
© АБ Остоженка

Живую, чутко реагирующую на изменения угла обзора поверхность, похожую на занавес, могла обеспечить только система двойного фасада с теплыми внутренними витражами и вынесенной вперед конструкцией из жестко закрепленных стеклянных ламелей, одновременно закрывающих интерьер от просмотра снаружи, но, при определенном угле зрения, позволяющих смотреть наружу практически без помех. Более того, ламели давали возможность срежиссировать визуальные связи, расположив пластины не под одинаковым углом. Ламели, как веер, поворачиваются то в одну, то в другую сторону, чтобы открывать наиболее выигрышные виды на окружающий городской пейзаж и самые красивые здания из числа соседних шедевров.
Административно-деловое здание в Мясницком проезде. Фрагмент проектируемого фасада. © АБ Остоженка
Административно-деловое здание в Мясницком проезде. Фрагмент проектируемого фасада. © АБ Остоженка
© АБ Остоженка
Административно-деловое здание в Мясницком проезде. Фрагмент проектируемого фасада. Примеры © АБ Остоженка
Административно-деловое здание в Мясницком проезде. Фрагмент проектируемого фасада. Примеры © АБ Остоженка
© АБ Остоженка

Ламели собраны в шесть горизонтальных лент. Причем местами они объединят несколько уровней, а на некоторых, наоборот, общий ритм неожиданно прерывается, формируя ориентированный в противоположном направлении ряд. Получается словно бы взъерошенный фасад, у которого часть ламелей лежит «против шерсти». В итоге с первого взгляда непросто определить закономерность разбивки рядов и точное количество этажей, которые скрываются за «волнующимся» стеклянным занавесом.

Архитекторы «Остоженки» выбрали для ламелей стекло «сатинат», обработанное методом химического травления. Оно не прозрачно, но пропускает достаточно света, как днем внутрь здания, так и вечером, с включенным искусственным освещением – наружу, превращая небольшое здание в светящуюся шкатулку.
Административно-деловое здание в Мясницком проезде. Схема восприятия экрана с разных точек и движений © АБ Остоженка
Административно-деловое здание в Мясницком проезде. Схема восприятия экрана с разных точек и движений © АБ Остоженка
© АБ Остоженка

Сходство с занавесом усиливается благодаря скошенному наискосок нижнему краю внешнего фасада. Его обрез вторит диагонали консольного выступа над проездом в автоматизированную парковку. В предыдущей версии проекта авторы составляли проезд в обрамлении колонн, но архитекторы «Остоженки» предложили более тектоничный и эффективный с точки зрения работы несущих конструкций вариант – с консольным вывесом верхнего уровня над проездом. Благодаря этому решению нагрузка не передается на внешний периметр участка, примыкающий к брандмауэру стоящего рядом здания, а значит, нет риска повредить фундаменты «соседа».
Административно-деловое здание в Мясницком проезде.  Эскизы А.Скокана © АБ Остоженка
Административно-деловое здание в Мясницком проезде. Эскизы А.Скокана © АБ Остоженка
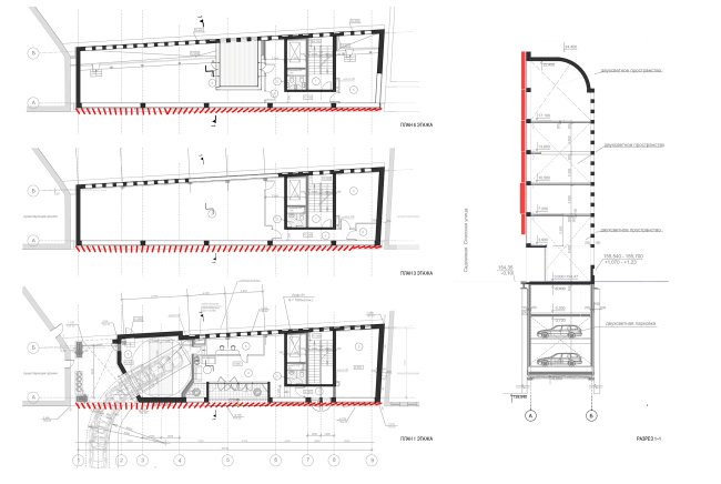
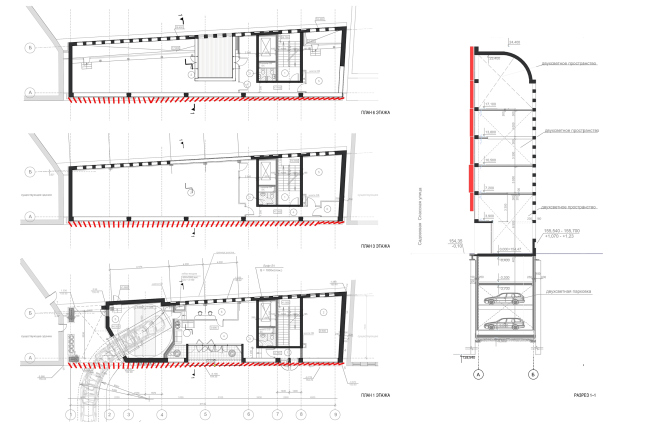
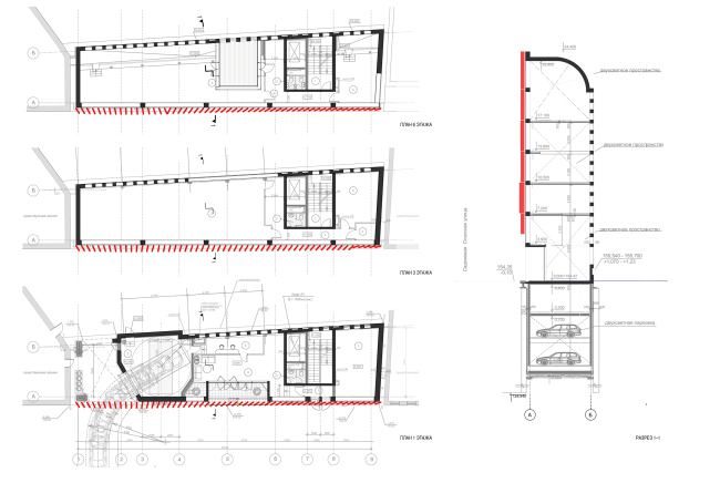
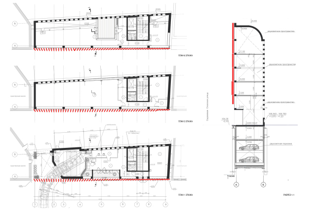
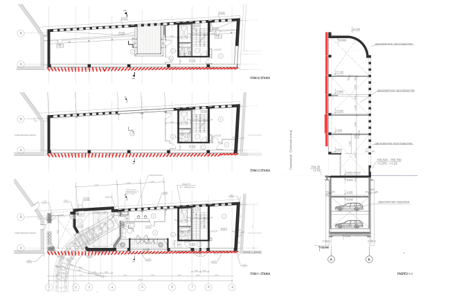
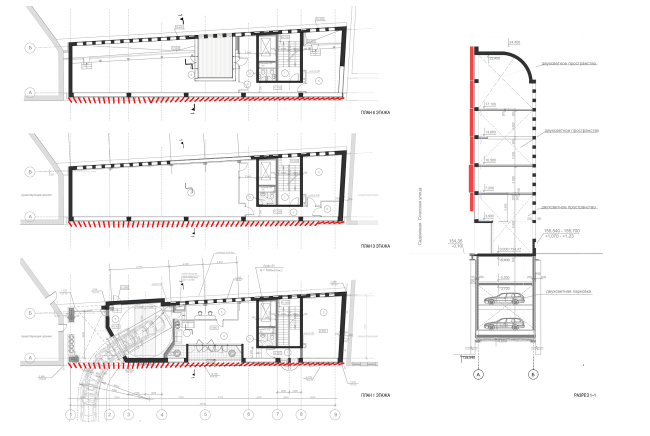
Административно-деловое здание в Мясницком проезде. Планы 1, 2, 3, 6 этажей. Разрезы 1-1
Административно-деловое здание в Мясницком проезде. Планы 1, 2, 3, 6 этажей. Разрезы 1-1
© АБ Остоженка
Административно-деловое здание в Мясницком проезде. Фотовстройка по Садово-Спасской улице.
Административно-деловое здание в Мясницком проезде. Фотовстройка по Садово-Спасской улице.
© АБ Остоженка

В садовом стиле
Для дворового фасада «Остоженка» также предложила новое решение, использующее стекло нестандартным способом. Архитекторы хотели впустить внутрь узкого корпуса хотя бы немного южного солнца, но затесненность внутреннего двора не позволяла использовать большие площади остекления. Да и офисная жизнь, протекающая между двумя стеклянными фасадами легко превратилась бы в подобие ТВ-шоу «За стеклом». Баланс закрытости и проницаемости для света был найден в виде равномерной перфорации заднего фасада при помощи небольших, размером всего 70х70 см проемов, часть которых закрыта матовыми стеклопакетами, а часть оставлена глухой. Сами архитекторы увидели в получившейся мелкоячеистой структуре аналогию с парковыми перголами – решетками для вьющихся растений.
Административно-деловое здание в Мясницком проезде. Фасад дворовый.
Административно-деловое здание в Мясницком проезде. Фасад дворовый.
© АБ Остоженка

 
Непредсказуемый финал
Разработанный бюро «Остоженка» новый вариант проекта, включавший, помимо фасадов, ряд планировочных и конструктивных усовершенствований, благополучно прошел архитектурный совет в августе 2017 года. Предложенные решения не только отвечали на все вопросы непростого участка, но и давали возможность для развития идеи на этапе рабочего проектирования. Вот только каким образом будет проходить развитие и получится ли сохранить найденный образ, – авторы утвержденной концепции сказать не могут.
Административно-деловое здание в Мясницком проезде. Фотовстройка по Садово-Спасской улице.
Административно-деловое здание в Мясницком проезде. Фотовстройка по Садово-Спасской улице.
© АБ Остоженка

В последнее время девелоперские компании все чаще начинают использовать метод фрагментированного проектирования, нанимая на отдельные этапы работы над проектом разные организации. Случаев, когда одно архитектурное бюро ведет проект от первой концепции до рабочего проекта и авторского надзора, крайне мало, и их становиться все меньше. Эта не противоречащая законам тактика позволяет девелоперам не только экономить средства, нанимая для выполнения разных по сложности работ разные по уровню квалификации команды, но и открывает им широкий простор для бесконтрольного искажения архитектурных решений.

Что произойдет с этим проектом, станет ли он еще одним типичным примером архитектуры без архитектора или пресловутая аномальность участка сработает на позитив и построенное здание станет образцом качественной современной и авторской архитектуры на Садовом кольце, покажет время.