Размещено на портале Архи.ру (www.archi.ru)

31.05.2018

Красное и черное

Нина Фролова
Объект:
Павильоны 09–12 выставочного комплекса в Дорнбирне
Адрес:
Австрия, None, Дорнбирн.
Мастерская:
Marte.Marte Architekten

Павильоны 09–12 выставочного комплекса в Дорнбирне на западе Австрии по проекту бюро Marte.Marte Architekten.

Павильоны 09–12 выставочного комплекса в Дорнбирне. Фото © Faruk Pinjo
Павильоны 09–12 выставочного комплекса в Дорнбирне. Фото © Faruk Pinjo

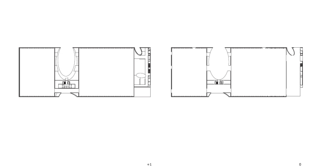
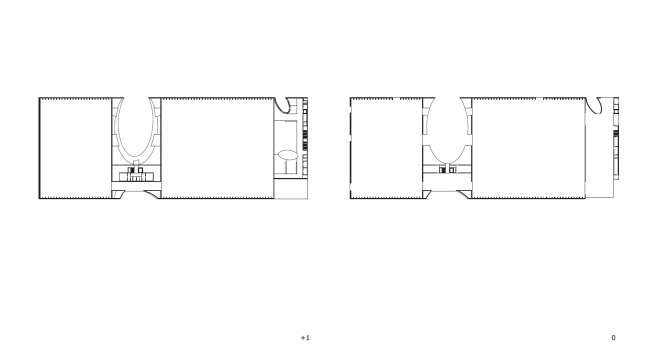
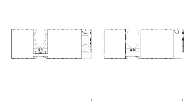
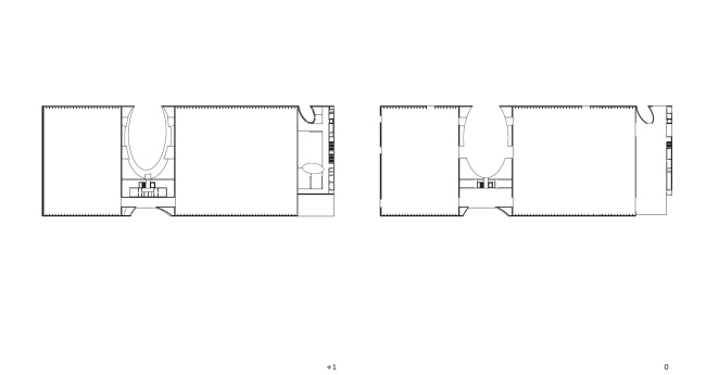
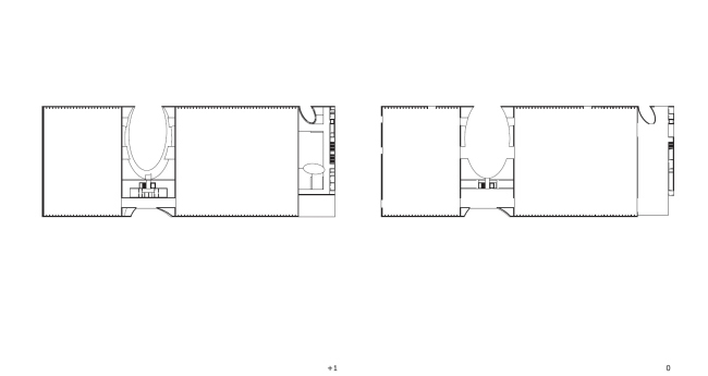
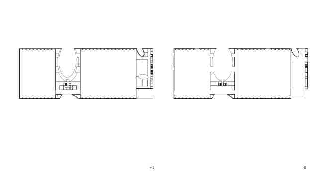
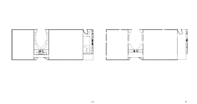
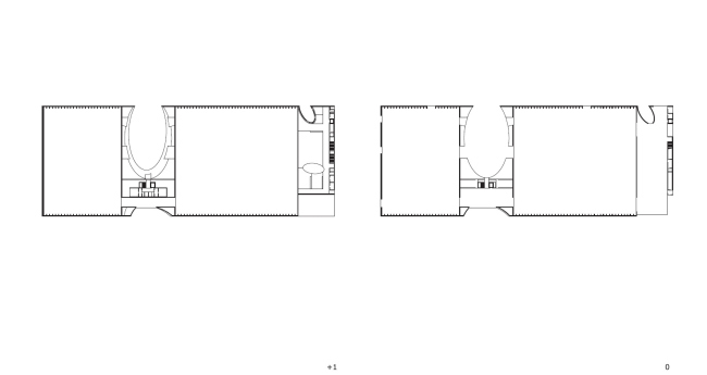
Четыре новых павильона выставочного комплекса на окраине Дорнбирна стали в 2014 предметом архитектурного конкурса. Выбранный жюри проект Marte.Marte предполагал неординарное решение: вместо четырех построек архитекторы ограничились одной, протяженностью 170 метров и шириной почти в семьдесят, обшитой черным профнастилом. Чтобы избежать монотонности, на продольных фасадах устроили округлые ниши насыщенно-красного цвета. Такой же тон – авторы называют его карминным – отмечает арку, главный вход в постройку. Красные части также выполнены из профнастила.
 
Павильоны 09–12 выставочного комплекса в Дорнбирне. Фото © Faruk Pinjo
Павильоны 09–12 выставочного комплекса в Дорнбирне. Фото © Faruk Pinjo
Павильоны 09–12 выставочного комплекса в Дорнбирне. Фото © Faruk Pinjo
Павильоны 09–12 выставочного комплекса в Дорнбирне. Фото © Faruk Pinjo
Павильоны 09–12 выставочного комплекса в Дорнбирне. Фото © Faruk Pinjo
Павильоны 09–12 выставочного комплекса в Дорнбирне. Фото © Faruk Pinjo
Павильоны 09–12 выставочного комплекса в Дорнбирне. Фото © Faruk Pinjo
Павильоны 09–12 выставочного комплекса в Дорнбирне. Фото © Faruk Pinjo
Павильоны 09–12 выставочного комплекса в Дорнбирне. Фото © Faruk Pinjo
Павильоны 09–12 выставочного комплекса в Дорнбирне. Фото © Faruk Pinjo

Сочетание красного и черного продолжается и в интерьере. Вестибюль полностью окрашен в красный, включая бетонную аркаду, отделяющую входную зону от кафе. Такой же цветной интерьер получил павильон номер 12, остальные три оставлены черными. Стены постройки – бетонные, перекрытия и их несущая конструкция – из клееного дерева. Особое внимание уделено пожарной безопасности (в сооружении – 70 дверей) и акустическому комфорту. Общая площадь – 8250 м2, бюджет составил 28 млн евро.
Павильоны 09–12 выставочного комплекса в Дорнбирне. Фото © Faruk Pinjo
Павильоны 09–12 выставочного комплекса в Дорнбирне. Фото © Faruk Pinjo
Павильоны 09–12 выставочного комплекса в Дорнбирне. Фото © Faruk Pinjo
Павильоны 09–12 выставочного комплекса в Дорнбирне. Фото © Faruk Pinjo
Павильоны 09–12 выставочного комплекса в Дорнбирне. Фото © Faruk Pinjo
Павильоны 09–12 выставочного комплекса в Дорнбирне. Фото © Faruk Pinjo
Павильоны 09–12 выставочного комплекса в Дорнбирне. Фото © Faruk Pinjo
Павильоны 09–12 выставочного комплекса в Дорнбирне. Фото © Faruk Pinjo
Павильоны 09–12 выставочного комплекса в Дорнбирне. Фото © Faruk Pinjo
Павильоны 09–12 выставочного комплекса в Дорнбирне. Фото © Faruk Pinjo
Павильоны 09–12 выставочного комплекса в Дорнбирне. Фото © Faruk Pinjo
Павильоны 09–12 выставочного комплекса в Дорнбирне. Фото © Faruk Pinjo
Павильоны 09–12 выставочного комплекса в Дорнбирне. Фото © Faruk Pinjo
Павильоны 09–12 выставочного комплекса в Дорнбирне. Фото © Faruk Pinjo
Павильоны 09–12 выставочного комплекса в Дорнбирне. Фото © Faruk Pinjo
Павильоны 09–12 выставочного комплекса в Дорнбирне. Фото © Faruk Pinjo
Павильоны 09–12 выставочного комплекса в Дорнбирне. Фото © Faruk Pinjo
Павильоны 09–12 выставочного комплекса в Дорнбирне. Фото © Faruk Pinjo
Павильоны 09–12 выставочного комплекса в Дорнбирне. Фото © Faruk Pinjo
Павильоны 09–12 выставочного комплекса в Дорнбирне. Фото © Faruk Pinjo
Павильоны 09–12 выставочного комплекса в Дорнбирне. Фото © Faruk Pinjo
Павильоны 09–12 выставочного комплекса в Дорнбирне. Фото © Faruk Pinjo
Павильоны 09–12 выставочного комплекса в Дорнбирне. Фото © Faruk Pinjo
Павильоны 09–12 выставочного комплекса в Дорнбирне. Фото © Faruk Pinjo
Павильоны 09–12 выставочного комплекса в Дорнбирне. Фото © Faruk Pinjo
Павильоны 09–12 выставочного комплекса в Дорнбирне. Фото © Faruk Pinjo
Павильоны 09–12 выставочного комплекса в Дорнбирне. Фото © Faruk Pinjo
Павильоны 09–12 выставочного комплекса в Дорнбирне. Фото © Faruk Pinjo
Павильоны 09–12 выставочного комплекса в Дорнбирне. Фото © Faruk Pinjo
Павильоны 09–12 выставочного комплекса в Дорнбирне. Фото © Faruk Pinjo
Павильоны 09–12 выставочного комплекса в Дорнбирне. Фото © Faruk Pinjo
Павильоны 09–12 выставочного комплекса в Дорнбирне. Фото © Faruk Pinjo
Павильоны 09–12 выставочного комплекса в Дорнбирне. Фото © Faruk Pinjo
Павильоны 09–12 выставочного комплекса в Дорнбирне. Фото © Faruk Pinjo
Павильоны 09–12 выставочного комплекса в Дорнбирне. Фото © Faruk Pinjo
Павильоны 09–12 выставочного комплекса в Дорнбирне. Фото © Faruk Pinjo
Павильоны 09–12 выставочного комплекса в Дорнбирне. Фото © Faruk Pinjo
Павильоны 09–12 выставочного комплекса в Дорнбирне. Фото © Faruk Pinjo
Павильоны 09–12 выставочного комплекса в Дорнбирне © Marte.Marte Architekten
Павильоны 09–12 выставочного комплекса в Дорнбирне © Marte.Marte Architekten
Павильоны 09–12 выставочного комплекса в Дорнбирне © Marte.Marte Architekten
Павильоны 09–12 выставочного комплекса в Дорнбирне © Marte.Marte Architekten
Павильоны 09–12 выставочного комплекса в Дорнбирне © Marte.Marte Architekten
Павильоны 09–12 выставочного комплекса в Дорнбирне © Marte.Marte Architekten