Размещено на портале Архи.ру (www.archi.ru)

22.05.2018

Сквозной музей архитектуры

Нина Фролова
Объект:
Комплекс BLOX
Адрес:
Дания, None, Копенгаген.
Мастерская:
OMA

Через новое здание Датского архитектурного центра в Копенгагене по проекту OMA пропущена оживленная автомагистраль. Постройка окружает тоннель со всех сторон, даже снизу.

Комплекс BLOX. Фото © Clement Guillaume, предоставлено OMA
Комплекс BLOX. Фото © Clement Guillaume, предоставлено OMA

Комплекс BLOX построен на еще недавно «выморочной» территории пивоваренного завода, сгоревшего дотла в 1960-е. Она долгое время оставалась транзитной, отрезая доступ к воде из исторического центра, от музеев и государственных учреждений. Идущую по набережной магистраль провели сквозь новое здание, поэтому ее теперь можно преодолеть снизу и сверху. В результате, BLOX стал точкой пересечения многих городских маршрутов, а также их пунктом назначения: на его террасах с детской площадкой можно отдохнуть с видом на воду, а по вечерам планируется показывать кино. Со стороны исторических домов образовалась новая площадь, со стороны воды – парк.
 
Комплекс BLOX. Фото: Delfino Sisto Legnani & Marco Cappelletti © OMA
Комплекс BLOX. Фото: Delfino Sisto Legnani & Marco Cappelletti © OMA

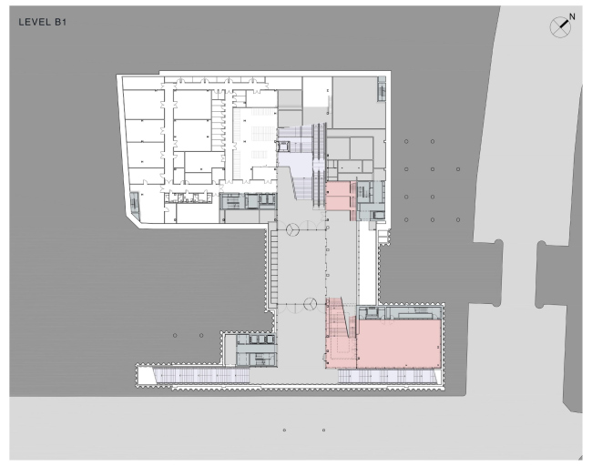
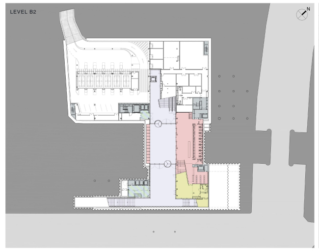
Датский архитектурный центр занимает 5,5 тыс. м2: он получил два выставочных зала, аудиторию на 200 мест, кафе, переговорные, образовательную зону. Но им BLOX не ограничивается: там есть 22 квартиры средней площадью 105 м2 (плюс просторная терраса), ресторан, офисы, фитнес-центр, автоматическая парковка на 350 машин (5000 м2), крытая велостоянка на 186 мест.
 
Комплекс BLOX. Фото: Delfino Sisto Legnani & Marco Cappelletti © OMA
Комплекс BLOX. Фото: Delfino Sisto Legnani & Marco Cappelletti © OMA

Стеклянные и матовые блоки, из которых как будто собран новый объект, создают свободную композицию, позволяющую горожанам проникать внутрь – и выходить наружу – в разных точках, а также поддерживающую визуальную связь между разными «отделами» – архитектурным центром, спортзалом, офисами.
 
Комплекс BLOX. Фото © OMA
Комплекс BLOX. Фото © OMA

В Дании требования по ресурсоэффективности к новым зданиям гораздо выше, чем в других европейских странах, поэтому эко-соображения были заложены в проект еще на стадии проработки его массы и фасада. BLOX сам вырабатывает электричество, а потребляет менее 40 киловатт·час/м2/год. Полностью остекленные фасады офисной части позволяют использовать максимум естественного освещения; жалюзи и светильники управляются системой датчиков, кроме того, широко использованы персональные лампы. В то же время, уровень освещенности могут регулировать и сами пользователи, той же цели их комфорта служит конструкция BLOX по типу шоссейного виадука и повышенная изоляция фасадов, поэтому поток машин по тоннелю сквозь здание не создает никакой ощутимой вибрации.
Комплекс BLOX. Фото © Richard John Seymour, предоставлено OMA
Комплекс BLOX. Фото © Richard John Seymour, предоставлено OMA
Комплекс BLOX. Фото: Delfino Sisto Legnani & Marco Cappelletti © OMA
Комплекс BLOX. Фото: Delfino Sisto Legnani & Marco Cappelletti © OMA
Комплекс BLOX. Фото © Richard John Seymour, предоставлено OMA
Комплекс BLOX. Фото © Richard John Seymour, предоставлено OMA
Комплекс BLOX. Фото © Richard John Seymour, предоставлено OMA
Комплекс BLOX. Фото © Richard John Seymour, предоставлено OMA
Комплекс BLOX. Фото © Rasmus Hjortshøj – COAST
Комплекс BLOX. Фото © Rasmus Hjortshøj – COAST
Комплекс BLOX. Фото © Rasmus Hjortshøj – COAST
Комплекс BLOX. Фото © Rasmus Hjortshøj – COAST
Комплекс BLOX. Фото © Richard John Seymour, предоставлено OMA
Комплекс BLOX. Фото © Richard John Seymour, предоставлено OMA
Комплекс BLOX. Фото © Richard John Seymour, предоставлено OMA
Комплекс BLOX. Фото © Richard John Seymour, предоставлено OMA
Комплекс BLOX. Фото © Richard John Seymour, предоставлено OMA
Комплекс BLOX. Фото © Richard John Seymour, предоставлено OMA
Комплекс BLOX. Фото: Delfino Sisto Legnani & Marco Cappelletti © OMA
Комплекс BLOX. Фото: Delfino Sisto Legnani & Marco Cappelletti © OMA
Комплекс BLOX. Фото: Delfino Sisto Legnani & Marco Cappelletti © OMA
Комплекс BLOX. Фото: Delfino Sisto Legnani & Marco Cappelletti © OMA
Комплекс BLOX. Фото: Hans Werlemann © OMA
Комплекс BLOX. Фото: Hans Werlemann © OMA
Комплекс BLOX. Фото: Hans Werlemann © OMA
Комплекс BLOX. Фото: Hans Werlemann © OMA
Комплекс BLOX. Фото © Rasmus Hjortshøj – COAST
Комплекс BLOX. Фото © Rasmus Hjortshøj – COAST
Комплекс BLOX. Фото: Delfino Sisto Legnani & Marco Cappelletti © OMA
Комплекс BLOX. Фото: Delfino Sisto Legnani & Marco Cappelletti © OMA
Комплекс BLOX. Фото: Delfino Sisto Legnani & Marco Cappelletti © OMA
Комплекс BLOX. Фото: Delfino Sisto Legnani & Marco Cappelletti © OMA
Комплекс BLOX. Фото © Rasmus Hjortshøj – COAST
Комплекс BLOX. Фото © Rasmus Hjortshøj – COAST
Комплекс BLOX. Фото © Rasmus Hjortshøj – COAST
Комплекс BLOX. Фото © Rasmus Hjortshøj – COAST
Комплекс BLOX. Фото: Hans Werlemann © OMA
Комплекс BLOX. Фото: Hans Werlemann © OMA
Комплекс BLOX. Фото: Delfino Sisto Legnani & Marco Cappelletti © OMA
Комплекс BLOX. Фото: Delfino Sisto Legnani & Marco Cappelletti © OMA
Комплекс BLOX. Фото © OMA / Adrianne Fisher
Комплекс BLOX. Фото © OMA / Adrianne Fisher
Комплекс BLOX. Фото © Rasmus Hjortshøj – COAST
Комплекс BLOX. Фото © Rasmus Hjortshøj – COAST
Комплекс BLOX. Фото © Rasmus Hjortshøj – COAST
Комплекс BLOX. Фото © Rasmus Hjortshøj – COAST
Комплекс BLOX. Фото © OMA / Adrianne Fisher
Комплекс BLOX. Фото © OMA / Adrianne Fisher
Комплекс BLOX. Фото © OMA / Adrianne Fisher
Комплекс BLOX. Фото © OMA / Adrianne Fisher
Комплекс BLOX. Фото © OMA / Adrianne Fisher
Комплекс BLOX. Фото © OMA / Adrianne Fisher
Комплекс BLOX. Фото © Rasmus Hjortshøj – COAST
Комплекс BLOX. Фото © Rasmus Hjortshøj – COAST
Комплекс BLOX. Фото © Rasmus Hjortshøj – COAST
Комплекс BLOX. Фото © Rasmus Hjortshøj – COAST
Комплекс BLOX. Фото © Rasmus Hjortshøj – COAST
Комплекс BLOX. Фото © Rasmus Hjortshøj – COAST
Комплекс BLOX. Фото © Richard John Seymour, предоставлено OMA
Комплекс BLOX. Фото © Richard John Seymour, предоставлено OMA
Комплекс BLOX. Фото © Richard John Seymour, предоставлено OMA
Комплекс BLOX. Фото © Richard John Seymour, предоставлено OMA
Комплекс BLOX. Фото © Richard John Seymour, предоставлено OMA
Комплекс BLOX. Фото © Richard John Seymour, предоставлено OMA
Комплекс BLOX. Фото © Richard John Seymour, предоставлено OMA
Комплекс BLOX. Фото © Richard John Seymour, предоставлено OMA
Комплекс BLOX. Фото © Rasmus Hjortshøj – COAST
Комплекс BLOX. Фото © Rasmus Hjortshøj – COAST
Комплекс BLOX. Фото: Hans Werlemann © OMA
Комплекс BLOX. Фото: Hans Werlemann © OMA
Комплекс BLOX. Фото: Hans Werlemann © OMA
Комплекс BLOX. Фото: Hans Werlemann © OMA
Комплекс BLOX. Фото: Delfino Sisto Legnani & Marco Cappelletti © OMA
Комплекс BLOX. Фото: Delfino Sisto Legnani & Marco Cappelletti © OMA
Комплекс BLOX. Фото: Delfino Sisto Legnani & Marco Cappelletti © OMA
Комплекс BLOX. Фото: Delfino Sisto Legnani & Marco Cappelletti © OMA
Комплекс BLOX. Фото: Delfino Sisto Legnani & Marco Cappelletti © OMA
Комплекс BLOX. Фото: Delfino Sisto Legnani & Marco Cappelletti © OMA
Комплекс BLOX. Фото: Delfino Sisto Legnani & Marco Cappelletti © OMA
Комплекс BLOX. Фото: Delfino Sisto Legnani & Marco Cappelletti © OMA
Комплекс BLOX. Фото: Delfino Sisto Legnani & Marco Cappelletti © OMA
Комплекс BLOX. Фото: Delfino Sisto Legnani & Marco Cappelletti © OMA
Комплекс BLOX. Фото: Delfino Sisto Legnani & Marco Cappelletti © OMA
Комплекс BLOX. Фото: Delfino Sisto Legnani & Marco Cappelletti © OMA
Комплекс BLOX. Фото © Richard John Seymour, предоставлено OMA
Комплекс BLOX. Фото © Richard John Seymour, предоставлено OMA
Комплекс BLOX. Фото: Hans Werlemann © OMA
Комплекс BLOX. Фото: Hans Werlemann © OMA
Комплекс BLOX. Фото: Hans Werlemann © OMA
Комплекс BLOX. Фото: Hans Werlemann © OMA
Комплекс BLOX. Фото: Hans Werlemann © OMA
Комплекс BLOX. Фото: Hans Werlemann © OMA
Комплекс BLOX. Фото: Hans Werlemann © OMA
Комплекс BLOX. Фото: Hans Werlemann © OMA
Комплекс BLOX. Фото: Hans Werlemann © OMA
Комплекс BLOX. Фото: Hans Werlemann © OMA
Комплекс BLOX. Фото: Hans Werlemann © OMA
Комплекс BLOX. Фото: Hans Werlemann © OMA
Комплекс BLOX. Фото: Hans Werlemann © OMA
Комплекс BLOX. Фото: Hans Werlemann © OMA
Комплекс BLOX. Фото: Hans Werlemann © OMA
Комплекс BLOX. Фото: Hans Werlemann © OMA
Комплекс BLOX. Фото: Hans Werlemann © OMA
Комплекс BLOX. Фото: Hans Werlemann © OMA
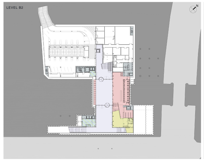
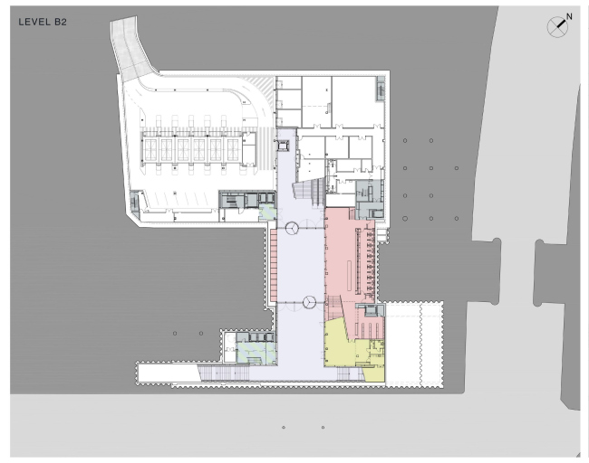
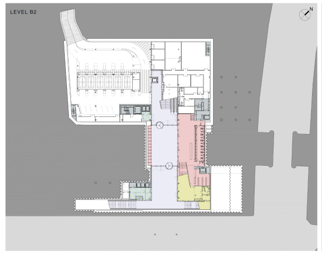
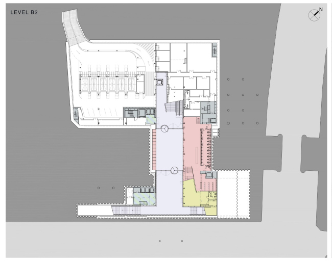
Комплекс BLOX © OMA
Комплекс BLOX © OMA
Комплекс BLOX © OMA
Комплекс BLOX © OMA
Комплекс BLOX © OMA
Комплекс BLOX © OMA
Комплекс BLOX © OMA
Комплекс BLOX © OMA
Комплекс BLOX © OMA
Комплекс BLOX © OMA
Комплекс BLOX © OMA
Комплекс BLOX © OMA
Комплекс BLOX © OMA
Комплекс BLOX © OMA
Комплекс BLOX © OMA
Комплекс BLOX © OMA
Комплекс BLOX © OMA
Комплекс BLOX © OMA
Комплекс BLOX © OMA
Комплекс BLOX © OMA
Комплекс BLOX © OMA
Комплекс BLOX © OMA
Комплекс BLOX © OMA
Комплекс BLOX © OMA
Комплекс BLOX © OMA
Комплекс BLOX © OMA
Комплекс BLOX © OMA
Комплекс BLOX © OMA
Комплекс BLOX © OMA
Комплекс BLOX © OMA
Комплекс BLOX © OMA
Комплекс BLOX © OMA
Комплекс BLOX © OMA
Комплекс BLOX © OMA