Размещено на портале Архи.ру (www.archi.ru)

21.05.2018

Башня на трех осях

Нина Фролова
Объект:
Башня Generali комплекса CityLife
Адрес:
Италия, None, Милан.
Мастерская:
Zaha Hadid Architects

Офисный небоскреб Generali комплекса CityLife в Милане по проекту Zaha Hadid Architects.

Башня Generali комплекса CityLife © Hufton + Crow
Башня Generali комплекса CityLife © Hufton + Crow

Небоскреб Generali был поручен бюро Захи Хадид еще в 2004, когда был проведен масштабный конкурс на проект новой застройки территории бывшей миланской ярмарки. Новый район CityLife, который планируется завершить уже в 2020, включает 1000 новых квартир, офисы на более 11 000 рабочих мест, разнообразные общественные пространства, в том числе – парк площадью 17 гектаров.
 
Башня Generali комплекса CityLife © Hufton + Crow
Башня Generali комплекса CityLife © Hufton + Crow

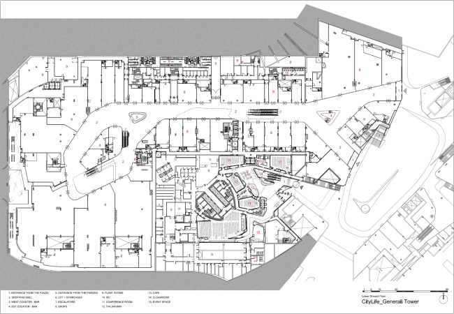
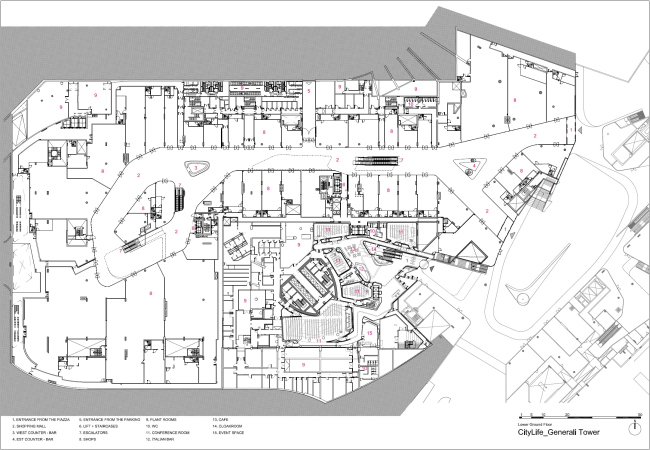
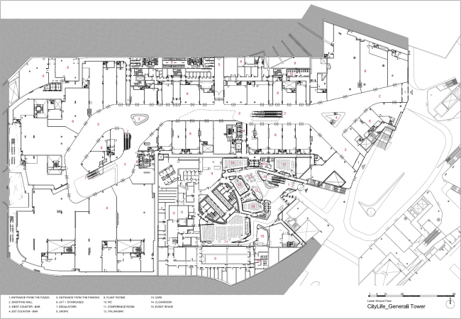
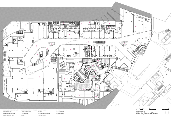
В центре помещены три башни (названная в честь них станция метро уже открылась рядом): кроме Хадид, их авторами выступили Арата Исодзаки (его небоскреб Allianz уже готов) и Даниэль Либескинд. Среди проектов Zaha Hadid Architects в CityLife – также жилой комплекс и торговый центр, образующий подиум для башни Generali.
 
Башня Generali комплекса CityLife © Hufton + Crow
Башня Generali комплекса CityLife © Hufton + Crow

Собственно 170-метровая башня (44 этажа) расположена в точке схода трех ключевых миланских осей, поэтому как ее торговое основание, так и ярусы выше «сформированы» действием центростремительных сил. При этом небоскреб с его железобетонным каркасом (он оказался выгодней стального) постепенно «поворачивается» по мере возрастания высоты, и верхние этажи в итоге ориентированы на центр города и церковь монастыря Санта-Мария-делле-Грацие, точнее, выстроенную Браманте ее восточную часть.
 
Башня Generali комплекса CityLife © Luke Hayes
Башня Generali комплекса CityLife © Luke Hayes

Этим летом будут готовы интерьеры, и в башню въедут 3900 сотрудников страховой компании Generali Group. Помещения будут наполнены солнечным светом, однако от излишнего жара их защитят жалюзи на двойном высокоэффективном фасаде с проемами для естественной вентиляции. Оптимальную температуру будут поддерживать и с помощью активных охлаждающих балок с низким потреблением энергии. Небоскреб претендует на «платиновый» сертификат LEED.
Башня Generali комплекса CityLife © Hufton + Crow
Башня Generali комплекса CityLife © Hufton + Crow
Башня Generali комплекса CityLife © Hufton + Crow
Башня Generali комплекса CityLife © Hufton + Crow
Башня Generali комплекса CityLife © Hufton + Crow
Башня Generali комплекса CityLife © Hufton + Crow
Башня Generali комплекса CityLife © Hufton + Crow
Башня Generali комплекса CityLife © Hufton + Crow
Башня Generali комплекса CityLife © Hufton + Crow
Башня Generali комплекса CityLife © Hufton + Crow
Башня Generali комплекса CityLife © Hufton + Crow
Башня Generali комплекса CityLife © Hufton + Crow
Башня Generali комплекса CityLife
Башня Generali комплекса CityLife
Фото © Hufton + Crow
Башня Generali комплекса CityLife © Hufton + Crow
Башня Generali комплекса CityLife © Hufton + Crow
Башня Generali комплекса CityLife © Hufton + Crow
Башня Generali комплекса CityLife © Hufton + Crow
Башня Generali комплекса CityLife © Zaha Hadid Architects
Башня Generali комплекса CityLife © Zaha Hadid Architects
Башня Generali комплекса CityLife © Zaha Hadid Architects
Башня Generali комплекса CityLife © Zaha Hadid Architects
Башня Generali комплекса CityLife © Zaha Hadid Architects
Башня Generali комплекса CityLife © Zaha Hadid Architects
Башня Generali комплекса CityLife © Zaha Hadid Architects
Башня Generali комплекса CityLife © Zaha Hadid Architects
Башня Generali комплекса CityLife © Zaha Hadid Architects
Башня Generali комплекса CityLife © Zaha Hadid Architects
Башня Generali комплекса CityLife © Zaha Hadid Architects
Башня Generali комплекса CityLife © Zaha Hadid Architects
Башня Generali комплекса CityLife © Zaha Hadid Architects
Башня Generali комплекса CityLife © Zaha Hadid Architects
Башня Generali комплекса CityLife © Zaha Hadid Architects
Башня Generali комплекса CityLife © Zaha Hadid Architects
Башня Generali комплекса CityLife © Zaha Hadid Architects
Башня Generali комплекса CityLife © Zaha Hadid Architects
Башня Generali комплекса CityLife © Zaha Hadid Architects
Башня Generali комплекса CityLife © Zaha Hadid Architects
Башня Generali комплекса CityLife © Zaha Hadid Architects
Башня Generali комплекса CityLife © Zaha Hadid Architects
Башня Generali комплекса CityLife © Zaha Hadid Architects
Башня Generali комплекса CityLife © Zaha Hadid Architects
Башня Generali комплекса CityLife © Zaha Hadid Architects
Башня Generali комплекса CityLife © Zaha Hadid Architects
Башня Generali комплекса CityLife © Zaha Hadid Architects
Башня Generali комплекса CityLife © Zaha Hadid Architects
Башня Generali комплекса CityLife © Zaha Hadid Architects
Башня Generali комплекса CityLife © Zaha Hadid Architects
Башня Generali комплекса CityLife © Zaha Hadid Architects
Башня Generali комплекса CityLife © Zaha Hadid Architects
Башня Generali комплекса CityLife © Zaha Hadid Architects
Башня Generali комплекса CityLife © Zaha Hadid Architects