Размещено на портале Архи.ру (www.archi.ru)

07.06.2018

Красные линии

Так называется конкурс студенческих проектов, проводимый в Томске, но открытый для участников из всех городов и даже стран. Публикуем проекты победителей 2018 года.

Архитектурный факультет Томского архитектурно-строительного университета проводит конкурс студенческих проектов «Красные линии» с 2016 года в рамках конференции студентов, аспирантов и молодых ученых «Перспективы развития фундаментальных наук». Участником конкурса может быть как отдельный студент, так и авторский коллектив, в том числе и междисциплинарный, из любого вуза РФ или из-за рубежа. Критерии оценки – новизна решений, реализуемость, эргономичность. 

***

Частный дом 
Дмитрий Паршуков (студент 3 курса ТГАСУ, гр. 5025)
Научный руководитель Ахтямов Камиль Хайбуллович
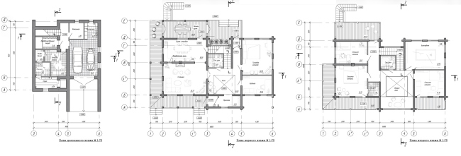
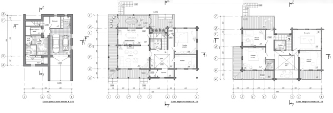
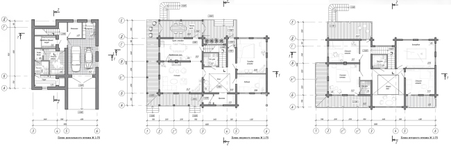
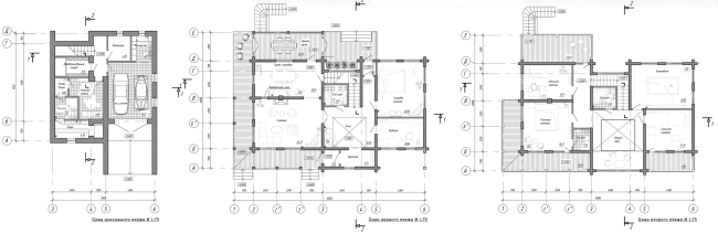
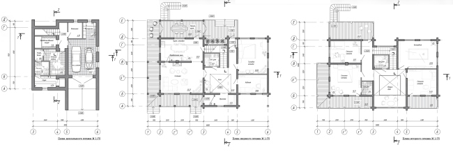
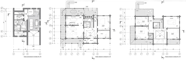
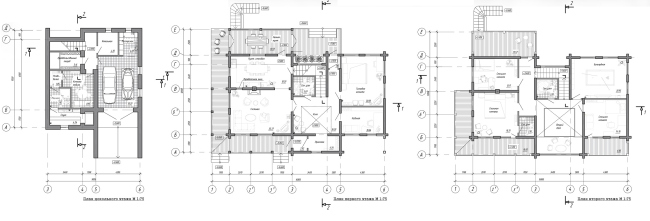
Проект «Жилой дом »Альпийский бриллиант« по ул. Ачинской, 8а в г. Томске»
Проект жилого дома «Альпийский бриллиант». Автор: Д.С. Паршуков
Проект жилого дома «Альпийский бриллиант». Автор: Д.С. Паршуков
Проект жилого дома «Альпийский бриллиант». Автор: Д.С. Паршуков
Проект жилого дома «Альпийский бриллиант». Автор: Д.С. Паршуков
Проект жилого дома «Альпийский бриллиант». Автор: Д.С. Паршуков
Проект жилого дома «Альпийский бриллиант». Автор: Д.С. Паршуков
Проект жилого дома «Альпийский бриллиант». Автор: Д.С. Паршуков
Проект жилого дома «Альпийский бриллиант». Автор: Д.С. Паршуков
Проект жилого дома «Альпийский бриллиант». Автор: Д.С. Паршуков
Проект жилого дома «Альпийский бриллиант». Автор: Д.С. Паршуков
***

Дизайн архитектурной среды 
Станислав Бабкин (студент 2 курса ТГАСУ гр. 5026)
Научный руководитель Верёвкина Ирина Дмитриевна
Проект «Беседка с видовой площадкой в Лагерном саду в г. Томске»
Беседка с видовой площадкой в Лагерном саду (Томск). Автор: студент С.Н. Бабкин
Беседка с видовой площадкой в Лагерном саду (Томск). Автор: студент С.Н. Бабкин
***
 
Архитектура и градостроительство 
Анастасия Симонова (студентка 5 курса ТГАСУ, гр.523)
Научный руководитель Попова Зинаида Владимировна
Проект «Плавательный бассейн на 1000 посетителей»
Плавательный бассейн на 1000 посетителей. Автор: студентка А.А. Симонова
Плавательный бассейн на 1000 посетителей. Автор: студентка А.А. Симонова
Плавательный бассейн на 1000 посетителей. Автор: студентка А.А. Симонова
Плавательный бассейн на 1000 посетителей. Автор: студентка А.А. Симонова
Плавательный бассейн на 1000 посетителей. Автор: студентка А.А. Симонова
Плавательный бассейн на 1000 посетителей. Автор: студентка А.А. Симонова
***

Вторая жизнь исторических зданий
Дарья Вострикова (студентка 4 курса ТГАСУ, гр.5044)
Научный руководитель Романова Лариса Степановна
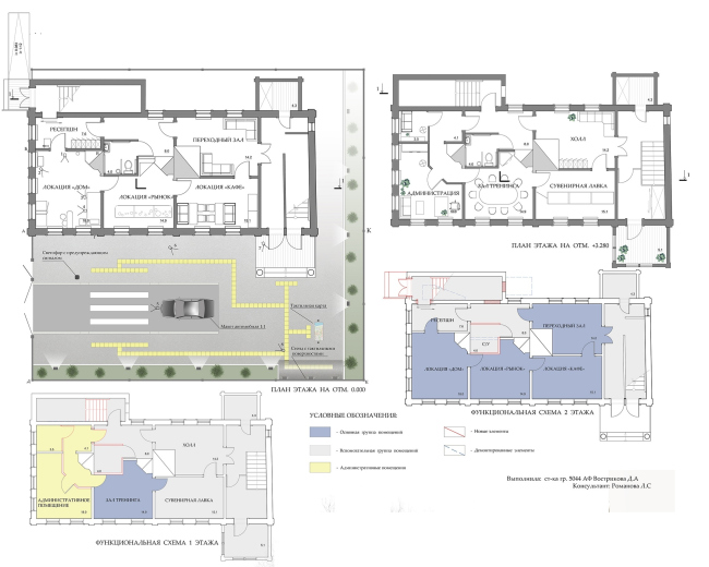
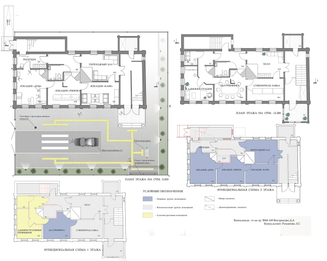
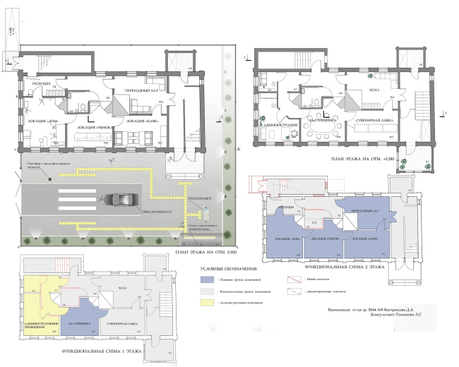
Проект «Эскизный проект приспособления памятника архитектуры по ул. Войкова, 23 в г. Томске под музей тактильных ощущений «Шаг в темноту»
Работа отмечена супер призом – сертификатом на прохождение обучения Autodesk Revit в объёме 80 часов от партнёра конкурса Mirball school.
Эскизный проект приспособления памятника архитектуры на ул. Войкова, 23 в г. Томске под музей тактильных ощущений «Шаг в темноту». Автор: студентка Д.А. Вострикова
Эскизный проект приспособления памятника архитектуры на ул. Войкова, 23 в г. Томске под музей тактильных ощущений «Шаг в темноту». Автор: студентка Д.А. Вострикова
Эскизный проект приспособления памятника архитектуры на ул. Войкова, 23 в г. Томске под музей тактильных ощущений «Шаг в темноту». Автор: студентка Д.А. Вострикова
Эскизный проект приспособления памятника архитектуры на ул. Войкова, 23 в г. Томске под музей тактильных ощущений «Шаг в темноту». Автор: студентка Д.А. Вострикова
Эскизный проект приспособления памятника архитектуры на ул. Войкова, 23 в г. Томске под музей тактильных ощущений «Шаг в темноту». Автор: студентка Д.А. Вострикова
Эскизный проект приспособления памятника архитектуры на ул. Войкова, 23 в г. Томске под музей тактильных ощущений «Шаг в темноту». Автор: студентка Д.А. Вострикова
Эскизный проект приспособления памятника архитектуры на ул. Войкова, 23 в г. Томске под музей тактильных ощущений «Шаг в темноту». Автор: студентка Д.А. Вострикова
Эскизный проект приспособления памятника архитектуры на ул. Войкова, 23 в г. Томске под музей тактильных ощущений «Шаг в темноту». Автор: студентка Д.А. Вострикова
Эскизный проект приспособления памятника архитектуры на ул. Войкова, 23 в г. Томске под музей тактильных ощущений «Шаг в темноту». Автор: студентка Д.А. Вострикова
Эскизный проект приспособления памятника архитектуры на ул. Войкова, 23 в г. Томске под музей тактильных ощущений «Шаг в темноту». Автор: студентка Д.А. Вострикова
***