Размещено на портале Архи.ру (www.archi.ru)

10.05.2018

Связующее звено

Лилия Аронова
Объект:
ТРЦ «Золотой Вавилон Отрадное»
Адрес:
Россия, Москва. ул. Декабристов, д. 12
Мастерская:
Blank
Авторский коллектив:
Концепция: Лукаш Качмарчик
Руководитель проекта (Главный архитектор): Владимир Тихонов
Главный архитектор проекта: Горелов Андрей
Архитектор: Дарья Гузун
Архитектор: Илларион Комаров
Интерьер
Главный архитектор: Магдалена Кмита
Архитектор: Александра Разина

Мастерская Blank Architects переосмыслила внешний облик и внутреннее содержание торгового центра в Отрадном, превратив его в центр социальной жизни микрорайона.

ТРЦ «Золотой Вавилон Отрадное» © Blank Architects
ТРЦ «Золотой Вавилон Отрадное» © Blank Architects

Трудно переоценить значение крупного торгового комплекса для расположенных вокруг жилых массивов, особенно удаленных от городского центра. Такие комплексы давно уже не просто места для совершения покупок: жители окрестных районов выбираются сюда и кино посмотреть, и перекусить, и на коньках покататься, и детей развлечь, и просто «погулять» в выходной день всей семьей; количество – и качество – функций с каждым годом возрастает, так что подобные моллы все больше соответствуют модному термину «лайф-хаб». Что, кстати, счастливо совпадает с интересами владельцев торговых центров, чья цель – любыми средствами привлечь потенциального покупателя и задержать его в стенах молла как можно дольше.
ТРЦ «Золотой Вавилон Отрадное» © Blank Architects
ТРЦ «Золотой Вавилон Отрадное» © Blank Architects

ТРЦ «Золотой Вавилон» в Отрадном – отличный пример подобного феномена. Точнее, был бы им, если бы не вопиющее несоответствие морально и физически устаревшего здания новейшим требованиям общества. Расположенный в стратегически выгодном месте между парком и выходом и метро, в окружении плотной жилой застройки, ТРЦ не просто абсолютно игнорировал свое окружение, но и вовсе отгородился от него сплошным забором по всему периметру – даже главный вход надо было еще поискать. Так что первоочередной задачей, которую поставило перед собой бюро Blank Architects, получив задание на модернизацию и ребрендинг молла, стало открытие его городу, формирование привлекательной и проницаемой структуры.

Отдельную сложность составляло освоение устаревших конструкций из сборного железобетона, которые пришлось приспосабливать под новые функции. Объемные колонны по фасаду замаскировали те элементы существующего каркаса, которые невозможно было заменить. В рамках новой концепции была также пересмотрена система входов. Главный – тот, что рядом с выходом из метро, со стороны улицы Хачатуряна, – передвинули ближе к углу здания, к тому же приоткрыли этот угол за счет структуры фасада, так что он виден теперь и с улицы Декабристов, и разместили над ним большой светодиодный экран. Поскольку поток посетителей здесь максимальный, перед этим входом предлагается организовать пешеходную площадь со всеми необходимыми элементами благоустройства.
ТРЦ «Золотой Вавилон Отрадное» © Blank Architects. Изображение предоставлено пресс-службой «Москомархитектуры»
ТРЦ «Золотой Вавилон Отрадное» © Blank Architects. Изображение предоставлено пресс-службой «Москомархитектуры»

Второй вход – со стороны парковки – разумеется, сохранен, здесь также приподнята ткань фасада и размещен небольшой медиаэкран. Однако – и это одно из главных нововведений – проект Blank Architects предусматривает и возможность проникновения в торговый центр непосредственно из парка. Для этого архитекторы возводят лестницу сразу на второй этаж, к зоне фудкорта: ступени приводят на небольшую террасу, где расположатся летние столики ресторанов.

Кроме того, в здание можно будет попасть и через помещения кафетериев на первом этаже, имеющие сквозную планировку. Благодаря этому в торговый центр, очевидно, будут заходить люди, которые вроде бы и не планировали никаких покупок; а еще появится возможность купить стаканчик кофе просто на бегу, по дороге к метро.
ТРЦ «Золотой Вавилон Отрадное» © Blank Architects
ТРЦ «Золотой Вавилон Отрадное» © Blank Architects

«Главной темой фасада стала связь с природой, с соседним парком, – рассказывает архитектор Дарья Гузун. – Поэтому мы максимально приблизили его к экоархитектуре, построив оформление на элементах, отображающих природу». Верхний этаж, за счет консольного выступа образующий разной ширины козырек по трем основным фасадам, облицован бесцветными металлизированными панелями с перфорацией в виде треугольников – они воплощают образ листвы. Колористическая нейтральность позволяет, с одной стороны, слиться со средой, а с другой – отражает ландшафт, поскольку за счет геометрии идет постоянная игра света и тени. На нижнем уровне, то есть под «листвой», логично появляется тема дерева, древесных стволов – она прослеживается и в текстуре, и в цвете, и в форме деревянных вставок, перемежающихся с серыми алюминиевыми панелями и стеклянными витражами. В результате при известной фантазии в массиве торгового центра, ставшем теперь значительно легче и проницаемее даже на вид, можно увидеть прямое продолжение парка, образ компактной древесной рощи – не летней, конечно, а зимней, с обнажившимися стволами и укутанными снежным покрывалом кронами.
ТРЦ «Золотой Вавилон Отрадное» © Blank Architects
ТРЦ «Золотой Вавилон Отрадное» © Blank Architects

Верные своему принципу не ограничиваться периметром проектируемого объекта, Blank Architects не только разработали проект благоустройства непосредственно прилегающей к ТЦ территории, но и предложили заказчику на рассмотрение свои предложения по реновации парка, который, по их мнению, тоже мог бы стать значительно более современным и комфортным, чем это есть сейчас.

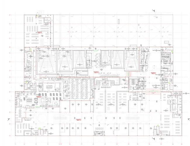
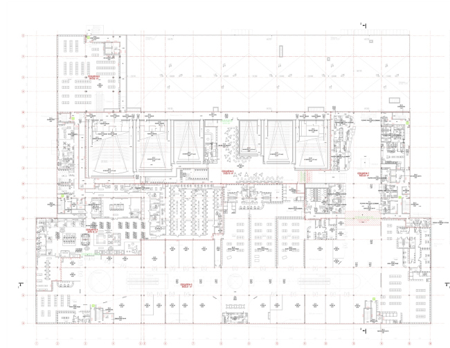
Существенно изменились внутренние планировки торгового центра. Главное нововведение – значительная часть второго этажа теперь отведена под центр «Мои документы», что делает объект совсем уж мультифункциональным. Несмотря на то что под МФЦ ушло около 2400 м2, сохраняются и гипермаркет, и бутики, фудкорт увеличивается почти в два раза, плюс архитекторам удалось разместить в торговой галерее множество небольших зон для отдыха: лавочки, мягкие зоны. где можно зарядить телефон, воспользоваться вай-фаем, встретиться с друзьями. Единое пространство торговой галереи перемежается атриумами со световыми фонарями; в части объема у здания появился третий этаж.

«В оформлении интерьера, – комментирует архитектор Александра Разина, – мы использовали очень тактильные экологичные материалы, такие как деревянные ламели, ковры, мягкие ткани. Здесь много светлых тонов и зелени, в том числе натуральной травы и деревьев, которые могут жить внутри помещений». В отличие от фасада, во внутреннем оформлении ТЦ появились и яркие цвета: фрагменты чистого зеленого или желтого оттенков фиксируют внимание на «ударных» элементах интерьера. Вместе с коллегами из норвежского бюро Bleed авторы проекта разрабатывали и айдентику нового бренда – вместе со старым обликом ТЦ перестанет существовать и название «Золотой Вавилон», – то есть осуществили полноценный ребрендинг, практически заново разработав формат торгового центра. Это новый этап в деятельности компании.
ТРЦ «Золотой Вавилон Отрадное». Интерьер © Blank Architects
ТРЦ «Золотой Вавилон Отрадное». Интерьер © Blank Architects

По мнению руководителя проекта Владимира Тихонова, расположение на стыке оживленных подземных и наземных магистралей, парка и микрорайона представляет собой и главную специфику, и основную сложность данного объекта. Теперь же обновленный торговый центр – уже получивший, кстати, премию Архсовета Москвы в номинации «Торговля», – не просто органично вписывается в свой разнообразный контекст, но и вполне может претендовать на роль своеобразного узла, где сходятся все эти «силовые линии», связующего звена между транспортными потоками, жилыми массивами и островком природы в многонаселенном районе мегаполиса.
 
ТРЦ «Золотой Вавилон Отрадное» © Blank Architects
ТРЦ «Золотой Вавилон Отрадное» © Blank Architects
ТРЦ «Золотой Вавилон Отрадное» © Blank Architects
ТРЦ «Золотой Вавилон Отрадное» © Blank Architects
ТРЦ «Золотой Вавилон Отрадное». Генплан © Blank Architects
ТРЦ «Золотой Вавилон Отрадное». Генплан © Blank Architects