Размещено на портале Архи.ру (www.archi.ru)

09.04.2018

Образ воздушных путешествий

Нина Фролова
Объект:
Офис в Дублине
Адрес:
Ирландия, None, Дублин.
Мастерская:
Powerhouse Company

Интерьер офисного здания в центре Дублина по проекту Powerhouse Company.

Офис в Дублине © Kim Zwarts
Офис в Дублине © Kim Zwarts

Голландцы Powerhouse Company создали интерьер для шестиэтажной постройки в центре ирландской столицы. Своего заказчика авторы проекта не называют, как и не раскрывают сумму бюджета, однако речь идет о новом офисном здании AerCap House – штаб-квартире крупнейшей лизинговой авиакомпании AerCap.
 
Офис в Дублине © Kim Zwarts
Офис в Дублине © Kim Zwarts

Однако архитекторы все же поясняют, что клиент связан с воздушными перевозками, и потому типичная для интерьеров самолетов «обтекаемость» перешла и в оформление офиса. Еще одним источником вдохновения стал модернизм середины века, когда мир пассажирской авиации был образцом качественного дизайна – и элегантности.
 
Офис в Дублине © Kim Zwarts
Офис в Дублине © Kim Zwarts

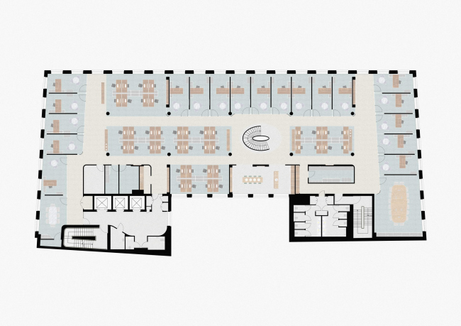
Общая площадь в 6500 м2 охватывает вестибюль, столовую, конференц-зал и спортзал (все на первом этаже), два этажа офисов со свободным планом, два – с помещениями вдоль фасадов, и завершающий, меньший по площади шестой этаж с кабинетами руководства компании.
 
Офис в Дублине © Kim Zwarts
Офис в Дублине © Kim Zwarts

Все этажи связывает лестница-спираль, обшитая черным деревом; использованы также и другие породы дерева, натуральный камень, белый терраццо и выполненное на заказ ковровое покрытие, чтобы его цвета вписались в задуманную колористическую схему. «Траншеи» для светодиодов и латунные профили подчеркивают обтекаемые линии интерьера. Архитекторов при этом интересовали не только декоративные детали, но и функциональные: их проект в итоге получил сертификат LEED Platinum.
Офис в Дублине © Kim Zwarts
Офис в Дублине © Kim Zwarts
Офис в Дублине © Kim Zwarts
Офис в Дублине © Kim Zwarts
Офис в Дублине © Powerhouse Company
Офис в Дублине © Powerhouse Company
Офис в Дублине © Powerhouse Company
Офис в Дублине © Powerhouse Company
Офис в Дублине © Powerhouse Company
Офис в Дублине © Powerhouse Company
Офис в Дублине © Powerhouse Company
Офис в Дублине © Powerhouse Company
Офис в Дублине © Powerhouse Company
Офис в Дублине © Powerhouse Company