Размещено на портале Архи.ру (www.archi.ru)

30.03.2018

Прозрачное жилище

Объект:
Дом La Casa del Desierto
Адрес:
Испания, Гранада, пустыня Горафе
Мастерская:
Larta Glass
Ofis
Авторский коллектив:
Rok Oman, Spela Videcnik

Дом из стекла La Casa del Desierto – экспериментальный проект компании Guardian Glass, архитекторов Ofis и инженеров AKT II и Transsolar в испанской пустыне.

La Casa del Desierto
La Casa del Desierto
Фотография © Gonzalo Botet /предоставлено Guardian Glass LLC

Компания Guardian Glass поставила цель показать на практике эффективность своей продукции даже в самом суровом климате. Поэтому местом строительства опытного жилища из стекла ее производства стала скалистая пустыня на юге Испании, близ города Горафе. Перепады температуры в течение суток и между сезонами, минимальная влажность и т.д. делают жизнь там настолько суровой, что до сих пор популярны вырубленные в скале или подобные им традиционные жилища. Однако Guardian Glass предложила для этой местности противоположный рукотворной пещере тип дома – полностью остекленную виллу, позволяющую любоваться эффектным ландшафтом со всех сторон, с обзором 360 градусов. Дом планируется сдавать в аренду одному или двум гостям на срок в одну неделю.
 
La Casa del Desierto
La Casa del Desierto
Фотография © Gonzalo Botet /предоставлено Guardian Glass LLC

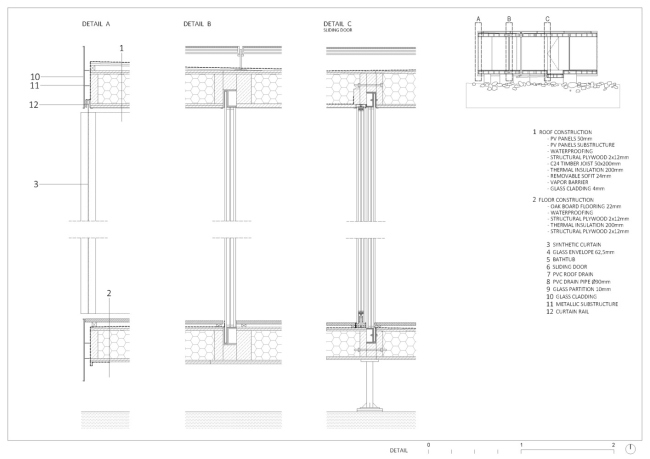
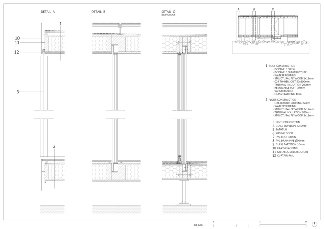
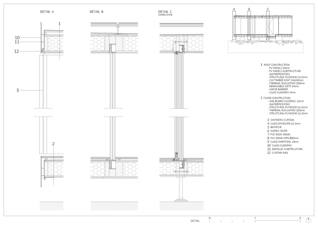
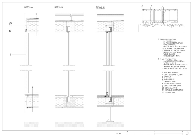
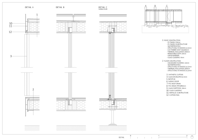
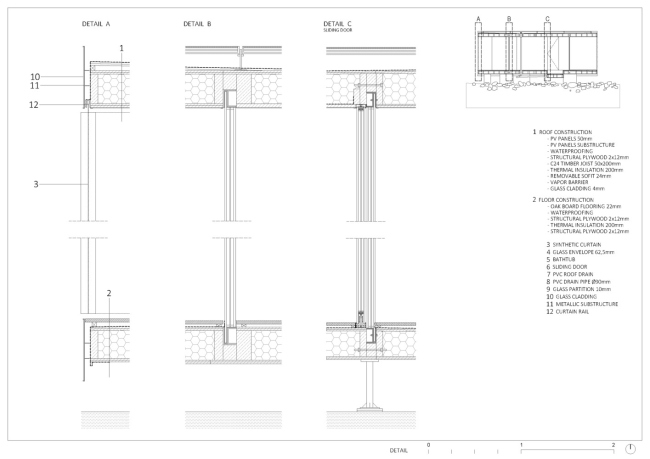
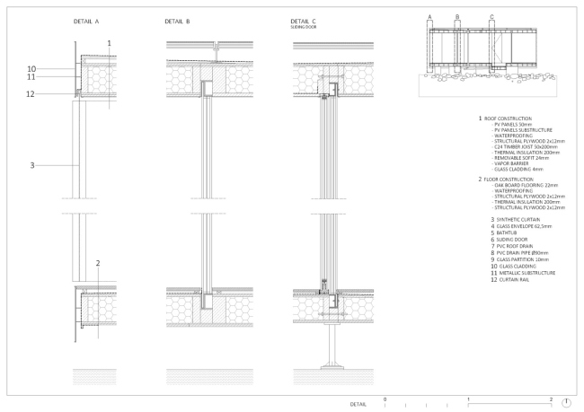
Полностью прозрачные фасады La Casa del Desierto выполнены из энергосберегающего стекла производства компании Guardian Glass: тройные стеклопакеты – это несущие стены, а остальная часть – это раздвижные системы. Основание и перекрытия дома сделаны из дерева. На общей площади в 20 м2 размещены три зоны: спальня, ванная и гостиная. Предусмотрены системы очистки воды и генерации электричества, а также блок фотоэлектрических элементов.
 
La Casa del Desierto
La Casa del Desierto
Фотография © Gonzalo Botet /предоставлено Guardian Glass LLC

Проект разрабатывали словенская архитектурная мастерская Ofis во главе с партнером Шпелой Видечник, специалисты Guardian Glass, инженеры AKT II и Transsolar. Целью сотрудничества был ответ на современные и грядущие задачи архитектуры и строительства и популяризация экологичных и энергоэффективных построек.
 
La Casa del Desierto
La Casa del Desierto
Фотография © Gonzalo Botet /предоставлено Guardian Glass LLC

Выбор типа стекла для ограждения того или иного пространства играл в проекте ключевую роль, демонстрируя возможность преобразить таким образом интерьер дома.
 
La Casa del Desierto
La Casa del Desierto
Фотография © Gonzalo Botet /предоставлено Guardian Glass LLC

Оконное остекление помогает экономить электроэнергию, улучшает тепло- и звукоизоляцию помещений и даже может сделать жилище безопаснее, защитив его от сильнейшего порыва ветра или взлома. Если остекление подобрано правильно, с учетом конкретных нужд в каждом из случаев, оно может сделать дом практичным и комфортным вне зависимости от того, где именно он расположен. Более того, компания Guardian Glass готова не просто предложить объемное портфолио стекла, но и предоставить детальные инструкции как на этапе проектирования, так и на протяжении всего строительства.
La Casa del Desierto
La Casa del Desierto
© OFIS arhitekti
La Casa del Desierto
La Casa del Desierto
© OFIS arhitekti
La Casa del Desierto
La Casa del Desierto
© OFIS arhitekti
La Casa del Desierto
La Casa del Desierto
© OFIS arhitekti
La Casa del Desierto
La Casa del Desierto
© OFIS arhitekti
La Casa del Desierto
La Casa del Desierto
© OFIS arhitekti
La Casa del Desierto
La Casa del Desierto
© OFIS arhitekti
La Casa del Desierto
La Casa del Desierto
© OFIS arhitekti
La Casa del Desierto
La Casa del Desierto
© OFIS arhitekti
La Casa del Desierto
La Casa del Desierto
© OFIS arhitekti
La Casa del Desierto
La Casa del Desierto
© OFIS arhitekti