Ðàçìåùåíî íà ïîðòàëå Àðõè.ðó (www.archi.ru)

28.03.2018

Ëåíòû è êîíñîëè

Íèíà Ôðîëîâà
Îáúåêò:
Óíèâåðñèòåò FOM – Äþññåëüäîðô
Àäðåñ:
Ãåðìàíèÿ, None, Äþññåëüäîðô.
Ìàñòåðñêàÿ:
J. Mayer H. und Partner

Çäàíèå óíèâåðñèòåò FOM â Äþññåëüäîðôå ïî ïðîåêòó áþðî J. Mayer H. und Partner.

Óíèâåðñèòåò FOM – Äþññåëüäîðô © David Franck
Óíèâåðñèòåò FOM – Äþññåëüäîðô © David Franck

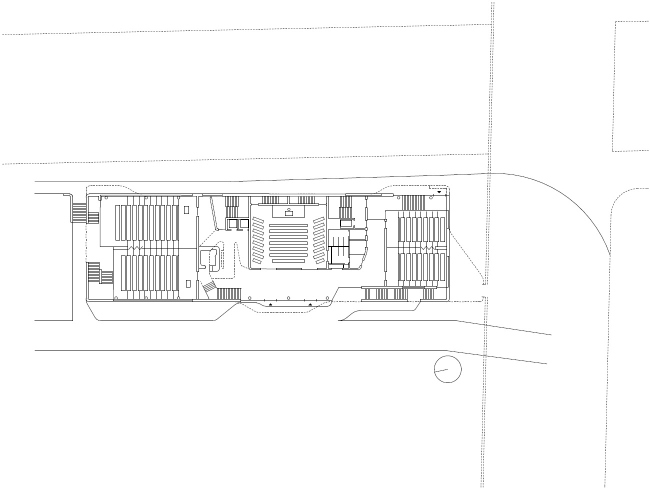
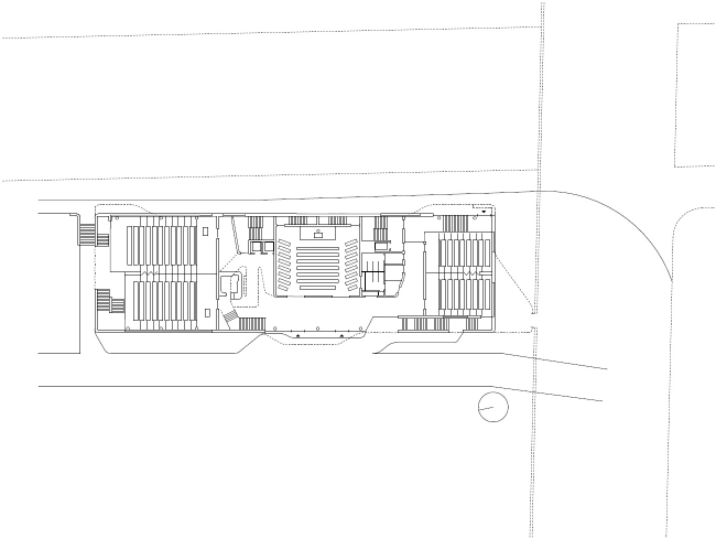
Óíèâåðñèòåò FOM ãîòîâèò, â îñíîâíîì, ñïåöèàëèñòîâ â ñôåðàõ áèçíåñà è èíæåíåðíîãî äåëà è áàçèðóåòñÿ â áîëåå ÷åì 24 ãîðîäàõ Ãåðìàíèè è çàðóáåæüÿ.  Äþññåëüäîðôå åãî íîâîå çäàíèå ïîÿâèëîñü â ïî÷òè çàâåðøåííîé çîíå ìíîãîôóíêöèîíàëüíîé çàñòðîéêè Le Quartier Central íà ìåñòå òîâàðíîé ñòàíöèè, â ðàéîíå Äåðåíäîðô áëèç öåíòðà ãîðîäà.
 
Óíèâåðñèòåò FOM – Äþññåëüäîðô © David Franck
Óíèâåðñèòåò FOM – Äþññåëüäîðô © David Franck

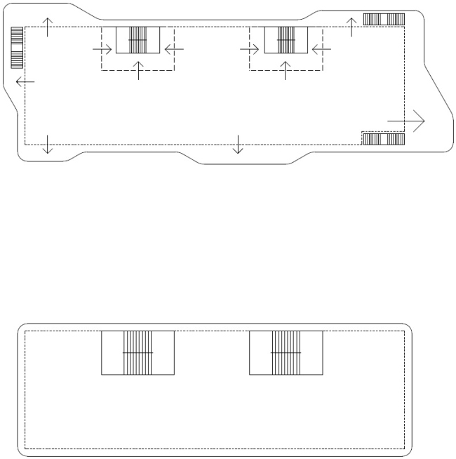
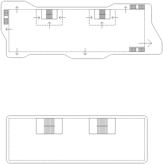
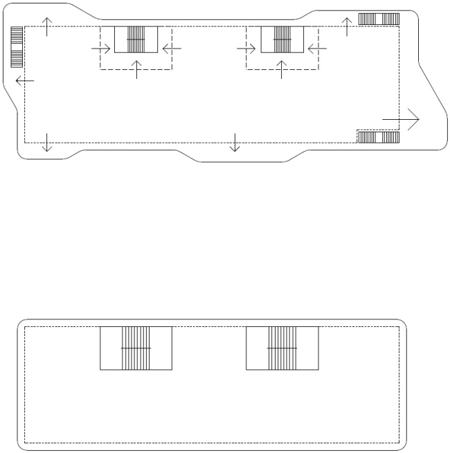
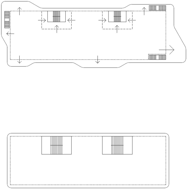
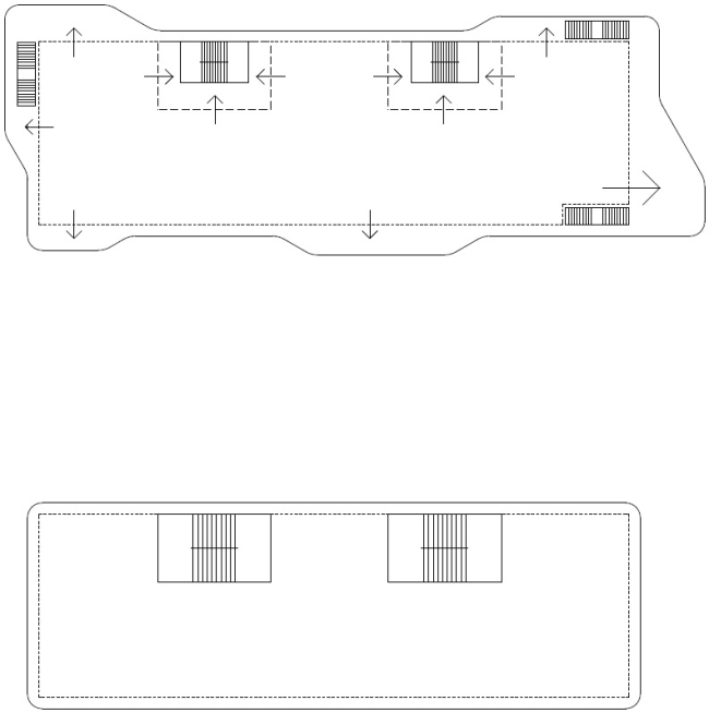
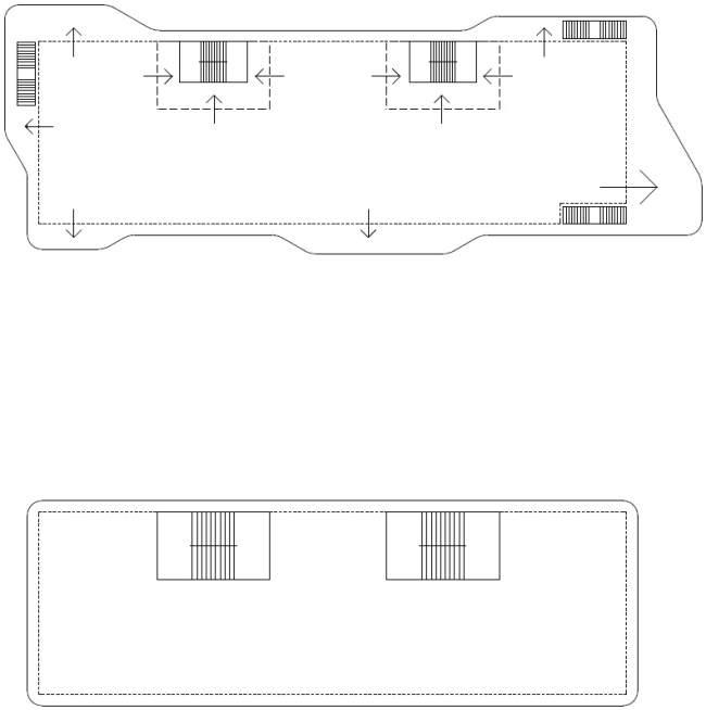
Ðàññ÷èòàííîå íà ïðèìåðíî ïîëòîðû òûñÿ÷è ñòóäåíòîâ çäàíèå (ïëîùàäü – 6 000 ì2) âäîõíîâëåíî ñâîèì êîíòåêñòîì – æåëåçíîäîðîæíûìè ïóòÿìè, ïóòåïðîâîäàìè, ëåñòíèöàìè è ïåøåõîäíûìè ïåðåõîäàìè. Åãî òåððàñû è áàëêîíû-êîíñîëè, êàê áóäòî ëåíòàìè îõâàòûâàþùèå îáúåì, ñîçäàþò ýôôåêòíûé îáëèê, à òàêæå – â ñî÷åòàíèè ñ íàðóæíûìè ëåñòíèöàìè – ñëóæàò ýôôåêòèâíûì ïóòåì ýâàêóàöèè. Òàê êàê ýòîò ïóòü íàõîäèòñÿ ñíàðóæè, ïëàíèðîâêó èíòåðüåðà óäàëîñü ñäåëàòü áîëåå êîìïàêòíîé è óäîáíîé.
 
Óíèâåðñèòåò FOM – Äþññåëüäîðô © David Franck
Óíèâåðñèòåò FOM – Äþññåëüäîðô © David Franck

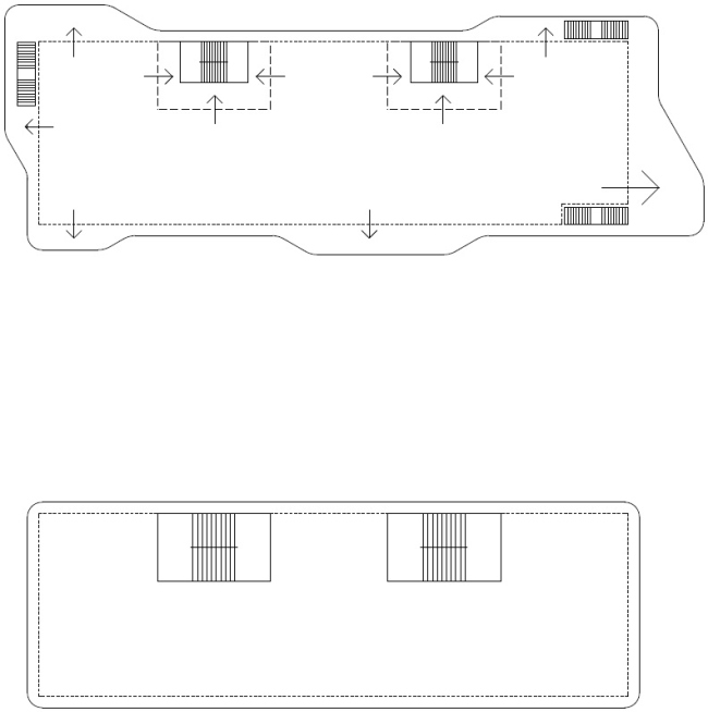
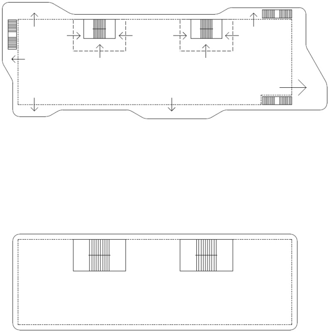
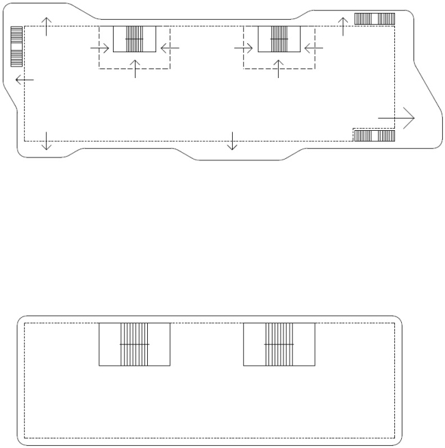
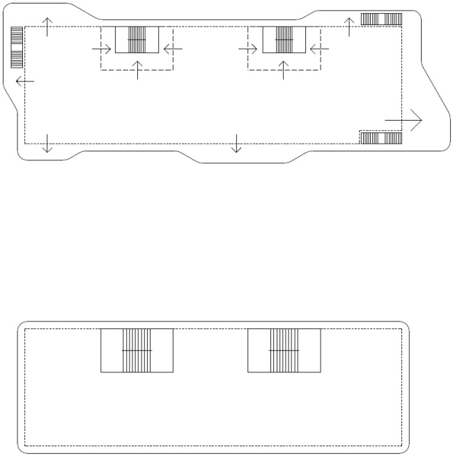
Íà óðîâíå âòîðîãî ýòàæà ìîñòèê ñîåäèíÿåò çäàíèå ñ ïðîõîäÿùèì ðÿäîì âèàäóêîì, ñîçäàâàÿ ñâÿçü ìåæäó ðàçíûìè óðîâíÿìè ãîðîäà.  èíòåðüåðå ãëàâíóþ ðîëü èãðàåò ëåñòíèöà, ñâÿçûâàþùàÿ âñå ÷åòûðå ýòàæà, êîòîðûå âìåùàþò ó÷åáíûå àóäèòîðèè. Îòäåëüíî, íà ïÿòîì, ðàçìåùåíû àäìèíèñòðàòèâíûå ïîìåùåíèÿ è èíôîðìàöèîííûé öåíòð äëÿ ñòóäåíòîâ. Âîêðóã ðàçáèò ïàðê ïëîùàäüþ 8 000 ì2, ïîä íèì óñòðîåí äâóõúÿðóñíûé ïîäçåìíûé ãàðàæ íà 360 ìàøèí.
Óíèâåðñèòåò FOM – Äþññåëüäîðô © David Franck
Óíèâåðñèòåò FOM – Äþññåëüäîðô © David Franck
Óíèâåðñèòåò FOM – Äþññåëüäîðô © David Franck
Óíèâåðñèòåò FOM – Äþññåëüäîðô © David Franck
Óíèâåðñèòåò FOM – Äþññåëüäîðô © David Franck
Óíèâåðñèòåò FOM – Äþññåëüäîðô © David Franck
Óíèâåðñèòåò FOM – Äþññåëüäîðô © David Franck
Óíèâåðñèòåò FOM – Äþññåëüäîðô © David Franck
Óíèâåðñèòåò FOM – Äþññåëüäîðô © David Franck
Óíèâåðñèòåò FOM – Äþññåëüäîðô © David Franck
Óíèâåðñèòåò FOM – Äþññåëüäîðô © David Franck
Óíèâåðñèòåò FOM – Äþññåëüäîðô © David Franck
Óíèâåðñèòåò FOM – Äþññåëüäîðô © David Franck
Óíèâåðñèòåò FOM – Äþññåëüäîðô © David Franck
Óíèâåðñèòåò FOM – Äþññåëüäîðô © David Franck
Óíèâåðñèòåò FOM – Äþññåëüäîðô © David Franck
Óíèâåðñèòåò FOM – Äþññåëüäîðô © David Franck
Óíèâåðñèòåò FOM – Äþññåëüäîðô © David Franck
Óíèâåðñèòåò FOM – Äþññåëüäîðô © David Franck
Óíèâåðñèòåò FOM – Äþññåëüäîðô © David Franck
Óíèâåðñèòåò FOM – Äþññåëüäîðô © David Franck
Óíèâåðñèòåò FOM – Äþññåëüäîðô © David Franck
Óíèâåðñèòåò FOM – Äþññåëüäîðô © David Franck
Óíèâåðñèòåò FOM – Äþññåëüäîðô © David Franck
Óíèâåðñèòåò FOM – Äþññåëüäîðô © David Franck
Óíèâåðñèòåò FOM – Äþññåëüäîðô © David Franck
Óíèâåðñèòåò FOM – Äþññåëüäîðô © Patricia Parinejad
Óíèâåðñèòåò FOM – Äþññåëüäîðô © Patricia Parinejad
Óíèâåðñèòåò FOM – Äþññåëüäîðô © Patricia Parinejad
Óíèâåðñèòåò FOM – Äþññåëüäîðô © Patricia Parinejad
Óíèâåðñèòåò FOM – Äþññåëüäîðô © Patricia Parinejad
Óíèâåðñèòåò FOM – Äþññåëüäîðô © Patricia Parinejad
Óíèâåðñèòåò FOM – Äþññåëüäîðô © David Franck
Óíèâåðñèòåò FOM – Äþññåëüäîðô © David Franck
Óíèâåðñèòåò FOM – Äþññåëüäîðô © David Franck
Óíèâåðñèòåò FOM – Äþññåëüäîðô © David Franck
Óíèâåðñèòåò FOM – Äþññåëüäîðô © David Franck
Óíèâåðñèòåò FOM – Äþññåëüäîðô © David Franck
Óíèâåðñèòåò FOM – Äþññåëüäîðô © J. MAYER H. und Partner, Architekten
Óíèâåðñèòåò FOM – Äþññåëüäîðô © J. MAYER H. und Partner, Architekten
Óíèâåðñèòåò FOM – Äþññåëüäîðô © J. MAYER H. und Partner, Architekten
Óíèâåðñèòåò FOM – Äþññåëüäîðô © J. MAYER H. und Partner, Architekten
Óíèâåðñèòåò FOM – Äþññåëüäîðô © J. MAYER H. und Partner, Architekten
Óíèâåðñèòåò FOM – Äþññåëüäîðô © J. MAYER H. und Partner, Architekten
Óíèâåðñèòåò FOM – Äþññåëüäîðô © J. MAYER H. und Partner, Architekten
Óíèâåðñèòåò FOM – Äþññåëüäîðô © J. MAYER H. und Partner, Architekten
Óíèâåðñèòåò FOM – Äþññåëüäîðô © J. MAYER H. und Partner, Architekten
Óíèâåðñèòåò FOM – Äþññåëüäîðô © J. MAYER H. und Partner, Architekten
Óíèâåðñèòåò FOM – Äþññåëüäîðô © J. MAYER H. und Partner, Architekten
Óíèâåðñèòåò FOM – Äþññåëüäîðô © J. MAYER H. und Partner, Architekten