Размещено на портале Архи.ру (www.archi.ru)

26.03.2018

Глазурь на фасадах

Нина Фролова
Объект:
Социальное жилье и социальная столовая в Париже
Адрес:
Франция, None, Париж.
Мастерская:
Périphériques

Социальный комплекс из квартир и столовой в Париже по проекту Périphériques Architectes.

Социальное жилье и социальная столовая в Париже © Luc Boegly
Социальное жилье и социальная столовая в Париже © Luc Boegly

Комплекс между улицами Лоррен и Криме, недалеко от парка Ла-Виллетт, должен был появиться вместо существующей жилой застройки. Архитекторы, однако, решили сохранить каркас одного из корпусов конца 1970-х (при этом был полностью удален асбест), а вместо другого – все же возвести полностью новый, достигающий в самой высокой точке восьми этажей (старый и новый корпуса объединены). Сохранен и реконструирован внутренний двор в центре квартала. Построены также двухъярусный жилой блок и одноэтажное здание социальной столовой, получившее фасад из черного металла и засаженную высокими травами крышу.
 
Социальное жилье и социальная столовая в Париже © Luc Boegly
Социальное жилье и социальная столовая в Париже © Luc Boegly

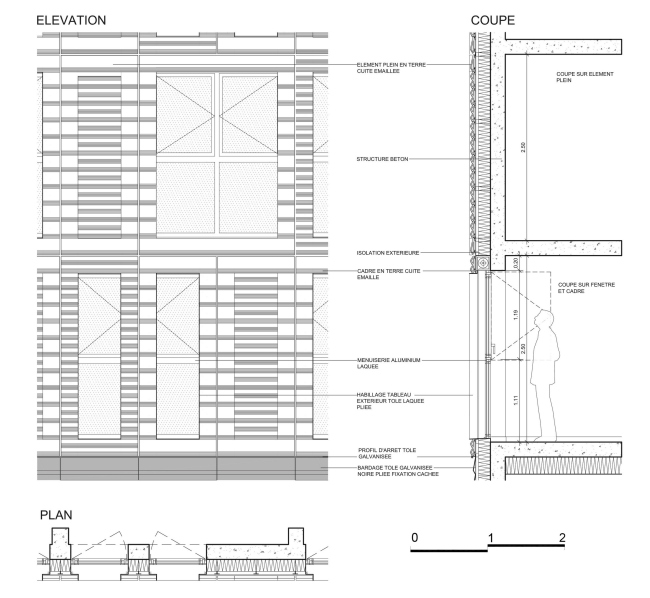
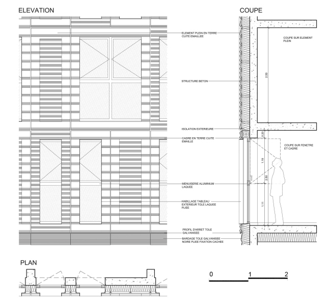
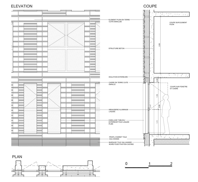
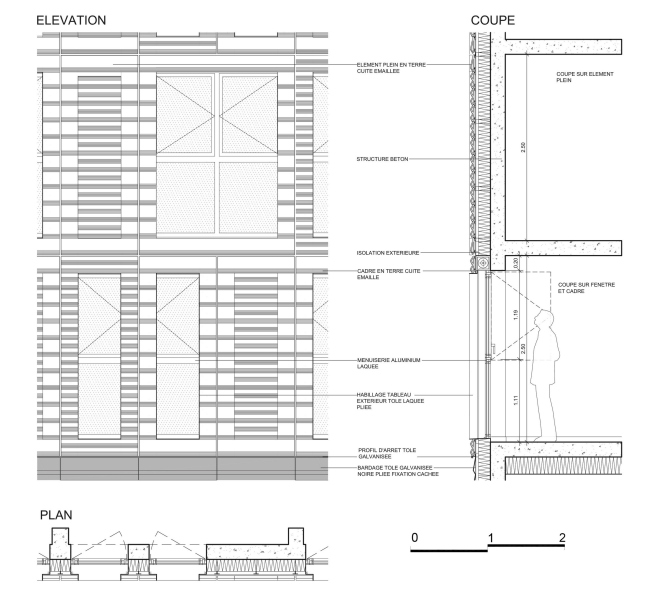
Остальные части нового комплекса облицованы керамическими панелями с радужной глазурью – трех типов рельефа, выполненных в двух цветах – голубом и желтом. Такой декор бюро Périphériques применяет не впервые: среди их работ уже есть парижский комплекс доступного жилья с переливчатой глазурованной плиткой на фасадах, где, впрочем, она сочетается с другими материалами. На улице Лоррен сложная фактура и колорит фасадов обусловлены большим количеством окон: 350 проемов на 173 квартир-студий иначе создали бы очень монотонное впечатление.
 
Социальное жилье и социальная столовая в Париже © Luc Boegly
Социальное жилье и социальная столовая в Париже © Luc Boegly

Каждая студия состоит из жилого пространства и блока при входе – из ванной, кухни и кладовки, чтобы собственно комната была свободней и получала максимум солнечного света. Меблировка светлых тонов из простых материалов придает интерьеру сдержанность, что облегчает его «обживание». Общие зоны на первом этаже и коридоры выше получили полы из разноцветной плитки, столовая – из черно-белой. В комплексе предусмотрены прачечная, переговорная, административные помещения, общая комната: они остеклены и позволяют прохожим заглянуть внутрь постройки.

Общая площадь комплекса – 5229 м2, бюджет – 11,7 млн евро.
Социальное жилье и социальная столовая в Париже © Luc Boegly
Социальное жилье и социальная столовая в Париже © Luc Boegly
Социальное жилье и социальная столовая в Париже © Luc Boegly
Социальное жилье и социальная столовая в Париже © Luc Boegly
Социальное жилье и социальная столовая в Париже © Luc Boegly
Социальное жилье и социальная столовая в Париже © Luc Boegly
Социальное жилье и социальная столовая в Париже © Luc Boegly
Социальное жилье и социальная столовая в Париже © Luc Boegly
Социальное жилье и социальная столовая в Париже © Luc Boegly
Социальное жилье и социальная столовая в Париже © Luc Boegly
Социальное жилье и социальная столовая в Париже © Luc Boegly
Социальное жилье и социальная столовая в Париже © Luc Boegly
Социальное жилье и социальная столовая в Париже © Luc Boegly
Социальное жилье и социальная столовая в Париже © Luc Boegly
Социальное жилье и социальная столовая в Париже © Luc Boegly
Социальное жилье и социальная столовая в Париже © Luc Boegly
Социальное жилье и социальная столовая в Париже © Luc Boegly
Социальное жилье и социальная столовая в Париже © Luc Boegly
Социальное жилье и социальная столовая в Париже © Luc Boegly
Социальное жилье и социальная столовая в Париже © Luc Boegly
Социальное жилье и социальная столовая в Париже © Luc Boegly
Социальное жилье и социальная столовая в Париже © Luc Boegly
Социальное жилье и социальная столовая в Париже © Luc Boegly
Социальное жилье и социальная столовая в Париже © Luc Boegly
Социальное жилье и социальная столовая в Париже © Luc Boegly
Социальное жилье и социальная столовая в Париже © Luc Boegly
Социальное жилье и социальная столовая в Париже © Luc Boegly
Социальное жилье и социальная столовая в Париже © Luc Boegly
Социальное жилье и социальная столовая в Париже © Luc Boegly
Социальное жилье и социальная столовая в Париже © Luc Boegly
Социальное жилье и социальная столовая в Париже © Luc Boegly
Социальное жилье и социальная столовая в Париже © Luc Boegly
Социальное жилье и социальная столовая в Париже © Luc Boegly
Социальное жилье и социальная столовая в Париже © Luc Boegly
Социальное жилье и социальная столовая в Париже © Luc Boegly
Социальное жилье и социальная столовая в Париже © Luc Boegly
Социальное жилье и социальная столовая в Париже © Luc Boegly
Социальное жилье и социальная столовая в Париже © Luc Boegly
Социальное жилье и социальная столовая в Париже © Luc Boegly
Социальное жилье и социальная столовая в Париже © Luc Boegly
Социальное жилье и социальная столовая в Париже © Luc Boegly
Социальное жилье и социальная столовая в Париже © Luc Boegly
Социальное жилье и социальная столовая в Париже © Luc Boegly
Социальное жилье и социальная столовая в Париже © Luc Boegly
Социальное жилье и социальная столовая в Париже © Luc Boegly
Социальное жилье и социальная столовая в Париже © Luc Boegly
Социальное жилье и социальная столовая в Париже © Luc Boegly
Социальное жилье и социальная столовая в Париже © Luc Boegly
Социальное жилье и социальная столовая в Париже © Luc Boegly
Социальное жилье и социальная столовая в Париже © Luc Boegly
Социальное жилье и социальная столовая в Париже © Luc Boegly
Социальное жилье и социальная столовая в Париже © Luc Boegly
Социальное жилье и социальная столовая в Париже © Luc Boegly
Социальное жилье и социальная столовая в Париже © Luc Boegly
Социальное жилье и социальная столовая в Париже © Luc Boegly
Социальное жилье и социальная столовая в Париже © Luc Boegly
Социальное жилье и социальная столовая в Париже © Luc Boegly
Социальное жилье и социальная столовая в Париже © Luc Boegly
Социальное жилье и социальная столовая в Париже © Luc Boegly
Социальное жилье и социальная столовая в Париже © Luc Boegly
Социальное жилье и социальная столовая в Париже © Luc Boegly
Социальное жилье и социальная столовая в Париже © Luc Boegly
Социальное жилье и социальная столовая в Париже © Luc Boegly
Социальное жилье и социальная столовая в Париже © Luc Boegly
Социальное жилье и социальная столовая в Париже © Luc Boegly
Социальное жилье и социальная столовая в Париже © Luc Boegly
Социальное жилье и социальная столовая в Париже © Luc Boegly
Социальное жилье и социальная столовая в Париже © Luc Boegly
Социальное жилье и социальная столовая в Париже © Luc Boegly
Социальное жилье и социальная столовая в Париже © Luc Boegly
Социальное жилье и социальная столовая в Париже © Luc Boegly
Социальное жилье и социальная столовая в Париже © Luc Boegly
Социальное жилье и социальная столовая в Париже © Périphériques Architectes
Социальное жилье и социальная столовая в Париже © Périphériques Architectes
Социальное жилье и социальная столовая в Париже © Périphériques Architectes
Социальное жилье и социальная столовая в Париже © Périphériques Architectes
Социальное жилье и социальная столовая в Париже © Périphériques Architectes
Социальное жилье и социальная столовая в Париже © Périphériques Architectes
Социальное жилье и социальная столовая в Париже © Périphériques Architectes
Социальное жилье и социальная столовая в Париже © Périphériques Architectes
Социальное жилье и социальная столовая в Париже © Périphériques Architectes
Социальное жилье и социальная столовая в Париже © Périphériques Architectes
Социальное жилье и социальная столовая в Париже © Périphériques Architectes
Социальное жилье и социальная столовая в Париже © Périphériques Architectes
Социальное жилье и социальная столовая в Париже © Périphériques Architectes
Социальное жилье и социальная столовая в Париже © Périphériques Architectes
Социальное жилье и социальная столовая в Париже © Périphériques Architectes
Социальное жилье и социальная столовая в Париже © Périphériques Architectes
Социальное жилье и социальная столовая в Париже © Périphériques Architectes
Социальное жилье и социальная столовая в Париже © Périphériques Architectes
Социальное жилье и социальная столовая в Париже © Périphériques Architectes
Социальное жилье и социальная столовая в Париже © Périphériques Architectes
Социальное жилье и социальная столовая в Париже © Périphériques Architectes
Социальное жилье и социальная столовая в Париже © Périphériques Architectes
Социальное жилье и социальная столовая в Париже © Périphériques Architectes
Социальное жилье и социальная столовая в Париже © Périphériques Architectes
Социальное жилье и социальная столовая в Париже © Périphériques Architectes
Социальное жилье и социальная столовая в Париже © Périphériques Architectes
Социальное жилье и социальная столовая в Париже © Périphériques Architectes
Социальное жилье и социальная столовая в Париже © Périphériques Architectes
Социальное жилье и социальная столовая в Париже © Périphériques Architectes
Социальное жилье и социальная столовая в Париже © Périphériques Architectes
Социальное жилье и социальная столовая в Париже © Périphériques Architectes
Социальное жилье и социальная столовая в Париже © Périphériques Architectes