Размещено на портале Архи.ру (www.archi.ru)

19.03.2018

Ужин на террасах

Нина Фролова
Объект:
Комплекс ресторанов Kanda Terrace
Адрес:
Япония, None, Токио.
Мастерская:
Akira Koyama + Key Operation Inc. / Architects

Комплекс ресторанов в центре Токио по проекту Akira Koyama + Key Operation Inc. / Architects.

Комплекс ресторанов Kanda Terrace. Фото © Shigeo Ogawa
Комплекс ресторанов Kanda Terrace. Фото © Shigeo Ogawa

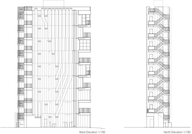
Здание Kanda Terrace построено в самом центре Токио, в районе Тиёда. Оно принадлежит к распространенной в городе типологии – многоярусному комплексу ресторанов, где каждое заведение занимает свой этаж.
 
Комплекс ресторанов Kanda Terrace. Фото © Shigeo Ogawa
Комплекс ресторанов Kanda Terrace. Фото © Shigeo Ogawa

Целью архитекторов было создать постройку – заметную часть городской среды, интересную с точки зрения пешехода, который сразу сможет ее опознать как «объект общепита». Задачу усложнял узкий и длинный участок, с трех сторон ограниченный улицами.
 
Комплекс ресторанов Kanda Terrace. Фото © Shigeo Ogawa
Комплекс ресторанов Kanda Terrace. Фото © Shigeo Ogawa

Выходом стало устройство террас: они сделали главный фасад раскрытым городу и одновременно «впустили» мегаполис внутрь. У каждого ресторана теперь есть открытая площадка, откуда можно видеть и соседние террасы, и уличную жизнь. Также проницаемости способствует остекление фасадов.
Комплекс ресторанов Kanda Terrace. Фото © Shigeo Ogawa
Комплекс ресторанов Kanda Terrace. Фото © Shigeo Ogawa
Комплекс ресторанов Kanda Terrace. Фото © Shigeo Ogawa
Комплекс ресторанов Kanda Terrace. Фото © Shigeo Ogawa
Комплекс ресторанов Kanda Terrace. Фото © Shigeo Ogawa
Комплекс ресторанов Kanda Terrace. Фото © Shigeo Ogawa
Комплекс ресторанов Kanda Terrace. Фото © Shigeo Ogawa
Комплекс ресторанов Kanda Terrace. Фото © Shigeo Ogawa
Комплекс ресторанов Kanda Terrace. Фото © Shigeo Ogawa
Комплекс ресторанов Kanda Terrace. Фото © Shigeo Ogawa
Комплекс ресторанов Kanda Terrace. Фото © Shigeo Ogawa
Комплекс ресторанов Kanda Terrace. Фото © Shigeo Ogawa
Комплекс ресторанов Kanda Terrace. Фото © Shigeo Ogawa
Комплекс ресторанов Kanda Terrace. Фото © Shigeo Ogawa
Комплекс ресторанов Kanda Terrace. Фото © Shigeo Ogawa
Комплекс ресторанов Kanda Terrace. Фото © Shigeo Ogawa
Комплекс ресторанов Kanda Terrace. Фото © Shigeo Ogawa
Комплекс ресторанов Kanda Terrace. Фото © Shigeo Ogawa
Комплекс ресторанов Kanda Terrace. Фото © Shigeo Ogawa
Комплекс ресторанов Kanda Terrace. Фото © Shigeo Ogawa
Комплекс ресторанов Kanda Terrace. Фото © Shigeo Ogawa
Комплекс ресторанов Kanda Terrace. Фото © Shigeo Ogawa
Комплекс ресторанов Kanda Terrace © Akira Koyama + Key Operation Inc. / Architects
Комплекс ресторанов Kanda Terrace © Akira Koyama + Key Operation Inc. / Architects
Комплекс ресторанов Kanda Terrace © Akira Koyama + Key Operation Inc. / Architects
Комплекс ресторанов Kanda Terrace © Akira Koyama + Key Operation Inc. / Architects
Комплекс ресторанов Kanda Terrace © Akira Koyama + Key Operation Inc. / Architects
Комплекс ресторанов Kanda Terrace © Akira Koyama + Key Operation Inc. / Architects
Комплекс ресторанов Kanda Terrace © Akira Koyama + Key Operation Inc. / Architects
Комплекс ресторанов Kanda Terrace © Akira Koyama + Key Operation Inc. / Architects
Комплекс ресторанов Kanda Terrace © Akira Koyama + Key Operation Inc. / Architects
Комплекс ресторанов Kanda Terrace © Akira Koyama + Key Operation Inc. / Architects
Комплекс ресторанов Kanda Terrace © Akira Koyama + Key Operation Inc. / Architects
Комплекс ресторанов Kanda Terrace © Akira Koyama + Key Operation Inc. / Architects
Комплекс ресторанов Kanda Terrace © Akira Koyama + Key Operation Inc. / Architects
Комплекс ресторанов Kanda Terrace © Akira Koyama + Key Operation Inc. / Architects