Размещено на портале Архи.ру (www.archi.ru)

16.03.2018

Бетонное кружево

Нина Фролова
Объект:
Дворец правосудия в Кордове
Адрес:
Испания, None, Кордова_.
Мастерская:
Mecanoo

Дворец правосудия в Кордове по проекту бюро Mecanoo.

Дворец правосудия в Кордове © Fernando Alda
Дворец правосудия в Кордове © Fernando Alda

Здание городского суда расположено в новом районе, плотно застроенном в 2000-е годы жилыми корпусами. Они не слишком оригинальны, однако это плотная и связная застройка, которой лишь не хватает качественных общественных пространств и «идентичности». Этот дефицит и должен восполнить проект Mecanoo.
 
Дворец правосудия в Кордове © Fernando Alda
Дворец правосудия в Кордове © Fernando Alda

Светлые фасады с «кружевными» проемами – ответ и на жаркий климат Андалусии, и на местные архитектурные традиции, исламские и испанские. Объем здания прорезан узкими «трещинами», которые как патио приносят естественное освещение и вентиляцию в центр постройки, а также придают ей сходство с историческим городом, его органическими, асимметричными объемами – как в центре Кордовы.
 
Дворец правосудия в Кордове © Fernando Alda
Дворец правосудия в Кордове © Fernando Alda

Здание приподнято над уровнем улицы на два метра, чтобы обеспечить безопасность – в том числе, в патио. К главному входу поэтому ведет просторный пандус, как будто поверхность площади перед ним поднимается навстречу постройке. Также устроены несколько других входов, так как разные части Дворца правосудия обладают значительной автономией.
 
Дворец правосудия в Кордове © Fernando Alda
Дворец правосудия в Кордове © Fernando Alda

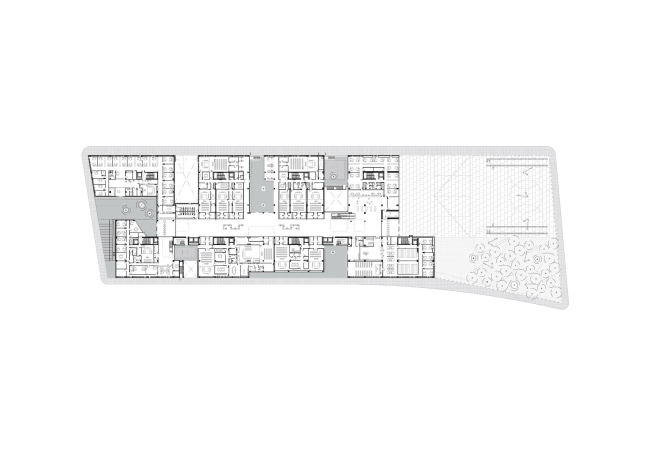
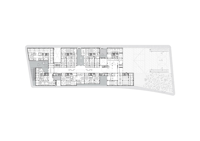
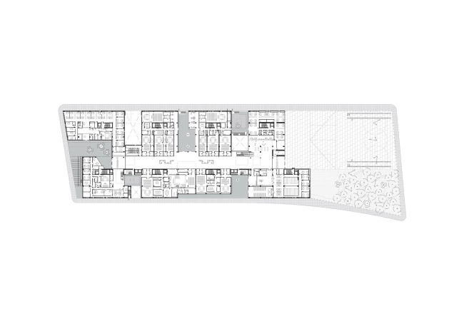
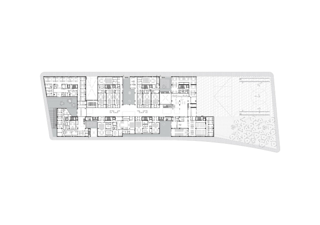
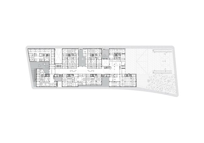
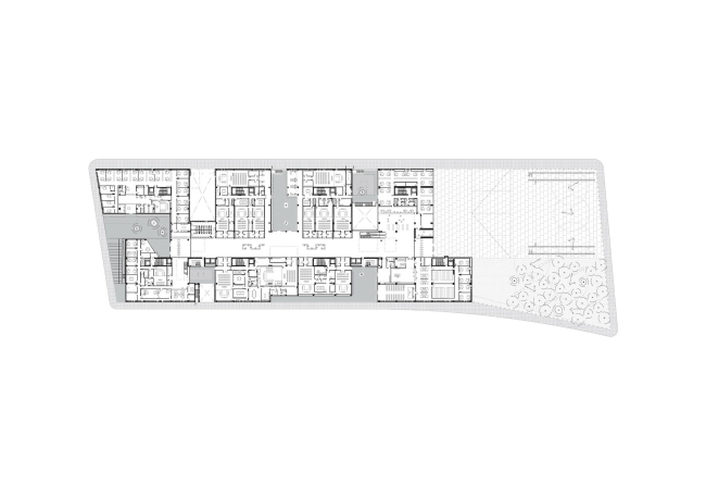
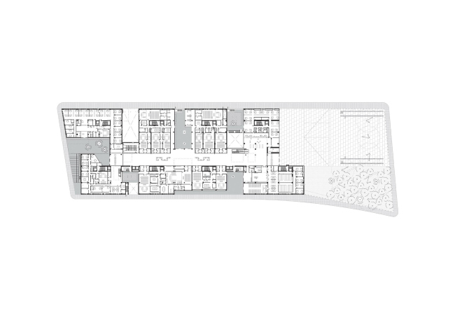
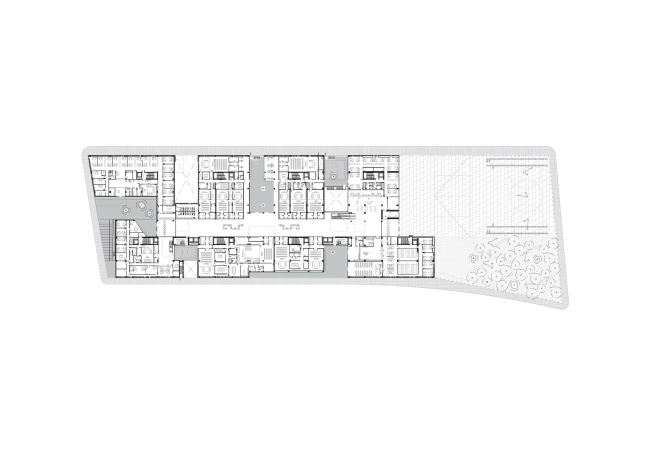
Планировка повторяет внешнюю композицию: вдоль здания идет основная ось-коридор, куда выходят световые колодцы-атриумы. Общественные функции (залы судебных заседаний, зал для регистрации браков, кафе) расположены на первом этаже, помещения с высокими требованиями по безопасности – на верхних ярусах, камеры для подсудимых и архив – в подвале.
Дворец правосудия в Кордове © Fernando Alda
Дворец правосудия в Кордове © Fernando Alda
Дворец правосудия в Кордове © Fernando Alda
Дворец правосудия в Кордове © Fernando Alda
Дворец правосудия в Кордове © Fernando Alda
Дворец правосудия в Кордове © Fernando Alda
Дворец правосудия в Кордове © Fernando Alda
Дворец правосудия в Кордове © Fernando Alda
Дворец правосудия в Кордове © Fernando Alda
Дворец правосудия в Кордове © Fernando Alda
Дворец правосудия в Кордове © Fernando Alda
Дворец правосудия в Кордове © Fernando Alda
Дворец правосудия в Кордове © Fernando Alda
Дворец правосудия в Кордове © Fernando Alda
Дворец правосудия в Кордове © Fernando Alda
Дворец правосудия в Кордове © Fernando Alda
Дворец правосудия в Кордове © Fernando Alda
Дворец правосудия в Кордове © Fernando Alda
Дворец правосудия в Кордове © Fernando Alda
Дворец правосудия в Кордове © Fernando Alda
Дворец правосудия в Кордове © Fernando Alda
Дворец правосудия в Кордове © Fernando Alda
Дворец правосудия в Кордове © Fernando Alda
Дворец правосудия в Кордове © Fernando Alda
Дворец правосудия в Кордове © Fernando Alda
Дворец правосудия в Кордове © Fernando Alda
Дворец правосудия в Кордове © Fernando Alda
Дворец правосудия в Кордове © Fernando Alda
Дворец правосудия в Кордове © Fernando Alda
Дворец правосудия в Кордове © Fernando Alda
Дворец правосудия в Кордове © Fernando Alda
Дворец правосудия в Кордове © Fernando Alda
Дворец правосудия в Кордове © Fernando Alda
Дворец правосудия в Кордове © Fernando Alda
Дворец правосудия в Кордове © Fernando Alda
Дворец правосудия в Кордове © Fernando Alda
Дворец правосудия в Кордове © Fernando Alda
Дворец правосудия в Кордове © Fernando Alda
Дворец правосудия в Кордове © Mecanoo Architecten
Дворец правосудия в Кордове © Mecanoo Architecten
Дворец правосудия в Кордове © Mecanoo Architecten
Дворец правосудия в Кордове © Mecanoo Architecten
Дворец правосудия в Кордове © Mecanoo Architecten
Дворец правосудия в Кордове © Mecanoo Architecten
Дворец правосудия в Кордове © Mecanoo Architecten
Дворец правосудия в Кордове © Mecanoo Architecten
Дворец правосудия в Кордове © Mecanoo Architecten
Дворец правосудия в Кордове © Mecanoo Architecten
Дворец правосудия в Кордове © Mecanoo Architecten
Дворец правосудия в Кордове © Mecanoo Architecten
Дворец правосудия в Кордове © Mecanoo Architecten
Дворец правосудия в Кордове © Mecanoo Architecten
Дворец правосудия в Кордове © Mecanoo Architecten
Дворец правосудия в Кордове © Mecanoo Architecten
Дворец правосудия в Кордове © Mecanoo Architecten
Дворец правосудия в Кордове © Mecanoo Architecten
Дворец правосудия в Кордове © Mecanoo Architecten
Дворец правосудия в Кордове © Mecanoo Architecten
Дворец правосудия в Кордове © Mecanoo Architecten
Дворец правосудия в Кордове © Mecanoo Architecten
Дворец правосудия в Кордове © Mecanoo Architecten
Дворец правосудия в Кордове © Mecanoo Architecten
Дворец правосудия в Кордове © Mecanoo Architecten
Дворец правосудия в Кордове © Mecanoo Architecten