Размещено на портале Архи.ру (www.archi.ru)

12.03.2018

Нотный стан на фасаде

Нина Фролова
Объект:
Онкологический центр Мэгги больницы Сент-Бартоломью
Адрес:
Великобритания, None, Лондон.

Онкологический центр Мэгги по проекту Стивена Холла в старейшей лондонской больнице – Сент-Бартоломью.

Онкологический центр Мэгги больницы Сент-Бартоломью © Iwan Baan
Онкологический центр Мэгги больницы Сент-Бартоломью © Iwan Baan

Центры Мэгги, благотворительный проект Чарльза Дженкса, строятся при больницах Великобритании с крупнейшими онкологическими отделениями, чтобы дополнить их функционал психологической и информационной поддержкой пациентов и их близких. Проекты бесплатно выполняют видные архитекторы, включая Фрэнка Гери, Рема Колхаса, Нормана Фостера и Ричарда Роджерса, причем их общая цель – создать «домашнее», безопасное пространство, противоположность безликим больничным коридорам. Там желающие могут выпить чаю, получить консультацию диетолога, психолога и т.д., поучаствовать в занятии йогой или просто отдохнуть.
 
Онкологический центр Мэгги больницы Сент-Бартоломью © Iwan Baan
Онкологический центр Мэгги больницы Сент-Бартоломью © Iwan Baan

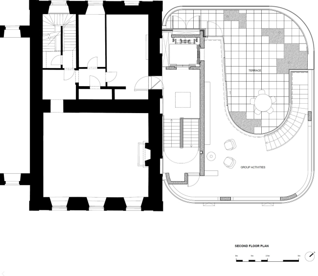
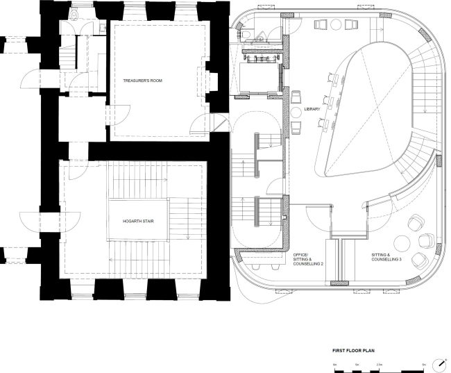
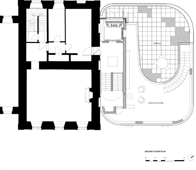
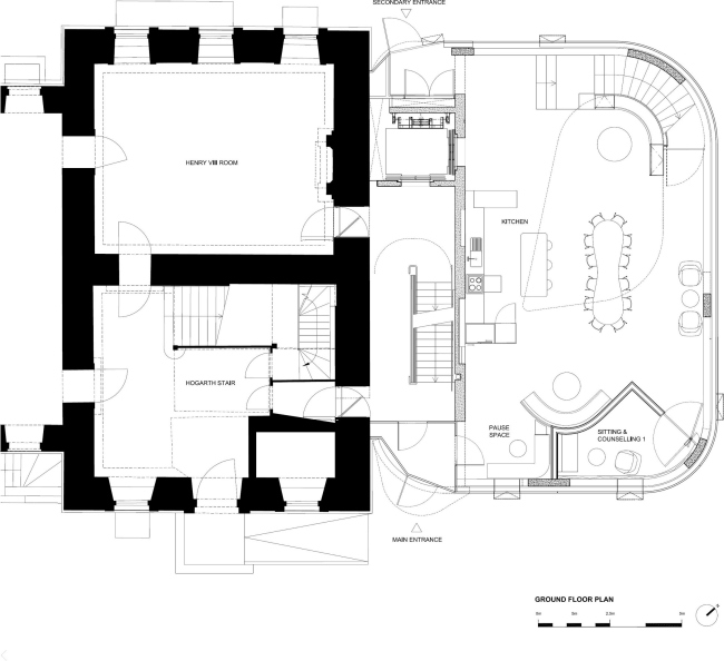
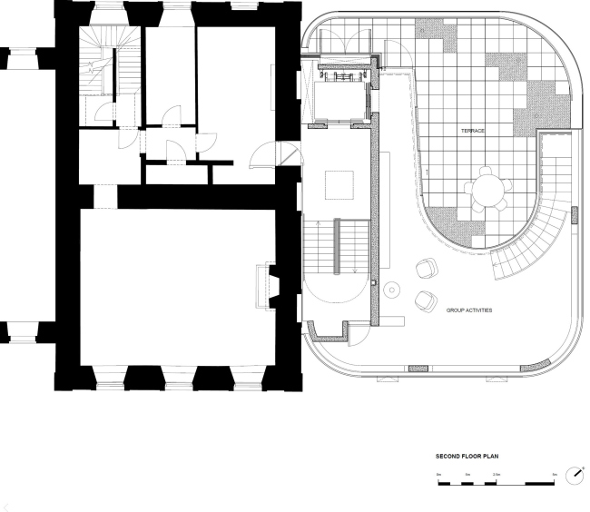
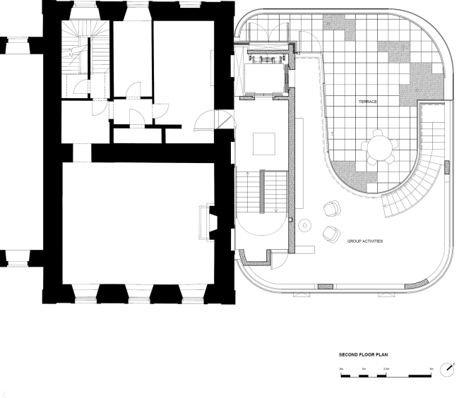
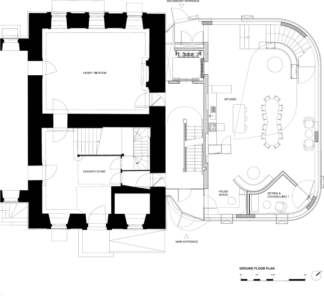
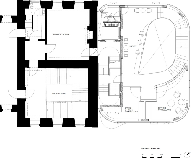
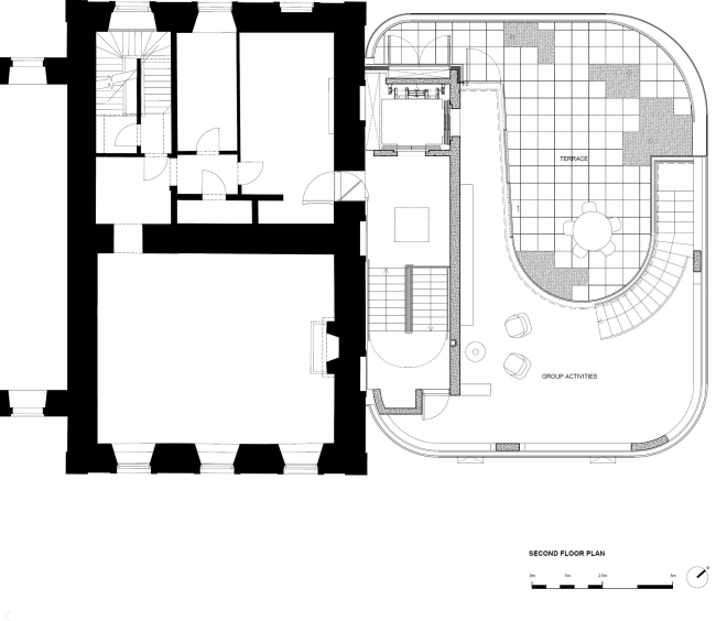
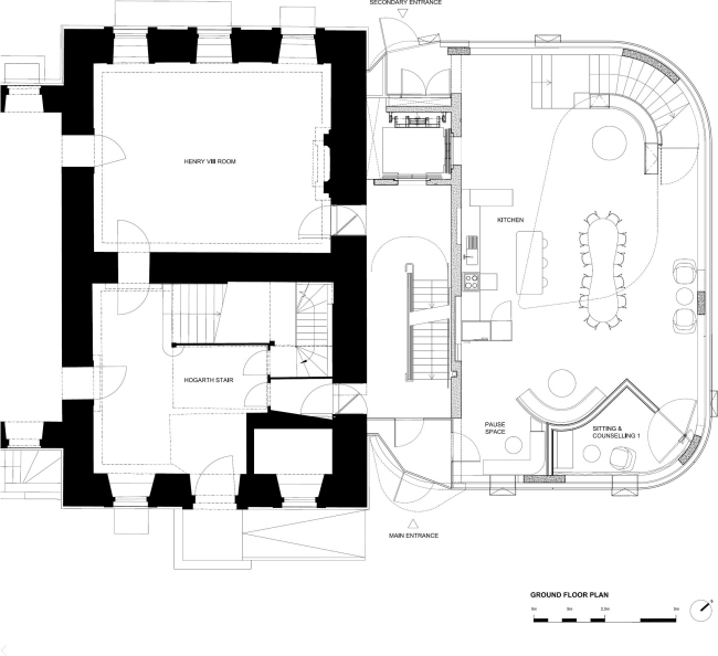
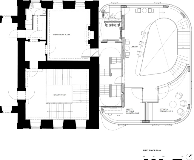
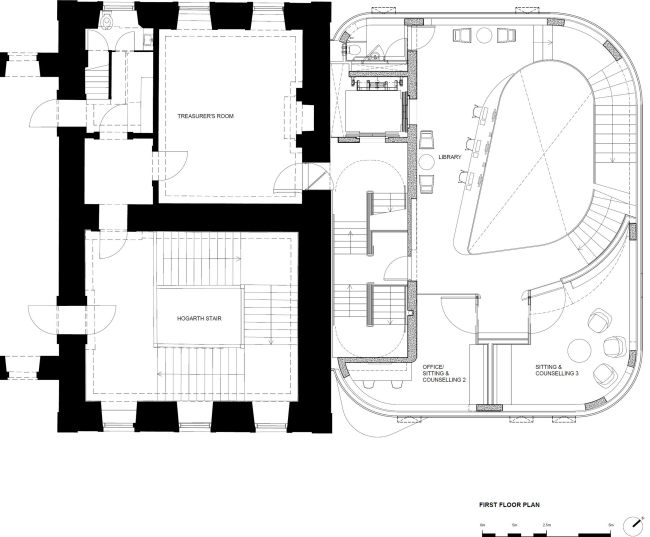
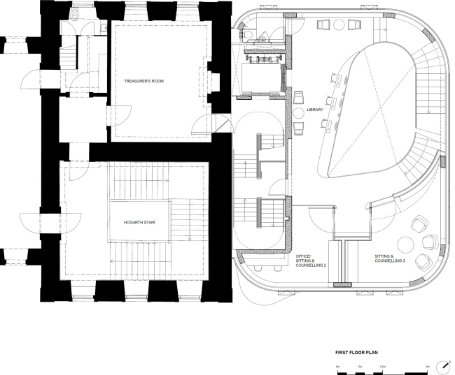
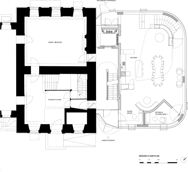
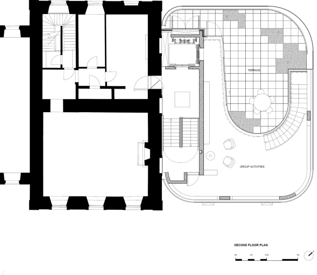
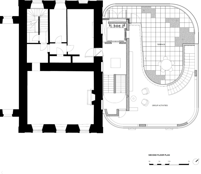
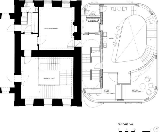
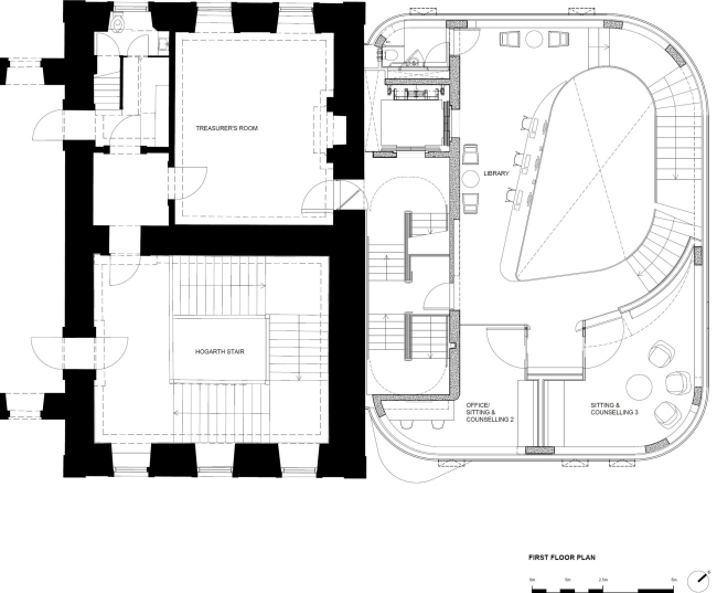
В отличие от большинства других центров Мэгги (они названы в память умершей от рака жены Дженкса, ландшафтного архитектора Мэгги Кезуик-Дженкс), здание в больнице Сент-Бартоломью (Бартс) развивается по вертикали, а не по горизонтали: на это повлиял дефицит места в историческом окружении. Старейшая лондонская больница была основана в 1123, вместе с принадлежащей ей Большой церковью Св. Варфоломея. Наряду с этой церковью в норманнском стиле, соседом постройки Стивена Холла также оказался корпус XVII века по проекту Джеймса Гиббса, где, помимо прочего, сохранилась лестница с росписями Уильяма Хогарта.
 
Онкологический центр Мэгги больницы Сент-Бартоломью © Iwan Baan
Онкологический центр Мэгги больницы Сент-Бартоломью © Iwan Baan

Такой архитектурный контекст вызвал трудности при согласовании, однако сдержанный облик нового центра Мэгги все же позволил ему получить разрешение на строительство. Это трехэтажное здание с матовым стеклянным фасадом, расчерченным горизонтальными полосами – как нотный стан. Цветные вставки должны напомнить о средневековой системе записи музыки – невменной нотации, причем архитектор обыгрывает происхождение слова «невма» от древнегреческого «пневма» – жизненная сила. Нотная тема обусловлена большой ролью церкви Св. Варфоломея в истории музыки.
 
Онкологический центр Мэгги больницы Сент-Бартоломью © Iwan Baan
Онкологический центр Мэгги больницы Сент-Бартоломью © Iwan Baan

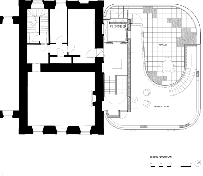
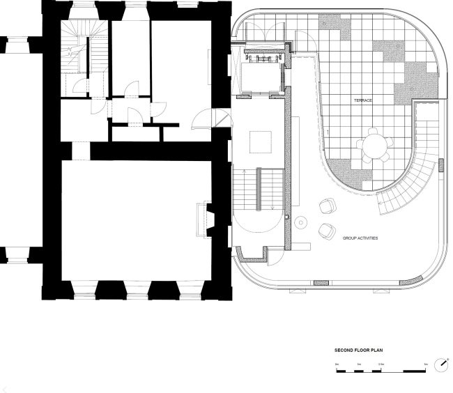
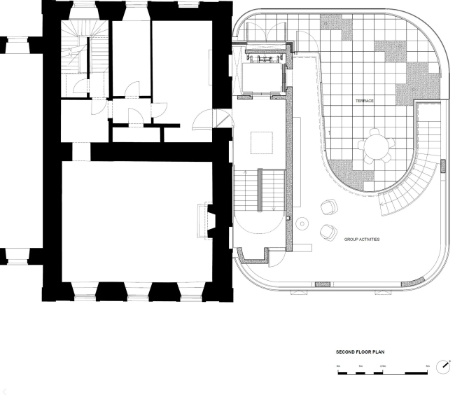
Вход выделен как будто приподнятым «подолом» матового фасада, под которым обнаруживается часть из прозрачного стекла. Интерьер обшит бамбуком, однако бетонная конструкция с ее напоминающими пальцы руки опорами тоже открыта взгляду. На самом верху помещена терраса и большой зал для занятий гимнастикой, собраний и любых других целей.
Онкологический центр Мэгги больницы Сент-Бартоломью © Iwan Baan
Онкологический центр Мэгги больницы Сент-Бартоломью © Iwan Baan
Онкологический центр Мэгги больницы Сент-Бартоломью © Iwan Baan
Онкологический центр Мэгги больницы Сент-Бартоломью © Iwan Baan
Онкологический центр Мэгги больницы Сент-Бартоломью © Iwan Baan
Онкологический центр Мэгги больницы Сент-Бартоломью © Iwan Baan
Онкологический центр Мэгги больницы Сент-Бартоломью © Iwan Baan
Онкологический центр Мэгги больницы Сент-Бартоломью © Iwan Baan
Онкологический центр Мэгги больницы Сент-Бартоломью © Iwan Baan
Онкологический центр Мэгги больницы Сент-Бартоломью © Iwan Baan
Онкологический центр Мэгги больницы Сент-Бартоломью © Iwan Baan
Онкологический центр Мэгги больницы Сент-Бартоломью © Iwan Baan
Онкологический центр Мэгги больницы Сент-Бартоломью © Iwan Baan
Онкологический центр Мэгги больницы Сент-Бартоломью © Iwan Baan
Онкологический центр Мэгги больницы Сент-Бартоломью © Iwan Baan
Онкологический центр Мэгги больницы Сент-Бартоломью © Iwan Baan
Онкологический центр Мэгги больницы Сент-Бартоломью © Steven Holl
Онкологический центр Мэгги больницы Сент-Бартоломью © Steven Holl
Онкологический центр Мэгги больницы Сент-Бартоломью © Steven Holl
Онкологический центр Мэгги больницы Сент-Бартоломью © Steven Holl
Онкологический центр Мэгги больницы Сент-Бартоломью © Steven Holl
Онкологический центр Мэгги больницы Сент-Бартоломью © Steven Holl
Онкологический центр Мэгги больницы Сент-Бартоломью © Steven Holl
Онкологический центр Мэгги больницы Сент-Бартоломью © Steven Holl
Онкологический центр Мэгги больницы Сент-Бартоломью © Steven Holl Architects
Онкологический центр Мэгги больницы Сент-Бартоломью © Steven Holl Architects
Онкологический центр Мэгги больницы Сент-Бартоломью © Steven Holl Architects
Онкологический центр Мэгги больницы Сент-Бартоломью © Steven Holl Architects
Онкологический центр Мэгги больницы Сент-Бартоломью © Steven Holl Architects
Онкологический центр Мэгги больницы Сент-Бартоломью © Steven Holl Architects
Онкологический центр Мэгги больницы Сент-Бартоломью © Steven Holl Architects
Онкологический центр Мэгги больницы Сент-Бартоломью © Steven Holl Architects
Онкологический центр Мэгги больницы Сент-Бартоломью © Steven Holl Architects
Онкологический центр Мэгги больницы Сент-Бартоломью © Steven Holl Architects
Онкологический центр Мэгги больницы Сент-Бартоломью © Steven Holl Architects
Онкологический центр Мэгги больницы Сент-Бартоломью © Steven Holl Architects