Размещено на портале Архи.ру (www.archi.ru)

22.03.2018

Кубики для Гулливера

Лилия Аронова
Объект:
ЖК Vander Park
Адрес:
Россия, Москва. Рублевское шоссе, д. 101-105
Мастерская:
de Architekten Cie.
West 8
АО «Фирма «КИРИЛЛ»
Проектное бюро АПЕКС
Авторский коллектив:
Проектное бюро de Architekten Cie W.B.
Перо Пульиз, Ян-Уильямс Байенс, Ханс Хамминк, Владимир Сергеев, Вессел Вройгдонхил, Гриша Зотов​

Проектное бюро АПЕКС
Главный архитектор проекта: Антон Бондаренко
Главный инженер проекта: Денис Вакуленко
Специалисты архитектурного отдела: Олег Жолобов, Михаил Исмагулов, Степан Титов,
Дмитрий Киреев, Мария Симагина, Елена Сухова
Специалисты конструкторского отдела: Максим Бобровничий, Станислав Стома, Евгений Куриленко
 
Благоустройство: West 8

На бровке Крылатских холмов достраивается жилой комплекс, беспрецедентный по разнообразию архитектурных решений и вытекающей из него конструктивной сложности. Ответы на эти вызовы искали голландские архитекторы de Architekten Cie в партнерстве с российским бюро АПЕКС.

Жилой комплекс Vander Park
Жилой комплекс Vander Park
© ГК ПИК

Жилой комплекс Vander Park, – сооружение, заметное во всех отношениях. Расположенный на стратегически значимом перекрестке Рублевского шоссе с Ярцевской улицей, на вершине одного из Крылатских холмов, он и сам по себе представляет достаточно массивный объем исходя из соотношения площади участка и количества заданных застройщиком площадей. Внимание архитектурной общественности к участку было привлечено в 2013 году, когда был объявлен закрытый конкурс с весьма представительным составом участников. В конкурсе победило бюро «Сергей Скуратов ARCHITECTS», но вскоре после этого позиция застройщика поменялась, и для проектирования были приглашены голландцы, уже имеющие некоторый опыт архитектурного освоения российских просторов. Нынешнее название комплекса – дань национальной принадлежности компании-проектировщика, намекающее, по всей очевидности, на определенный аристократизм: приставка van der говорит о благородном происхождении своего владельца. Что вполне соответствует классу проекта, который в процессе работы вырос с просто бизнеса до бизнес-премиума.
ЖК Vander Park
ЖК Vander Park
© ГК ПИК

Несмотря на престижность направления, район, о котором идет речь, застроен достаточно хаотично, так что, по словам руководителя архитектурной мастерской компании АПЕКС Антона Бондаренко, взаимодействовать там было особенно не с чем. Из ближайших доминант – только 150-метровая башня на противоположной стороне Ярцевской улицы, вокруг – пятиэтажки, подлежащие сносу, дальше по Рублевке – ряд невысоких панельных зданий, отодвинутый вглубь от шоссе, по дублеру. То есть хочешь не хочешь, а новый жилой комплекс неизбежно берет на себя роль доминанты. Интересно, что при всем при этом проектировщикам Vander Park нужно было не столько заботиться о том, чтобы не заслонить кому-нибудь солнце, сколько самим пришлось как-то уходить от длинной тени, протянувшейся аж от метро «Молодежная», рядом с которой стоит еще одна 150-метровая башня. В остальном же городская ткань здесь достаточно свободная, так что проблемы плотности и инсоляции необходимо было решать только внутри собственно комплекса. Однако именно эти требования во многом повлияли на объемно-пространственное решение: башни и сдвижки в объемах фактически позволяют «вылепить» форму, деликатно учитывающую нормы инсоляции.
Жилой комплекс Vander Park
Жилой комплекс Vander Park
© ГК ПИК

На криволинейном неровном участке, вписанном в условный квадрат, расположилось восемь разноэтажных – от 19 до 26 – башен, посаженных под разными углами друг к другу. Башни помещаются на стилобате, занимающем всю площадь участка – под ним находится паркинг, – плюс связаны малоэтажными, от четырех до шести этажей, секционными блоками. Они скомпонованы в два макрокорпуса, связанных проходящей по всей внутренней стороне двора, на уровне первого этажа, галереей. Первые этажи отданы под функции торговли и услуг – здесь расположены магазин, фитнес-центр, детский клуб, медицинский центр и салон красоты. Каждая из башен, в свою очередь, состоит из блоков-модулей, поставленных друг на друга с кажущейся небрежностью – словно некий исполинский малыш неумело, но старательно возводил здесь свой город из гигантских деталей.
ЖК Vander Park
ЖК Vander Park
© ГК ПИК

Разрабатывая концепцию жилого комплекса, проектировщики вдохновлялись образом Москвы как современного мегаполиса со свойственной ему высокой плотностью застройки, которую нельзя не принять как существующий факт, но можно архитектурными методами смягчить, приблизить к сомасштабному человеку объему. Поэтому каждый блок понимается как доступный человеческому восприятию жилой модуль, читай – отдельный дом, которые площадь участка не дает возможности расположить рядом друг с другом, но их можно объединить по вертикали, поставив их друг на друга. С точки зрения визуального восприятия такое решение позволяет избежать ощущения некой монолитной давящей массы, а с практической дает еще один бонус – благодаря сдвижке блоков друг относительно друга образуется место для просторных террас, обеспечивающих ряду квартир дополнительные преимущества.

Аналогичные бонусы, кстати, получат жильцы квартир, выходящих на кровлю низкоэтажных корпусов, а также владельцы помещений на втором этаже комплекса – к ним прилагаются террасы площадью порядка 150 м2, ориентированные во внутренний двор и разделенные большими зелеными зонами. «Это еще один из способов показать, что даже в высокоурбанизированной среде может существовать вполне комфортное пространство за пределами квартиры, причем еще и индивидуальное», – комментирует Антон Бондаренко.
Элементы фасада
Элементы фасада
© ГК ПИК

Для каждого блока выбран свой тип окон. При этом все фасады организованы строгой кирпичной решеткой, ритм которой идентичен по всей площади, только на самом верхнем уровне, где ячейки захватывают еще и технический этаж, они получились более вытянутыми. Однако в рамках этой решетки в каждом модуле компоновка оконных проемов выполнена по-своему: если в низкоэтажных секциях окна стоят без разбивки, то в высотных блоках могут быть скомпонованы, скажем, три окна одинаковой ширины, или одно узкое и одно широкое – и так далее. Пространства между необычно высокими проемами – поскольку высота этажа в зданиях выше среднего, то и окна достигают 2,30 м – закрыты навесными композитными панелями двух оттенков серого: под окнами он более темный, чтобы подчеркнуть форму оконного проема, а для панелей между стеклами выбран нейтральный серый цвет, берущий на себя только функцию фона. Кстати, это тот редкий случай, когда корректировка по материалам, прошедшая уже после утверждения проекта, пошла ему на пользу – изначально простенки планировалось заполнять штукатуркой.
Фасад комплекса
Фасад комплекса
© Проектное бюро АПЕКС

В отделке корпусов использовано шесть типов кирпича, общий принцип – от более темного, шоколадно-коричневого, для нижних блоков до светло-бежевого в верхних. Материал, который изготавливает компания Hagemeister, отличается переходом оттенков и в габаритах одного кирпича; кладка тоже не гладкая, часть кирпичей рельефно выступает, а в отделке низкоэтажных секций вертикальная кладка еще и миксуется с горизонтальной. В результате фасады получились очень текстурными, визуально сложными, словно вибрирующими – еще один прием, работающий на «размывание» объемов.
Жилой комплекс Vander Park
Жилой комплекс Vander Park
© ГК ПИК

Во всем комплексе Vander Park в принципе нет двух одинаковых этажей, de Architekten Cie предложили 73 типа квартир площадью от 23 до 230 м2. Такая беспрецедентная сложность квартирографии потребовала от российских партнеров серьезной работы по поиску нестандартных решений. Начать с того, что пришлось переносить мокрые зоны, которые по российским нормам должны располагаться строго одна под другой, а в голландском проекте свободно мигрировали по всей площади этажа. Кроме того, не обошлось без корректировок, связанных с инсоляцией – например, под четырехметровыми консолями, образованными в результате сдвижки жилых модулей, уместнее было расположить более просторные квартиры, чтобы внутрь попадало больше света. Так же как и квартиры с выходом на террасы логично было сделать побольше – лот в виде студии или однушки со 150-метровой террасой выглядел бы на российском рынке достаточно странно.
ЖК Vander Park
ЖК Vander Park
Фотография © Илья Иванов

И, конечно, конструктивные сложности. Целый ряд уникальных решений АПЕКС разработал специально для этого проекта. Например, архитекторы предложили установить наклонные пилоны, благодаря которым компенсируется нагрузка от консольных выносов при переходе от одного блока к другому и при этом не «съедается» площадь квартир. Еще один нестандартный прием – расположенный непосредственно над стилобатом технический этаж высотой менее 1,8 м, где собраны все инженерные коммуникации, которые в противном случае заняли бы место во входных холлах и предназначенных под аренду помещениях первого этажа. Технические пространства предусмотрены и на верхних этажах – благодаря этому на кровле нет выступающих лестнично-лифтовых блоков.
ЖК Vander Park. Разрез
ЖК Vander Park. Разрез
© Проектное бюро АПЕКС

Специалисты АПЕКСа плотно сотрудничали и с голландской компанией West 8, которая разрабатывала проект благоустройства. Двор жилого комплекса Vander Park, в соответствии с концепцией de Architekten Cie, сделан полностью закрытым. Жильцы попадают внутрь через систему электронного контроля, причем в корпусах нет сквозного лобби и вход в подъезды – исключительно со двора. «Наши голландские коллеги считают, что человек не должен замыкаться в стенах своей квартиры, ему необходимо пространство для прогулок и общения с соседями, а значит, взрослым и детям должна быть обеспечена полная безопасность в пределах двора», – комментирует Антон Бондаренко. Вместе с ландшафтными архитекторами из West 8 подбирались растения, аутентичные нашим северным широтам, прорабатывался фундамент под предложенные ими тяжелые беседки… Функционально двор разделен на три тематические зоны – для активных игр, спокойного отдыха и так называемую «транзитную» зону, где встречаются основные потоки жителей и посетителей комплекса. Детские площадки разделены по возрастным категориям – до 5 лет, от 5 до 10 и для детей старше 10 лет – что также позволяет распределять потоки и, кроме того, обеспечить безопасность детей – площадка для самых маленьких отнесена в зону спокойного отдыха. Несмотря на то что двор находится на крыше стилобата, в проекте удалось предусмотреть и высадку крупномеров – специально для этого, ценой потери нескольких машиномест, были прорублены отверстия на всю глубину минус первого этажа.

Жилой комплекс Vander Park
Жилой комплекс Vander Park
© Проектное бюро АПЕКС

Интерьерами вестибюлей и общественных групп полностью занимались архитекторы АПЕКС. Офис продаж – минималистичный объем из стекла и металла, обработанного под дерево, – тоже их работа, как и разработка систем навигации на жилых этажах и в паркинге. «В настоящий момент Vander Park для нас – это лицо компании, ее визитная карточка», – признается Антон Бондаренко. И дело здесь не только в том, что объект этот, что называется, на виду – будучи одним из первых масштабных проектов бюро он позволил не только заложить ключевые ценности и принципы компании, но и качественно повысить уровень команды – выявив уникальные компетенции сотрудников, работающих в условиях сжатых сроков, строго заданных ТЭПов и необходимости применения уникальных и остроумных технологических решений.
ЖК Vander Park
ЖК Vander Park
Фотография © Илья Иванов
Офис продаж
Офис продаж
Фотография © Илья Иванов
Офис продаж “VANDER PARK”
Офис продаж “VANDER PARK”
© Проектное бюро АПЕКС
Офис продаж “VANDER PARK”
Офис продаж “VANDER PARK”
© Проектное бюро АПЕКС
ЖК Vander Park
ЖК Vander Park
Фотография © Илья Иванов
ЖК Vander Park
ЖК Vander Park
Фотография © Илья Иванов
Интерьер главного вестибюля комплекса
Интерьер главного вестибюля комплекса
© Проектное бюро АПЕКС
Интерьер главного вестибюля комплекса
Интерьер главного вестибюля комплекса
© Проектное бюро АПЕКС
Генеральный план, фотомонтаж
Генеральный план, фотомонтаж
© ГК ПИК
ЖК Vander Park. Ситуационный план
ЖК Vander Park. Ситуационный план
© Проектное бюро АПЕКС
Схемы инженерного, конструктивного и архитектурного решения здания
Схемы инженерного, конструктивного и архитектурного решения здания
© Проектное бюро АПЕКС
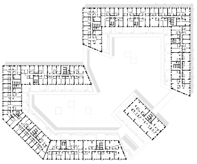
ЖК Vander Park. Совмещенный генплан
ЖК Vander Park. Совмещенный генплан
© Проектное бюро АПЕКС, West 8
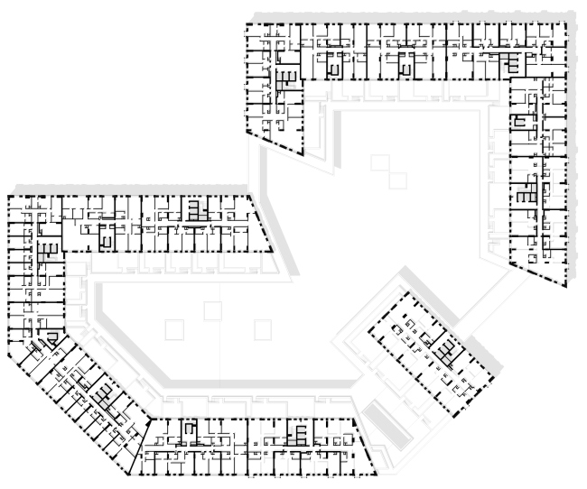
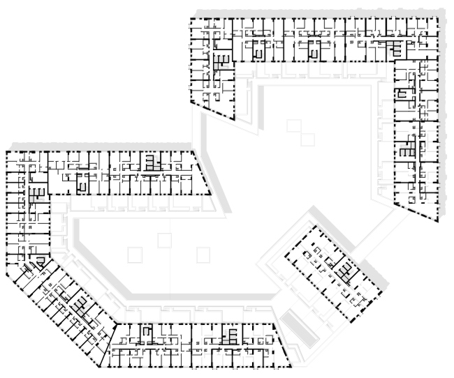
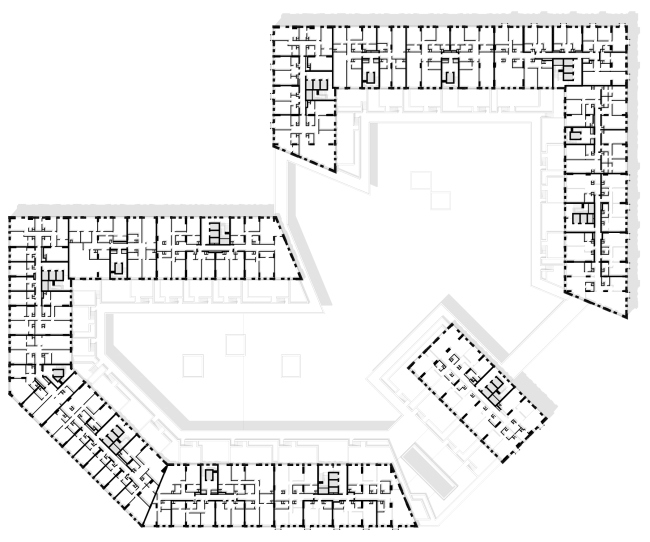
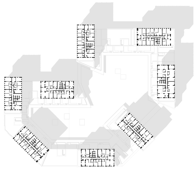
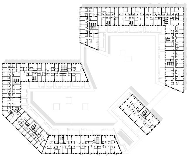
ЖК Vander Park. План 2-го этажа
ЖК Vander Park. План 2-го этажа
© Проектное бюро АПЕКС
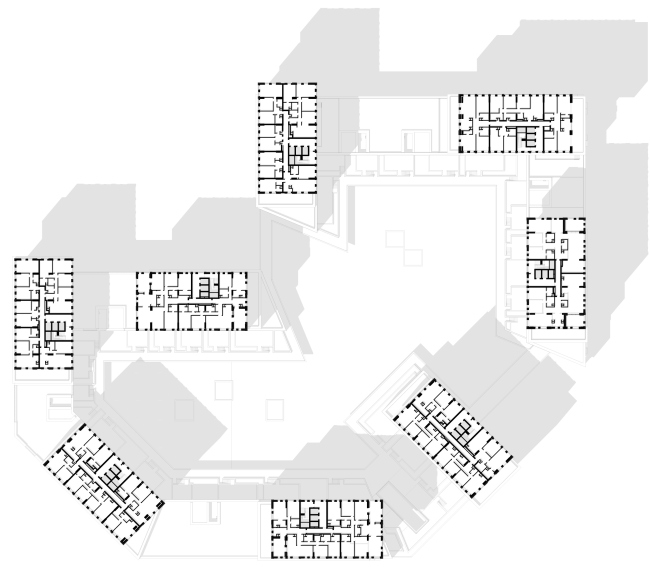
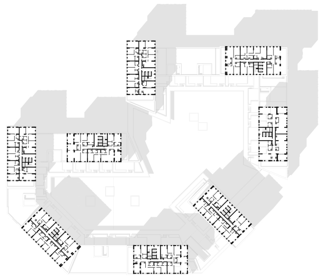
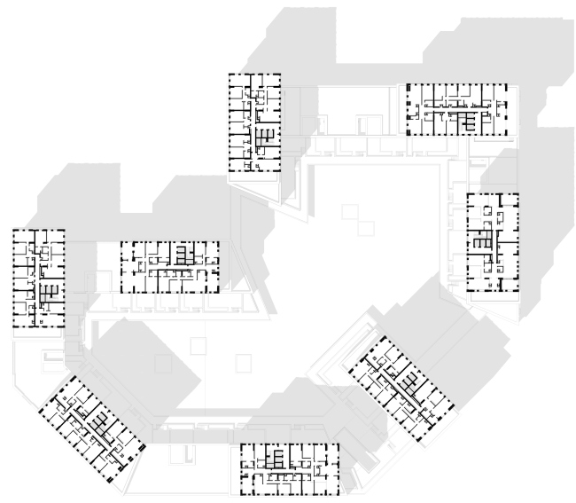
ЖК Vander Park. План 19-го этажа
ЖК Vander Park. План 19-го этажа
© Проектное бюро АПЕКС
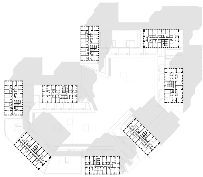
ЖК Vander Park. План секции 11 этажа
ЖК Vander Park. План секции 11 этажа
© Проектное бюро АПЕКС