Размещено на портале Архи.ру (www.archi.ru)

01.03.2018

Между горой и городом

Нина Фролова
Объект:
Жилой комплекс A3
Адрес:
Болгария, None, София.
Мастерская:
STARH Stanislavov Аrchitects

Жилой комплекс A3 в Софии по проекту бюро STARH.

Жилой комплекс A3. Фото © 3 in Spirit
Жилой комплекс A3. Фото © 3 in Spirit

Новый жилой комплекс расположен на окраине Софии, недалеко от предгорий Витоши, и равно ориентирован на мегаполис и на знаменитую гору. Его четкие плавные формы допускают разную интерпретацию – и пять горных вершин, и даже родители с тремя детьми, однако архитекторы надеются, что каждый зритель создаст свою трактовку, став их соавтором. Для фасада были использованы остекление и стеклофибробетонные панели fibreC.
 
Жилой комплекс A3. Фото © 3 in Spirit
Жилой комплекс A3. Фото © 3 in Spirit

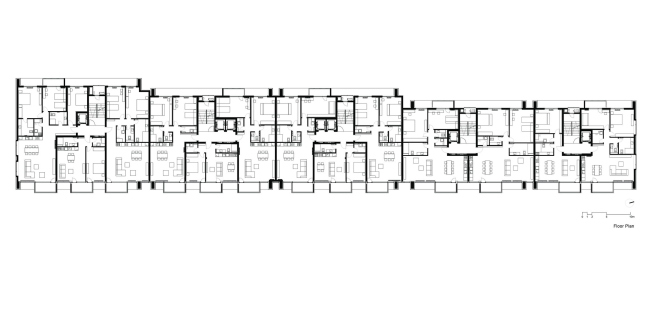
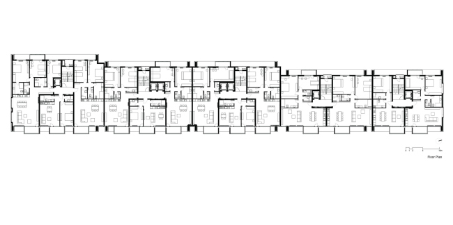
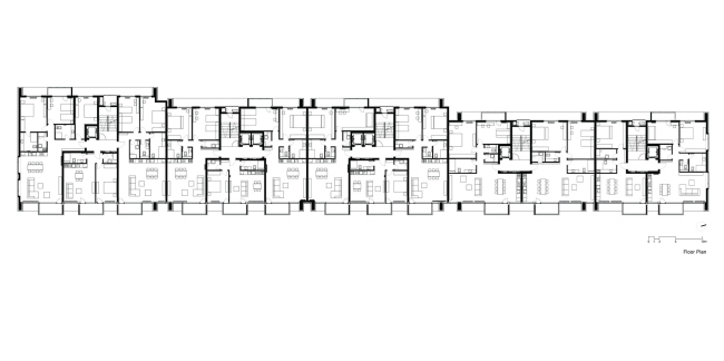
Место строительства – бульвар Болгария, где сосредоточены многие яркие сооружения из появившихся в Софии за последние годы. В длину A3 (его полное название – Advanced Architecture Apartments) достигает 100 метров, и потому поделен на пять объемов, по одному подъезду в каждом. У двух секций всего две квартиры на этаже, у трех – по три. На площади более 30 тыс. м2 всего размещено 158 единиц жилья. Общая комната каждой квартиры получила обширное остекление и виды на Витошу и город.
 
Жилой комплекс A3. Фото © 3 in Spirit
Жилой комплекс A3. Фото © 3 in Spirit

Нижний этаж занимают коммерческие площади, поделенные на пространства в 50–100 м2, а паркинг помещен на два подземных уровня. Территория вокруг дома отдана озеленению и рекреационной функции.
Жилой комплекс A3. Фото © 3 in Spirit
Жилой комплекс A3. Фото © 3 in Spirit
Жилой комплекс A3. Фото © 3 in Spirit
Жилой комплекс A3. Фото © 3 in Spirit
Жилой комплекс A3. Фото © 3 in Spirit
Жилой комплекс A3. Фото © 3 in Spirit
Жилой комплекс A3. Фото © 3 in Spirit
Жилой комплекс A3. Фото © 3 in Spirit
Жилой комплекс A3. Фото © 3 in Spirit
Жилой комплекс A3. Фото © 3 in Spirit
Жилой комплекс A3. Фото © 3 in Spirit
Жилой комплекс A3. Фото © 3 in Spirit
Жилой комплекс A3. Фото © 3 in Spirit
Жилой комплекс A3. Фото © 3 in Spirit
Жилой комплекс A3. Фото © 3 in Spirit
Жилой комплекс A3. Фото © 3 in Spirit
Жилой комплекс A3. Фото © 3 in Spirit
Жилой комплекс A3. Фото © 3 in Spirit
Жилой комплекс A3. Фото © 3 in Spirit
Жилой комплекс A3. Фото © 3 in Spirit
Жилой комплекс A3. Фото © 3 in Spirit
Жилой комплекс A3. Фото © 3 in Spirit
Жилой комплекс A3. Фото © 3 in Spirit
Жилой комплекс A3. Фото © 3 in Spirit
Жилой комплекс A3 © STARH Stanislavov Аrchitects
Жилой комплекс A3 © STARH Stanislavov Аrchitects
Жилой комплекс A3 © STARH Stanislavov Аrchitects
Жилой комплекс A3 © STARH Stanislavov Аrchitects
Жилой комплекс A3 © STARH Stanislavov Аrchitects
Жилой комплекс A3 © STARH Stanislavov Аrchitects
Жилой комплекс A3 © STARH Stanislavov Аrchitects
Жилой комплекс A3 © STARH Stanislavov Аrchitects
Жилой комплекс A3 © STARH Stanislavov Аrchitects
Жилой комплекс A3 © STARH Stanislavov Аrchitects