Размещено на портале Архи.ру (www.archi.ru)

27.02.2018

Ясность, поэзия, реальность

Нина Фролова

Полвека назад был построен дом четы Смит, «запустивший» архитектурную карьеру Ричарда Майера. Публикуем рассказ об этом здании и сделанные к юбилею фотографии.

Дом четы Смит. Фото © Mike Schwartz
Дом четы Смит. Фото © Mike Schwartz

Дом Кэрол и Фреда Смитов находится недалеко от Нью-Йорка, в штате Коннектикут, на океанском побережье близ города Дариен. В прошлом году исполнилось 50 лет с момента завершения строительства, и Ричард Майер считает именно этот проект ключевым стимулом для своей дальнейшей карьеры. Кроме того, именно дом Смитов помог оформиться архитектурному языку и философии Майера.
 
Дом четы Смит. Фото © Mike Schwartz
Дом четы Смит. Фото © Mike Schwartz

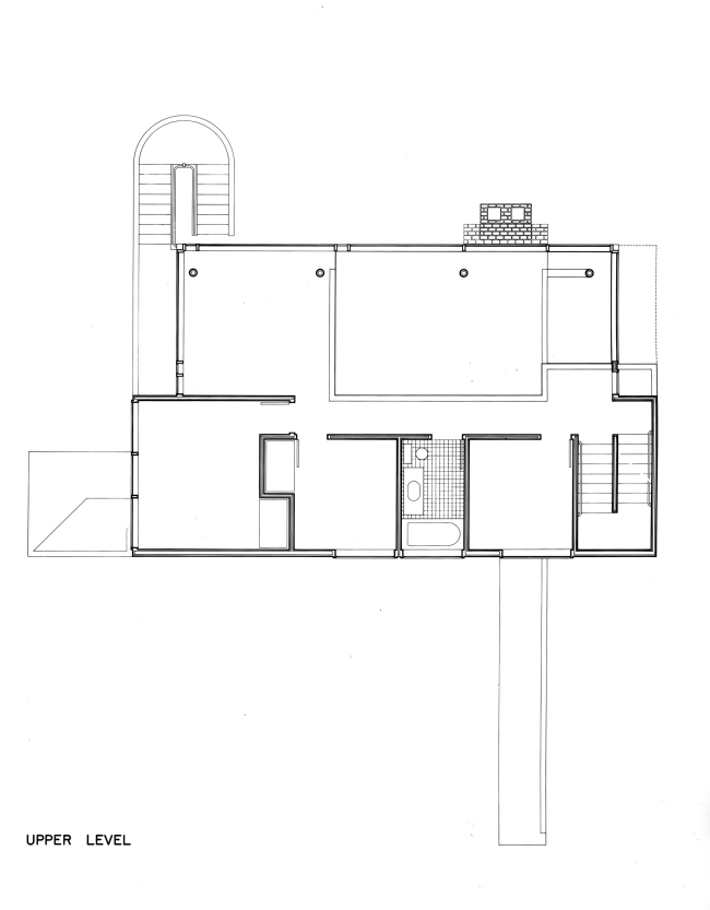
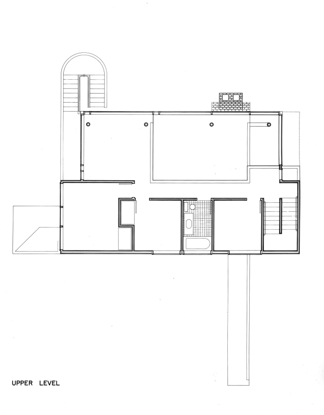
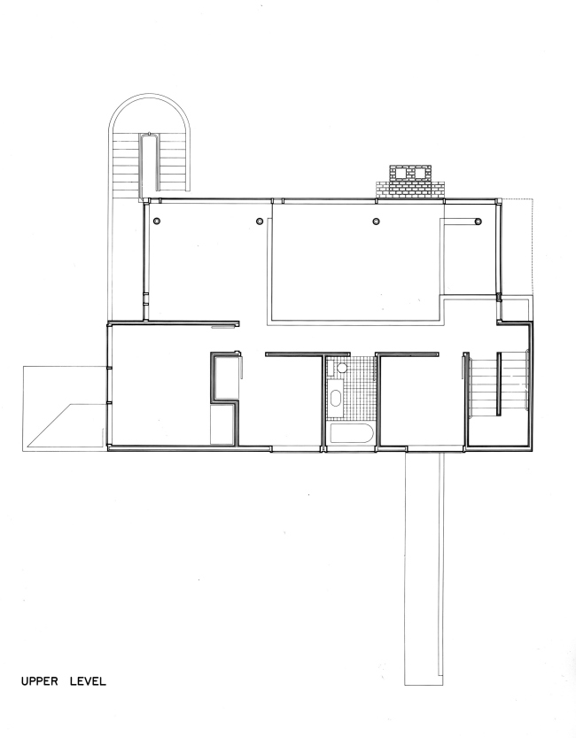
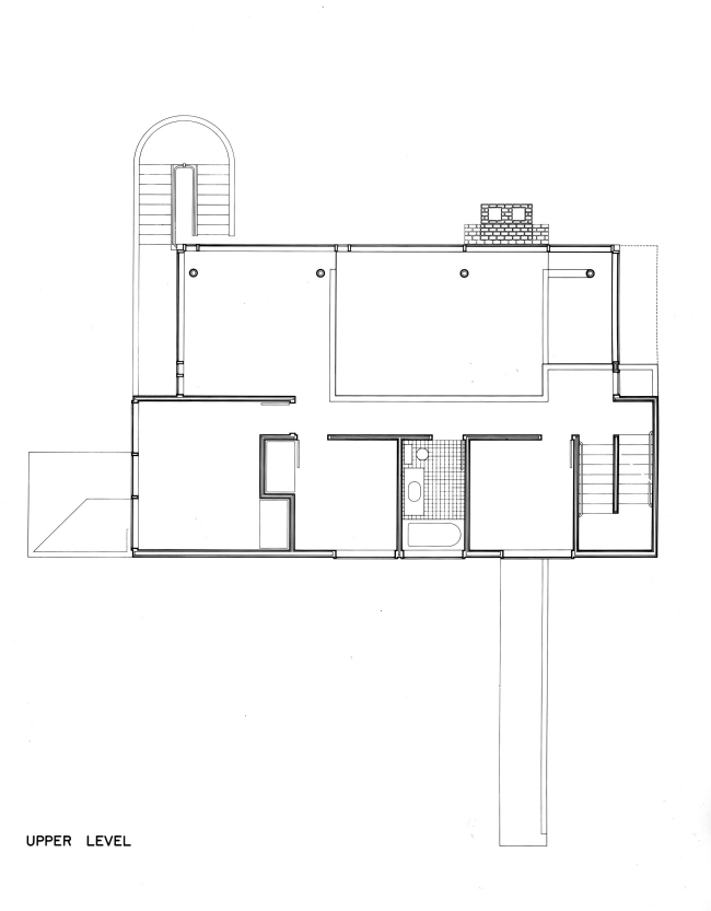
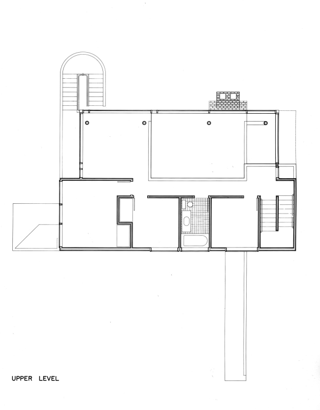
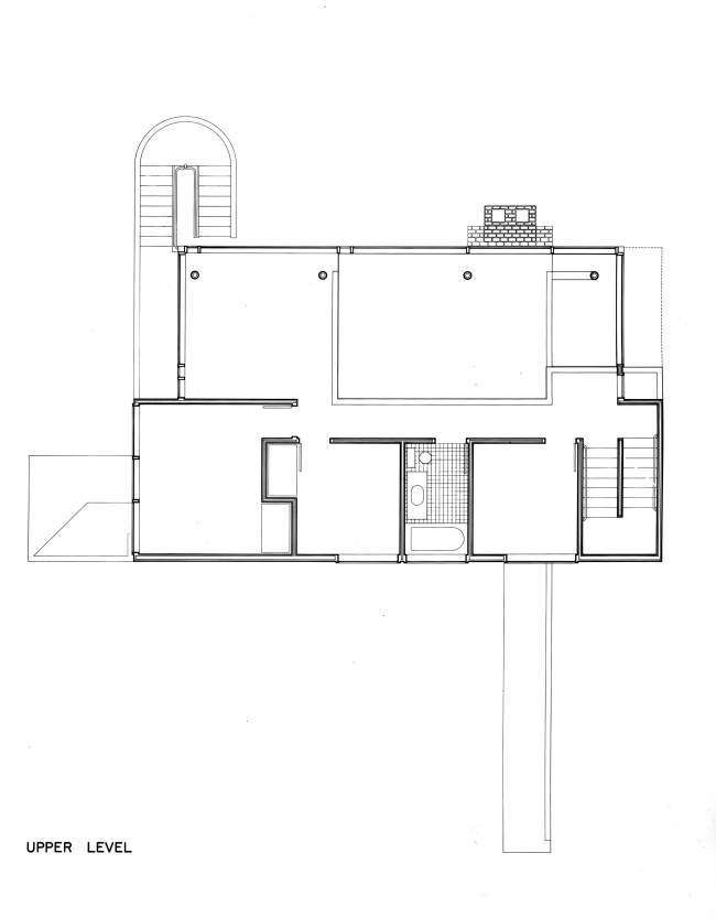
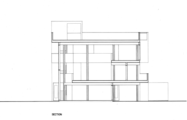
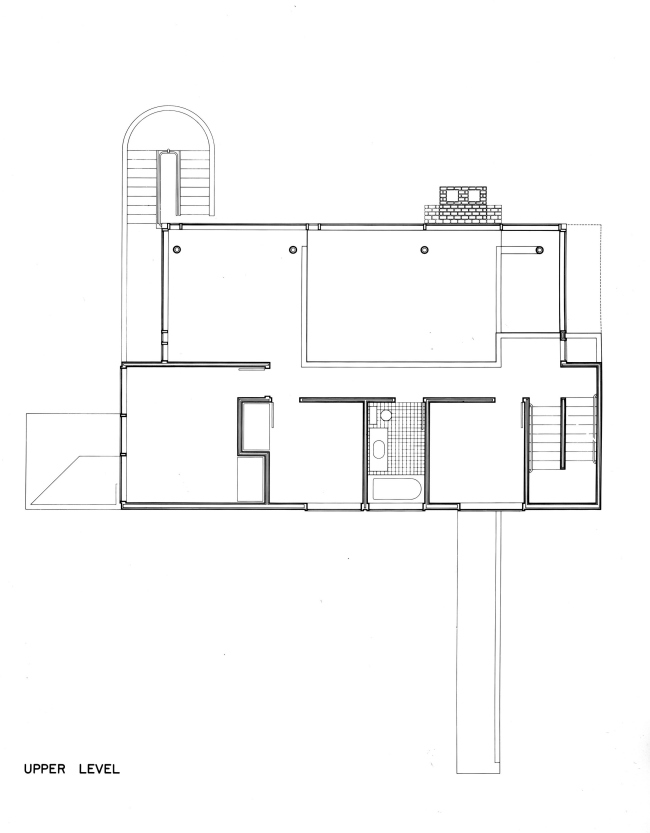
Как вспоминает архитектор, на момент получения заказа, в 1965, его мастерская располагалась в одной из двух комнат его квартиры; незадолго до того он покинул бюро Марселя Бройера, чтобы работать самостоятельно. Нанявшей его Кэрол Смит был нужен молодой архитектор, который бы посвятил все свое внимание проекту ее дома. В качестве стартовой точки она и ее муж Фред показали Майеру проект просторного одноэтажного сооружения в «стиле ранчо», который был сделан для предыдущего владельца земли, однако архитектор сразу понял, что эта конфигурация здания крайне невыгодна. Для устройства его фундамента пришлось бы взрывать много скальной породы, которая составляет участок: в таких условиях был нужен дом с небольшим пятном застройки, и Майер обратился к вертикальной композиции. В итоге, в доме Смитов три этажа общей площадью 465,5 м2. Как основной материал использовали дерево.
 
Дом четы Смит. Фото © Mike Schwartz
Дом четы Смит. Фото © Mike Schwartz

Со стороны въезда участок площадью 3251 м2 густо порос хвойными деревьями; туда дом обращен стеной с небольшим числом окон – там сгруппированы жилые комнаты. С заднего фасада, открытого к водной глади, собраны общие пространства для семьи и гостей. Стеклянная стена здесь как будто зажата между стальными колоннами каркаса и кирпичным объемом камина с трубой, что создает задуманное Ричардом Майером неуловимое напряжение. Природное и рукотворное здесь существуют обособленно друг от друга, однако их сложно разделить: океан, небо, освещение определяют восприятие интерьера.
 
Дом четы Смит. Фото © Mike Schwartz
Дом четы Смит. Фото © Mike Schwartz

По словам Ричарда Майера, в жилище четы Смит, как и во всех других его жилых домах, он стремился к ясности и элементарной геометрической форме. Его проекты этого жанра всегда тесно связаны с человеческим масштабом и желанием сделать архитектурное целое ясным, разумным, лиричным и реальным.
 
Дом четы Смит. Фото © Mike Schwartz
Дом четы Смит. Фото © Mike Schwartz

Сейчас домом владеет сын первоначальных хозяев, Чак Смит. Ему было пять лет, когда здание было завершено – оно его поразило, и Смит признается, что чувствует то детское удивление каждый раз, когда входит внутрь.
Дом четы Смит. Фото © Mike Schwartz
Дом четы Смит. Фото © Mike Schwartz
Дом четы Смит. Фото © Mike Schwartz
Дом четы Смит. Фото © Mike Schwartz
Дом четы Смит. Фото © Mike Schwartz
Дом четы Смит. Фото © Mike Schwartz
Дом четы Смит. Фото © Mike Schwartz
Дом четы Смит. Фото © Mike Schwartz
Дом четы Смит. Фото © Mike Schwartz
Дом четы Смит. Фото © Mike Schwartz
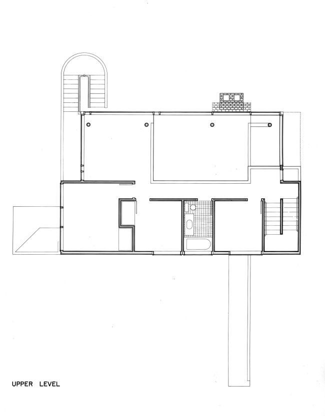
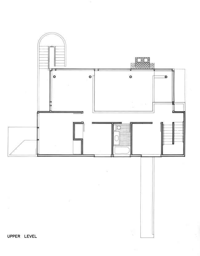
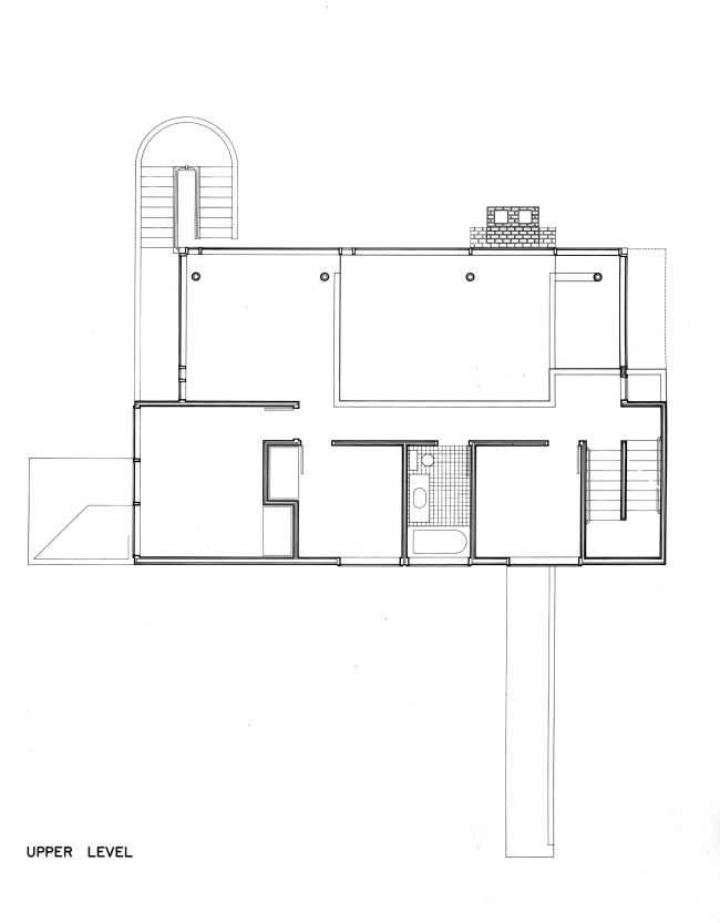
Дом четы Смит. Предоставлено Richard Meier & Partners Architects
Дом четы Смит. Предоставлено Richard Meier & Partners Architects
Дом четы Смит. Предоставлено Richard Meier & Partners Architects
Дом четы Смит. Предоставлено Richard Meier & Partners Architects
Дом четы Смит. Предоставлено Richard Meier & Partners Architects
Дом четы Смит. Предоставлено Richard Meier & Partners Architects
Дом четы Смит. Предоставлено Richard Meier & Partners Architects
Дом четы Смит. Предоставлено Richard Meier & Partners Architects
Дом четы Смит. Предоставлено Richard Meier & Partners Architects
Дом четы Смит. Предоставлено Richard Meier & Partners Architects
Дом четы Смит. Предоставлено Richard Meier & Partners Architects
Дом четы Смит. Предоставлено Richard Meier & Partners Architects
Дом четы Смит. Предоставлено Richard Meier & Partners Architects
Дом четы Смит. Предоставлено Richard Meier & Partners Architects
Дом четы Смит. Предоставлено Richard Meier & Partners Architects
Дом четы Смит. Предоставлено Richard Meier & Partners Architects