Размещено на портале Архи.ру (www.archi.ru)

26.02.2018

Насыщенность цвета

Нина Фролова
Объект:
Общежитие Хайленд-холл Стэнфордского университета
Адрес:
США, None, Стэнфорд.
Мастерская:
Legorreta

Общежитие Хайленд-холл Стэнфордского университета по проекту бюро Legorreta.

Общежитие Хайленд-холл Стэнфордского университета. Фото © Hunter Kerhart
Общежитие Хайленд-холл Стэнфордского университета. Фото © Hunter Kerhart

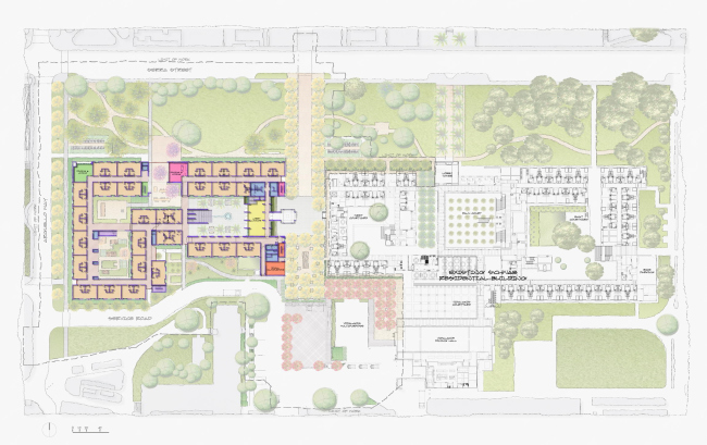
Общежитие Хайленд-холл предназначено для студентов Высшей школы бизнеса Стэнфордского университета, как и расположенная рядом другая постройка Legorreta – общежитие Шваб (1997). Оба жилых комплекса и их внутренние дворы выровнены по оси восток-запад, а с академическими корпусами через улицу их связывает аллея, идущая в направлении север-юг.
 
Общежитие Хайленд-холл Стэнфордского университета. Фото © Hunter Kerhart
Общежитие Хайленд-холл Стэнфордского университета. Фото © Hunter Kerhart

Кампус Стэнфордского университета застроен по регулярному плану в традиционном духе – как в исторических стилях, так и в более абстрактных «калифорнийских» формах; все корпуса покрыты красной черепицей. Обе постройки Legorreta тоже вписаны в эту схему, однако в них есть и характерная для этого бюро насыщенность цвета и энергичная декоративность.
 
Общежитие Хайленд-холл Стэнфордского университета. Фото © Hunter Kerhart
Общежитие Хайленд-холл Стэнфордского университета. Фото © Hunter Kerhart

Продолжая линию общежития Шваб, в Хайленд-холле использован, помимо других тонов, яркий фиолетовый цвет, а также симметрично высажены пальмы, создающие впечатление театральной декорации.
 
Общежитие Хайленд-холл Стэнфордского университета. Фото © Hunter Kerhart
Общежитие Хайленд-холл Стэнфордского университета. Фото © Hunter Kerhart

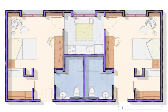
На общей площади в 14 000 м2 (высота до четырех этажей) размещено жилье на 200 студентов и инфраструктура. Многофункциональные зоны, пространства для отдыха, кухни и столовые размещены как внутри зданий, так и снаружи.
 
Общежитие Хайленд-холл Стэнфордского университета. Фото © Hunter Kerhart
Общежитие Хайленд-холл Стэнфордского университета. Фото © Hunter Kerhart

Проницаемая лестничная башня высотой более 12 м играет роль «маяка» на входной плазе Хайленд-холла. В главном дворе расположена лестница пластических форм, а также выполненные скульптором Аданом Паредесом фонтан и напольная плитка. Вместе они образуют произведение «Ткань вечных следов». Во «дворе размышлений» и «дворе событий» размещены работы двух других мексиканских художников: Пилар Климент и Фриды Эскобедо, ставшей автором летнего павильона лондонской Галереи Серпентайн 2018 года.
Общежитие Хайленд-холл Стэнфордского университета. Фото © Hunter Kerhart
Общежитие Хайленд-холл Стэнфордского университета. Фото © Hunter Kerhart
Общежитие Хайленд-холл Стэнфордского университета. Фото © Hunter Kerhart
Общежитие Хайленд-холл Стэнфордского университета. Фото © Hunter Kerhart
Общежитие Хайленд-холл Стэнфордского университета. Фото © Hunter Kerhart
Общежитие Хайленд-холл Стэнфордского университета. Фото © Hunter Kerhart
Общежитие Хайленд-холл Стэнфордского университета. Фото © Hunter Kerhart
Общежитие Хайленд-холл Стэнфордского университета. Фото © Hunter Kerhart
Общежитие Хайленд-холл Стэнфордского университета. Фото © Hunter Kerhart
Общежитие Хайленд-холл Стэнфордского университета. Фото © Hunter Kerhart
Общежитие Хайленд-холл Стэнфордского университета. Фото © Hunter Kerhart
Общежитие Хайленд-холл Стэнфордского университета. Фото © Hunter Kerhart
Общежитие Хайленд-холл Стэнфордского университета. Фото © Hunter Kerhart
Общежитие Хайленд-холл Стэнфордского университета. Фото © Hunter Kerhart
Общежитие Хайленд-холл Стэнфордского университета. Фото © Hunter Kerhart
Общежитие Хайленд-холл Стэнфордского университета. Фото © Hunter Kerhart
Общежитие Хайленд-холл Стэнфордского университета. Фото © Hunter Kerhart
Общежитие Хайленд-холл Стэнфордского университета. Фото © Hunter Kerhart
Общежитие Хайленд-холл Стэнфордского университета. Фото © Hunter Kerhart
Общежитие Хайленд-холл Стэнфордского университета. Фото © Hunter Kerhart
Общежитие Хайленд-холл Стэнфордского университета. Фото © Hunter Kerhart
Общежитие Хайленд-холл Стэнфордского университета. Фото © Hunter Kerhart
Общежитие Хайленд-холл Стэнфордского университета. Фото © Hunter Kerhart
Общежитие Хайленд-холл Стэнфордского университета. Фото © Hunter Kerhart
Общежитие Хайленд-холл Стэнфордского университета. Фото © Hunter Kerhart
Общежитие Хайленд-холл Стэнфордского университета. Фото © Hunter Kerhart
Общежитие Хайленд-холл Стэнфордского университета. Фото © Hunter Kerhart
Общежитие Хайленд-холл Стэнфордского университета. Фото © Hunter Kerhart
Общежитие Хайленд-холл Стэнфордского университета. Фото © Hunter Kerhart
Общежитие Хайленд-холл Стэнфордского университета. Фото © Hunter Kerhart
Общежитие Хайленд-холл Стэнфордского университета © Legorreta
Общежитие Хайленд-холл Стэнфордского университета © Legorreta
Общежитие Хайленд-холл Стэнфордского университета © Legorreta
Общежитие Хайленд-холл Стэнфордского университета © Legorreta
Общежитие Хайленд-холл Стэнфордского университета © Legorreta
Общежитие Хайленд-холл Стэнфордского университета © Legorreta