Размещено на портале Архи.ру (www.archi.ru)

22.02.2018

В серьезном масштабе

Нина Фролова
Объект:
Музей современного искусства Кунстхалле в Мангейме
Адрес:
Германия, None, Мангейм.
Мастерская:
gmp

Новый корпус Кунстхалле в Мангейме по проекту бюро gmp – одно из крупнейших музейных зданий в Германии.

Музей современного искусства Кунстхалле в Мангейме. Фото © Kunsthalle Mannheim / Lukac Diehl
Музей современного искусства Кунстхалле в Мангейме. Фото © Kunsthalle Mannheim / Lukac Diehl

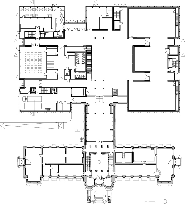
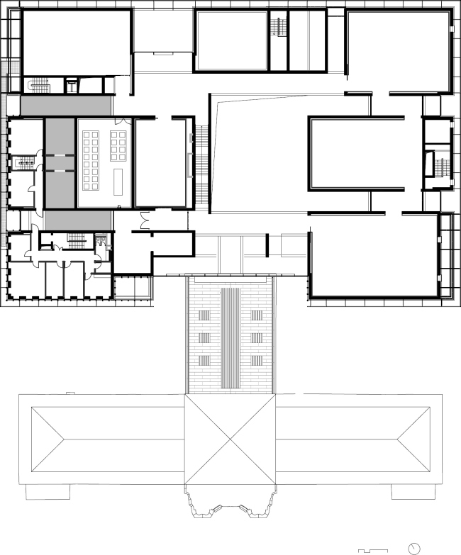
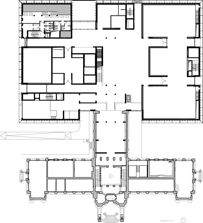
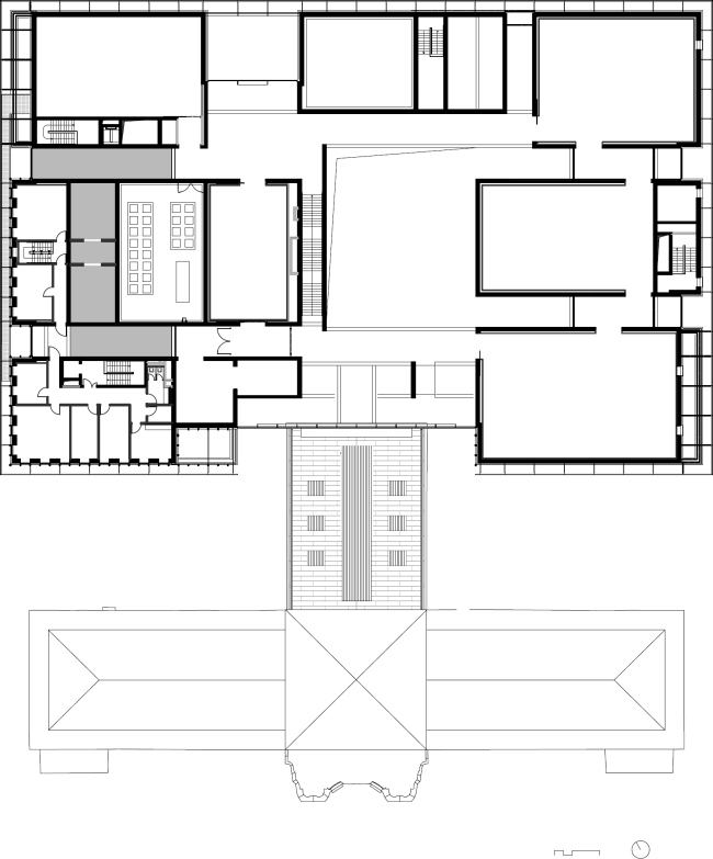
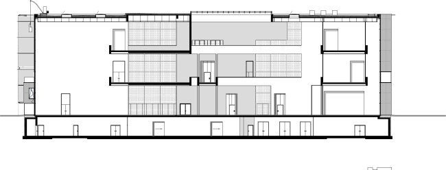
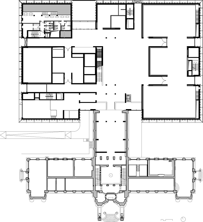
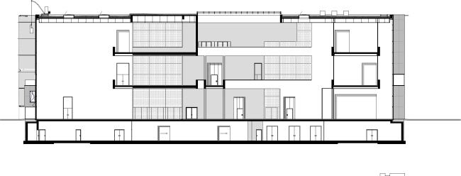
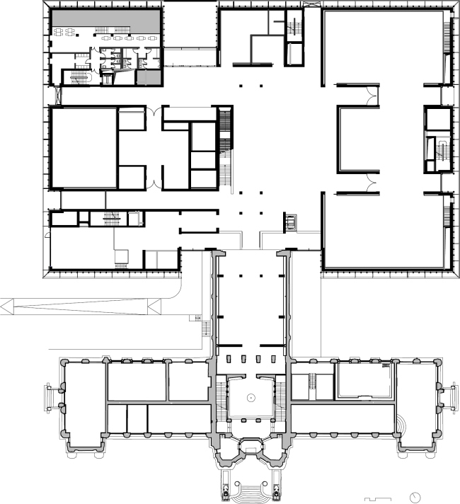
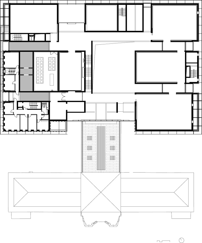
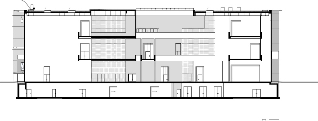
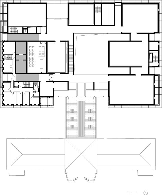
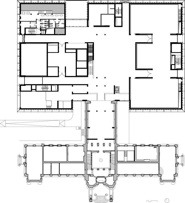
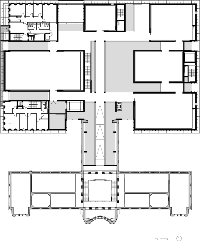
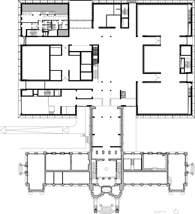
Среди работ архитекторов gmp – von Gerkan, Marg und Partner есть большие музеи в Китае и Вьетнаме (в Пекине, Шанхае, Ханое), однако подобный проект на родине был ими воплощен только сейчас. Речь идет о новом крыле музея современного и новейшего искусства Кунстхалле в Мангейме площадью более 17 тыс. м2, которое дополнило исторический «корпус Биллинга» (назван по имени его архитектора) в стиле модерн.
 
Музей современного искусства Кунстхалле в Мангейме. Фото © Hans-Georg Esch
Музей современного искусства Кунстхалле в Мангейме. Фото © Hans-Georg Esch

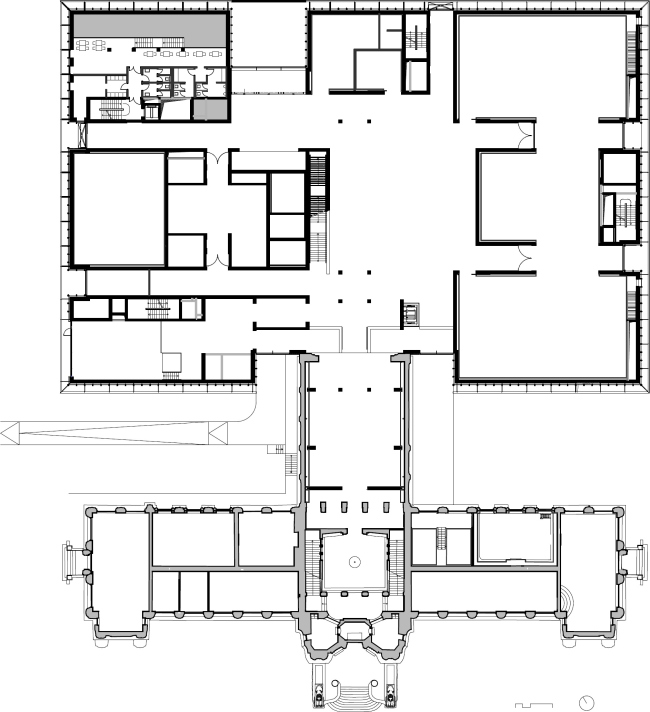
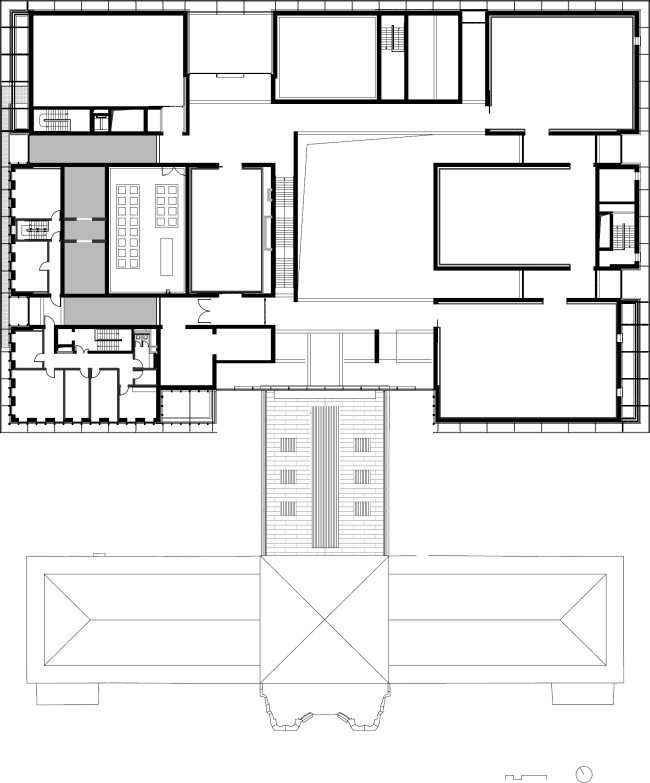
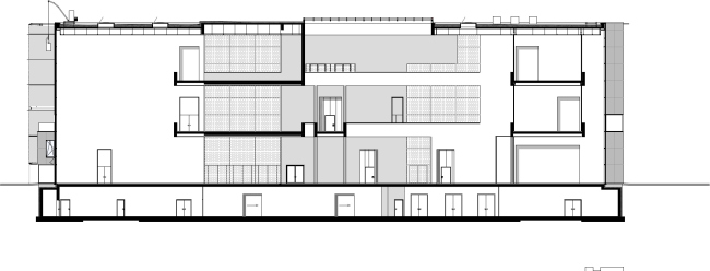
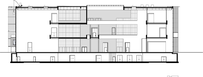
Новый главный вход обращен, как и задумывалось больше века назад при основании Кунстхалле, к скверу Фридрихсплац, и ведет в атриум, откуда начинаются кольцевые маршруты осмотра. С одной стороны, «кубы» с залами и другими помещениями внутри создают в музее разнообразие, подобное городскому ландшафту, с другой – как и в самом «городе площадей» Мангейме с регулярной планировкой центра – в новом здании невозможно заблудиться. Со старым корпусом его связывает исторический «флигель Афины» (над ним теперь поработал Джеймс Таррелл), а дальше посетитель может попасть в сад скульптур.
 
Музей современного искусства Кунстхалле в Мангейме. Фото © Hans-Georg Esch
Музей современного искусства Кунстхалле в Мангейме. Фото © Hans-Georg Esch

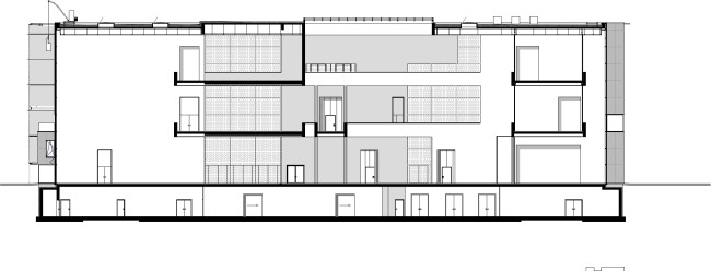
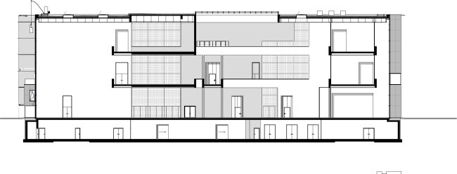
Залы нового здания в основном получили верхнее освещение, но там, где есть окна, создана визуальная связь с окружением. По мысли архитекторов, искусство приходит в город в форме архитектуры, а город проникает в музей через виды изнутри, к примеру, на знаменитую водонапорную башню. Также есть и терраса на верхнем этаже, которая входит в маршруты осмотра.
 
Музей современного искусства Кунстхалле в Мангейме. Фото © Marcus Bredt
Музей современного искусства Кунстхалле в Мангейме. Фото © Marcus Bredt

Фасад покрыт сеткой из нержавеющей стали с покрытием бронзового цвета, гармонирующем с песчаником соседних зданий; общий вес ее панелей – 44 тонны, площадь – 4 635 м2. Ее плотность варьируется – в глухих участках ее плетение гуще. Эффектный образ для Кунстхалле в темное время суток создает система внешней подсветки.
Музей современного искусства Кунстхалле в Мангейме. Фото © Marcus Bredt. Произведение: Алиция Кваде «Подвижная пустота момента» (Die bewegte Leere des Moments), 2015/2017 © Alicja Kwade
Музей современного искусства Кунстхалле в Мангейме. Фото © Marcus Bredt. Произведение: Алиция Кваде «Подвижная пустота момента» (Die bewegte Leere des Moments), 2015/2017 © Alicja Kwade
Музей современного искусства Кунстхалле в Мангейме. Фото © Marcus Bredt. Произведения: Ребекка Хорн «o.T. (Преисподняя)», 1993 © VG Bild-Kunst, Bonn
2017; Ансельм Кифер «Сефирот», 2000 © Anselm Kiefer
Музей современного искусства Кунстхалле в Мангейме. Фото © Marcus Bredt. Произведения: Ребекка Хорн «o.T. (Преисподняя)», 1993 © VG Bild-Kunst, Bonn 2017; Ансельм Кифер «Сефирот», 2000 © Anselm Kiefer
Музей современного искусства Кунстхалле в Мангейме. Фото © Marcus Bredt. Произведения: Алиция Кваде «Подвижная пустота момента» (Die bewegte Leere des Moments), 2015/2017 © Alicja Kwade; Ребекка Хорн «o.T. (Преисподняя)», 1993 © VG Bild-Kunst, Bonn
2017; Ансельм Кифер «Сефирот», 2000 © Anselm Kiefer
Музей современного искусства Кунстхалле в Мангейме. Фото © Marcus Bredt. Произведения: Алиция Кваде «Подвижная пустота момента» (Die bewegte Leere des Moments), 2015/2017 © Alicja Kwade; Ребекка Хорн «o.T. (Преисподняя)», 1993 © VG Bild-Kunst, Bonn 2017; Ансельм Кифер «Сефирот», 2000 © Anselm Kiefer
Музей современного искусства Кунстхалле в Мангейме. Фото © Marcus Bredt. Произведения: Ансельм Кифер «Пути мирской мудрости: битва в Тевтобургском лесу», 1978/1991 © Anselm Kiefer; Ансельм Кифер «Essence – Eksistence», 2011 © Anselm Kiefer
Музей современного искусства Кунстхалле в Мангейме. Фото © Marcus Bredt. Произведения: Ансельм Кифер «Пути мирской мудрости: битва в Тевтобургском лесу», 1978/1991 © Anselm Kiefer; Ансельм Кифер «Essence – Eksistence», 2011 © Anselm Kiefer
Музей современного искусства Кунстхалле в Мангейме. Фото © Marcus Bredt
Музей современного искусства Кунстхалле в Мангейме. Фото © Marcus Bredt
Музей современного искусства Кунстхалле в Мангейме © gmp Architekten
Музей современного искусства Кунстхалле в Мангейме © gmp Architekten
Музей современного искусства Кунстхалле в Мангейме © gmp Architekten
Музей современного искусства Кунстхалле в Мангейме © gmp Architekten
Музей современного искусства Кунстхалле в Мангейме © gmp Architekten
Музей современного искусства Кунстхалле в Мангейме © gmp Architekten
Музей современного искусства Кунстхалле в Мангейме © gmp Architekten
Музей современного искусства Кунстхалле в Мангейме © gmp Architekten
Музей современного искусства Кунстхалле в Мангейме © gmp Architekten
Музей современного искусства Кунстхалле в Мангейме © gmp Architekten
Музей современного искусства Кунстхалле в Мангейме © gmp Architekten
Музей современного искусства Кунстхалле в Мангейме © gmp Architekten
Музей современного искусства Кунстхалле в Мангейме © gmp Architekten
Музей современного искусства Кунстхалле в Мангейме © gmp Architekten