Размещено на портале Архи.ру (www.archi.ru)

20.02.2018

Кирпич на ажурном фасаде

Нина Фролова
Объект:
Больница Fundación Santa Fe de Bogotá – расширение
Адрес:
Колумбия, None, Богота.

Новое крыло больницы Fundación Santa Fe de Bogotá в столице Колумбии по проекту бюро Жанкарло Маццанти.

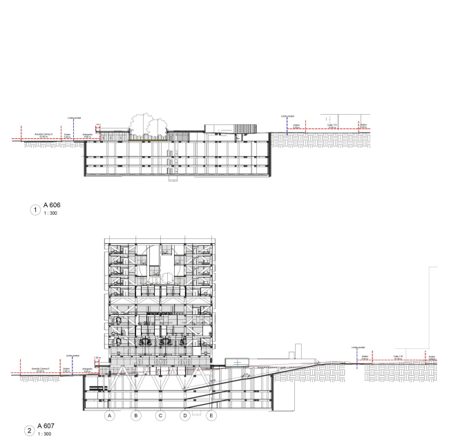
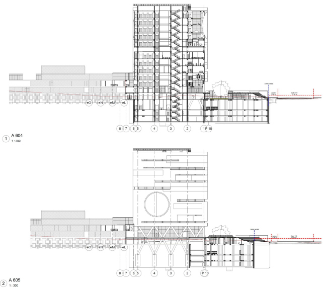
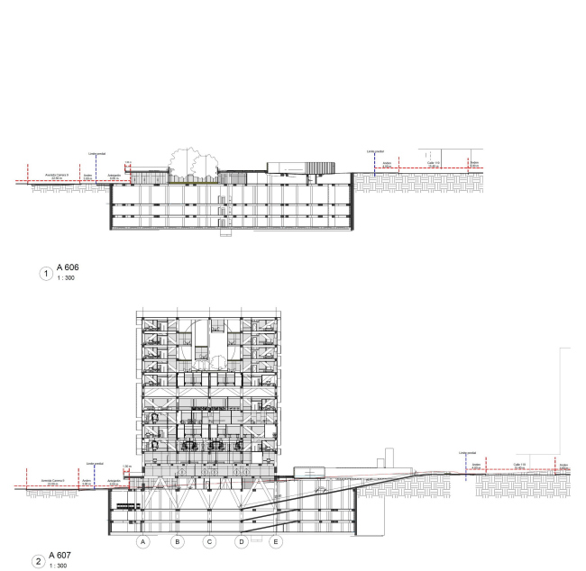
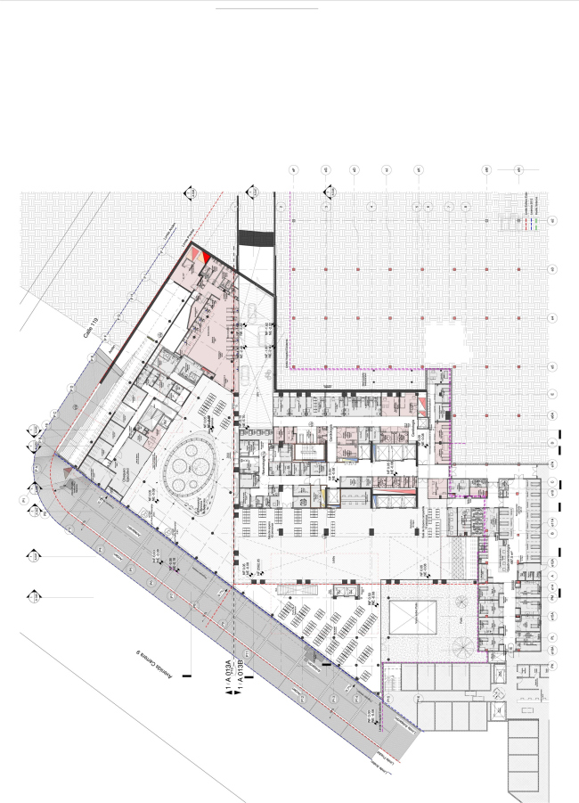
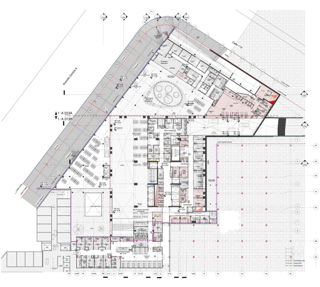
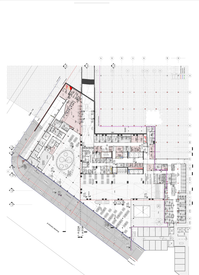
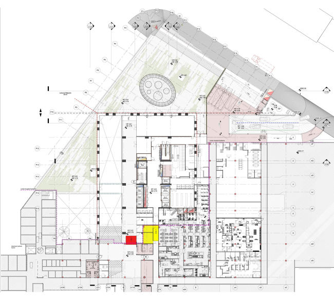
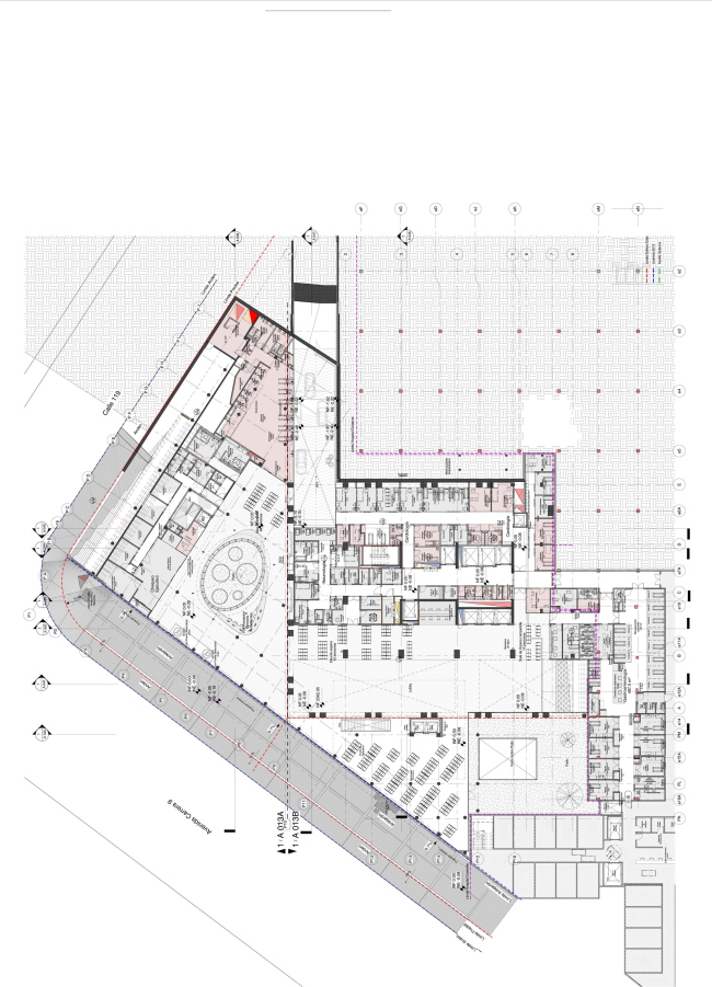
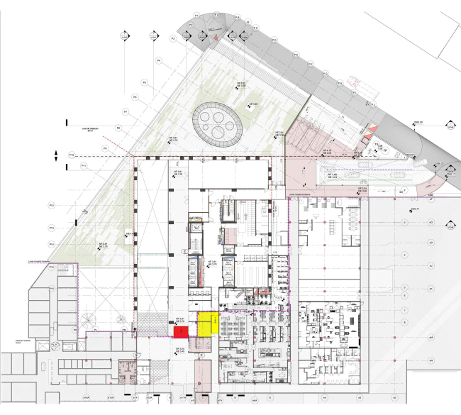
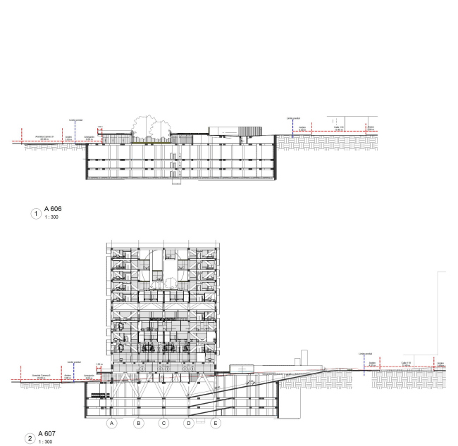
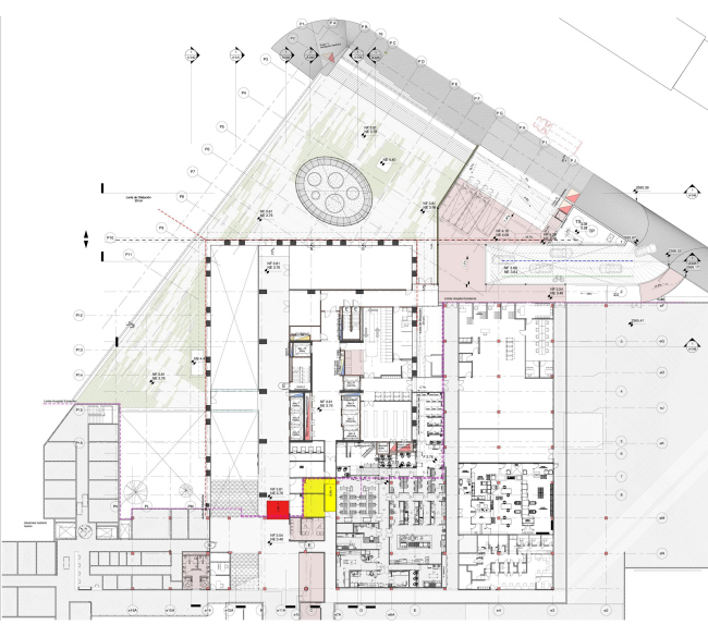
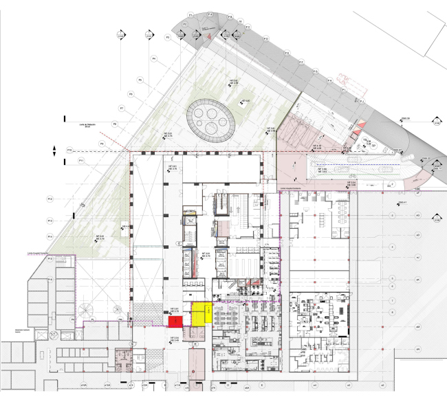
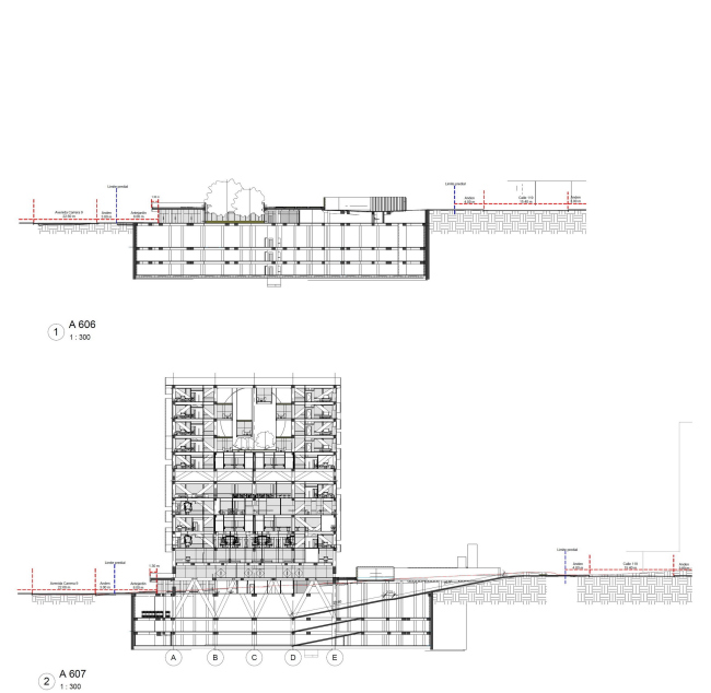
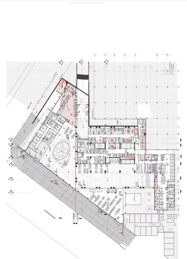
Новый корпус больницы Fundación Santa Fe de Bogotá продолжает характерную для ее комплекса «кирпичную» тему, однако архитекторы El Equipo Mazzanti отказались от обычных, плотных стен. Вместо этого они предпочли трактовать кирпич как проницаемую ткань: с помощью системы металлических креплений и тросов фасады сделаны ажурными, меняющими плотность, узор, кладку.
 

Больница Fundación Santa Fe de Bogotá – расширение © Alejandro Arango
Больница Fundación Santa Fe de Bogotá – расширение © Alejandro Arango

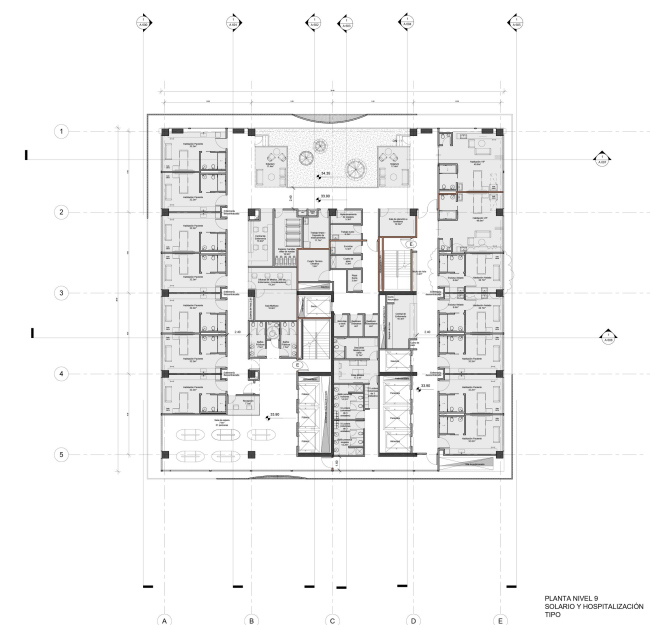
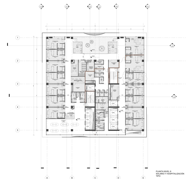
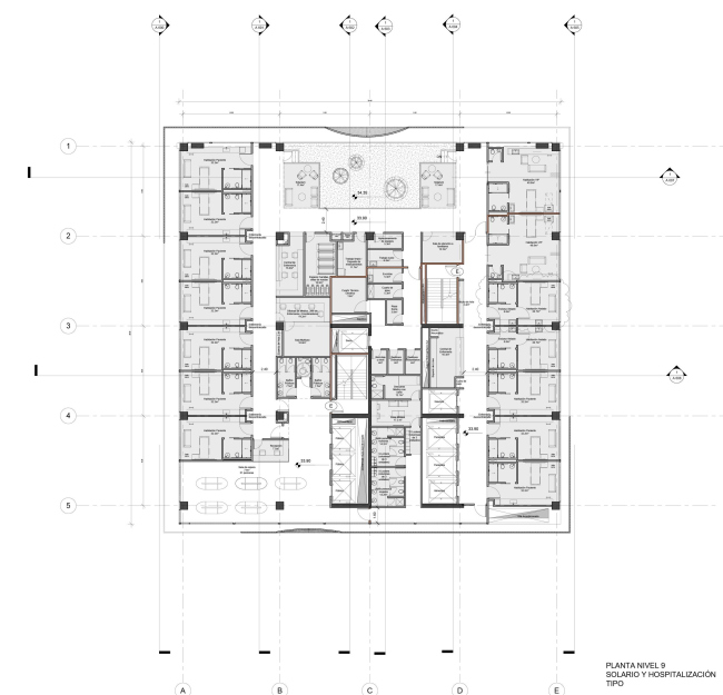
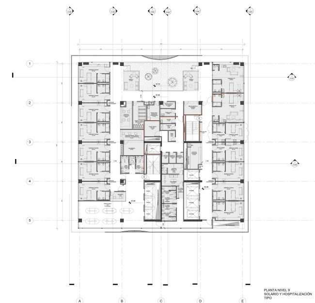
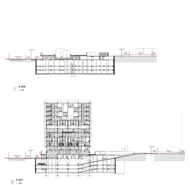
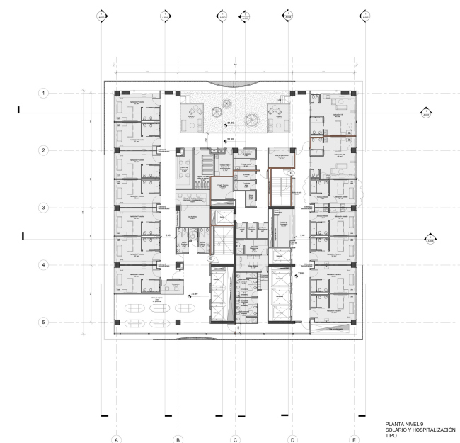
Одной из причин такого подхода было стремление обеспечить пациентов солнечным светом, который, как доказывают многие исследования, способствует скорейшему выздоровлению. Той же цели служит «солярий» с зимним садом на девятом этаже, где пациенты непосредственно или с помощью остекленных «капсул» могут побыть в солнечном и зеленом пространстве.
 
Больница Fundación Santa Fe de Bogotá – расширение © Alejandro Arango
Больница Fundación Santa Fe de Bogotá – расширение © Alejandro Arango

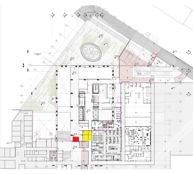
Авторы проекта не забыли и о городе: их здание вписано в среду с помощью базы первого этажа с благоустроенной площадью на его крыше. Там же помещены коммерческие площади, включая кофейню, и многофункциональная аудитория.
Больница Fundación Santa Fe de Bogotá – расширение © Andrés Valbuena
Больница Fundación Santa Fe de Bogotá – расширение © Andrés Valbuena
Больница Fundación Santa Fe de Bogotá – расширение © Alejandro Arango
Больница Fundación Santa Fe de Bogotá – расширение © Alejandro Arango
Больница Fundación Santa Fe de Bogotá – расширение © Alejandro Arango
Больница Fundación Santa Fe de Bogotá – расширение © Alejandro Arango
Больница Fundación Santa Fe de Bogotá – расширение © Fundación Santa Fe de Bogotá
Больница Fundación Santa Fe de Bogotá – расширение © Fundación Santa Fe de Bogotá
Больница Fundación Santa Fe de Bogotá – расширение © Andrés Valbuena
Больница Fundación Santa Fe de Bogotá – расширение © Andrés Valbuena
Больница Fundación Santa Fe de Bogotá – расширение © Alejandro Arango
Больница Fundación Santa Fe de Bogotá – расширение © Alejandro Arango
Больница Fundación Santa Fe de Bogotá – расширение © Alejandro Arango
Больница Fundación Santa Fe de Bogotá – расширение © Alejandro Arango
Больница Fundación Santa Fe de Bogotá – расширение © Alejandro Arango
Больница Fundación Santa Fe de Bogotá – расширение © Alejandro Arango
Больница Fundación Santa Fe de Bogotá – расширение © Alejandro Arango
Больница Fundación Santa Fe de Bogotá – расширение © Alejandro Arango
Больница Fundación Santa Fe de Bogotá – расширение © Alejandro Arango
Больница Fundación Santa Fe de Bogotá – расширение © Alejandro Arango
Больница Fundación Santa Fe de Bogotá – расширение © Alejandro Arango
Больница Fundación Santa Fe de Bogotá – расширение © Alejandro Arango
Больница Fundación Santa Fe de Bogotá – расширение © Alejandro Arango
Больница Fundación Santa Fe de Bogotá – расширение © Alejandro Arango
Больница Fundación Santa Fe de Bogotá – расширение © Alejandro Arango
Больница Fundación Santa Fe de Bogotá – расширение © Alejandro Arango
Больница Fundación Santa Fe de Bogotá – расширение © Alejandro Arango
Больница Fundación Santa Fe de Bogotá – расширение © Alejandro Arango
Больница Fundación Santa Fe de Bogotá – расширение © Alejandro Arango
Больница Fundación Santa Fe de Bogotá – расширение © Alejandro Arango
Больница Fundación Santa Fe de Bogotá – расширение © Alejandro Arango
Больница Fundación Santa Fe de Bogotá – расширение © Alejandro Arango
Больница Fundación Santa Fe de Bogotá – расширение © Alejandro Arango
Больница Fundación Santa Fe de Bogotá – расширение © Alejandro Arango
Больница Fundación Santa Fe de Bogotá – расширение © Alejandro Arango
Больница Fundación Santa Fe de Bogotá – расширение © Alejandro Arango
Больница Fundación Santa Fe de Bogotá – расширение © Alejandro Arango
Больница Fundación Santa Fe de Bogotá – расширение © Alejandro Arango
Больница Fundación Santa Fe de Bogotá – расширение © Andrés Valbuena
Больница Fundación Santa Fe de Bogotá – расширение © Andrés Valbuena
Больница Fundación Santa Fe de Bogotá – расширение © Andrés Valbuena
Больница Fundación Santa Fe de Bogotá – расширение © Andrés Valbuena
Больница Fundación Santa Fe de Bogotá – расширение © Andrés Valbuena
Больница Fundación Santa Fe de Bogotá – расширение © Andrés Valbuena
Больница Fundación Santa Fe de Bogotá – расширение © Andrés Valbuena
Больница Fundación Santa Fe de Bogotá – расширение © Andrés Valbuena
Больница Fundación Santa Fe de Bogotá – расширение © Fundación Santa Fe de Bogotá
Больница Fundación Santa Fe de Bogotá – расширение © Fundación Santa Fe de Bogotá
Больница Fundación Santa Fe de Bogotá – расширение © Andrés Valbuena
Больница Fundación Santa Fe de Bogotá – расширение © Andrés Valbuena
Больница Fundación Santa Fe de Bogotá – расширение © Alejandro Arango
Больница Fundación Santa Fe de Bogotá – расширение © Alejandro Arango
Больница Fundación Santa Fe de Bogotá – расширение © Alejandro Arango
Больница Fundación Santa Fe de Bogotá – расширение © Alejandro Arango
Больница Fundación Santa Fe de Bogotá – расширение © Alejandro Arango
Больница Fundación Santa Fe de Bogotá – расширение © Alejandro Arango
Больница Fundación Santa Fe de Bogotá – расширение © Fredy Fortich / El Equipo Mazzanti
Больница Fundación Santa Fe de Bogotá – расширение © Fredy Fortich / El Equipo Mazzanti
Больница Fundación Santa Fe de Bogotá – расширение © Fundación Santa Fe de Bogotá
Больница Fundación Santa Fe de Bogotá – расширение © Fundación Santa Fe de Bogotá
Больница Fundación Santa Fe de Bogotá – расширение © Alejandro Arango
Больница Fundación Santa Fe de Bogotá – расширение © Alejandro Arango
Больница Fundación Santa Fe de Bogotá – расширение © Alejandro Arango
Больница Fundación Santa Fe de Bogotá – расширение © Alejandro Arango
Больница Fundación Santa Fe de Bogotá – расширение © Alejandro Arango
Больница Fundación Santa Fe de Bogotá – расширение © Alejandro Arango
Больница Fundación Santa Fe de Bogotá – расширение © Fundación Santa Fe de Bogotá
Больница Fundación Santa Fe de Bogotá – расширение © Fundación Santa Fe de Bogotá
Больница Fundación Santa Fe de Bogotá – расширение © Fredy Fortich / El Equipo Mazzanti
Больница Fundación Santa Fe de Bogotá – расширение © Fredy Fortich / El Equipo Mazzanti
Больница Fundación Santa Fe de Bogotá – расширение © Alejandro Arango
Больница Fundación Santa Fe de Bogotá – расширение © Alejandro Arango
Больница Fundación Santa Fe de Bogotá – расширение © Alejandro Arango
Больница Fundación Santa Fe de Bogotá – расширение © Alejandro Arango
Больница Fundación Santa Fe de Bogotá – расширение © Alejandro Arango
Больница Fundación Santa Fe de Bogotá – расширение © Alejandro Arango
Больница Fundación Santa Fe de Bogotá – расширение © Alejandro Arango
Больница Fundación Santa Fe de Bogotá – расширение © Alejandro Arango
Больница Fundación Santa Fe de Bogotá – расширение © Alejandro Arango
Больница Fundación Santa Fe de Bogotá – расширение © Alejandro Arango
Больница Fundación Santa Fe de Bogotá – расширение © Alejandro Arango
Больница Fundación Santa Fe de Bogotá – расширение © Alejandro Arango
Больница Fundación Santa Fe de Bogotá – расширение © Fredy Fortich / El Equipo Mazzanti
Больница Fundación Santa Fe de Bogotá – расширение © Fredy Fortich / El Equipo Mazzanti
Больница Fundación Santa Fe de Bogotá – расширение © Fredy Fortich / El Equipo Mazzanti
Больница Fundación Santa Fe de Bogotá – расширение © Fredy Fortich / El Equipo Mazzanti
Больница Fundación Santa Fe de Bogotá – расширение © Alejandro Arango
Больница Fundación Santa Fe de Bogotá – расширение © Alejandro Arango
Больница Fundación Santa Fe de Bogotá – расширение © Alejandro Arango
Больница Fundación Santa Fe de Bogotá – расширение © Alejandro Arango
Больница Fundación Santa Fe de Bogotá – расширение © Alejandro Arango
Больница Fundación Santa Fe de Bogotá – расширение © Alejandro Arango
Больница Fundación Santa Fe de Bogotá – расширение © Alejandro Arango
Больница Fundación Santa Fe de Bogotá – расширение © Alejandro Arango
Больница Fundación Santa Fe de Bogotá – расширение © Alejandro Arango
Больница Fundación Santa Fe de Bogotá – расширение © Alejandro Arango
Больница Fundación Santa Fe de Bogotá – расширение © Alejandro Arango
Больница Fundación Santa Fe de Bogotá – расширение © Alejandro Arango
Больница Fundación Santa Fe de Bogotá – расширение © Alejandro Arango
Больница Fundación Santa Fe de Bogotá – расширение © Alejandro Arango
Больница Fundación Santa Fe de Bogotá – расширение © Alejandro Arango
Больница Fundación Santa Fe de Bogotá – расширение © Alejandro Arango
Больница Fundación Santa Fe de Bogotá – расширение © Alejandro Arango
Больница Fundación Santa Fe de Bogotá – расширение © Alejandro Arango
Больница Fundación Santa Fe de Bogotá – расширение © Alejandro Arango
Больница Fundación Santa Fe de Bogotá – расширение © Alejandro Arango
Больница Fundación Santa Fe de Bogotá – расширение © Alejandro Arango
Больница Fundación Santa Fe de Bogotá – расширение © Alejandro Arango
Больница Fundación Santa Fe de Bogotá – расширение © Alejandro Arango
Больница Fundación Santa Fe de Bogotá – расширение © Alejandro Arango
Больница Fundación Santa Fe de Bogotá – расширение © Alejandro Arango
Больница Fundación Santa Fe de Bogotá – расширение © Alejandro Arango
Больница Fundación Santa Fe de Bogotá – расширение © Alejandro Arango
Больница Fundación Santa Fe de Bogotá – расширение © Alejandro Arango
Больница Fundación Santa Fe de Bogotá – расширение © Alejandro Arango
Больница Fundación Santa Fe de Bogotá – расширение © Alejandro Arango
Больница Fundación Santa Fe de Bogotá – расширение © Fredy Fortich / El Equipo Mazzanti
Больница Fundación Santa Fe de Bogotá – расширение © Fredy Fortich / El Equipo Mazzanti
Больница Fundación Santa Fe de Bogotá – расширение © Fredy Fortich / El Equipo Mazzanti
Больница Fundación Santa Fe de Bogotá – расширение © Fredy Fortich / El Equipo Mazzanti
Больница Fundación Santa Fe de Bogotá – расширение © Fredy Fortich / El Equipo Mazzanti
Больница Fundación Santa Fe de Bogotá – расширение © Fredy Fortich / El Equipo Mazzanti
Больница Fundación Santa Fe de Bogotá – расширение © Fredy Fortich / El Equipo Mazzanti
Больница Fundación Santa Fe de Bogotá – расширение © Fredy Fortich / El Equipo Mazzanti
Больница Fundación Santa Fe de Bogotá – расширение © El Equipo Mazzanti
Больница Fundación Santa Fe de Bogotá – расширение © El Equipo Mazzanti
Больница Fundación Santa Fe de Bogotá – расширение © El Equipo Mazzanti
Больница Fundación Santa Fe de Bogotá – расширение © El Equipo Mazzanti
Больница Fundación Santa Fe de Bogotá – расширение © El Equipo Mazzanti
Больница Fundación Santa Fe de Bogotá – расширение © El Equipo Mazzanti
Больница Fundación Santa Fe de Bogotá – расширение © El Equipo Mazzanti
Больница Fundación Santa Fe de Bogotá – расширение © El Equipo Mazzanti
Больница Fundación Santa Fe de Bogotá – расширение © El Equipo Mazzanti
Больница Fundación Santa Fe de Bogotá – расширение © El Equipo Mazzanti
Больница Fundación Santa Fe de Bogotá – расширение © El Equipo Mazzanti
Больница Fundación Santa Fe de Bogotá – расширение © El Equipo Mazzanti
Больница Fundación Santa Fe de Bogotá – расширение © El Equipo Mazzanti
Больница Fundación Santa Fe de Bogotá – расширение © El Equipo Mazzanti
Больница Fundación Santa Fe de Bogotá – расширение © El Equipo Mazzanti
Больница Fundación Santa Fe de Bogotá – расширение © El Equipo Mazzanti
Больница Fundación Santa Fe de Bogotá – расширение © El Equipo Mazzanti
Больница Fundación Santa Fe de Bogotá – расширение © El Equipo Mazzanti
Больница Fundación Santa Fe de Bogotá – расширение © El Equipo Mazzanti
Больница Fundación Santa Fe de Bogotá – расширение © El Equipo Mazzanti
Больница Fundación Santa Fe de Bogotá – расширение © El Equipo Mazzanti
Больница Fundación Santa Fe de Bogotá – расширение © El Equipo Mazzanti
Больница Fundación Santa Fe de Bogotá – расширение © El Equipo Mazzanti
Больница Fundación Santa Fe de Bogotá – расширение © El Equipo Mazzanti
Больница Fundación Santa Fe de Bogotá – расширение © El Equipo Mazzanti
Больница Fundación Santa Fe de Bogotá – расширение © El Equipo Mazzanti
Больница Fundación Santa Fe de Bogotá – расширение © El Equipo Mazzanti
Больница Fundación Santa Fe de Bogotá – расширение © El Equipo Mazzanti
Больница Fundación Santa Fe de Bogotá – расширение © El Equipo Mazzanti
Больница Fundación Santa Fe de Bogotá – расширение © El Equipo Mazzanti
Больница Fundación Santa Fe de Bogotá – расширение © El Equipo Mazzanti
Больница Fundación Santa Fe de Bogotá – расширение © El Equipo Mazzanti
Больница Fundación Santa Fe de Bogotá – расширение © El Equipo Mazzanti
Больница Fundación Santa Fe de Bogotá – расширение © El Equipo Mazzanti
Больница Fundación Santa Fe de Bogotá – расширение © El Equipo Mazzanti
Больница Fundación Santa Fe de Bogotá – расширение © El Equipo Mazzanti