Размещено на портале Архи.ру (www.archi.ru)

19.02.2018

Свет-лестница

Серафима Львовская
Объект:
Реконструкция дома в Нижнем Новгороде
Адрес:
Россия, Нижний Новгород.
Мастерская:
VELUX (Велюкс)
Авторский коллектив:
Сергей Туманин, Марина Туманина

Марина и Сергей Туманины реконструировали корпус дома 1990-х, превратив его в пятиярусную городскую виллу с очень светлым и лаконичным интерьером, сгруппированным вокруг лестницы.

Реконструкция дома в Нижнем Новгороде. Проект Марины и Сергея Туманиных. Фотография © Александр Ивасенко
Реконструкция дома в Нижнем Новгороде. Проект Марины и Сергея Туманиных. Фотография © Александр Ивасенко

Этот дом во дворах старой части Нижнего Новгорода построен в середине девяностых и обладает характерной для своего времени нетипичной структурой. Один из его корпусов-ризалитов так и простоял пустым, незаселенным, больше полутора десятков лет. Теперь же от архитекторов требовалось превратить все его пять ярусов, нанизанных на дугообразный выступ внутренней лестницы, в стильное жилое пространство, – задача, по словам Марины и Сергея Туманиных, интересная и нетривиальная.
Реконструкция дома в Нижнем Новгороде. 3D разрез © Проект Марины и Сергея Туманиных
Реконструкция дома в Нижнем Новгороде. 3D разрез © Проект Марины и Сергея Туманиных

На первом этаже, в одном уровне с улицей, поместился гараж для одной машины. В подвальном ярусе – сауна, котельная, тренажерный зал. На втором этаже кухня и гостиная, выше спальня и детская, в мансарде – пара гостевых и кабинет.
Реконструкция дома в Нижнем Новгороде. 3D разрез © Проект Марины и Сергея Туманиных
Реконструкция дома в Нижнем Новгороде. 3D разрез © Проект Марины и Сергея Туманиных

Так что лестница предсказуемо стала главным элементом интерьера, беря на себя роль коммуникационного ядра, также как и главного источника света. Две стены блока – глухие, одна из них примыкает к соседнему дому, другая – к основному корпусу. Окна есть только на двух стенах, поэтому каждый источник естественного света был важен. Архитекторы расширили витраж лестницы, устроили над ней пару мансардных окон Velux, чтобы лучше осветить «лимонную дольку» лестничной вертикали. Ограждения лестницы стали прозрачными – стеклянными, гнутыми по лекалам индивидуальной кривизны, с белыми кориановыми поручнями.

«Главная проблема лестницы, которую требовалось решить – это несовпадение геометрии всех маршей и по горизонтали и по вертикали, особенно радиусных ступеней, – рассказывают архитекторы. – Нам пришлось уменьшать уклон, вытягивать все проступи, чтобы сделать комфортным подъем и спуск по реконструированным ступеням». Впрочем, в конечном счете проблемы удалось решить: лестница с ее сияющими белым светом косоурами стала осью и украшением.
Реконструкция дома в Нижнем Новгороде. Проект Марины и Сергея Туманиных. Фотография © Александр Ивасенко
Реконструкция дома в Нижнем Новгороде. Проект Марины и Сергея Туманиных. Фотография © Александр Ивасенко
Реконструкция дома в Нижнем Новгороде. Проект Марины и Сергея Туманиных. Фотография © Александр Ивасенко
Реконструкция дома в Нижнем Новгороде. Проект Марины и Сергея Туманиных. Фотография © Александр Ивасенко
Реконструкция дома в Нижнем Новгороде. Проект Марины и Сергея Туманиных. Фотография © Александр Ивасенко
Реконструкция дома в Нижнем Новгороде. Проект Марины и Сергея Туманиных. Фотография © Александр Ивасенко
Реконструкция дома в Нижнем Новгороде. Проект Марины и Сергея Туманиных. Фотография © Александр Ивасенко
Реконструкция дома в Нижнем Новгороде. Проект Марины и Сергея Туманиных. Фотография © Александр Ивасенко
Реконструкция дома в Нижнем Новгороде. Проект Марины и Сергея Туманиных. Фотография © Александр Ивасенко
Реконструкция дома в Нижнем Новгороде. Проект Марины и Сергея Туманиных. Фотография © Александр Ивасенко
Реконструкция дома в Нижнем Новгороде. Проект Марины и Сергея Туманиных. Фотография © Александр Ивасенко
Реконструкция дома в Нижнем Новгороде. Проект Марины и Сергея Туманиных. Фотография © Александр Ивасенко
Реконструкция дома в Нижнем Новгороде. Проект Марины и Сергея Туманиных. Фотография © Александр Ивасенко
Реконструкция дома в Нижнем Новгороде. Проект Марины и Сергея Туманиных. Фотография © Александр Ивасенко

Все другие элементы жилого пространства архитекторы, дабы не спорить с главным акцентом, решили подчеркнуто цельно и лаконично, в строгом минимализме белых стен и индивидуальной мебели, подчеркнутых белым же светом. Краска Benjamin Moore делает, по словам архитектора, минималистичные поверхности разнообразными при разном освещении. Удачным решением Сергей Туманин считает использование паркета Bauwerk – первый в России пример использования этого решения – им отделаны все уровни выше первого этажа; особенно архитектор хвалит отделку ступеней, каждый угол был изготовлен на заводе, что обеспечило высокое качество.

Все четыре санузла имеют индивидуальный дизайн, столь же лаконичный, но местами оживленный цветными вкраплениями. Каждая раковина тоже из кориана.

Кроме всего прочего здесь есть терраса, подобная итальянским, для кофе и цветов, с видом на внутренний зеленый двор.
Реконструкция дома в Нижнем Новгороде. Проект Марины и Сергея Туманиных. Фотография © Александр Ивасенко
Реконструкция дома в Нижнем Новгороде. Проект Марины и Сергея Туманиных. Фотография © Александр Ивасенко
Реконструкция дома в Нижнем Новгороде. Проект Марины и Сергея Туманиных. Фотография © Александр Ивасенко
Реконструкция дома в Нижнем Новгороде. Проект Марины и Сергея Туманиных. Фотография © Александр Ивасенко
Реконструкция дома в Нижнем Новгороде. Проект Марины и Сергея Туманиных. Фотография © Александр Ивасенко
Реконструкция дома в Нижнем Новгороде. Проект Марины и Сергея Туманиных. Фотография © Александр Ивасенко
Реконструкция дома в Нижнем Новгороде. Проект Марины и Сергея Туманиных. Фотография © Александр Ивасенко
Реконструкция дома в Нижнем Новгороде. Проект Марины и Сергея Туманиных. Фотография © Александр Ивасенко
Реконструкция дома в Нижнем Новгороде. Проект Марины и Сергея Туманиных. Фотография © Александр Ивасенко
Реконструкция дома в Нижнем Новгороде. Проект Марины и Сергея Туманиных. Фотография © Александр Ивасенко
Реконструкция дома в Нижнем Новгороде. Проект Марины и Сергея Туманиных. Фотография © Александр Ивасенко
Реконструкция дома в Нижнем Новгороде. Проект Марины и Сергея Туманиных. Фотография © Александр Ивасенко
Реконструкция дома в Нижнем Новгороде. Проект Марины и Сергея Туманиных. Фотография © Александр Ивасенко
Реконструкция дома в Нижнем Новгороде. Проект Марины и Сергея Туманиных. Фотография © Александр Ивасенко
Реконструкция дома в Нижнем Новгороде. Проект Марины и Сергея Туманиных. Фотография © Александр Ивасенко
Реконструкция дома в Нижнем Новгороде. Проект Марины и Сергея Туманиных. Фотография © Александр Ивасенко
Реконструкция дома в Нижнем Новгороде. Проект Марины и Сергея Туманиных. Фотография © Александр Ивасенко
Реконструкция дома в Нижнем Новгороде. Проект Марины и Сергея Туманиных. Фотография © Александр Ивасенко
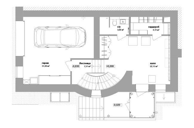
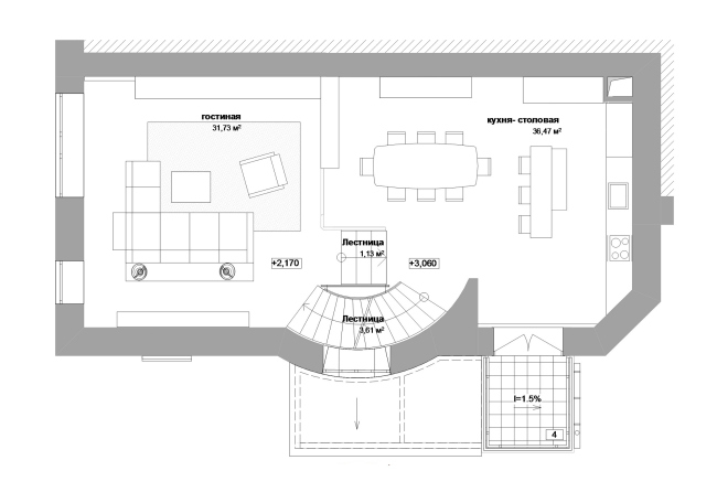
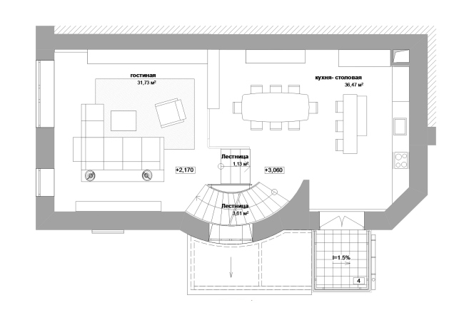
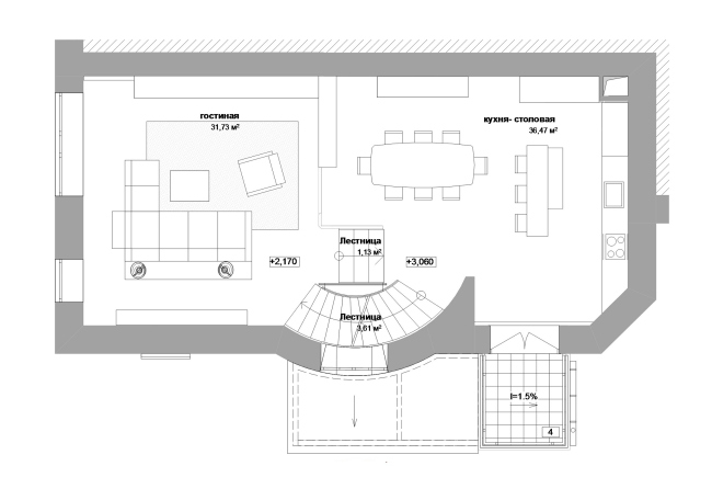
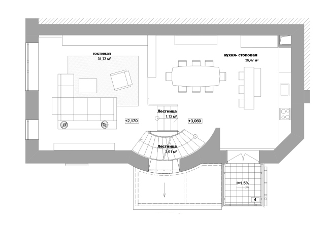
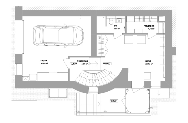
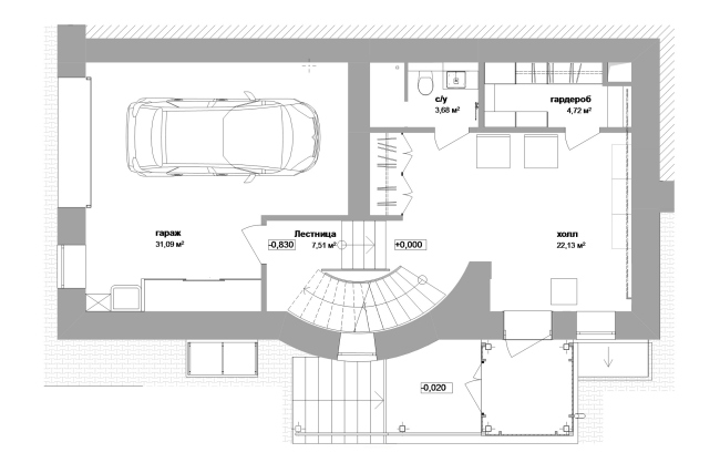
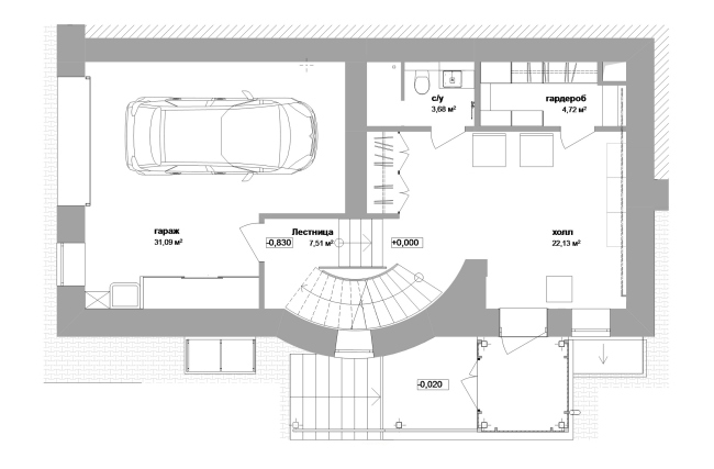
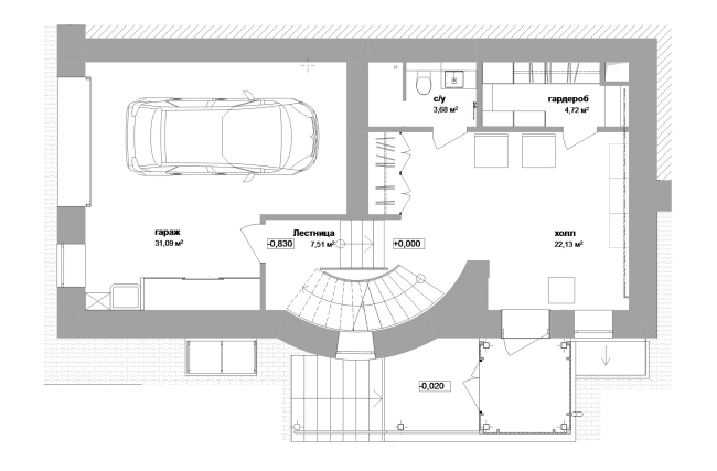
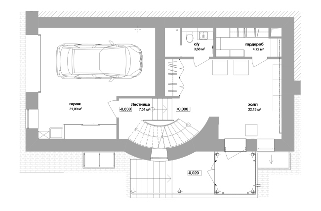
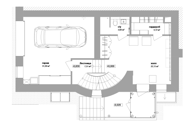
Реконструкция дома в Нижнем Новгороде. План 1 этажа © Проект Марины и Сергея Туманиных
Реконструкция дома в Нижнем Новгороде. План 1 этажа © Проект Марины и Сергея Туманиных
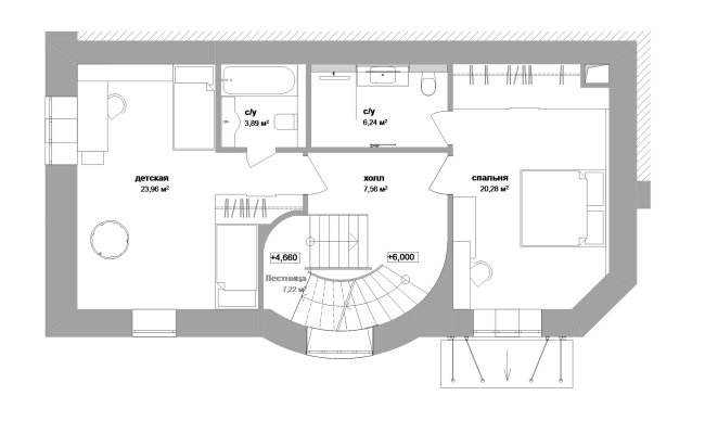
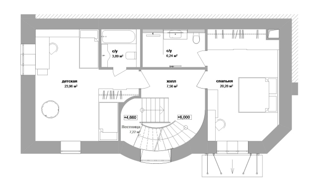
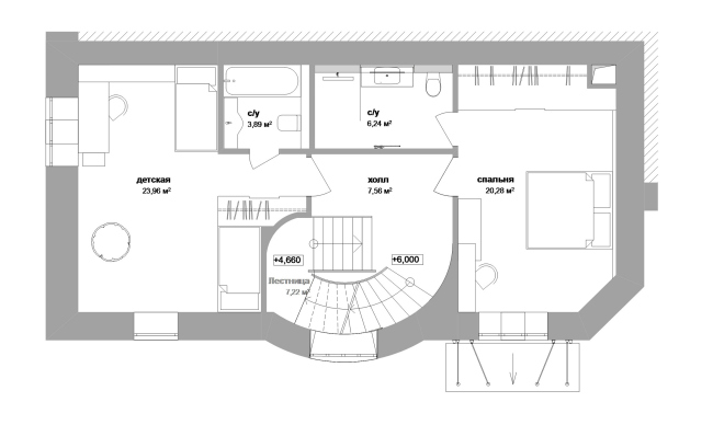
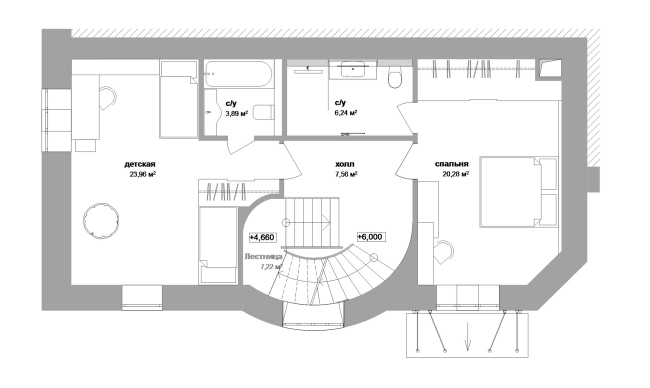
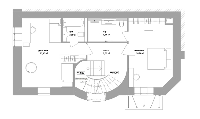
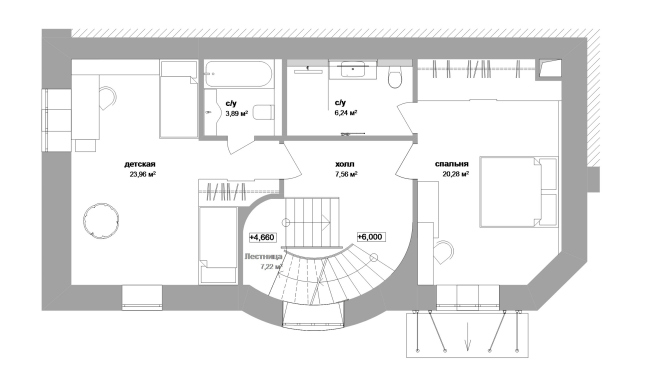
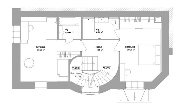
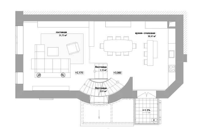
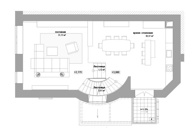
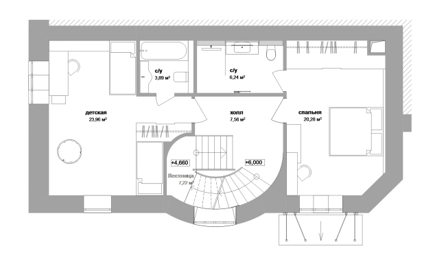
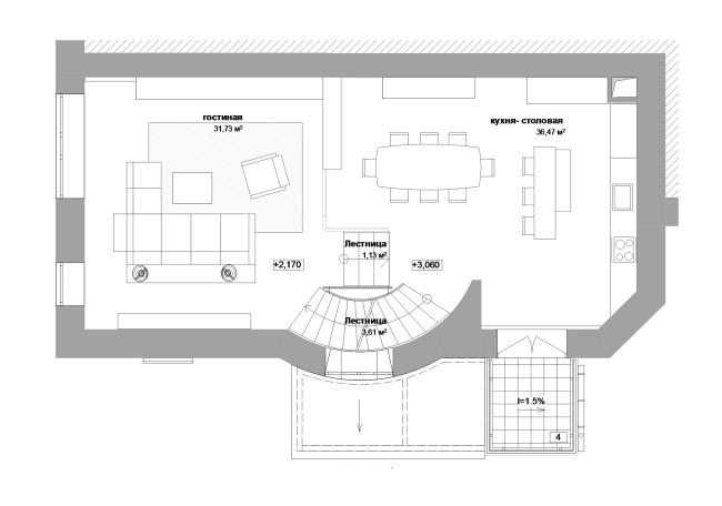
Реконструкция дома в Нижнем Новгороде. План 2 этажа © Проект Марины и Сергея Туманиных
Реконструкция дома в Нижнем Новгороде. План 2 этажа © Проект Марины и Сергея Туманиных
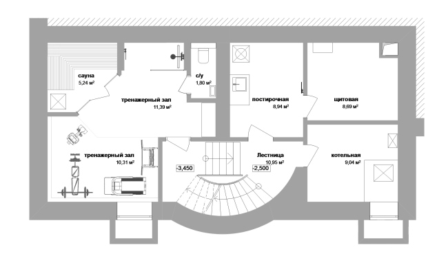
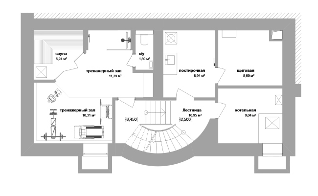
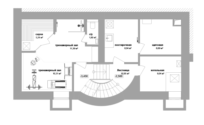
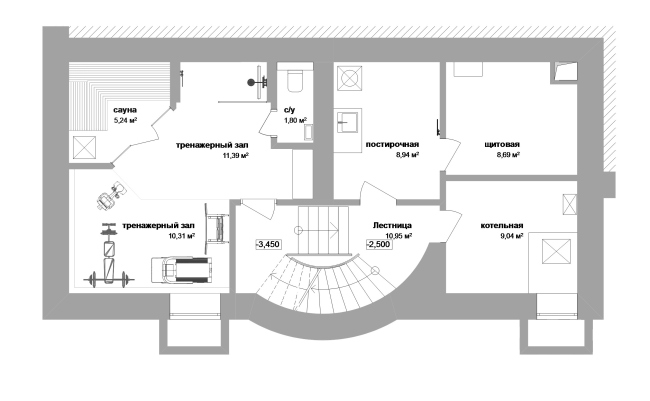
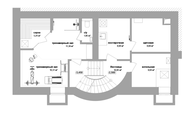
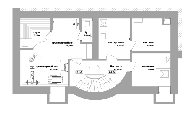
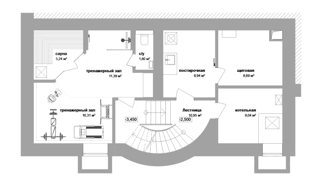
Реконструкция дома в Нижнем Новгороде. План -1 этажа © Проект Марины и Сергея Туманиных
Реконструкция дома в Нижнем Новгороде. План -1 этажа © Проект Марины и Сергея Туманиных
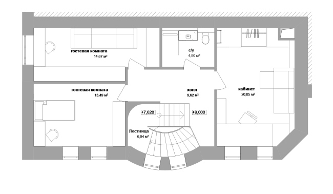
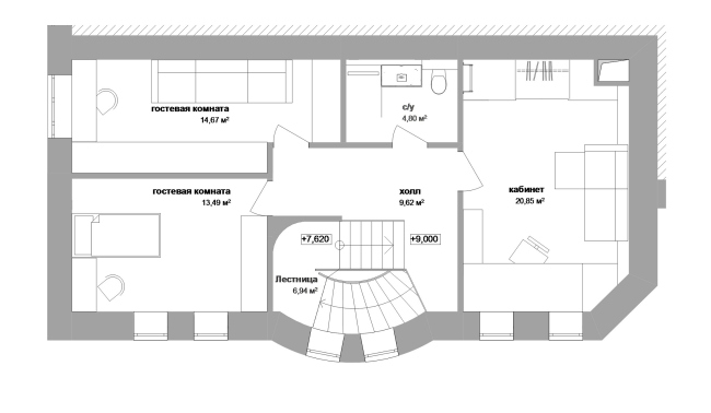
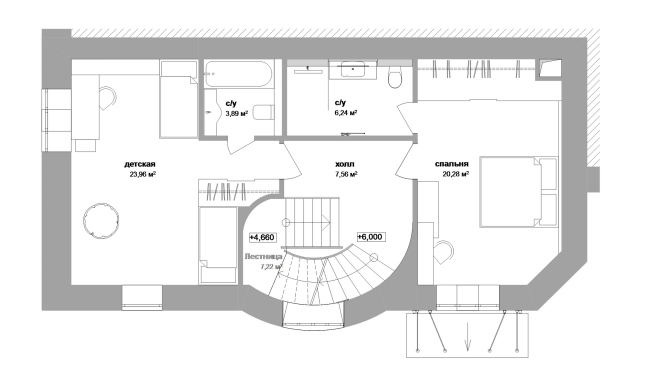
Реконструкция дома в Нижнем Новгороде. План 3 этажа © Проект Марины и Сергея Туманиных
Реконструкция дома в Нижнем Новгороде. План 3 этажа © Проект Марины и Сергея Туманиных
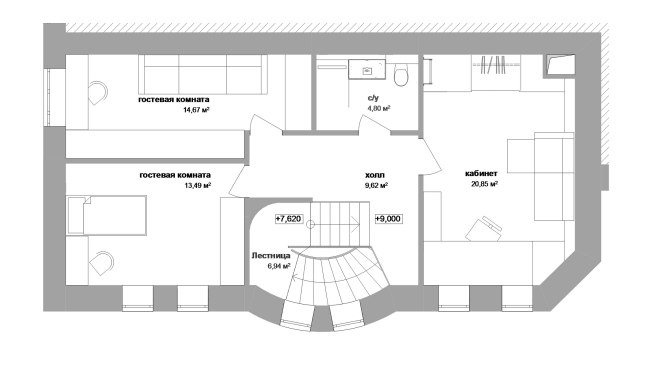
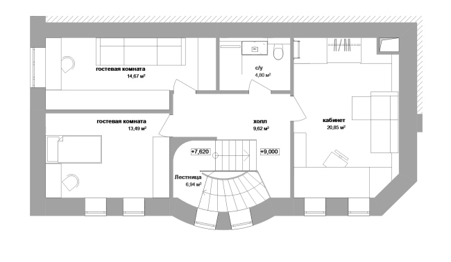
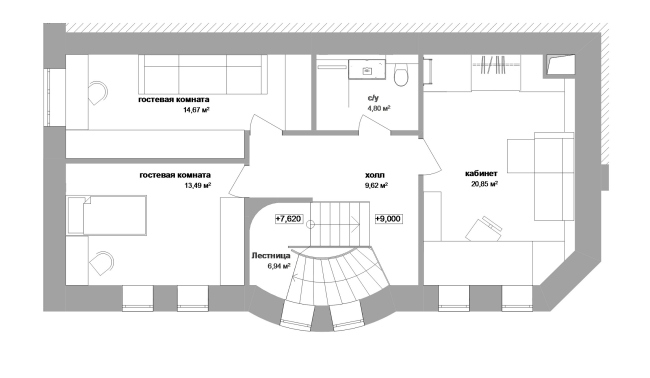
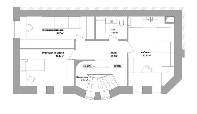
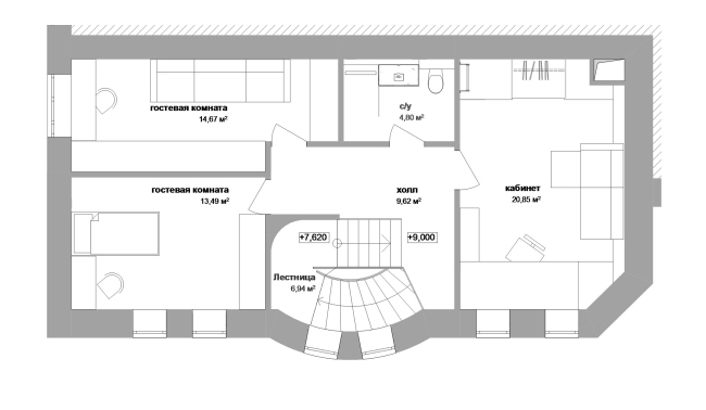
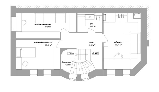
Реконструкция дома в Нижнем Новгороде. План 4 этажа © Проект Марины и Сергея Туманиных
Реконструкция дома в Нижнем Новгороде. План 4 этажа © Проект Марины и Сергея Туманиных