Размещено на портале Архи.ру (www.archi.ru)

08.02.2018

Архсовет Москвы – 55

Мария Трошина
Объект:
Жилой комплекс RED7
Адрес:
Россия, Москва. проспект Академика Сахарова, 11
Мастерская:
MVRDV
Проектное бюро АПЕКС
Авторский коллектив:
Концепция – MVRDV LLC
Architect: MVRDV
Principal in charge: Jacob van Rijs
Partner: Frans de Witte
Design team: Fedor Bron, Mick van Gemert, Elija Kozak, Daniele Zonta, Sandra Jasionyte, Fouad Addou, Gerard Heerink, Iker Perez
Visualization: Antonio Luca Coco, Davide Calabro, Pavlos Ventouris, Tomaso Maschietti, Kirill Emelianov, Luca Piattelli
Strategy & Development: Willeke Vester, Bart Dankers, Elija Kozak 
Copyright: MVRDV
MVRDV Winy Maas, Jacob van Rijs, Nathalie de Vries
Генпроектировщик – ООО «Проектное бюро «АПЕКС»

Москва пополнит коллекцию объектов, построенных по проекту звезд архитектуры. МФК на пересечении проспекта Сахарова и Садовой-Спасской одобрен архсоветом.

Жилой комплекс RED7
Жилой комплекс RED7
© MVRDV

Пустовавший с 1970-х годов участок на пересечении Садового кольца с проспектом Сахарова было решено застроить многофункциональным офисно-жилым комплексом. ГК «Основа» провела закрытый конкурс, где выиграл проект MVRDV под рабочим названием «Силуэты». Красный многоэтажный комплекс высотой в 76 метров уже после объявления результатов стал предметом широкого обсуждения. Мощный резонанс и значимость места стали причиной вынесения концепции MVRDV на рассмотрение архсовета Москвы.

В представленной презентации была проанализирована градостроительная ситуация, учитывающая расположение нового объекта по отношению к важным постройкам, находящимся поблизости, в частности – к высотке Алексея Душкина на Красных воротах, зданию Центросоюза Ле Корбюзье, гостинице «Ленинградская» Леонида Полякова. Особое внимание было уделено зданию Наркомзема, работе Алексея Щусева, расположенной через дорогу от проектируемого комплекса: от нее позаимствован красный цвет и решение угловых окон. В паре с щусевской постройкой новое сооружение должно, по убеждению архитекторов, создать «символические ворота в центр города».
Жилой комплекс RED7
Жилой комплекс RED7
© MVRDV

Сложная форма здания, которое при обсуждении проекта в сети уже назвали верблюдом и головным офисом Московского метро – продиктована не только поэтическим переложением в абстракцию силуэтов столицы (именно это послужило основой для названия комплекса: «Московский силуэт»), подкрепленным в презентации демонстрацией «Красного квадрата» Казимира Малевича. Скульптурные вырезы в верхней части здания обусловлены нормами инсоляции, а в нижней – оптимальным расположением входных групп. Получившиеся террасы апартаментов и многочисленные уступы усиливают видовые характеристики здания.
Жилой комплекс RED7
Жилой комплекс RED7
© MVRDV

Проект предполагается выполнить в достаточно простом конструктиве, сделав акцент на фасадной отделке – используемый кирпич должен иметь разную отражающую способность. Также были представлены альтернативы красному решению фасадов – в песчанике и белом кирпиче.

Все участники совета отметили важность появления в Москве постройки таких знаковых архитекторов, как MVRDV: «Это приятно,что теперь наши студенты смогут изучать вашу работу на натуре, а не по книгам», – отметил Александр Кудрявцев. Одним из первых на обсуждении выступил Юрий Григорян, который хорошо знаком с территорией и техническим заданием заказчика – бюро «Меганом» было одним из трех финалистов закрытого конкурса, проведенного ГК «Основа». «Есть очень важная точка восприятия этого участка с Садово-Кудринской. Здание высотой 78 метров, поставленное на красную линию улицы, закрывает высотку Душкина. Мне как москвичу важно услышать: не могли бы архитекторы каким-то образом отклонить ось здания от Садового кольца, чтобы раскрыть этот вид?». Другим пожеланием архитектора была активация жизни со стороны заднего фасада, чтобы появилась связь с прилегающими улицами.
Жилой комплекс RED7
Жилой комплекс RED7
© MVRDV

Николай Ляшенко поддержал проект, высказав опасения по поводу качества его реализации: «Важно, чтобы, когда начнется стройка, у девелопера не включился «калькулятор», и все было реализовано так, как это и задумывалось».

«Очевидно, что здесь перед архитекторами стояла экстремальная задача – и объемы, и высоты, и на нее дан адекватный архитектурный ответ, также максимально экстремальный. При этом все эти максимальные категории немного зашкаливают. В нем скрыт огромный потенциал всех качеств, и мне кажется, светлый вариант, представленный сегодня, мог бы стать той мерой, которая все это сдерживает. Светлое решение также лучше сработает на силуэт, а здание в красном варианте будет выглядеть темной массой в условиях московской освещенности», – поделился своими мыслями Андрей Гнездилов.
Жилой комплекс RED7
Жилой комплекс RED7
© MVRDV

Много вопросов вызвала и уместность столь масштабного сооружения в центре города. Особенно категорично высказался Александр Кудрявцев: «Когда я смотрю на проект отдельно, он вызывает у меня глубокое удовлетворение. Но в отрыве от места. В конце Кутузовского проспекта он мог бы смотреться прекрасно. Но с точки зрения градостроительной ситуации этот объект нарушает традиции, которые сложились в центральной части города. С другой стороны, если мы будем корректировать проект, то в нем исчезнет та острота, которая сейчас ему присуща».

Подытоживая заседание, главный архитектор города Сергей Кузнецов отметил непростую задачу, стоящую перед архсоветом: «Перефразируя цитату Довлатова, можно сказать, что хорошему автору не нужен редактор, а плохому – редактор не поможет, но, тем не менее, очевидно, что впереди еще много работы. И во многом это ответственность заказчика. Мы поздравляем MVRDV с получением одобрения совета». Проект был утвержден в самом ярком «красном» варианте.
 
Жилой комплекс RED7
Жилой комплекс RED7
© MVRDV
Жилой комплекс RED7
Жилой комплекс RED7
© MVRDV
Жилой комплекс RED7
Жилой комплекс RED7
© MVRDV
Жилой комплекс RED7
Жилой комплекс RED7
© MVRDV
Жилой комплекс RED7
Жилой комплекс RED7
© MVRDV
Жилой комплекс RED7
Жилой комплекс RED7
Фотография макета предоставлена APEX
Жилой комплекс RED7
Жилой комплекс RED7
Фотография макета предоставлена APEX
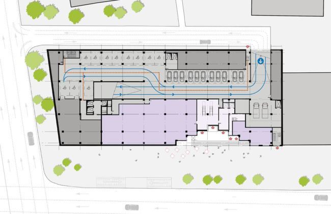
Жилой комплекс RED7. -2,-3,-4 этажи: Парковка
Жилой комплекс RED7. -2,-3,-4 этажи: Парковка
© MVRDV
Жилой комплекс RED7. -1 этаж: технический этаж и супермаркет
Жилой комплекс RED7. -1 этаж: технический этаж и супермаркет
© MVRDV
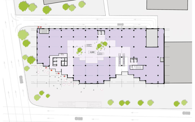
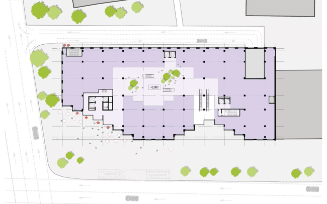
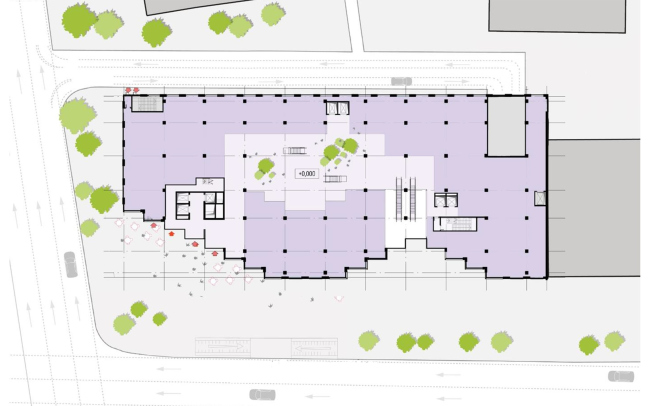
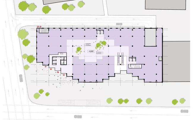
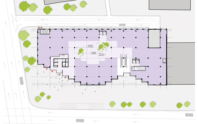
Жилой комплекс RED7. 1 этаж: коммерческие помещения
Жилой комплекс RED7. 1 этаж: коммерческие помещения
© MVRDV
Жилой комплекс RED7. 4 этаж: «Небесная гостиная» общего пользования и апартаменты
Жилой комплекс RED7. 4 этаж: «Небесная гостиная» общего пользования и апартаменты
© MVRDV
Жилой комплекс RED7: 7 этаж: апартаменты
Жилой комплекс RED7: 7 этаж: апартаменты
© MVRDV
Жилой комплекс RED7. 15 этаж: апартаменты
Жилой комплекс RED7. 15 этаж: апартаменты
© MVRDV
Жилой комплекс RED7. 20 этаж: апартаменты
Жилой комплекс RED7. 20 этаж: апартаменты
© MVRDV
Жилой комплекс RED7. Разрез
Жилой комплекс RED7. Разрез
© MVRDV
Жилой комплекс RED7. Разрез
Жилой комплекс RED7. Разрез
© MVRDV
Жилой комплекс RED7. Разрез
Жилой комплекс RED7. Разрез
© MVRDV
Жилой комплекс RED7. Разрез
Жилой комплекс RED7. Разрез
© MVRDV
Жилой комплекс «Московский силуэт». Расположение участка © MVRDV
Жилой комплекс «Московский силуэт». Расположение участка © MVRDV