Размещено на портале Архи.ру (www.archi.ru)

08.02.2018

На улице Мстислава Ростроповича

Нина Фролова
Объект:
Офисное здание Lot 7
Адрес:
Франция, None, Париж.
Мастерская:
Brenac & Gonzalez
ChartierDalix

Офисное здание по проекту ChartierDalix и Brenac & Gonzalez & Associés на северо-западе Парижа откликается рисунком фасадов на железнодорожные пути, с которыми граничит.

Офисное здание Lot 7 © Sergio Grazia
Офисное здание Lot 7 © Sergio Grazia

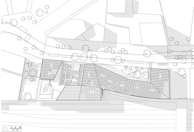
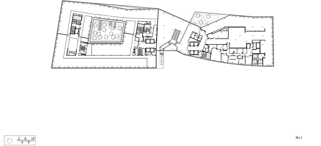
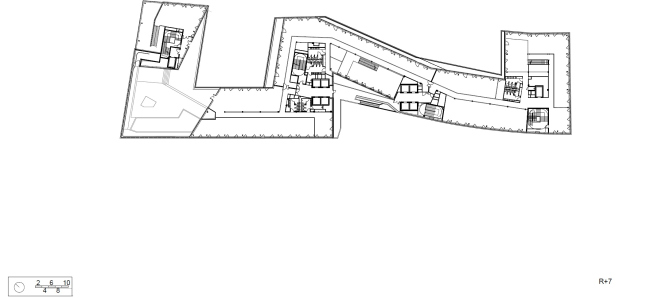
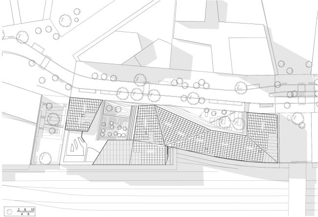
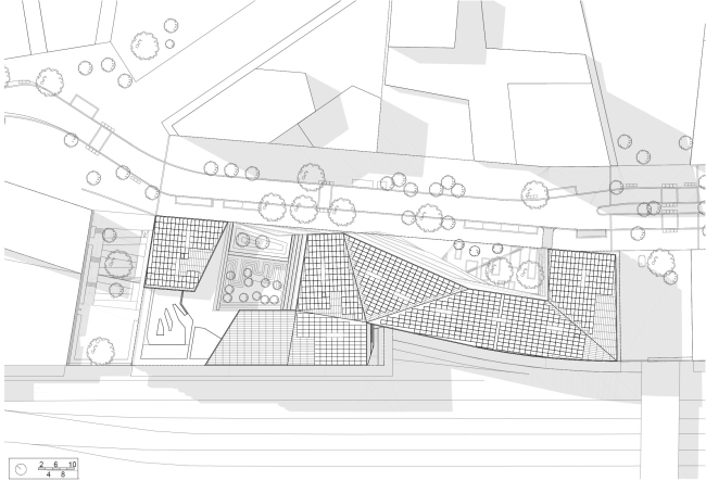
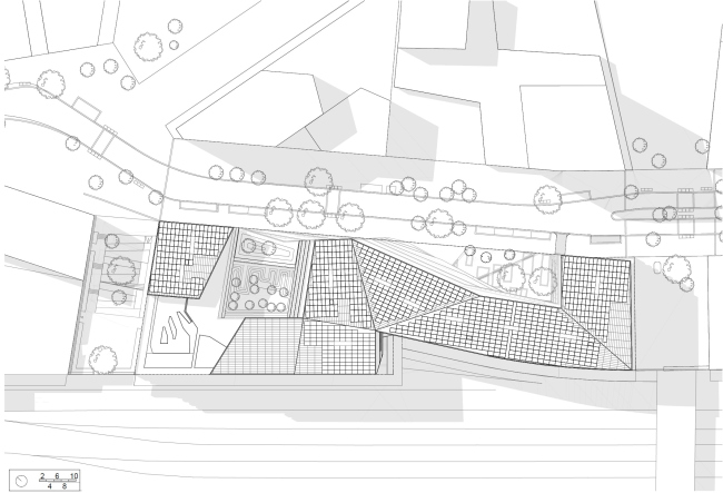
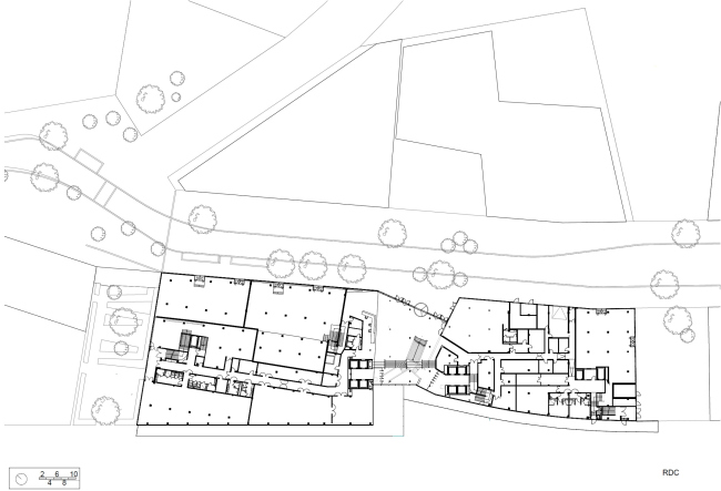
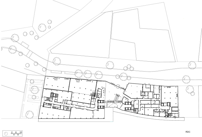
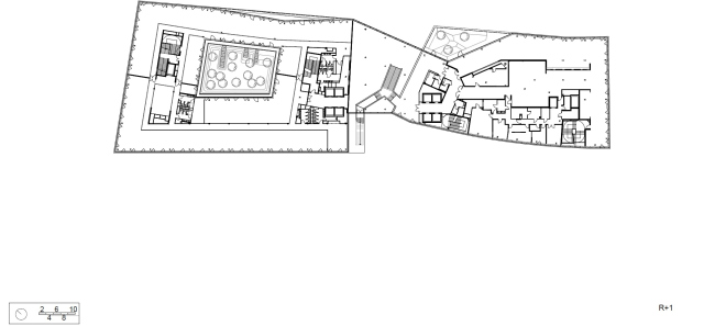
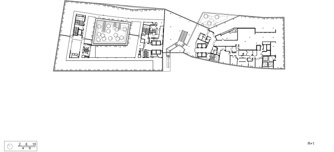
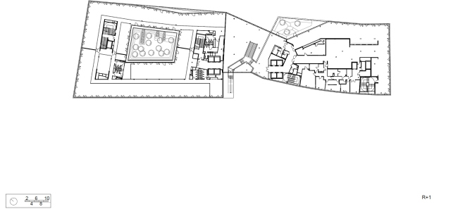
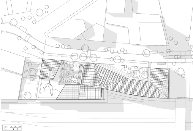
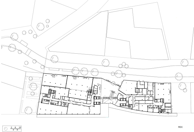
Офисный комплекс Lot 7 расположен в районе Клиши-Батиньоль, переживающем сейчас активную реконструкцию: среди прочего, там появился новый парижский Дворец правосудия по проекту Ренцо Пьяно, а также деловые и жилые корпуса, школы, кинотеатры и т.д.
 
Офисное здание Lot 7 © Takuji Shimmura
Офисное здание Lot 7 © Takuji Shimmura

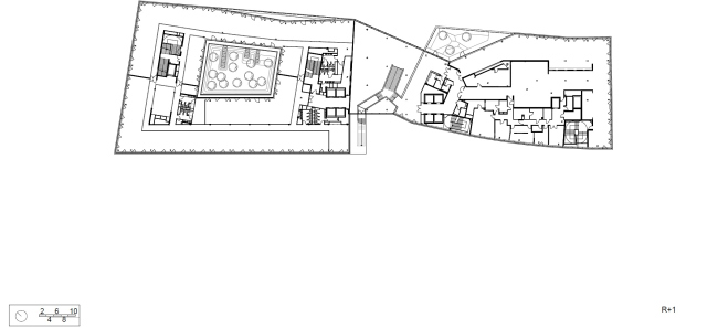
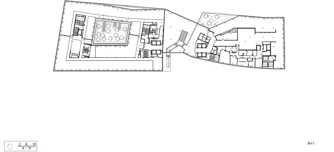
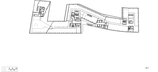
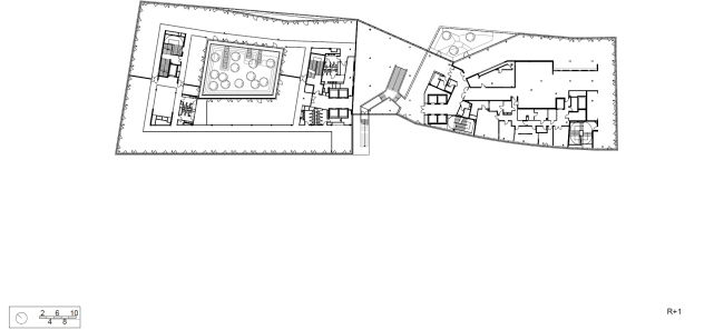
Новое сооружение ChartierDalix и Brenac & Gonzalez & Associés включает в себя 24 200 м2, в том числе 1150 м2 для розничной торговли. Оно находится на улице Мстислава Ростроповича, одной из ключевых в перестраиваемом районе. С противоположной стороны оно обращено к железнодорожным путям, ведущим к вокзалу Сен-Лазар, и даже нависает над сортировочным парком. Именно это соседство и стало определяющим для образа здания: по мнению архитекторов, оно не сравнимо ни с чем другим и придает работе в офисе «кинетический» аспект. Кроме того, пространство над железной дорогой – редкий случай свободной, незастроенной зоны в городе, что делает виды из обращенных туда окон гораздо масштабней.
 
Офисное здание Lot 7 © Takuji Shimmura
Офисное здание Lot 7 © Takuji Shimmura

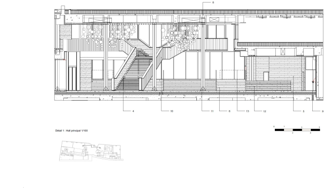
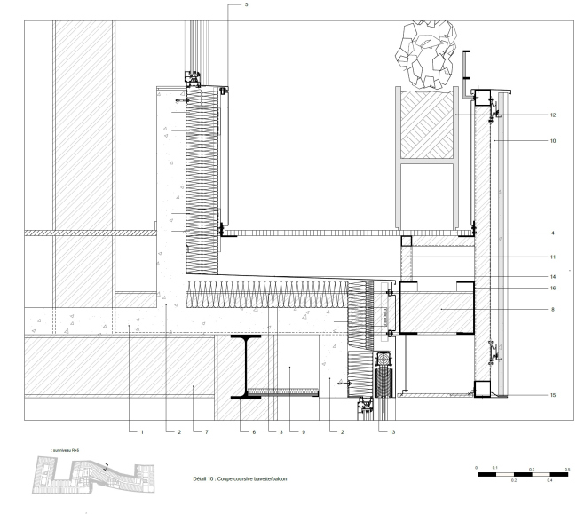
Стеклянные и терракотовые «ленты» фасадов напоминают о рельсах, охватывая весь объем здания и придавая ему тем самым единство. Глазурованные панели трех видов, различающихся рельефом из вертикальных полос, меняют цвет в зависимости от угла зрения и освещения, напоминая как полотна Пьера Сулажа, так и индустриальные строения поблизости.
 
Офисное здание Lot 7 © Takuji Shimmura
Офисное здание Lot 7 © Takuji Shimmura

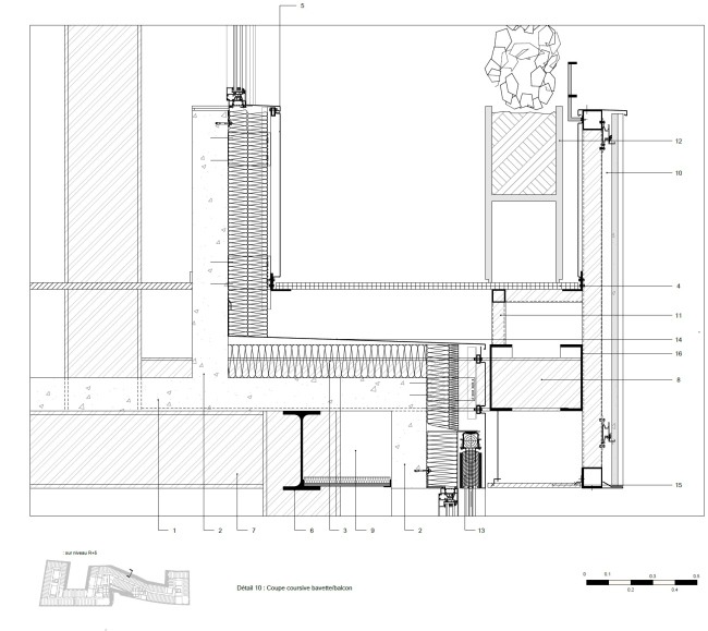
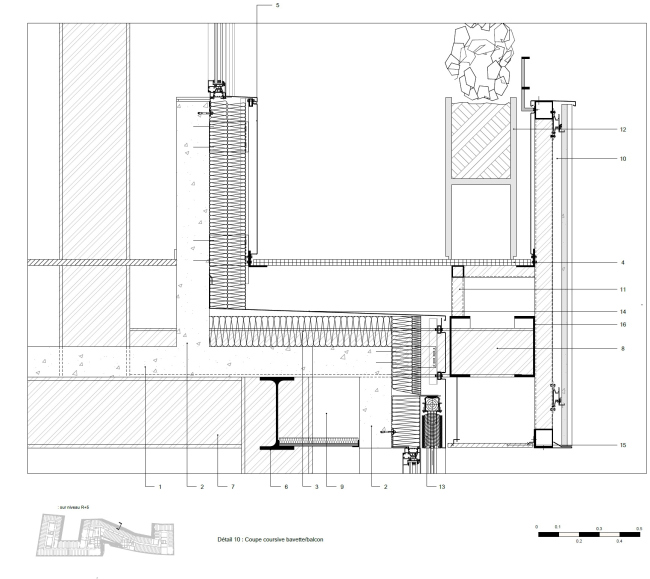
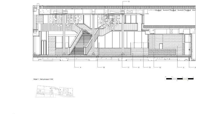
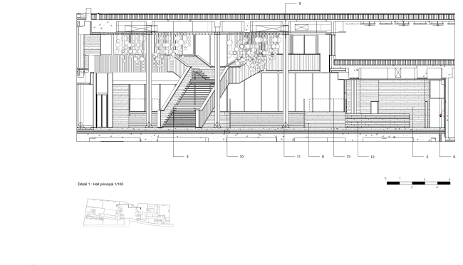
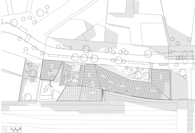
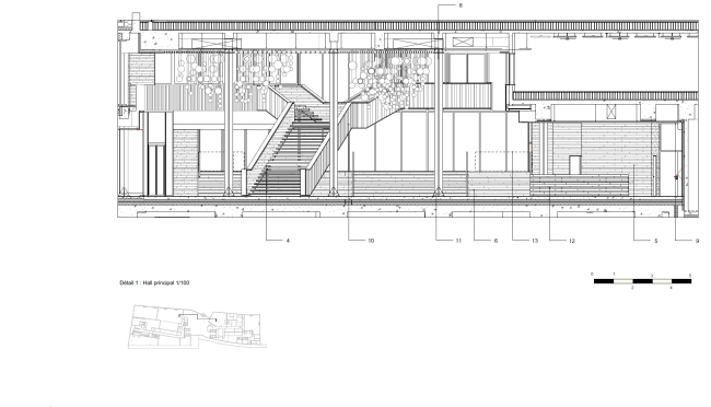
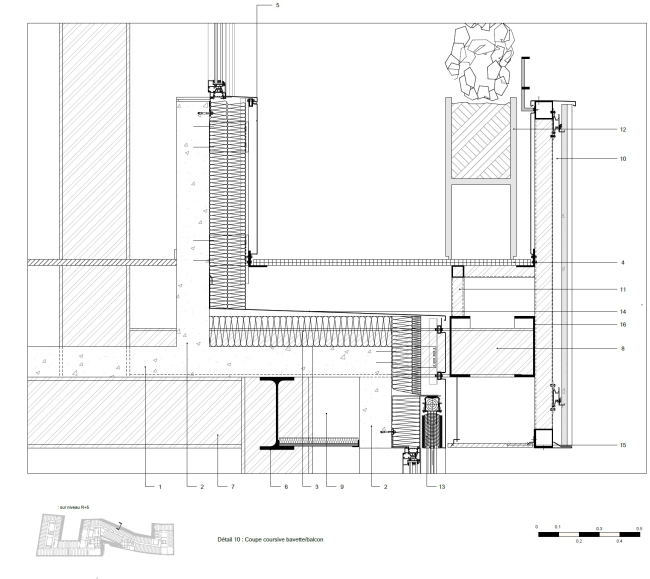
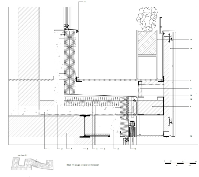
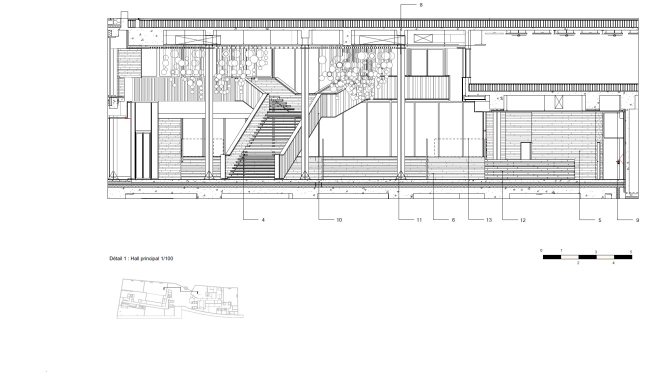
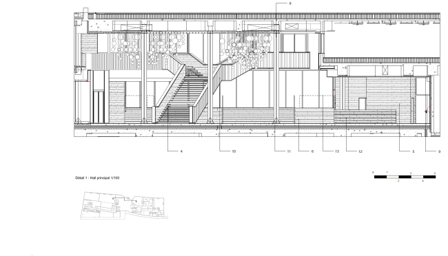
В комплексе созданы открытые террасы, мостики и озеленение, что оживляет виды из окон и обеспечивает сотрудников рекреационными зонами, к которым также относится и кафе с «теплым» деревянным интерьером. Остекление нижних ярусов обширней (93%), чем наверху (43%), чтобы равно обеспечить все интерьеры солнечным светом. Все этажи охвачены автоматической системой жалюзи. Окна открываются, что позволяет обойтись без кондиционеров. В то же время, предусмотрены адиабатические охладители и излучательная система отопления, причем сотрудники могут регулировать мощность отопления у своего рабочего места с помощью плинтусных обогревателей. На кровле установлены солнечные батареи (1725 м2, 315 МВт·ч/год).
Офисное здание Lot 7 © Sergio Grazia
Офисное здание Lot 7 © Sergio Grazia
Офисное здание Lot 7 © Sergio Grazia
Офисное здание Lot 7 © Sergio Grazia
Офисное здание Lot 7 © Sergio Grazia
Офисное здание Lot 7 © Sergio Grazia
Офисное здание Lot 7 © Takuji Shimmura
Офисное здание Lot 7 © Takuji Shimmura
Офисное здание Lot 7 © Stefan Tuchila
Офисное здание Lot 7 © Stefan Tuchila
Офисное здание Lot 7 © Stefan Tuchila
Офисное здание Lot 7 © Stefan Tuchila
Офисное здание Lot 7 © Stefan Tuchila
Офисное здание Lot 7 © Stefan Tuchila
Офисное здание Lot 7 © Sergio Grazia
Офисное здание Lot 7 © Sergio Grazia
Офисное здание Lot 7 © Takuji Shimmura
Офисное здание Lot 7 © Takuji Shimmura
Офисное здание Lot 7 © Sergio Grazia
Офисное здание Lot 7 © Sergio Grazia
Офисное здание Lot 7 © Takuji Shimmura
Офисное здание Lot 7 © Takuji Shimmura
Офисное здание Lot 7 © Takuji Shimmura
Офисное здание Lot 7 © Takuji Shimmura
Офисное здание Lot 7 © Sergio Grazia
Офисное здание Lot 7 © Sergio Grazia
Офисное здание Lot 7 © Stefan Tuchila
Офисное здание Lot 7 © Stefan Tuchila
Офисное здание Lot 7 © Sergio Grazia
Офисное здание Lot 7 © Sergio Grazia
Офисное здание Lot 7 © Takuji Shimmura
Офисное здание Lot 7 © Takuji Shimmura
Офисное здание Lot 7 © Stefan Tuchila
Офисное здание Lot 7 © Stefan Tuchila
Офисное здание Lot 7 © Stefan Tuchila
Офисное здание Lot 7 © Stefan Tuchila
Офисное здание Lot 7 © Takuji Shimmura
Офисное здание Lot 7 © Takuji Shimmura
Офисное здание Lot 7 © Sergio Grazia
Офисное здание Lot 7 © Sergio Grazia
Офисное здание Lot 7 © Sergio Grazia
Офисное здание Lot 7 © Sergio Grazia
Офисное здание Lot 7 © Takuji Shimmura
Офисное здание Lot 7 © Takuji Shimmura
Офисное здание Lot 7 © Sergio Grazia
Офисное здание Lot 7 © Sergio Grazia
Офисное здание Lot 7 © Stefan Tuchila
Офисное здание Lot 7 © Stefan Tuchila
Офисное здание Lot 7 © Stefan Tuchila
Офисное здание Lot 7 © Stefan Tuchila
Офисное здание Lot 7 © Stefan Tuchila
Офисное здание Lot 7 © Stefan Tuchila
Офисное здание Lot 7 © Stefan Tuchila
Офисное здание Lot 7 © Stefan Tuchila
Офисное здание Lot 7 © Stefan Tuchila
Офисное здание Lot 7 © Stefan Tuchila
Офисное здание Lot 7 © Sergio Grazia
Офисное здание Lot 7 © Sergio Grazia
Офисное здание Lot 7 © Takuji Shimmura
Офисное здание Lot 7 © Takuji Shimmura
Офисное здание Lot 7 © Sergio Grazia
Офисное здание Lot 7 © Sergio Grazia
Офисное здание Lot 7 © Takuji Shimmura
Офисное здание Lot 7 © Takuji Shimmura
Офисное здание Lot 7 © Sergio Grazia
Офисное здание Lot 7 © Sergio Grazia
Офисное здание Lot 7 © Stefan Tuchila
Офисное здание Lot 7 © Stefan Tuchila
Офисное здание Lot 7 © Stefan Tuchila
Офисное здание Lot 7 © Stefan Tuchila
Офисное здание Lot 7 © Stefan Tuchila
Офисное здание Lot 7 © Stefan Tuchila
Офисное здание Lot 7 © ChartierDalix и Brenac & Gonzalez & Associés
Офисное здание Lot 7 © ChartierDalix и Brenac & Gonzalez & Associés
Офисное здание Lot 7 © ChartierDalix и Brenac & Gonzalez & Associés
Офисное здание Lot 7 © ChartierDalix и Brenac & Gonzalez & Associés
Офисное здание Lot 7 © ChartierDalix и Brenac & Gonzalez & Associés
Офисное здание Lot 7 © ChartierDalix и Brenac & Gonzalez & Associés
Офисное здание Lot 7 © ChartierDalix и Brenac & Gonzalez & Associés
Офисное здание Lot 7 © ChartierDalix и Brenac & Gonzalez & Associés
Офисное здание Lot 7 © ChartierDalix и Brenac & Gonzalez & Associés
Офисное здание Lot 7 © ChartierDalix и Brenac & Gonzalez & Associés
Офисное здание Lot 7 © ChartierDalix и Brenac & Gonzalez & Associés
Офисное здание Lot 7 © ChartierDalix и Brenac & Gonzalez & Associés
Офисное здание Lot 7 © ChartierDalix и Brenac & Gonzalez & Associés
Офисное здание Lot 7 © ChartierDalix и Brenac & Gonzalez & Associés
Офисное здание Lot 7 © ChartierDalix и Brenac & Gonzalez & Associés
Офисное здание Lot 7 © ChartierDalix и Brenac & Gonzalez & Associés
Офисное здание Lot 7 © ChartierDalix и Brenac & Gonzalez & Associés
Офисное здание Lot 7 © ChartierDalix и Brenac & Gonzalez & Associés
Офисное здание Lot 7 © ChartierDalix и Brenac & Gonzalez & Associés
Офисное здание Lot 7 © ChartierDalix и Brenac & Gonzalez & Associés
Офисное здание Lot 7 © ChartierDalix и Brenac & Gonzalez & Associés
Офисное здание Lot 7 © ChartierDalix и Brenac & Gonzalez & Associés
Офисное здание Lot 7 © ChartierDalix и Brenac & Gonzalez & Associés
Офисное здание Lot 7 © ChartierDalix и Brenac & Gonzalez & Associés
Офисное здание Lot 7 © ChartierDalix и Brenac & Gonzalez & Associés
Офисное здание Lot 7 © ChartierDalix и Brenac & Gonzalez & Associés
Офисное здание Lot 7 © ChartierDalix и Brenac & Gonzalez & Associés
Офисное здание Lot 7 © ChartierDalix и Brenac & Gonzalez & Associés
Офисное здание Lot 7 © ChartierDalix и Brenac & Gonzalez & Associés
Офисное здание Lot 7 © ChartierDalix и Brenac & Gonzalez & Associés
Офисное здание Lot 7 © ChartierDalix и Brenac & Gonzalez & Associés
Офисное здание Lot 7 © ChartierDalix и Brenac & Gonzalez & Associés
Офисное здание Lot 7 © ChartierDalix и Brenac & Gonzalez & Associés
Офисное здание Lot 7 © ChartierDalix и Brenac & Gonzalez & Associés
Офисное здание Lot 7 © ChartierDalix и Brenac & Gonzalez & Associés
Офисное здание Lot 7 © ChartierDalix и Brenac & Gonzalez & Associés
Офисное здание Lot 7 © ChartierDalix и Brenac & Gonzalez & Associés
Офисное здание Lot 7 © ChartierDalix и Brenac & Gonzalez & Associés
Офисное здание Lot 7 © ChartierDalix и Brenac & Gonzalez & Associés
Офисное здание Lot 7 © ChartierDalix и Brenac & Gonzalez & Associés
Офисное здание Lot 7 © ChartierDalix и Brenac & Gonzalez & Associés
Офисное здание Lot 7 © ChartierDalix и Brenac & Gonzalez & Associés
Офисное здание Lot 7 © ChartierDalix и Brenac & Gonzalez & Associés
Офисное здание Lot 7 © ChartierDalix и Brenac & Gonzalez & Associés
Офисное здание Lot 7 © ChartierDalix и Brenac & Gonzalez & Associés
Офисное здание Lot 7 © ChartierDalix и Brenac & Gonzalez & Associés
Офисное здание Lot 7 © ChartierDalix и Brenac & Gonzalez & Associés
Офисное здание Lot 7 © ChartierDalix и Brenac & Gonzalez & Associés
Офисное здание Lot 7 © ChartierDalix и Brenac & Gonzalez & Associés
Офисное здание Lot 7 © ChartierDalix и Brenac & Gonzalez & Associés
Офисное здание Lot 7 © ChartierDalix и Brenac & Gonzalez & Associés
Офисное здание Lot 7 © ChartierDalix и Brenac & Gonzalez & Associés
Офисное здание Lot 7 © ChartierDalix и Brenac & Gonzalez & Associés
Офисное здание Lot 7 © ChartierDalix и Brenac & Gonzalez & Associés
Офисное здание Lot 7 © ChartierDalix и Brenac & Gonzalez & Associés
Офисное здание Lot 7 © ChartierDalix и Brenac & Gonzalez & Associés
Офисное здание Lot 7 © ChartierDalix и Brenac & Gonzalez & Associés
Офисное здание Lot 7 © ChartierDalix и Brenac & Gonzalez & Associés
Офисное здание Lot 7 © ChartierDalix и Brenac & Gonzalez & Associés
Офисное здание Lot 7 © ChartierDalix и Brenac & Gonzalez & Associés
Офисное здание Lot 7 © ChartierDalix и Brenac & Gonzalez & Associés
Офисное здание Lot 7 © ChartierDalix и Brenac & Gonzalez & Associés
Офисное здание Lot 7 © ChartierDalix и Brenac & Gonzalez & Associés
Офисное здание Lot 7 © ChartierDalix и Brenac & Gonzalez & Associés