Размещено на портале Архи.ру (www.archi.ru)

02.02.2018

Башня-сигнал

Нина Фролова
Объект:
Жилой комплекс Hémêra
Адрес:
Франция, None, Нант.
Мастерская:
Berranger & Vincent

Комплекс Hémêra с социальным и коммерческим жильем в Нанте по проекту бюро Berranger & Vincent.

Жилой комплекс Hémêra © Sergio Grazia
Жилой комплекс Hémêra © Sergio Grazia

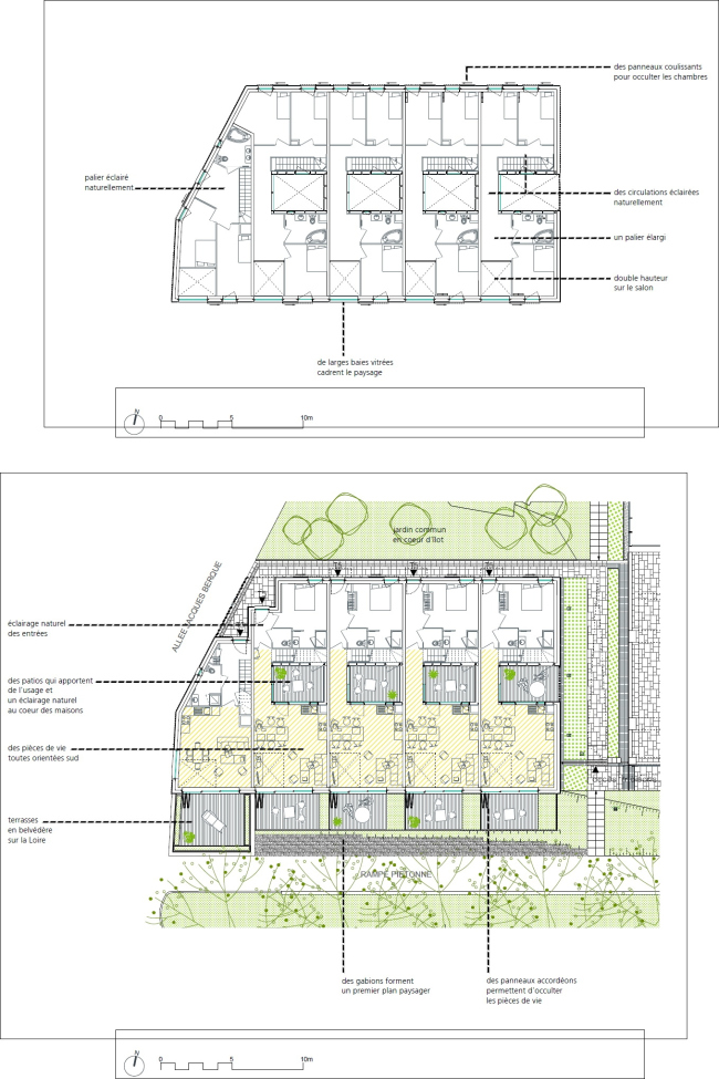
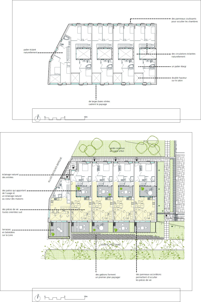
Комплекс Hémêra состоит из башни в 16 этажей (53 м), пяти таунхаусов и корпуса с 13 социальными квартирами. Все три компонента получили серебристые фасады из алюминиевых панелей. Самая заметная его часть, башня, служит «сигналом» обновления всего района. Участок зажат между берегом Луары, стадионом и перекрестком, рядом – огромный жилой массив рубежа 1960-х – 70-х Малакофф, но продуманные ориентация построек и использование озеленения защищают жильцов от не всегда оптимального окружения.
 
Жилой комплекс Hémêra © Stéphane Chalmeau
Жилой комплекс Hémêra © Stéphane Chalmeau

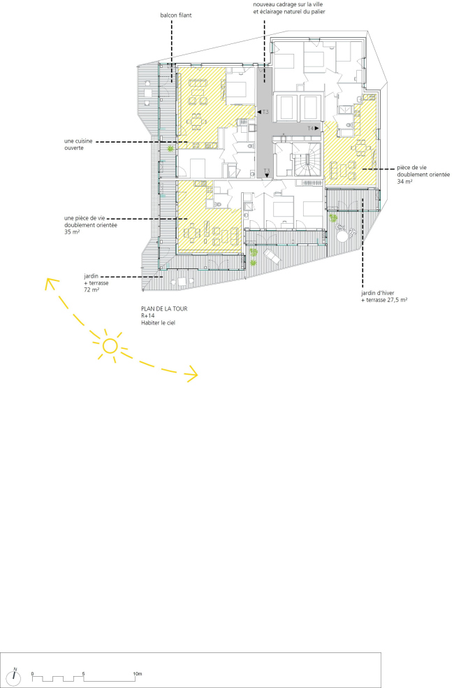
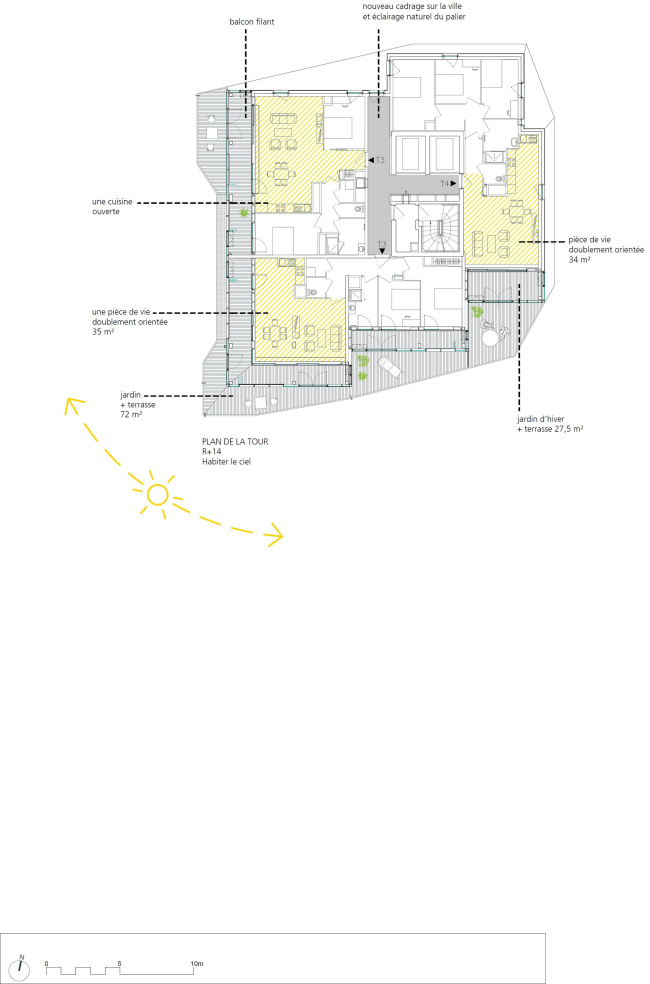
В башне размещено 69 квартир 21 типа планировки, что должно обеспечить там необходимое социальное разнообразие: они рассчитаны на снимающих жилье совместно друзей, сводные семьи, родителей-одиночек, работающих дома специалистов и т.д. По вертикали дом разделен на три зоны, то есть как будто находится в движении от одного состояния к другому. С первого по седьмой этаж расположены небольшие квартиры и дуплексы с полупрозрачным алюминиевым ограждением балконов: там «живут среди деревьев» и связаны с окружением. До 13-го этажа включительно «живут в городе», на который из более просторных квартир открываются виды; балконы здесь чуть менее прозрачны. Завершение башни почти полностью остеклено: на трех верхних этажах «живут на небесах»: здесь у жильцов есть сдвижные стеклянные двери, ведущие на террасы с стеклянными ограждениями, и окна, открывающиеся по принципу гармошки.
 
Жилой комплекс Hémêra © Sergio Grazia
Жилой комплекс Hémêra © Sergio Grazia

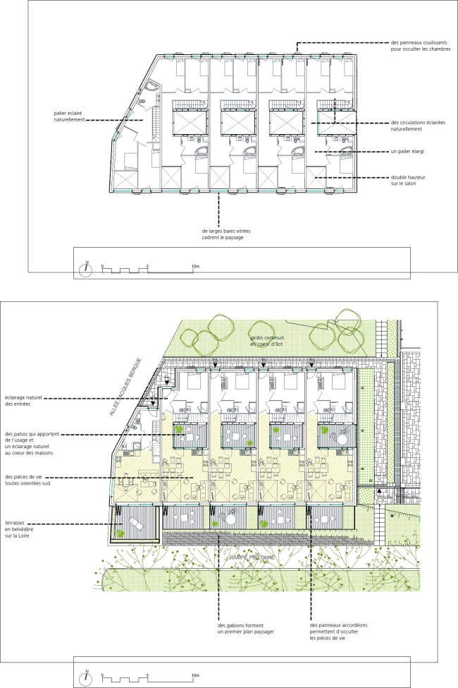
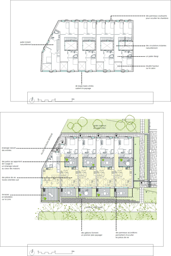
Все пять таунхаусов с двухсветными пространствами обращены на Луару – на юг – террасами, у четырех из них также есть внутренние дворы-патио, обеспечивающие интерьер естественным светом. В основании башни и «социального» корпуса есть по помещению для аренды под магазин.
Жилой комплекс Hémêra © Sergio Grazia
Жилой комплекс Hémêra © Sergio Grazia
Жилой комплекс Hémêra © Sergio Grazia
Жилой комплекс Hémêra © Sergio Grazia
Жилой комплекс Hémêra © Sergio Grazia
Жилой комплекс Hémêra © Sergio Grazia
Жилой комплекс Hémêra © Sergio Grazia
Жилой комплекс Hémêra © Sergio Grazia
Жилой комплекс Hémêra © Sergio Grazia
Жилой комплекс Hémêra © Sergio Grazia
Жилой комплекс Hémêra © Sergio Grazia
Жилой комплекс Hémêra © Sergio Grazia
Жилой комплекс Hémêra © Sergio Grazia
Жилой комплекс Hémêra © Sergio Grazia
Жилой комплекс Hémêra © Sergio Grazia
Жилой комплекс Hémêra © Sergio Grazia
Жилой комплекс Hémêra © Sergio Grazia
Жилой комплекс Hémêra © Sergio Grazia
Жилой комплекс Hémêra © Berranger Vincent architectes
Жилой комплекс Hémêra © Berranger Vincent architectes
Жилой комплекс Hémêra © Berranger Vincent architectes
Жилой комплекс Hémêra © Berranger Vincent architectes
Жилой комплекс Hémêra © Berranger Vincent architectes
Жилой комплекс Hémêra © Berranger Vincent architectes
Жилой комплекс Hémêra © Berranger Vincent architectes
Жилой комплекс Hémêra © Berranger Vincent architectes
Жилой комплекс Hémêra © Berranger Vincent architectes
Жилой комплекс Hémêra © Berranger Vincent architectes
Жилой комплекс Hémêra © Berranger Vincent architectes
Жилой комплекс Hémêra © Berranger Vincent architectes
Жилой комплекс Hémêra © Berranger Vincent architectes
Жилой комплекс Hémêra © Berranger Vincent architectes
Жилой комплекс Hémêra © Berranger Vincent architectes
Жилой комплекс Hémêra © Berranger Vincent architectes
Жилой комплекс Hémêra © Berranger Vincent architectes
Жилой комплекс Hémêra © Berranger Vincent architectes