Размещено на портале Архи.ру (www.archi.ru)

16.01.2018

Логичные решения

Нина Фролова
Объект:
Университетский колледж Йёвика
Адрес:
Норвегия, None, Йёвик .

Корпус Университетского колледжа норвежского города Йёвик по проекту бюро Рейульфа Рамстада.

Университетский колледж Йёвика ©  Statsbygg / Trond Isaksen
Университетский колледж Йёвика © Statsbygg / Trond Isaksen

Учебный корпус общей площадью 5 000 м2 встроен в существующую «образовательную среду», причем не только самого колледжа, но и кампуса Норвежского университета науки и технологии, где и находится новостройка.
 
Университетский колледж Йёвика ©  Statsbygg / Trond Isaksen
Университетский колледж Йёвика © Statsbygg / Trond Isaksen

Простой объем пятиэтажного здания позволил ему вписаться также и в архитектурную ситуацию университетского городка, где постройки, скорее, стремятся к утилитарности. В трактовке Рейульфа Рамстада эта утилитарность, однако, приобрела одновременно и элегантный, и индустриальный оттенок, в том числе благодаря использованию дерева и бетона, которые определяют облик здания снаружи и в интерьере. Отдельного упоминания заслуживают связывающие корпус с соседними сооружениями коридоры-переходы, где фермы соединены с металлической сеткой.
 
Университетский колледж Йёвика ©  Statsbygg / Trond Isaksen
Университетский колледж Йёвика © Statsbygg / Trond Isaksen

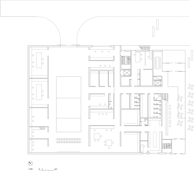
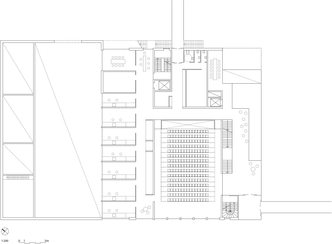
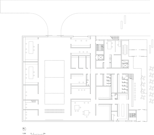
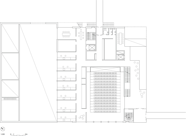
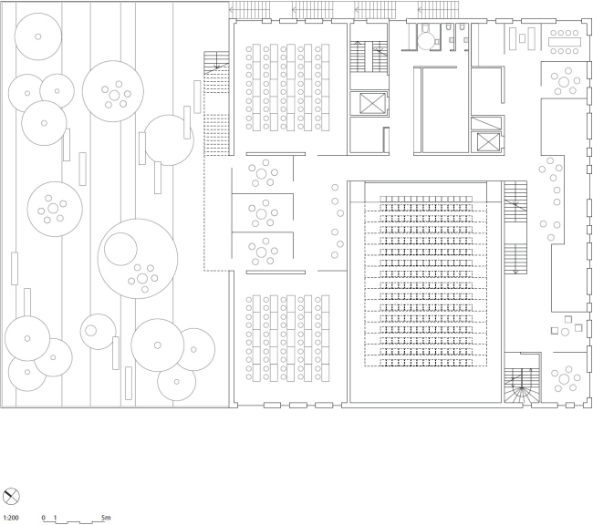
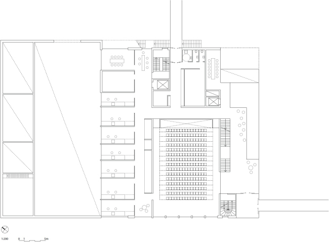
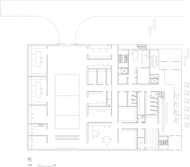
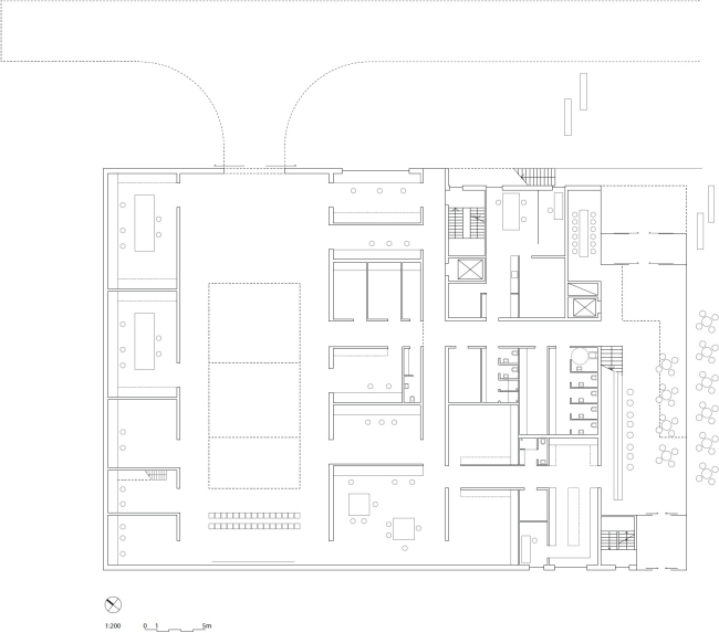
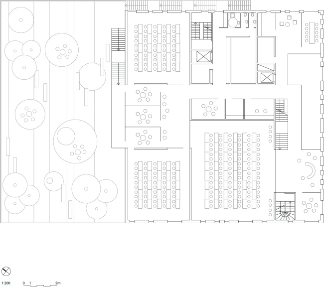
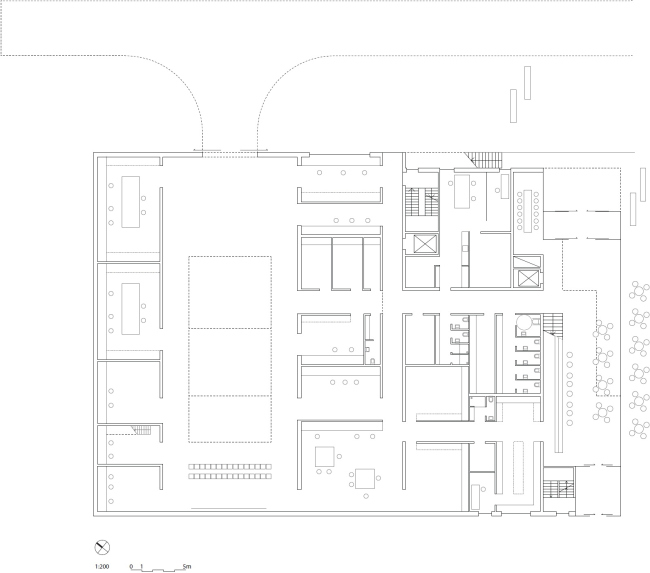
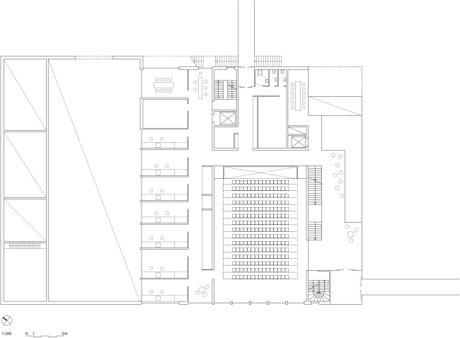
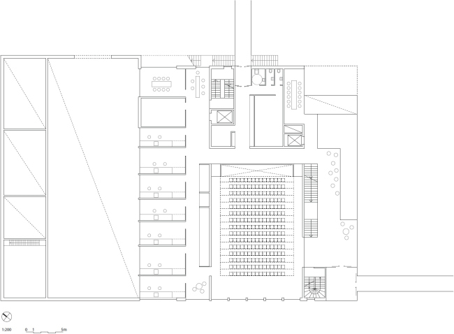
Планировка и ориентация позволяют расширить корпус в будущем. Узел вертикальной циркуляции играет также роль места встречи между студентами, преподавателями и другими пользователями здания. Первый ярус занят мастерскими и лабораториями, семинарские и поточная аудитории занимают второй, третий и четвертый, а административные помещения – пятый этаж.
Университетский колледж Йёвика ©  Statsbygg / Trond Isaksen
Университетский колледж Йёвика © Statsbygg / Trond Isaksen
Университетский колледж Йёвика ©  Statsbygg / Trond Isaksen
Университетский колледж Йёвика © Statsbygg / Trond Isaksen
Университетский колледж Йёвика ©  Statsbygg / Trond Isaksen
Университетский колледж Йёвика © Statsbygg / Trond Isaksen
Университетский колледж Йёвика ©  Statsbygg / Trond Isaksen
Университетский колледж Йёвика © Statsbygg / Trond Isaksen
Университетский колледж Йёвика © Reiulf Ramstad Arkitekter
Университетский колледж Йёвика © Reiulf Ramstad Arkitekter
Университетский колледж Йёвика © Reiulf Ramstad Arkitekter
Университетский колледж Йёвика © Reiulf Ramstad Arkitekter
Университетский колледж Йёвика © Reiulf Ramstad Arkitekter
Университетский колледж Йёвика © Reiulf Ramstad Arkitekter
Университетский колледж Йёвика © Reiulf Ramstad Arkitekter
Университетский колледж Йёвика © Reiulf Ramstad Arkitekter
Университетский колледж Йёвика © Reiulf Ramstad Arkitekter
Университетский колледж Йёвика © Reiulf Ramstad Arkitekter
Университетский колледж Йёвика © Reiulf Ramstad Arkitekter
Университетский колледж Йёвика © Reiulf Ramstad Arkitekter
Университетский колледж Йёвика © Reiulf Ramstad Arkitekter
Университетский колледж Йёвика © Reiulf Ramstad Arkitekter
Университетский колледж Йёвика © Reiulf Ramstad Arkitekter
Университетский колледж Йёвика © Reiulf Ramstad Arkitekter