Размещено на портале Архи.ру (www.archi.ru)

12.01.2018

Жить открытым домом

Нина Фролова
Объект:
Отель и апартаменты Tamasa
Адрес:
Камбоджа, None, Пномпень.
Мастерская:
Kawabe Naoya Architects

Отель и апартаменты Tamasa в столице Камбоджи по проекту японского бюро Kawabe Naoya Architects.

Отель и апартаменты Tamasa © Akinobu Kawabe
Отель и апартаменты Tamasa © Akinobu Kawabe

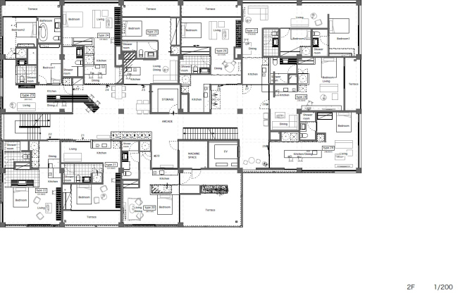
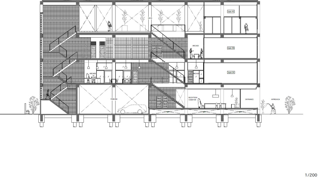
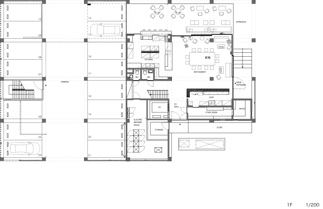
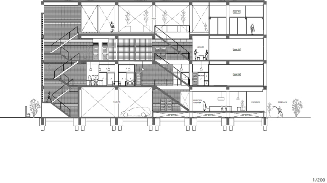
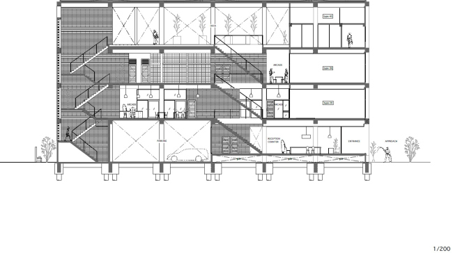
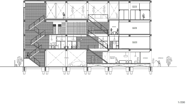
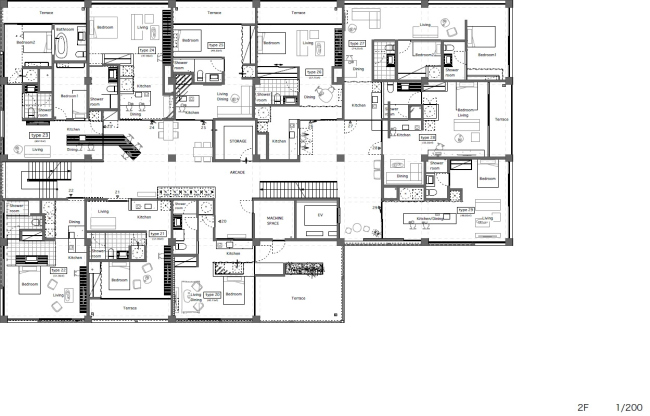
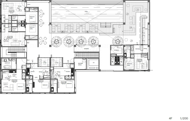
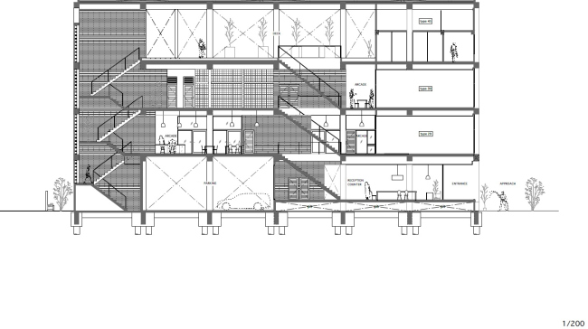
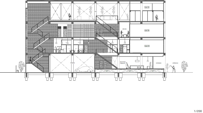
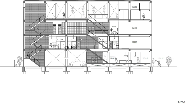
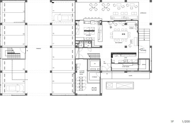
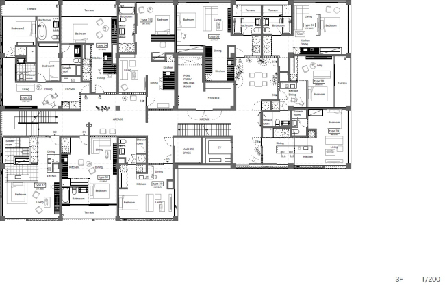
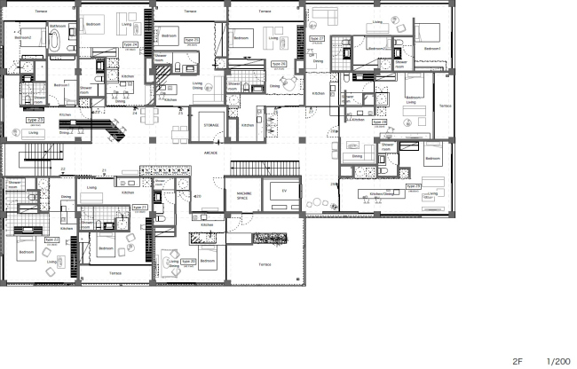
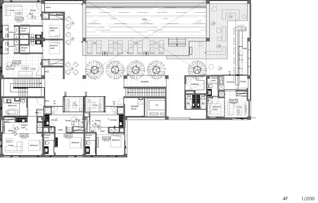
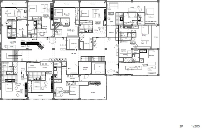
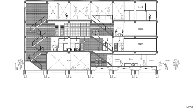
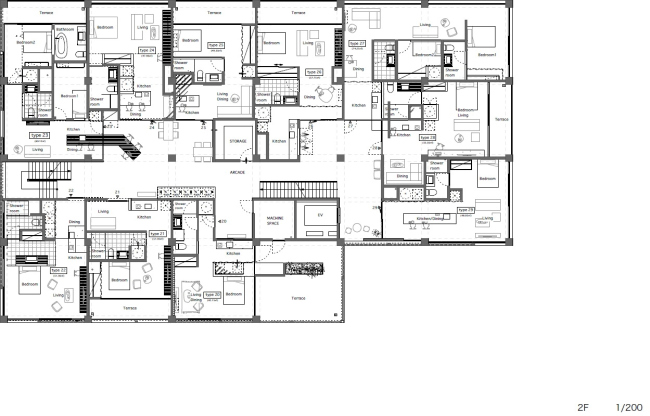
Tamasa расположен между центром Пномпеня и его международным аэропортом и рассчитан в первую очередь на многонациональную группу экспатов, туристов и командировочных. Поэтому для заказчика было важным обойтись без жесткого разделения приватных и общественных пространств, напротив, он хотел «познакомить» живущих в одном здании людей, обычно вряд ли бы встретившихся.
 
Отель и апартаменты Tamasa © Akinobu Kawabe
Отель и апартаменты Tamasa © Akinobu Kawabe

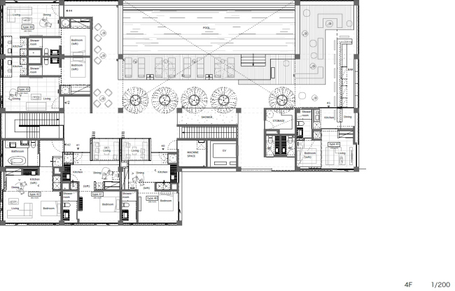
Частные и общие зоны связаны благодаря устройству здания по принципу городского района с «закоулками», в которых можно затеряться. Кроме того, квартиры связаны с пространствами общего пользования с помощью больших окон и дверей. Фасады защищены от солнца экранами, однако ветер проникает сквозь общественные помещения, создавая зданию естественную вентиляцию, очень важную в условиях тропического климата.
 
Отель и апартаменты Tamasa © Akinobu Kawabe
Отель и апартаменты Tamasa © Akinobu Kawabe

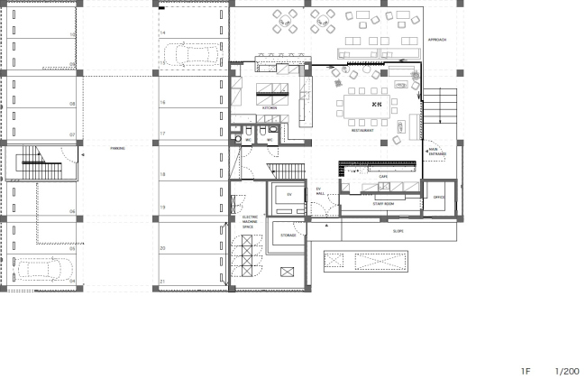
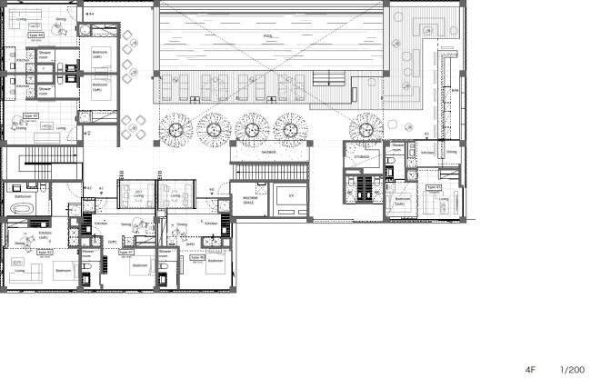
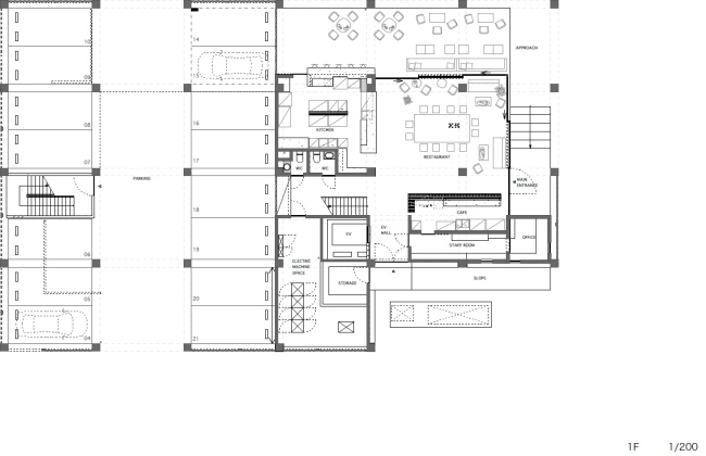
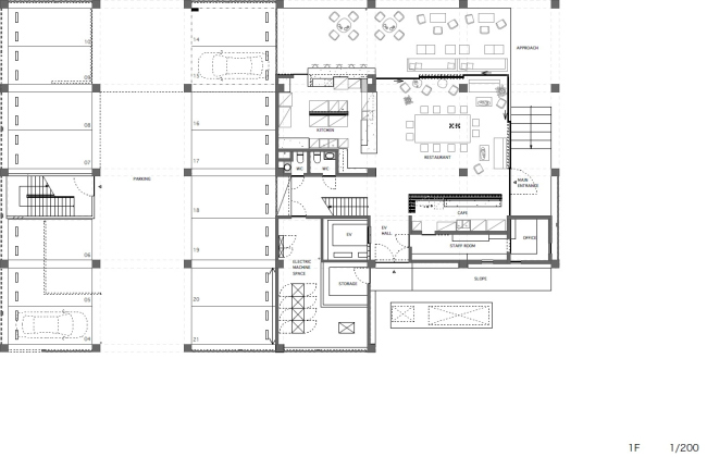
Общество (и возможность общения) для жильцов также обеспечивают отель, ресторан с кафе на террасе, бассейн на верхнем этаже, а также сотрудничество со спортивным клубом по соседству.
 
Отель и апартаменты Tamasa © Akinobu Kawabe
Отель и апартаменты Tamasa © Akinobu Kawabe

Качество строительства в Камбодже пока оставляет желать лучшего, поэтому архитекторы отделили каркас здания от компонентов интерьера, что позволило не беспокоиться о высокой точности при возведении постройки. По мнению авторов, такой ход также повысил качество проекта в целом.
Отель и апартаменты Tamasa © Akinobu Kawabe
Отель и апартаменты Tamasa © Akinobu Kawabe
Отель и апартаменты Tamasa © Akinobu Kawabe
Отель и апартаменты Tamasa © Akinobu Kawabe
Отель и апартаменты Tamasa © Akinobu Kawabe
Отель и апартаменты Tamasa © Akinobu Kawabe
Отель и апартаменты Tamasa © Akinobu Kawabe
Отель и апартаменты Tamasa © Akinobu Kawabe
Отель и апартаменты Tamasa © Akinobu Kawabe
Отель и апартаменты Tamasa © Akinobu Kawabe
Отель и апартаменты Tamasa © Akinobu Kawabe
Отель и апартаменты Tamasa © Akinobu Kawabe
Отель и апартаменты Tamasa © Akinobu Kawabe
Отель и апартаменты Tamasa © Akinobu Kawabe
Отель и апартаменты Tamasa © Akinobu Kawabe
Отель и апартаменты Tamasa © Akinobu Kawabe
Отель и апартаменты Tamasa © Akinobu Kawabe
Отель и апартаменты Tamasa © Akinobu Kawabe
Отель и апартаменты Tamasa © Akinobu Kawabe
Отель и апартаменты Tamasa © Akinobu Kawabe
Отель и апартаменты Tamasa © Akinobu Kawabe
Отель и апартаменты Tamasa © Akinobu Kawabe
Отель и апартаменты Tamasa © Akinobu Kawabe
Отель и апартаменты Tamasa © Akinobu Kawabe
Отель и апартаменты Tamasa © Akinobu Kawabe
Отель и апартаменты Tamasa © Akinobu Kawabe
Отель и апартаменты Tamasa © Akinobu Kawabe
Отель и апартаменты Tamasa © Akinobu Kawabe
Отель и апартаменты Tamasa © Akinobu Kawabe
Отель и апартаменты Tamasa © Akinobu Kawabe
Отель и апартаменты Tamasa © Akinobu Kawabe
Отель и апартаменты Tamasa © Akinobu Kawabe
Отель и апартаменты Tamasa © Akinobu Kawabe
Отель и апартаменты Tamasa © Akinobu Kawabe
Отель и апартаменты Tamasa © Akinobu Kawabe
Отель и апартаменты Tamasa © Akinobu Kawabe
Отель и апартаменты Tamasa © Akinobu Kawabe
Отель и апартаменты Tamasa © Akinobu Kawabe
Отель и апартаменты Tamasa © Akinobu Kawabe
Отель и апартаменты Tamasa © Akinobu Kawabe
Отель и апартаменты Tamasa © Akinobu Kawabe
Отель и апартаменты Tamasa © Akinobu Kawabe
Отель и апартаменты Tamasa © Akinobu Kawabe
Отель и апартаменты Tamasa © Akinobu Kawabe
Отель и апартаменты Tamasa © Akinobu Kawabe
Отель и апартаменты Tamasa © Akinobu Kawabe
Отель и апартаменты Tamasa © Akinobu Kawabe
Отель и апартаменты Tamasa © Akinobu Kawabe
Отель и апартаменты Tamasa © Akinobu Kawabe
Отель и апартаменты Tamasa © Akinobu Kawabe
Отель и апартаменты Tamasa © Akinobu Kawabe
Отель и апартаменты Tamasa © Akinobu Kawabe
Отель и апартаменты Tamasa © Akinobu Kawabe
Отель и апартаменты Tamasa © Akinobu Kawabe
Отель и апартаменты Tamasa © Akinobu Kawabe
Отель и апартаменты Tamasa © Akinobu Kawabe
Отель и апартаменты Tamasa © Akinobu Kawabe
Отель и апартаменты Tamasa © Akinobu Kawabe
Отель и апартаменты Tamasa © Akinobu Kawabe
Отель и апартаменты Tamasa © Akinobu Kawabe
Отель и апартаменты Tamasa © Akinobu Kawabe
Отель и апартаменты Tamasa © Akinobu Kawabe
Отель и апартаменты Tamasa © Akinobu Kawabe
Отель и апартаменты Tamasa © Akinobu Kawabe
Отель и апартаменты Tamasa © Akinobu Kawabe
Отель и апартаменты Tamasa © Akinobu Kawabe
Отель и апартаменты Tamasa © Akinobu Kawabe
Отель и апартаменты Tamasa © Akinobu Kawabe
Отель и апартаменты Tamasa © Akinobu Kawabe
Отель и апартаменты Tamasa © Akinobu Kawabe
Отель и апартаменты Tamasa © Akinobu Kawabe
Отель и апартаменты Tamasa © Akinobu Kawabe
Отель и апартаменты Tamasa © Akinobu Kawabe
Отель и апартаменты Tamasa © Akinobu Kawabe
Отель и апартаменты Tamasa © Akinobu Kawabe
Отель и апартаменты Tamasa © Akinobu Kawabe
Отель и апартаменты Tamasa © Akinobu Kawabe
Отель и апартаменты Tamasa © Akinobu Kawabe
Отель и апартаменты Tamasa © Akinobu Kawabe
Отель и апартаменты Tamasa © Akinobu Kawabe
Отель и апартаменты Tamasa © Akinobu Kawabe
Отель и апартаменты Tamasa © Akinobu Kawabe
Отель и апартаменты Tamasa © Akinobu Kawabe
Отель и апартаменты Tamasa © Akinobu Kawabe
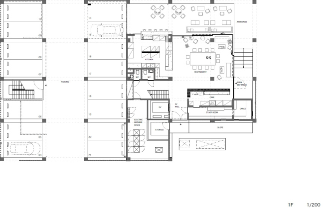
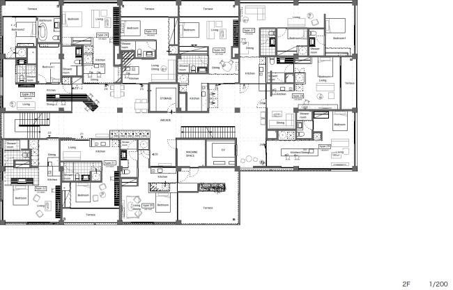
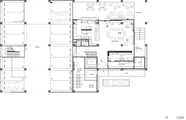
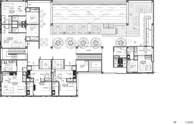
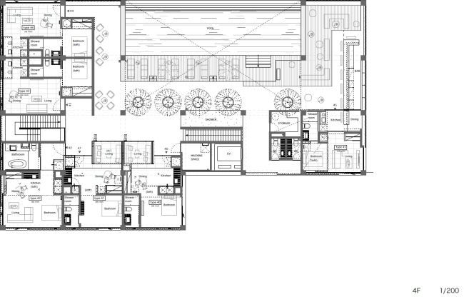
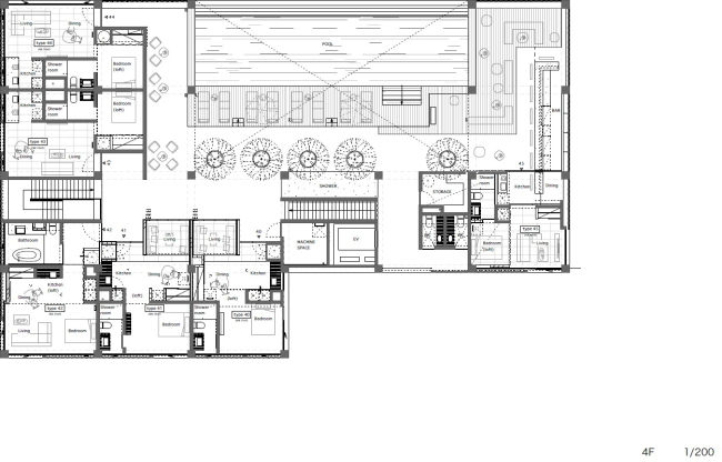
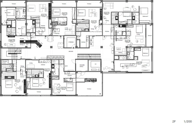
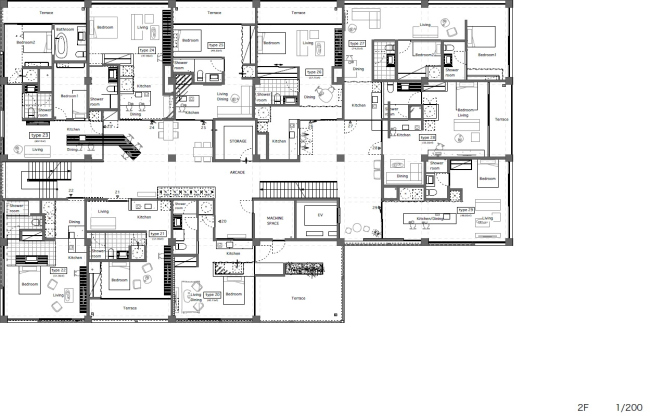
Отель и апартаменты Tamasa © Kawabe Naoya Architects
Отель и апартаменты Tamasa © Kawabe Naoya Architects
Отель и апартаменты Tamasa © Kawabe Naoya Architects
Отель и апартаменты Tamasa © Kawabe Naoya Architects
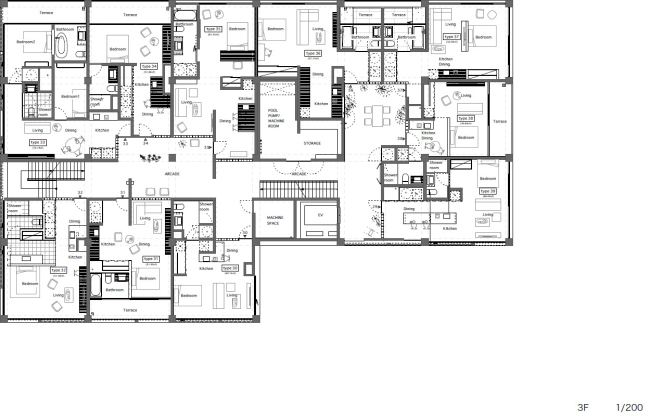
Отель и апартаменты Tamasa © Kawabe Naoya Architects
Отель и апартаменты Tamasa © Kawabe Naoya Architects
Отель и апартаменты Tamasa © Kawabe Naoya Architects
Отель и апартаменты Tamasa © Kawabe Naoya Architects
Отель и апартаменты Tamasa © Kawabe Naoya Architects
Отель и апартаменты Tamasa © Kawabe Naoya Architects