Размещено на портале Архи.ру (www.archi.ru)

28.12.2017

От железнодорожных грузов к креативной индустрии

Нина Фролова
Объект:
Кампус предприятий-стартапов Station F
Адрес:
Франция, None, Париж.

В парижском складе – памятнике промышленного наследия 1920-х открыт самый большой кампус предприятий-стартапов в мире: Station F, спроектированный бюро Жана-Мишеля Вильмотта.

Кампус предприятий-стартапов Station F  © Patrick Tourneboeuf
Кампус предприятий-стартапов Station F © Patrick Tourneboeuf

Station F на 1000 стартапов открыт в историческом складе для перегрузки товаров при вокзале Аустерлиц, совсем рядом с новым комплексом Национальной библиотеки Франции. «Склад Фрейссине» (Halle Freyssinet), называвшийся по имени своего создателя, выдающегося инженера Эжена Фрейссине, был построен в 1920-е по новаторской по тем временам технологии; в частности, его перекрытия из преднапряженного бетона в отдельных участках – не более пяти сантиметров в толщину. Именно эту постройку размером 310 м х 58 м и выбрал известный предприниматель и инвестор в сфере цифровых технологий, миллиардер Ксавье Ньель для размещения будущего кампуса.
 
Кампус предприятий-стартапов Station F  © Patrick Tourneboeuf
Кампус предприятий-стартапов Station F © Patrick Tourneboeuf
Кампус предприятий-стартапов Station F  © Patrick Tourneboeuf
Кампус предприятий-стартапов Station F © Patrick Tourneboeuf
Кампус предприятий-стартапов Station F  © Patrick Tourneboeuf
Кампус предприятий-стартапов Station F © Patrick Tourneboeuf
Кампус предприятий-стартапов Station F  © Patrick Tourneboeuf
Кампус предприятий-стартапов Station F © Patrick Tourneboeuf

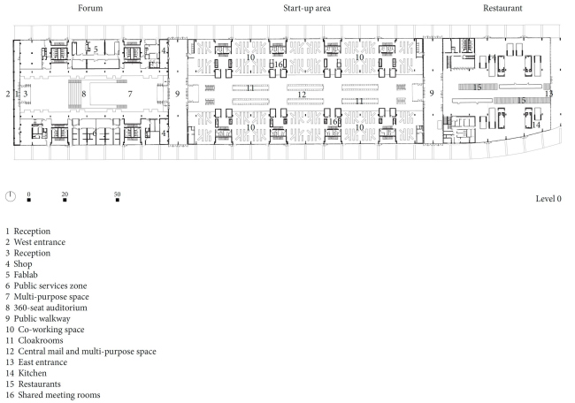
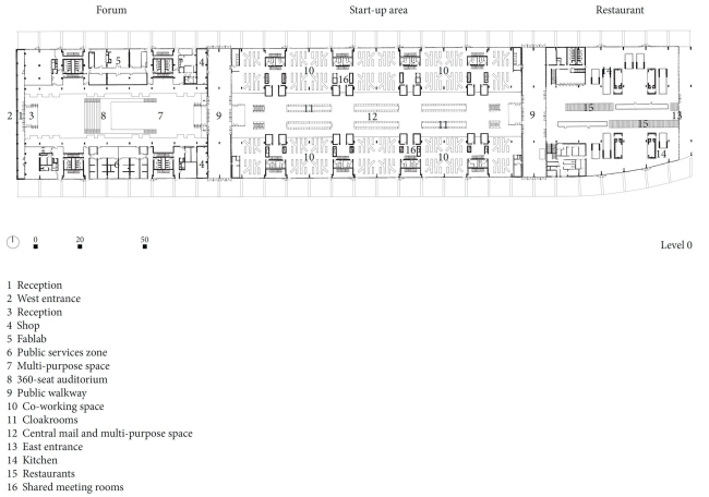
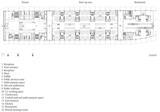
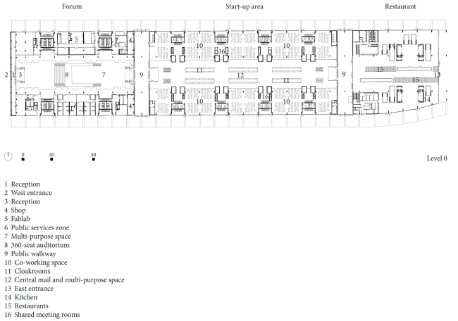
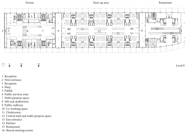
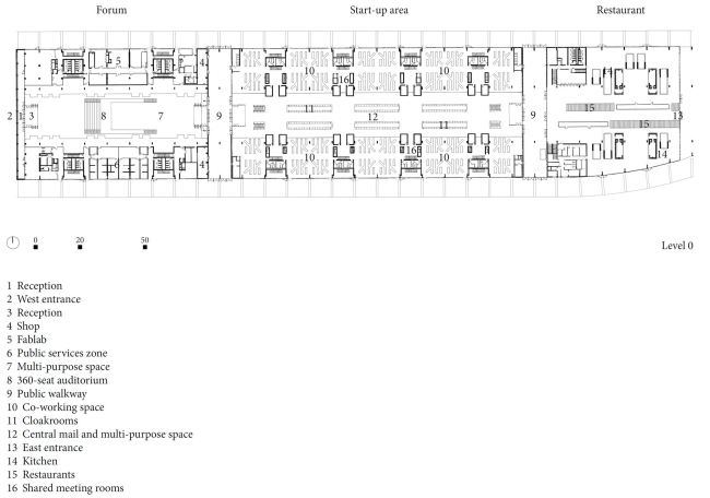
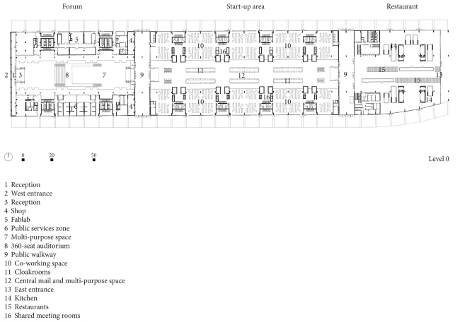
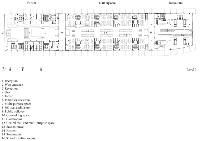
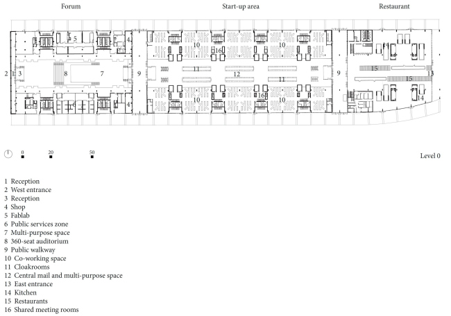
На площади в 34 000 м2 вдоль центральной оси размещены три зоны: Share, Create, Chill. В первой находятся шесть из восьми аудиторий кампуса, включая главную на 370 мест, лаборатория с 3D-принтерами, лазерными станками и т.д. под управлением Techshop Ateliers Leroy Merlin, переговорные разного размера. Для публики открыты созданные там же антикафе и «почтамт». Вокруг постройки, имеющей с 2012 статус памятника, устроены парк, эспланада, пешеходные дорожки; также сделаны два прохода сквозь здание, связывающие окружающие части города между собой.
 
Кампус предприятий-стартапов Station F  © Patrick Tourneboeuf
Кампус предприятий-стартапов Station F © Patrick Tourneboeuf
Кампус предприятий-стартапов Station F  © Patrick Tourneboeuf
Кампус предприятий-стартапов Station F © Patrick Tourneboeuf
Кампус предприятий-стартапов Station F  © Patrick Tourneboeuf
Кампус предприятий-стартапов Station F © Patrick Tourneboeuf
Кампус предприятий-стартапов Station F  © Patrick Tourneboeuf
Кампус предприятий-стартапов Station F © Patrick Tourneboeuf

Create – это собственно зона на тысячу стартапов с 3036 рабочими местами. Кроме начинающих предпринимателей, там размещены офисы Amazon Web Services и других крупных компаний. Центральное пространство – многофункциональная общественная зона, вокруг расположены 24 «деревни» стартапов, по восемь на ярусе.
 
Кампус предприятий-стартапов Station F  © Patrick Tourneboeuf
Кампус предприятий-стартапов Station F © Patrick Tourneboeuf
Кампус предприятий-стартапов Station F. Ресторан. Открытие в конце 2017  © Wilmotte & Associés Architectes
Кампус предприятий-стартапов Station F. Ресторан. Открытие в конце 2017 © Wilmotte & Associés Architectes
Кампус предприятий-стартапов Station F. Жилой комплекс. Открытие в 2018  © Wilmotte & Associés Architectes
Кампус предприятий-стартапов Station F. Жилой комплекс. Открытие в 2018 © Wilmotte & Associés Architectes
Кампус предприятий-стартапов Station F. Жилой комплекс. Открытие в 2018  © Wilmotte & Associés Architectes
Кампус предприятий-стартапов Station F. Жилой комплекс. Открытие в 2018 © Wilmotte & Associés Architectes

Раздел Chill занимает ресторан итальянской кухни на 1000 мест от популярной сети Big Mamma. Он открывается в эти дни, в то время как три башни для предпринимателей Station F (коллективное жилье на 100 квартир и 600 человек) будет сдано летом 2018-го. Они расположены в 10 минутах ходьбы от кампуса.
 
Кампус предприятий-стартапов Station F. Церемония открытия с участием президента Франции Эмманюэля Макрона и директора Station F Роксаны Варза © Pascal Otlingaus
Кампус предприятий-стартапов Station F. Церемония открытия с участием президента Франции Эмманюэля Макрона и директора Station F Роксаны Варза © Pascal Otlingaus

Station F, открытый для молодых предпринимателей со всего мира (надо лишь пройти конкурс) с самого начала привлек внимание французских властей на самом высоком уровне: церемонию закладки первого камня посетил тогдашний президент страны Франсуа Олланд, а открывал кампус его преемник Эмманюэль Макрон.
Кампус предприятий-стартапов Station F  © Patrick Tourneboeuf
Кампус предприятий-стартапов Station F © Patrick Tourneboeuf
Кампус предприятий-стартапов Station F  © Patrick Tourneboeuf
Кампус предприятий-стартапов Station F © Patrick Tourneboeuf
Кампус предприятий-стартапов Station F  © Patrick Tourneboeuf
Кампус предприятий-стартапов Station F © Patrick Tourneboeuf
Кампус предприятий-стартапов Station F  © Patrick Tourneboeuf
Кампус предприятий-стартапов Station F © Patrick Tourneboeuf
Кампус предприятий-стартапов Station F  © Patrick Tourneboeuf
Кампус предприятий-стартапов Station F © Patrick Tourneboeuf
Кампус предприятий-стартапов Station F  © Patrick Tourneboeuf
Кампус предприятий-стартапов Station F © Patrick Tourneboeuf
Кампус предприятий-стартапов Station F  © Patrick Tourneboeuf
Кампус предприятий-стартапов Station F © Patrick Tourneboeuf
Кампус предприятий-стартапов Station F  © Patrick Tourneboeuf
Кампус предприятий-стартапов Station F © Patrick Tourneboeuf
Кампус предприятий-стартапов Station F  © Patrick Tourneboeuf
Кампус предприятий-стартапов Station F © Patrick Tourneboeuf
Кампус предприятий-стартапов Station F  © Patrick Tourneboeuf
Кампус предприятий-стартапов Station F © Patrick Tourneboeuf
Кампус предприятий-стартапов Station F  © Patrick Tourneboeuf
Кампус предприятий-стартапов Station F © Patrick Tourneboeuf
Кампус предприятий-стартапов Station F  © Patrick Tourneboeuf
Кампус предприятий-стартапов Station F © Patrick Tourneboeuf
Кампус предприятий-стартапов Station F  © Patrick Tourneboeuf
Кампус предприятий-стартапов Station F © Patrick Tourneboeuf
Кампус предприятий-стартапов Station F  © Patrick Tourneboeuf
Кампус предприятий-стартапов Station F © Patrick Tourneboeuf
Кампус предприятий-стартапов Station F  © Patrick Tourneboeuf
Кампус предприятий-стартапов Station F © Patrick Tourneboeuf
Кампус предприятий-стартапов Station F  © Patrick Tourneboeuf
Кампус предприятий-стартапов Station F © Patrick Tourneboeuf
Кампус предприятий-стартапов Station F  © Patrick Tourneboeuf
Кампус предприятий-стартапов Station F © Patrick Tourneboeuf
Кампус предприятий-стартапов Station F  © Patrick Tourneboeuf
Кампус предприятий-стартапов Station F © Patrick Tourneboeuf
Кампус предприятий-стартапов Station F  © Patrick Tourneboeuf
Кампус предприятий-стартапов Station F © Patrick Tourneboeuf
Кампус предприятий-стартапов Station F  © Patrick Tourneboeuf
Кампус предприятий-стартапов Station F © Patrick Tourneboeuf
Кампус предприятий-стартапов Station F  © Patrick Tourneboeuf
Кампус предприятий-стартапов Station F © Patrick Tourneboeuf
Кампус предприятий-стартапов Station F  © Wilmotte & Associés Architectes
Кампус предприятий-стартапов Station F © Wilmotte & Associés Architectes
Кампус предприятий-стартапов Station F  © Wilmotte & Associés Architectes
Кампус предприятий-стартапов Station F © Wilmotte & Associés Architectes
Кампус предприятий-стартапов Station F  © Wilmotte & Associés Architectes
Кампус предприятий-стартапов Station F © Wilmotte & Associés Architectes
Кампус предприятий-стартапов Station F  © Wilmotte & Associés Architectes
Кампус предприятий-стартапов Station F © Wilmotte & Associés Architectes
Кампус предприятий-стартапов Station F  © Wilmotte & Associés Architectes
Кампус предприятий-стартапов Station F © Wilmotte & Associés Architectes
Кампус предприятий-стартапов Station F  © Wilmotte & Associés Architectes
Кампус предприятий-стартапов Station F © Wilmotte & Associés Architectes
Кампус предприятий-стартапов Station F  © Wilmotte & Associés Architectes
Кампус предприятий-стартапов Station F © Wilmotte & Associés Architectes
Кампус предприятий-стартапов Station F  © Wilmotte & Associés Architectes
Кампус предприятий-стартапов Station F © Wilmotte & Associés Architectes
Кампус предприятий-стартапов Station F  © Wilmotte & Associés Architectes
Кампус предприятий-стартапов Station F © Wilmotte & Associés Architectes