Размещено на портале Архи.ру (www.archi.ru)

27.12.2017

Архитектура строгого режима

Нина Фролова
Объект:
Тюрьма Сторстрём
Адрес:
Дания, None,
Мастерская:
C. F. Møller

Тюрьма Сторстрём на датском острове Фальстер по проекту бюро C.F. Møller.

Тюрьма Сторстрём © Torben Eskerod
Тюрьма Сторстрём © Torben Eskerod

Тюрьма строгого режима Сторстрём претендует на звание «самой гуманной в мире», хотя как именно подсчитывается гуманность, остается только гадать. Заха Хадид, отвечая на упреки в сотрудничестве с нарушающими права человека режимами, объясняла, что строит в таких странах общественные здания для народа, так как правители приходят и уходят, в то время как тюрьму она не стала бы проектировать даже для самого демократического государства. У архитекторов C.F. Møller на вопрос о создании ими места заключения тоже есть объяснение: по их словам, роль их бюро в деле поддержания структуры демократического социального государства, которым является Дания, включая его юридическую систему, обязывает их работать над нужным этой системе зданием любого типа, включая тюрьму.
 
Тюрьма Сторстрём © Steen Paulsen / Kriminalforsorgen
Тюрьма Сторстрём © Steen Paulsen / Kriminalforsorgen

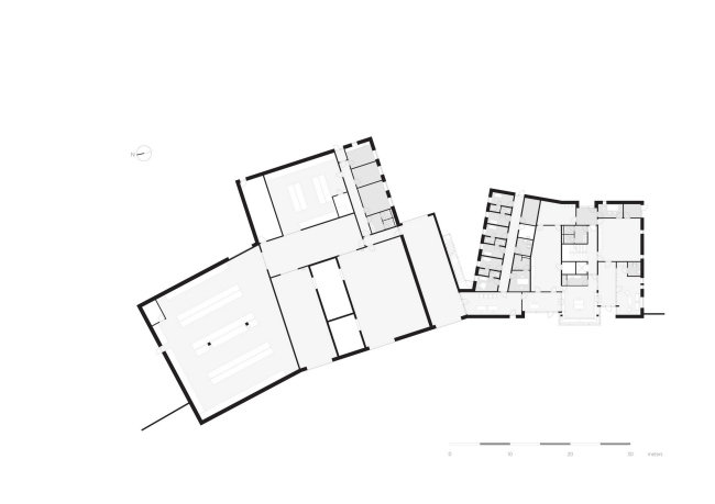
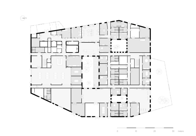
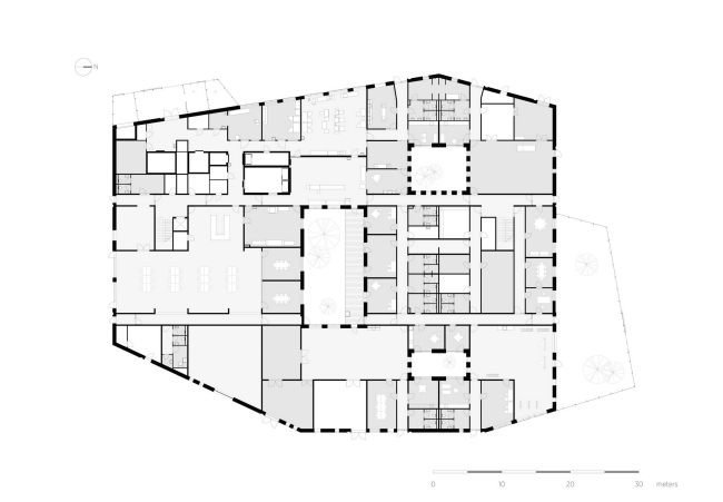
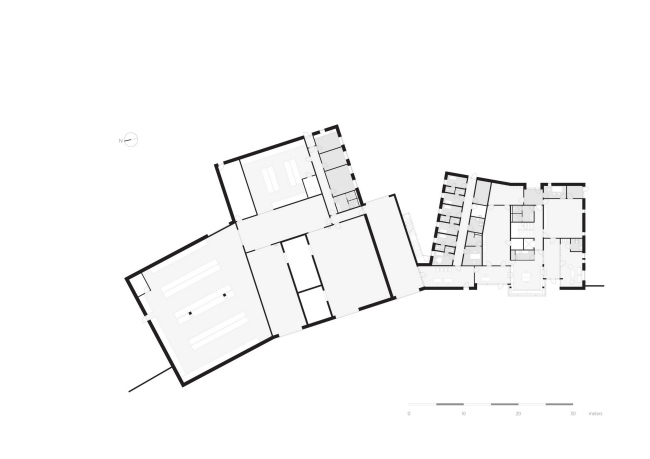
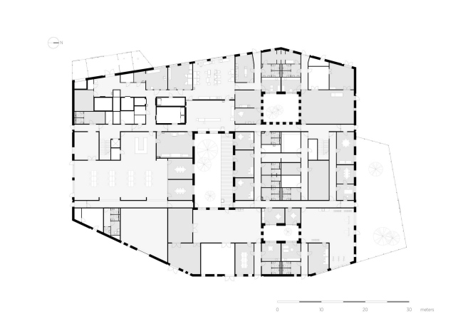
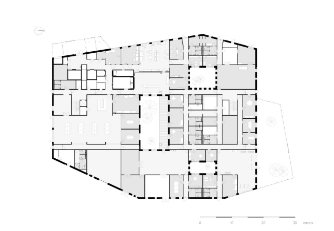
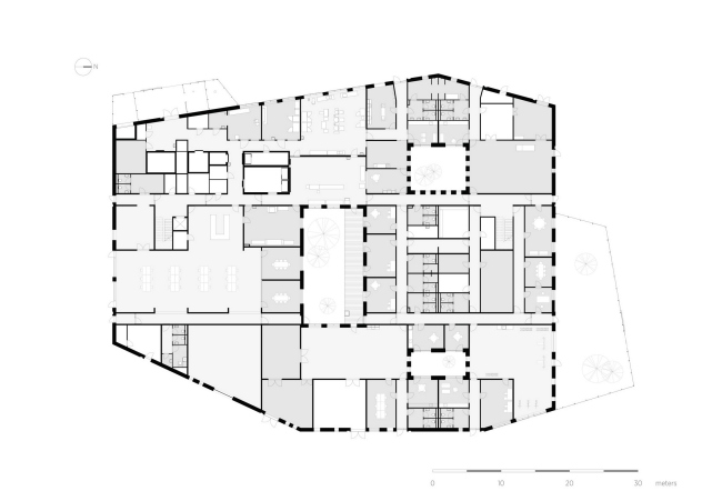
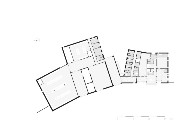
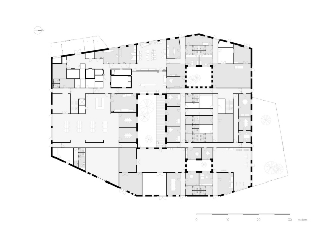
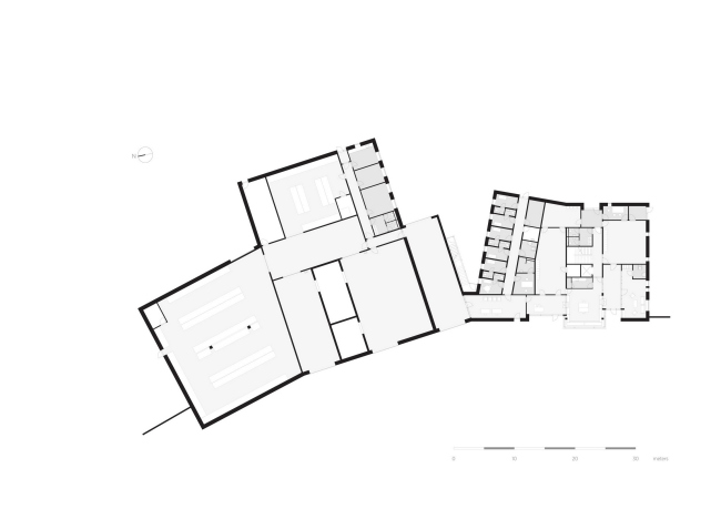
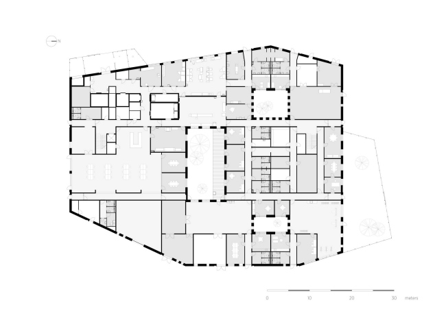
Сторстрём представляет собой комплекс из невысоких зданий, вписанный в окружающий сельский ландшафт – несмотря на шестиметровый забор по периметру. Так как это учреждение строгого режима, безопасность была ключевой заботой архитекторов, в том числе – психологический комфорт охраны, порой работающей под сильным давлением.
 
Тюрьма Сторстрём © Torben Eskerod
Тюрьма Сторстрём © Torben Eskerod

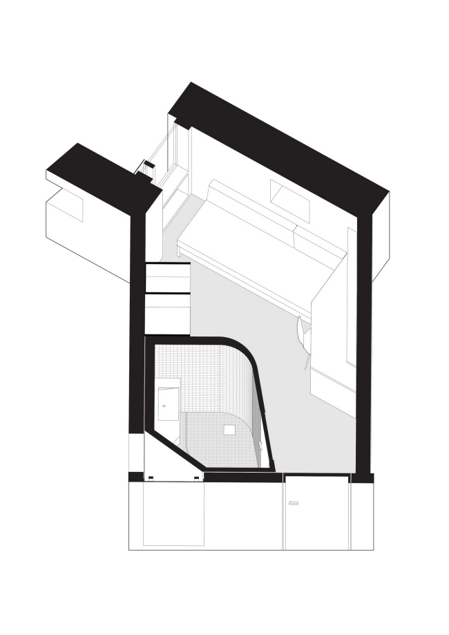
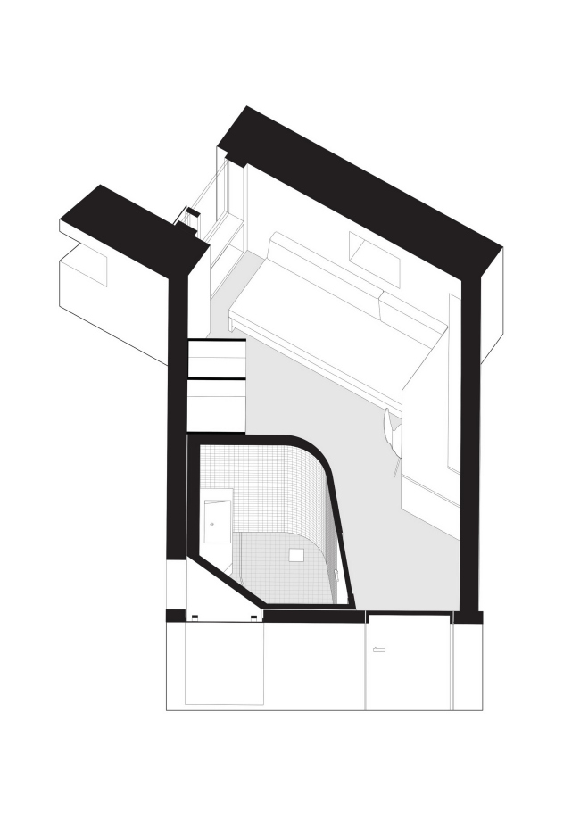
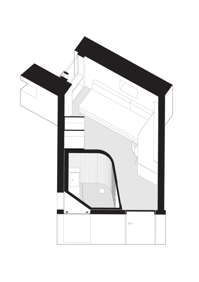
Но не менее важной была тема реабилитации заключенных, которые порой совершенно не социализированы – почти не учились в школе и не умеют делать покупки в магазине (школа, магазин, церковь и молельные комнаты в комплексе есть). Для их хорошего самочувствия интерьеры получили естественное освещение и виды наружу: так, в каждой камере есть маленькое окно и еще одно, во всю высоту – впрочем, заглянуть туда другим «обитателям» не получится, что предотвращает секретные переговоры заключенных и одновременно оберегает их частную жизнь.
 
Тюрьма Сторстрём © Torben Eskerod
Тюрьма Сторстрём © Torben Eskerod

Площадь каждой камеры – порядка 13 м2, ее сложный план с криволинейной стеной одновременно оживляет интерьер и позволяет охраннику от двери окинуть помещение одним взглядом. В камерах есть санузел с душем, холодильник, телевизор и т.д. Каждые 4–7 камер собраны в кластер с общей кухней и гостиной, в каждом из четырех обычных жилых корпусов есть свой фитнес-зал, в корпусе режима повышенной строгости, где заключенные, помимо прочего, физически отделены от охраны, есть два спортзала (в обычных корпусах охранники пользуются теми же коридорами, к их рабочему месту у заключенных есть открытый доступ – хотя «комнаты безопасности» и специальные переходы на случай бунта тоже сделаны). В тюрьме есть также футбольное поле и большой спортзал.
 
Тюрьма Сторстрём © Torben Eskerod
Тюрьма Сторстрём © Torben Eskerod

Планировка по типу поселения призвана создать более комфортную атмосферу, ощущение человеческого масштаба и разнообразия для заключенных и сотрудников, чем одно большое здание. Этому же служат облицовка фасада из кирпича, бетона и стали, которые красиво «стареют», произведения искусства, разное качество и материал мощения, озеленение.
Тюрьма Сторстрём © Torben Eskerod
Тюрьма Сторстрём © Torben Eskerod

Кроме пяти корпусов с камерами, в комплексе есть здание для персонала, привратный корпус, мастерские, корпус для активных занятий и отдел для посетителей.
 
Тюрьма Сторстрём © Torben Eskerod
Тюрьма Сторстрём © Torben Eskerod

Планировка тюрьмы достаточна гибка, чтобы не устареть при возможных изменениях в принципах работы таких учреждений или же в обществе в целом.
Тюрьма Сторстрём © Torben Eskerod
Тюрьма Сторстрём © Torben Eskerod
Тюрьма Сторстрём © Torben Eskerod
Тюрьма Сторстрём © Torben Eskerod
Тюрьма Сторстрём © Torben Eskerod
Тюрьма Сторстрём © Torben Eskerod
Тюрьма Сторстрём © Torben Eskerod
Тюрьма Сторстрём © Torben Eskerod
Тюрьма Сторстрём © Torben Eskerod
Тюрьма Сторстрём © Torben Eskerod
Тюрьма Сторстрём © Torben Eskerod
Тюрьма Сторстрём © Torben Eskerod
Тюрьма Сторстрём © Torben Eskerod
Тюрьма Сторстрём © Torben Eskerod
Тюрьма Сторстрём © Torben Eskerod
Тюрьма Сторстрём © Torben Eskerod
Тюрьма Сторстрём © Torben Eskerod
Тюрьма Сторстрём © Torben Eskerod
Тюрьма Сторстрём © Torben Eskerod
Тюрьма Сторстрём © Torben Eskerod
Тюрьма Сторстрём © Torben Eskerod
Тюрьма Сторстрём © Torben Eskerod
Тюрьма Сторстрём © Torben Eskerod
Тюрьма Сторстрём © Torben Eskerod
Тюрьма Сторстрём © Torben Eskerod
Тюрьма Сторстрём © Torben Eskerod
Тюрьма Сторстрём. Скульптурная группа работы Клауса Карстенсена © Torben Eskerod
Тюрьма Сторстрём. Скульптурная группа работы Клауса Карстенсена © Torben Eskerod
Тюрьма Сторстрём © Torben Eskerod
Тюрьма Сторстрём © Torben Eskerod
Тюрьма Сторстрём © Torben Eskerod
Тюрьма Сторстрём © Torben Eskerod
Тюрьма Сторстрём © Torben Eskerod
Тюрьма Сторстрём © Torben Eskerod
Тюрьма Сторстрём. Роспись работы Джона Кёрнера © Torben Eskerod
Тюрьма Сторстрём. Роспись работы Джона Кёрнера © Torben Eskerod
Тюрьма Сторстрём © Torben Eskerod
Тюрьма Сторстрём © Torben Eskerod
Тюрьма Сторстрём © Torben Eskerod
Тюрьма Сторстрём © Torben Eskerod
Тюрьма Сторстрём © Torben Eskerod
Тюрьма Сторстрём © Torben Eskerod
Тюрьма Сторстрём © Torben Eskerod
Тюрьма Сторстрём © Torben Eskerod
Тюрьма Сторстрём © Torben Eskerod
Тюрьма Сторстрём © Torben Eskerod
Тюрьма Сторстрём © C.F. Møller
Тюрьма Сторстрём © C.F. Møller
Тюрьма Сторстрём © C.F. Møller
Тюрьма Сторстрём © C.F. Møller
Тюрьма Сторстрём © C.F. Møller
Тюрьма Сторстрём © C.F. Møller
Тюрьма Сторстрём © C.F. Møller
Тюрьма Сторстрём © C.F. Møller
Тюрьма Сторстрём © C.F. Møller
Тюрьма Сторстрём © C.F. Møller
Тюрьма Сторстрём © C.F. Møller
Тюрьма Сторстрём © C.F. Møller
Тюрьма Сторстрём © C.F. Møller
Тюрьма Сторстрём © C.F. Møller
Тюрьма Сторстрём © C.F. Møller
Тюрьма Сторстрём © C.F. Møller
Тюрьма Сторстрём © C.F. Møller
Тюрьма Сторстрём © C.F. Møller
Тюрьма Сторстрём © C.F. Møller
Тюрьма Сторстрём © C.F. Møller
Тюрьма Сторстрём © C.F. Møller
Тюрьма Сторстрём © C.F. Møller
Тюрьма Сторстрём © C.F. Møller
Тюрьма Сторстрём © C.F. Møller
Тюрьма Сторстрём © C.F. Møller
Тюрьма Сторстрём © C.F. Møller
Тюрьма Сторстрём © C.F. Møller
Тюрьма Сторстрём © C.F. Møller
Тюрьма Сторстрём © C.F. Møller
Тюрьма Сторстрём © C.F. Møller
Тюрьма Сторстрём © C.F. Møller
Тюрьма Сторстрём © C.F. Møller