Размещено на портале Архи.ру (www.archi.ru)

22.12.2017

Дерево и мрамор

Нина Фролова
Объект:
Ресторан Toks
Адрес:
Мексика, None, Веракрус.
Мастерская:
Legorreta

Ресторан Toks по проекту бюро Legorreta в бывшей церкви доминиканского монастыря в Веракрусе на востоке Мексики.

Ресторан Toks © Lucía Cervantes / Legorreta
Ресторан Toks © Lucía Cervantes / Legorreta

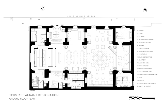
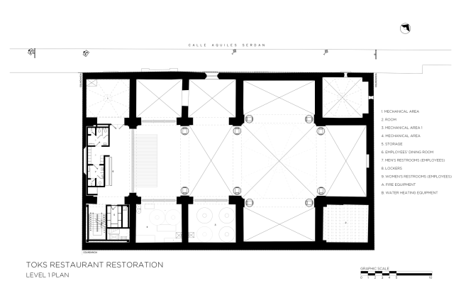
Ресторан разветвленной сети Toks открылся в историческом центре города Веракрус, в бывшей церкви монастыря Санто-Доминго XVII века. Монастырь прекратил свое существование еще в середине XIX века, когда в Мексике прошла секуляризация: с тех пор его церковь долгое время использовалась как склад и даже гараж, в ее интерьере появились новые конструкции, также она была обстроена снаружи, при этом оказался закрыт главный, западный фасад.
 
Ресторан Toks © Lucía Cervantes / Legorreta
Ресторан Toks © Lucía Cervantes / Legorreta

Когда возникла идея превратить бывшую церковь (1624–1651) в ресторан, особое внимание было уделено ее качественной реставрации. Результаты проведенного исследования позволили найти забытые компоненты постройки, к примеру, открыть заложенные окна и считающиеся редкостью для региона Веракруса росписи в интерьере.
 
Ресторан Toks © Lucía Cervantes / Legorreta
Ресторан Toks © Lucía Cervantes / Legorreta

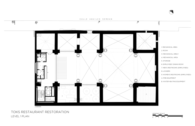
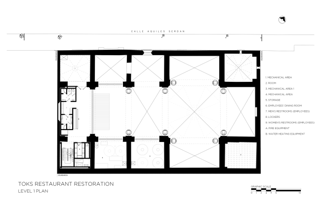
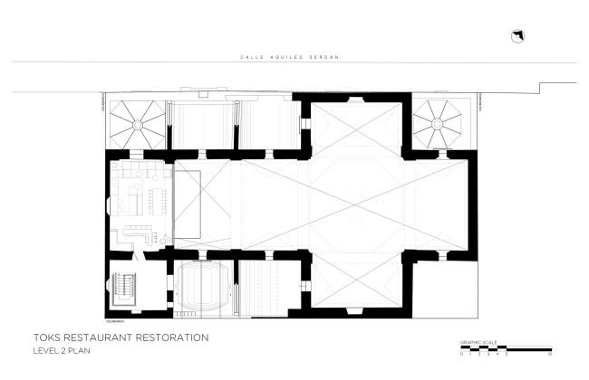
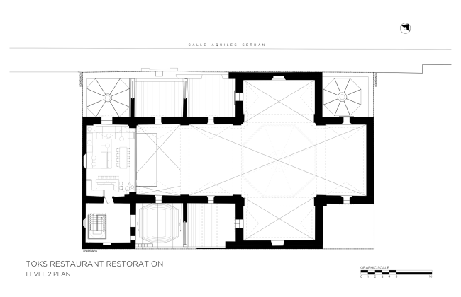
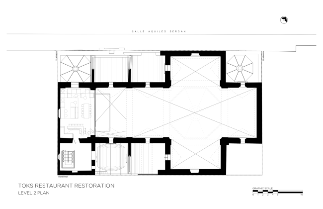
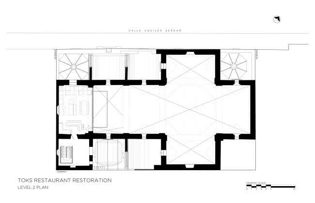
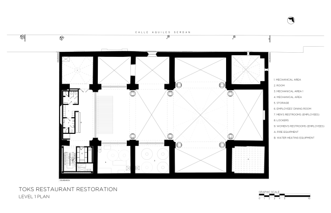
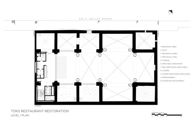
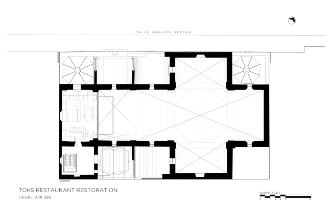
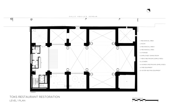
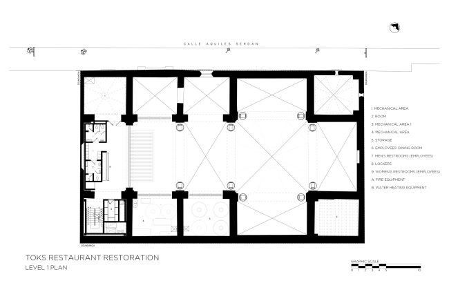
Часть позднейших конструкций оставили для нужд ресторана, в то время как центральный неф, где расположен основной зал, был полностью расчищен. После консультаций с реставраторами были осторожно добавлены дополнительный этаж с подсобными помещениями и лестничный узел.
 
Ресторан Toks © Lucía Cervantes / Legorreta
Ресторан Toks © Lucía Cervantes / Legorreta

При выборе материалов учитывались исторический контекст и тропический климат с чередованием очень влажных и очень сухих сезонов. Для пола был выбран мексиканский мрамор Санто-Томас двух оттенков, для собственно мощения и для бордюра, как характерно для монастырских церквей региона. Различные экраны, двери, оконные рамы, мебель выполнены из древесины тика, способной выдержать капризы местного климата. Сдержанный теплый тон стен был согласован с реставраторами.
Ресторан Toks © Lucía Cervantes / Legorreta
Ресторан Toks © Lucía Cervantes / Legorreta
Ресторан Toks © Lucía Cervantes / Legorreta
Ресторан Toks © Lucía Cervantes / Legorreta
Ресторан Toks © Lucía Cervantes / Legorreta
Ресторан Toks © Lucía Cervantes / Legorreta
Ресторан Toks © Lucía Cervantes / Legorreta
Ресторан Toks © Lucía Cervantes / Legorreta
Ресторан Toks © Lucía Cervantes / Legorreta
Ресторан Toks © Lucía Cervantes / Legorreta
Ресторан Toks © Lucía Cervantes / Legorreta
Ресторан Toks © Lucía Cervantes / Legorreta
Ресторан Toks © Lucía Cervantes / Legorreta
Ресторан Toks © Lucía Cervantes / Legorreta
Ресторан Toks © Lucía Cervantes / Legorreta
Ресторан Toks © Lucía Cervantes / Legorreta
Ресторан Toks © Lucía Cervantes / Legorreta
Ресторан Toks © Lucía Cervantes / Legorreta
Ресторан Toks © Lucía Cervantes / Legorreta
Ресторан Toks © Lucía Cervantes / Legorreta
Ресторан Toks © Lucía Cervantes / Legorreta
Ресторан Toks © Lucía Cervantes / Legorreta
Ресторан Toks © Lucía Cervantes / Legorreta
Ресторан Toks © Lucía Cervantes / Legorreta
Ресторан Toks © Lucía Cervantes / Legorreta
Ресторан Toks © Lucía Cervantes / Legorreta
Ресторан Toks © Legorreta
Ресторан Toks © Legorreta
Ресторан Toks © Legorreta
Ресторан Toks © Legorreta
Ресторан Toks © Legorreta
Ресторан Toks © Legorreta
Ресторан Toks © Legorreta
Ресторан Toks © Legorreta
Ресторан Toks © Legorreta
Ресторан Toks © Legorreta
Ресторан Toks © Legorreta
Ресторан Toks © Legorreta
Ресторан Toks © Legorreta
Ресторан Toks © Legorreta
Ресторан Toks © Legorreta
Ресторан Toks © Legorreta
Ресторан Toks © Legorreta
Ресторан Toks © Legorreta
Ресторан Toks © Legorreta
Ресторан Toks © Legorreta
Ресторан Toks © Legorreta
Ресторан Toks © Legorreta
Церковь монастыря Санто-Доминго до реконструкции © Roberto López / Legorreta
Церковь монастыря Санто-Доминго до реконструкции © Roberto López / Legorreta
Церковь монастыря Санто-Доминго до реконструкции © Daniel Reyes / Legorreta
Церковь монастыря Санто-Доминго до реконструкции © Daniel Reyes / Legorreta
Церковь монастыря Санто-Доминго до реконструкции © Daniel Reyes / Legorreta
Церковь монастыря Санто-Доминго до реконструкции © Daniel Reyes / Legorreta
Церковь монастыря Санто-Доминго до реконструкции © Roberto López / Legorreta
Церковь монастыря Санто-Доминго до реконструкции © Roberto López / Legorreta
Церковь монастыря Санто-Доминго до реконструкции © Daniel Reyes / Legorreta
Церковь монастыря Санто-Доминго до реконструкции © Daniel Reyes / Legorreta
Церковь монастыря Санто-Доминго до реконструкции © Roberto López / Legorreta
Церковь монастыря Санто-Доминго до реконструкции © Roberto López / Legorreta