Размещено на портале Архи.ру (www.archi.ru)

08.12.2017

Бамбуковые интерьеры

Нина Фролова
Объект:
Торговый центр квартала CityLife
Адрес:
Италия, None, Милан.
Мастерская:
Zaha Hadid Architects

В Милане открылся торговый центр квартала CityLife по проекту Zaha Hadid Architects.

Торговый центр квартала CityLife © Hufton+Crow
Торговый центр квартала CityLife © Hufton+Crow

Торговый центр расположен у подножия башни Generali, также авторства Zaha Hadid Architects: этот небоскреб, как и соседние – по проектам Арата Исодзаки и Даниэля Либескинда – выходит на площадь Тре Торри – «три башни». Под ней, точнее, непосредственно под ТЦ, находится одноименная станция новой линии метро.
 
Торговый центр квартала CityLife © Hufton+Crow
Торговый центр квартала CityLife © Hufton+Crow

Квартал CityLife на бывшем месте миланского выставочного комплекса – один из крупнейших строительных проектов Европы (366 тыс. м2); кроме упомянутых офисных небоскребов (пока сдано только здание Исодзаки) и ТЦ, там есть два жилых комплекса – Либескинда и ZHA, а также парк площадью порядка 17 га, над которым работали Кэтрин Густафсон и другие видные ландшафтные архитекторы. По завершении строительства в квартале будут жить тысяча, а работать – 10 000 человек.
 
Торговый центр квартала CityLife © Hufton+Crow
Торговый центр квартала CityLife © Hufton+Crow

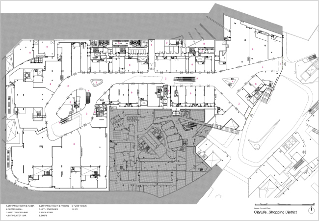
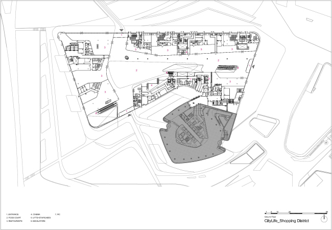
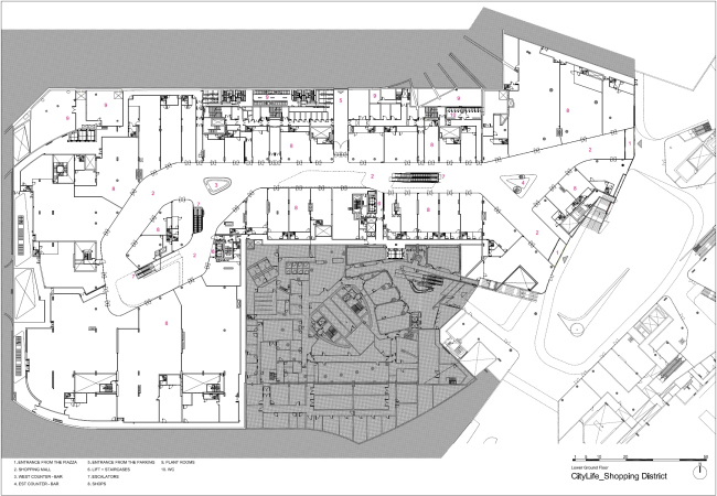
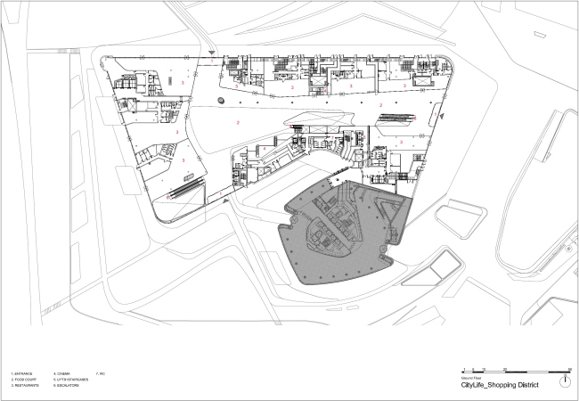
Торговый центр общей площадью 32 тыс. м2 рассчитан на 7 млн посетителей в год после 2020, когда CityLife полностью введут в строй. Как предполагается, он охватит район с живущими и работающими там 700 000 человек.
 
Торговый центр квартала CityLife © Hufton+Crow
Торговый центр квартала CityLife © Hufton+Crow

В интерьере широко использованы композитные материалы на основе бамбука: из них выполнены покрытие пола и потолка, опоры, стойки кафе. Если для пола и колонн были выбраны сплошные панели, то потолки покрыты прорезями. Все эти компоненты интерьера изготовлены с помощью станков с компьютерным управлением. Приятный на ощупь, бамбук очень устойчив к износу, а также быстро воспроизводится, и потому даже активная его вырубка не наносит вреда окружающей среде.
Торговый центр квартала CityLife © Hufton+Crow
Торговый центр квартала CityLife © Hufton+Crow
Торговый центр квартала CityLife © Hufton+Crow
Торговый центр квартала CityLife © Hufton+Crow
Торговый центр квартала CityLife © Hufton+Crow
Торговый центр квартала CityLife © Hufton+Crow
Торговый центр квартала CityLife © Hufton+Crow
Торговый центр квартала CityLife © Hufton+Crow
Торговый центр квартала CityLife © Hufton+Crow
Торговый центр квартала CityLife © Hufton+Crow
Торговый центр квартала CityLife © Hufton+Crow
Торговый центр квартала CityLife © Hufton+Crow
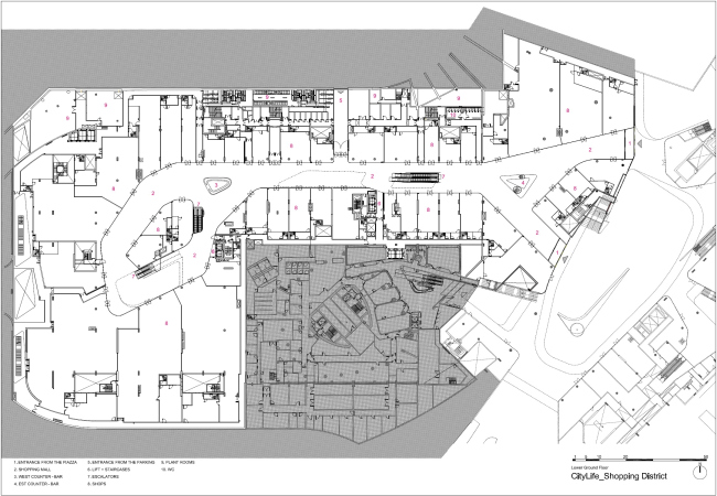
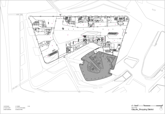
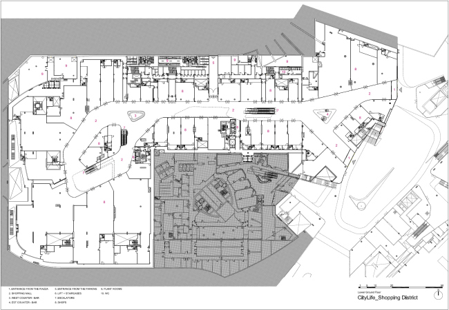
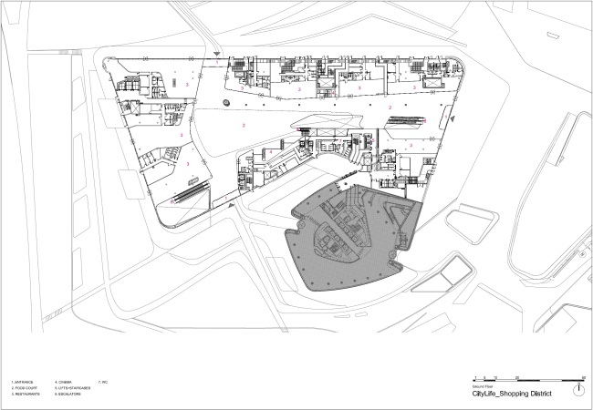
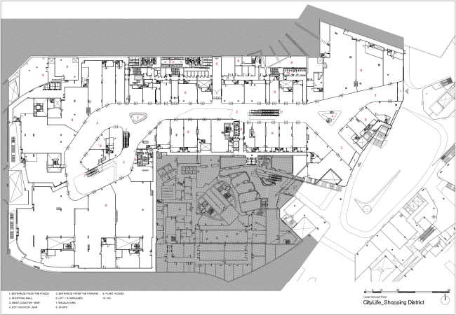
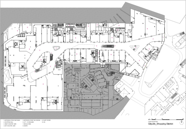
Торговый центр квартала CityLife © Zaha Hadid Architects
Торговый центр квартала CityLife © Zaha Hadid Architects
Торговый центр квартала CityLife © Zaha Hadid Architects
Торговый центр квартала CityLife © Zaha Hadid Architects
Торговый центр квартала CityLife © Zaha Hadid Architects
Торговый центр квартала CityLife © Zaha Hadid Architects
Торговый центр квартала CityLife © Zaha Hadid Architects
Торговый центр квартала CityLife © Zaha Hadid Architects