Размещено на портале Архи.ру (www.archi.ru)

20.11.2017

Демократическая культура

Нина Фролова
Объект:
Культурный центр Odeon
Адрес:
Дания, None, Оденсе.
Мастерская:
C. F. Møller

Центр исполнительских искусств Odeon в датском городе Оденсе – по проекту бюро C.F. Møller.

Культурный центр Odeon © Kirstine Mengel
Культурный центр Odeon © Kirstine Mengel

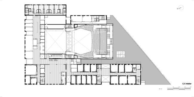
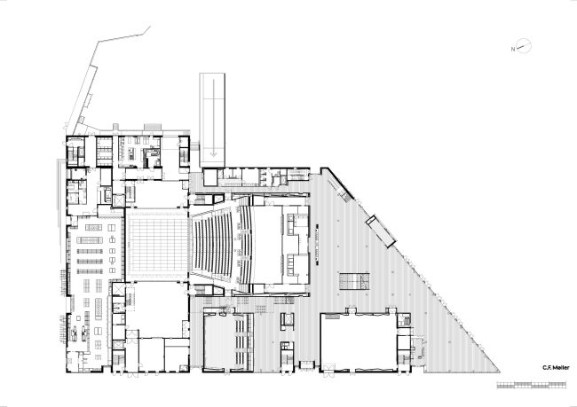
Центр Odeon расположен на границе исторического города и современной застройки, в новом пешеходном квартале. Чтобы согласовать его с окружением, архитекторы C.F. Møller разбили запланированный заказчиками крупный объем на серию меньших, соединенных и окруженных улочками и «плазами». Тема общественных пространств продолжается и в интерьере: фойе служит своего рода «культурной» рыночной площадью, где целый день можно найти, чем заняться.
 
Культурный центр Odeon © Kirstine Mengel
Культурный центр Odeon © Kirstine Mengel
Культурный центр Odeon © KPC
Культурный центр Odeon © KPC
Культурный центр Odeon © Kirstine Mengel
Культурный центр Odeon © Kirstine Mengel
Культурный центр Odeon © Kirstine Mengel
Культурный центр Odeon © Kirstine Mengel
Культурный центр Odeon © Kirstine Mengel
Культурный центр Odeon © Kirstine Mengel
Культурный центр Odeon © Kirstine Mengel
Культурный центр Odeon © Kirstine Mengel
Культурный центр Odeon © Jens Wognsen
Культурный центр Odeon © Jens Wognsen
Культурный центр Odeon © Kirstine Mengel
Культурный центр Odeon © Kirstine Mengel

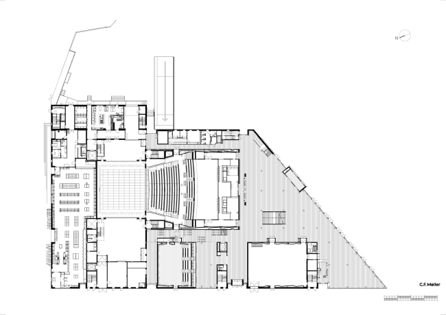
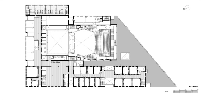
Здание общей площадью 32 000 м2 включает в себя четыре зрительных зала – большой (1800 кресел или более 3000 стоячих мест), малый (300 зрителей), камерной музыки и ритмический (для драматических спектаклей, танца, стендапа и т.д.). Там же расположены помещения Датской национальной академии музыки и Театральной школы Оденсе, жилье для молодежи и супермаркет. Такое разнообразие функций отражает желание города сделать новый центр по-настоящему демократическим учреждением, избежав всегда присущей академической музыке или опере определенной «элитарности».
 
Культурный центр Odeon © Kirstine Mengel
Культурный центр Odeon © Kirstine Mengel
Культурный центр Odeon © Kirstine Mengel
Культурный центр Odeon © Kirstine Mengel
Культурный центр Odeon © Kirstine Mengel
Культурный центр Odeon © Kirstine Mengel
Культурный центр Odeon © Kirstine Mengel
Культурный центр Odeon © Kirstine Mengel
Культурный центр Odeon © Kirstine Mengel
Культурный центр Odeon © Kirstine Mengel
Культурный центр Odeon © Kirstine Mengel
Культурный центр Odeon © Kirstine Mengel
Культурный центр Odeon © Kirstine Mengel
Культурный центр Odeon © Kirstine Mengel
Культурный центр Odeon © Kirstine Mengel
Культурный центр Odeon © Kirstine Mengel

Так как бюджет в 650 млн датских крон (87 млн евро) не был «бесконечным», для центра выбраны качественные, но скромные материалы. Цоколь облицован кирпичом, фасады двух крупных объемов – большого зала и колосников – покрыты белыми бетонными панелями, на остальных белый сочетается с контрастными полосами или использованы создающие игру светотени профили. Черные стальные лестницы получили покрытие ступеней из ясеня. Интерьер большого зала золотистым колоритом отсылает к барочным театрам и венскому «Музикферайну». Он способен принять не только концерты популярной и классической музыки, но и конференции, показы мод, балетные и оперные спектакли.
Культурный центр Odeon © Kirstine Mengel
Культурный центр Odeon © Kirstine Mengel
Культурный центр Odeon © Kirstine Mengel
Культурный центр Odeon © Kirstine Mengel
Культурный центр Odeon © Kirstine Mengel
Культурный центр Odeon © Kirstine Mengel
Культурный центр Odeon © Kirstine Mengel
Культурный центр Odeon © Kirstine Mengel
Культурный центр Odeon © Kirstine Mengel
Культурный центр Odeon © Kirstine Mengel
Культурный центр Odeon © Kirstine Mengel
Культурный центр Odeon © Kirstine Mengel
Культурный центр Odeon © Kirstine Mengel
Культурный центр Odeon © Kirstine Mengel
Культурный центр Odeon © Kirstine Mengel
Культурный центр Odeon © Kirstine Mengel
Культурный центр Odeon © Kirstine Mengel
Культурный центр Odeon © Kirstine Mengel
Культурный центр Odeon © Søren Lykke Bülow
Культурный центр Odeon © Søren Lykke Bülow
Культурный центр Odeon © Jens Wognsen
Культурный центр Odeon © Jens Wognsen
Культурный центр Odeon © Kirstine Mengel
Культурный центр Odeon © Kirstine Mengel
Культурный центр Odeon © C.F. Møller
Культурный центр Odeon © C.F. Møller
Культурный центр Odeon © C.F. Møller
Культурный центр Odeon © C.F. Møller
Культурный центр Odeon © C.F. Møller
Культурный центр Odeon © C.F. Møller
Культурный центр Odeon © C.F. Møller
Культурный центр Odeon © C.F. Møller
Культурный центр Odeon © C.F. Møller
Культурный центр Odeon © C.F. Møller
Культурный центр Odeon © C.F. Møller
Культурный центр Odeon © C.F. Møller
Культурный центр Odeon © C.F. Møller
Культурный центр Odeon © C.F. Møller
Культурный центр Odeon © C.F. Møller
Культурный центр Odeon © C.F. Møller
Культурный центр Odeon © C.F. Møller
Культурный центр Odeon © C.F. Møller
Культурный центр Odeon © C.F. Møller
Культурный центр Odeon © C.F. Møller
Культурный центр Odeon © C.F. Møller
Культурный центр Odeon © C.F. Møller
Культурный центр Odeon © C.F. Møller
Культурный центр Odeon © C.F. Møller
Культурный центр Odeon © C.F. Møller
Культурный центр Odeon © C.F. Møller
Культурный центр Odeon © C.F. Møller
Культурный центр Odeon © C.F. Møller