Размещено на портале Архи.ру (www.archi.ru)

15.11.2017

Хлебный дом

Нина Фролова
Объект:
Посетительский центр Paneum
Адрес:
Австрия, None, Астен. Kornspitzstraße 1, 4481 Asten
Мастерская:
Coop Himmelb(l)au

Посетительский центр Paneum по проекту Coop Himmelb(l)au для компании Backaldrin, производителя сырья для хлебобулочных изделий.

Посетительский центр Paneum © Markus Pillhofer
Посетительский центр Paneum © Markus Pillhofer

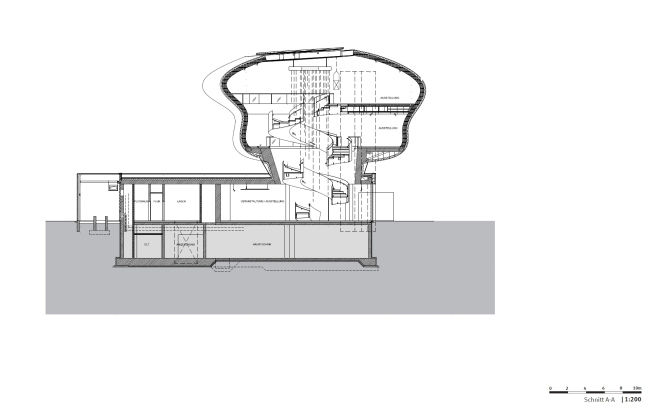
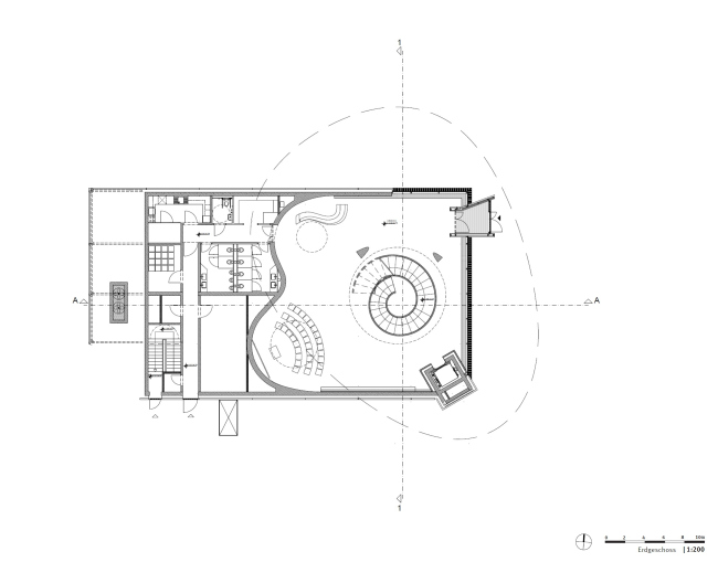
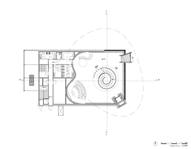
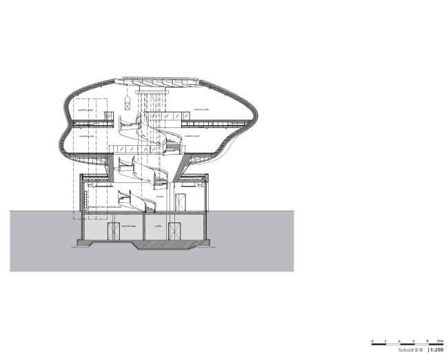
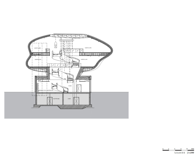
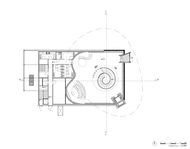
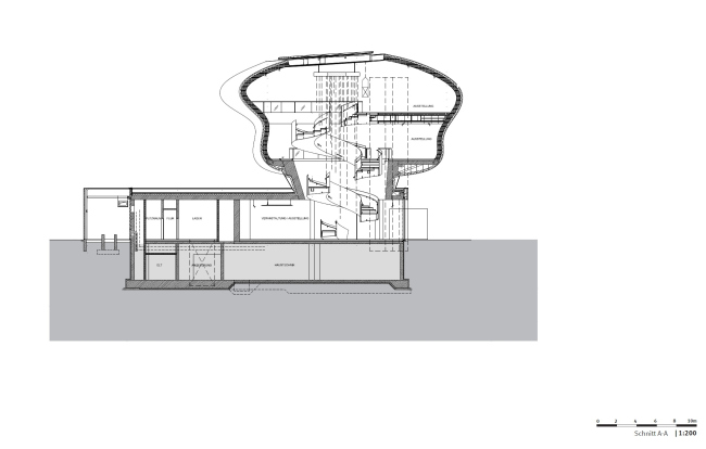
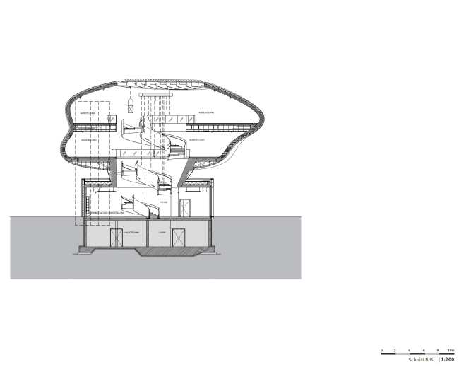
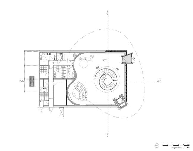
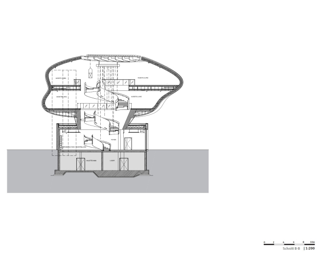
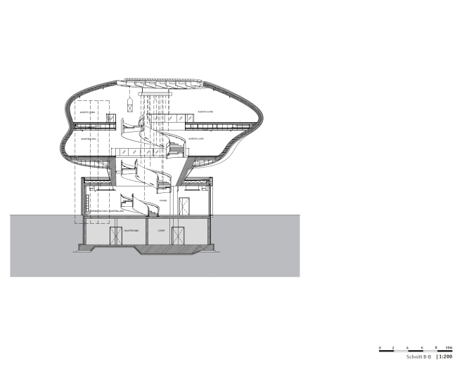
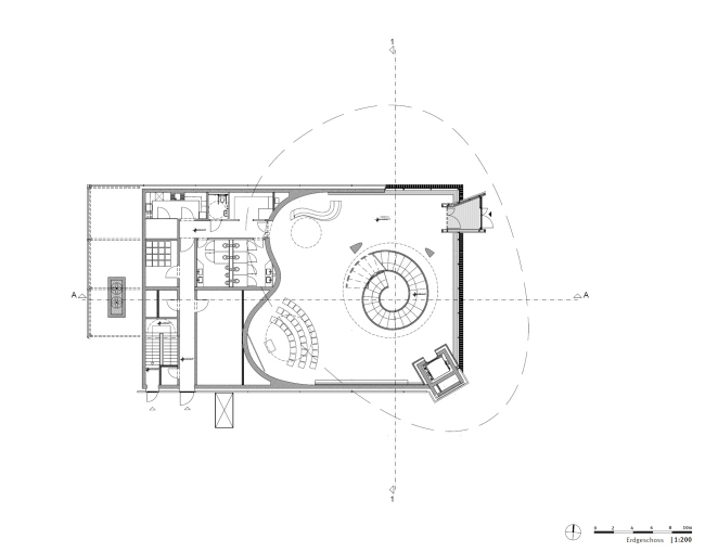
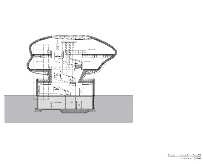
Paneum (от латинского panis, хлеб) позиционируется как «кабинет редкостей» в составе промышленного кампуса Backaldrin в австрийском городе Астен. Это одновременно пространство для мероприятий – им отдана бетонная «коробка» основания – и музей, помещенный в сложный объем из дерева, обшитый нержавеющей сталью. Кажется, что из «базы» постройки поднимается шапка теста – или пышного хлеба, не поместившегося в форму для выпечки.
 
Посетительский центр Paneum © Markus Pillhofer
Посетительский центр Paneum © Markus Pillhofer
Посетительский центр Paneum © Markus Pillhofer
Посетительский центр Paneum © Markus Pillhofer
Посетительский центр Paneum © Markus Pillhofer
Посетительский центр Paneum © Markus Pillhofer
Посетительский центр Paneum © Markus Pillhofer
Посетительский центр Paneum © Markus Pillhofer
Посетительский центр Paneum © Markus Pillhofer
Посетительский центр Paneum © Markus Pillhofer
Посетительский центр Paneum © Markus Pillhofer
Посетительский центр Paneum © Markus Pillhofer
Посетительский центр Paneum © Markus Pillhofer
Посетительский центр Paneum © Markus Pillhofer
Посетительский центр Paneum © Markus Pillhofer
Посетительский центр Paneum © Markus Pillhofer
Посетительский центр Paneum © Markus Pillhofer
Посетительский центр Paneum © Markus Pillhofer

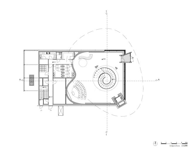
В базе вестибюль и прочие пространства способны принять воркшопы или банкеты на 120 человек. В музей ведет винтовая лестница, над которой на тросиках подвешены небольшие экспонаты: эффектная подача призвана напоминать о пышных барочных «комнатах чудес» (Wunderkammer), которые устраивали у себя знатные любители редкостей.
 
Посетительский центр Paneum © Markus Pillhofer
Посетительский центр Paneum © Markus Pillhofer
Посетительский центр Paneum © Markus Pillhofer
Посетительский центр Paneum © Markus Pillhofer
Посетительский центр Paneum © Markus Pillhofer
Посетительский центр Paneum © Markus Pillhofer
Посетительский центр Paneum © Markus Pillhofer
Посетительский центр Paneum © Markus Pillhofer
Посетительский центр Paneum © Markus Pillhofer
Посетительский центр Paneum © Markus Pillhofer

Интерьер верхней части демонстрирует деревянную основу постройки – кольца из перекрестно-клееной древесины. Сложная форма здания была реализована с помощью станков с компьютерным управлением. Экспонаты разных эпох, относящиеся к теме хлеба, размещены на стенах, в витринах и на столиках, которые вписаны в архитектуру. Зона выставки получила искусственное освещение, а над лестницей устроено окно в перекрытиях.
Посетительский центр Paneum © Markus Pillhofer
Посетительский центр Paneum © Markus Pillhofer
Посетительский центр Paneum © Markus Pillhofer
Посетительский центр Paneum © Markus Pillhofer
Посетительский центр Paneum © Markus Pillhofer
Посетительский центр Paneum © Markus Pillhofer
Посетительский центр Paneum © Markus Pillhofer
Посетительский центр Paneum © Markus Pillhofer
Посетительский центр Paneum © Markus Pillhofer
Посетительский центр Paneum © Markus Pillhofer
Посетительский центр Paneum © Markus Pillhofer
Посетительский центр Paneum © Markus Pillhofer
Посетительский центр Paneum © Markus Pillhofer
Посетительский центр Paneum © Markus Pillhofer
Посетительский центр Paneum © Markus Pillhofer
Посетительский центр Paneum © Markus Pillhofer
Посетительский центр Paneum © Markus Pillhofer
Посетительский центр Paneum © Markus Pillhofer
Посетительский центр Paneum © Markus Pillhofer
Посетительский центр Paneum © Markus Pillhofer
Посетительский центр Paneum © Markus Pillhofer
Посетительский центр Paneum © Markus Pillhofer
Посетительский центр Paneum © Markus Pillhofer
Посетительский центр Paneum © Markus Pillhofer
Посетительский центр Paneum © Markus Pillhofer
Посетительский центр Paneum © Markus Pillhofer
Посетительский центр Paneum © Markus Pillhofer
Посетительский центр Paneum © Markus Pillhofer
Посетительский центр Paneum © Markus Pillhofer
Посетительский центр Paneum © Markus Pillhofer
Посетительский центр Paneum © Markus Pillhofer
Посетительский центр Paneum © Markus Pillhofer
Посетительский центр Paneum © Coop Himmelb(l)au
Посетительский центр Paneum © Coop Himmelb(l)au
Посетительский центр Paneum © Coop Himmelb(l)au
Посетительский центр Paneum © Coop Himmelb(l)au
Посетительский центр Paneum © Coop Himmelb(l)au
Посетительский центр Paneum © Coop Himmelb(l)au
Посетительский центр Paneum © Coop Himmelb(l)au
Посетительский центр Paneum © Coop Himmelb(l)au
Посетительский центр Paneum © Coop Himmelb(l)au
Посетительский центр Paneum © Coop Himmelb(l)au
Посетительский центр Paneum © Coop Himmelb(l)au
Посетительский центр Paneum © Coop Himmelb(l)au
Посетительский центр Paneum © Coop Himmelb(l)au
Посетительский центр Paneum © Coop Himmelb(l)au
Посетительский центр Paneum © Coop Himmelb(l)au
Посетительский центр Paneum © Coop Himmelb(l)au