Размещено на портале Архи.ру (www.archi.ru)

10.11.2017

Имени Макса Вебера

Алина Измайлова
Объект:
Здание лаборатории имени Макса Вебера
Адрес:
Франция, None, Нантер.
Мастерская:
Atelier Pascal Gontier

Лаборатория при Университете Париж X — Нантер получила новое пятиэтажное здание, экологичное и готовое к будущим трансформациям. Все его конструктивные элементы выполнены из дерева, в том числе лестничные пролёты и шахты лифтов. Авторы проекта — парижское бюро Atelier Pascal Gontier.

Здание лаборатории социально-гуманитарных наук, получившее имя социолога Макса Вебера, находится на территории обширного кампуса Университета Париж X – Нантер. Большинство из построек кампуса возведены из металла и бетона и при желании могут служить иллюстрацией истории французской архитектуры с 1960-х по наши дни.

Здание имени Макса Вебера, Университет Париж X – Нантер © Schnepp Renou
Здание имени Макса Вебера, Университет Париж X – Нантер © Schnepp Renou

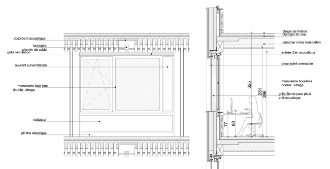
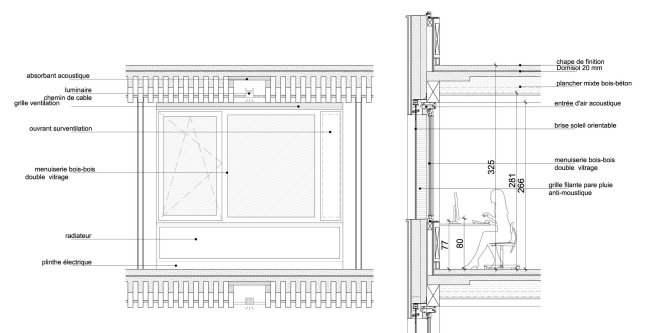
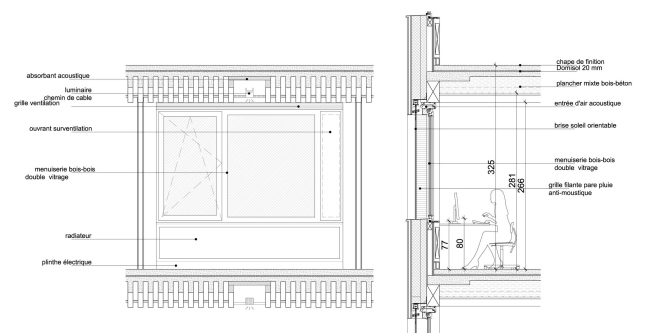
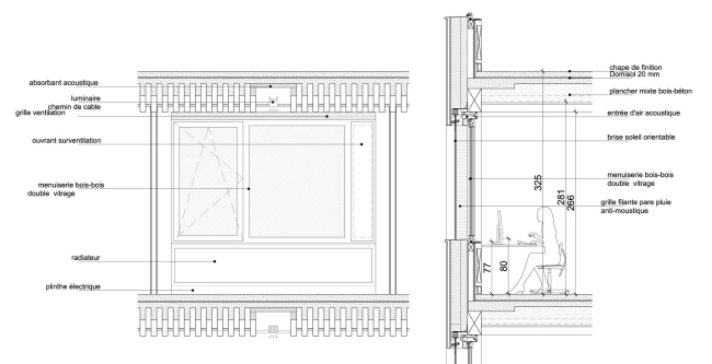
От окружающих зданий лаборатория Макса Вебера отличается не только внешне – простотой объёма, – но и «энергосберегающим содержимым»: лаборатория построена практически полностью из дерева, оснащена системой пассивной вентиляции, которая работает и в тёплое, и в холодное время года, а ключевым источником освещения служат большие окна.
Здание имени Макса Вебера, Университет Париж X – Нантер © Schnepp Renou
Здание имени Макса Вебера, Университет Париж X – Нантер © Schnepp Renou

Оригинальную систему вентиляции хорошо видно даже с земли: на крыше стоят 25 «скульптурных» алюминиевых дымоходов высотой 3,6 метров, которые обеспечивают отток воздуха.
Здание имени Макса Вебера, Университет Париж X – Нантер © Schnepp Renou
Здание имени Макса Вебера, Университет Париж X – Нантер © Schnepp Renou
Здание имени Макса Вебера, Университет Париж X – Нантер © Schnepp Renou
Здание имени Макса Вебера, Университет Париж X – Нантер © Schnepp Renou

Архитекторы Atelier Pascal Gontie выбрали дерево, исходя в первую очередь из экологических соображений. Древесина – материал возобновляемый, годится для вторичной переработки, а кроме того – снижает углеродный след. В течение всего жизненного цикла дерево поглощает углерод, который затем, при использовании растения в качестве стройматериала, «запирается» в постройке.
Здание имени Макса Вебера, Университет Париж X – Нантер © Hervé Abbadie
Здание имени Макса Вебера, Университет Париж X – Нантер © Hervé Abbadie
Здание имени Макса Вебера, Университет Париж X – Нантер © Schnepp Renou
Здание имени Макса Вебера, Университет Париж X – Нантер © Schnepp Renou

Пятиэтажное здание площадью 5000 м2 имеет деревянные конструктивные элементы; шахты лифтов и лестничные пролёты выполнены из многослойной клеёной древесины.
Здание имени Макса Вебера, Университет Париж X – Нантер © Hervé Abbadie
Здание имени Макса Вебера, Университет Париж X – Нантер © Hervé Abbadie
Здание имени Макса Вебера, Университет Париж X – Нантер ©  Schnepp Renou
Здание имени Макса Вебера, Университет Париж X – Нантер © Schnepp Renou

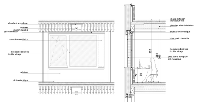
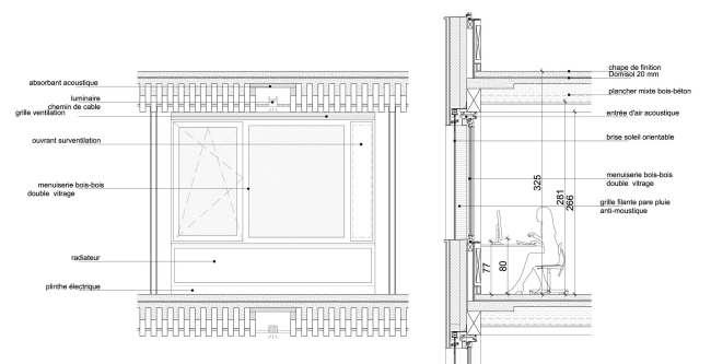
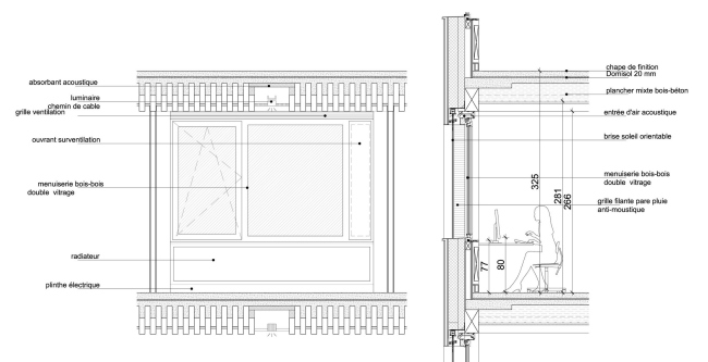
Внутреннее пространство исследовательской лаборатории имеет гибкую структуру. Ряды офисов составлены из коробчатых несущих панелей Kerto Ripa, предварительно собранных на заводе и потом доставленных на площадку. Такие панели позволяют в дальнейшем достаточно легко трансформировать и перепрофилировать помещения. В зависимости от потребностей можно сделать большую или маленькую комнату, конечная площадь ограничена только «шагом» 16м2 – именно столько места занимает одна «коробка».
Здание имени Макса Вебера, Университет Париж X – Нантер © Hervé Abbadie
Здание имени Макса Вебера, Университет Париж X – Нантер © Hervé Abbadie

Для того, чтобы провести в здании инженерные сети и освещение, архитекторам пришлось оставить на потолке 30-сантиметровые карманы, которые расположены каждые 3,5 метра.
Здание имени Макса Вебера, Университет Париж X – Нантер ©  Schnepp Renou
Здание имени Макса Вебера, Университет Париж X – Нантер © Schnepp Renou
Здание имени Макса Вебера, Университет Париж X – Нантер © Hervé Abbadie
Здание имени Макса Вебера, Университет Париж X – Нантер © Hervé Abbadie
Здание имени Макса Вебера, Университет Париж X – Нантер © Hervé Abbadie
Здание имени Макса Вебера, Университет Париж X – Нантер © Hervé Abbadie
Здание имени Макса Вебера, Университет Париж X – Нантер © Schnepp Renou
Здание имени Макса Вебера, Университет Париж X – Нантер © Schnepp Renou
Здание имени Макса Вебера, Университет Париж X – Нантер © Schnepp Renou
Здание имени Макса Вебера, Университет Париж X – Нантер © Schnepp Renou
Здание имени Макса Вебера, Университет Париж X – Нантер © Schnepp Renou
Здание имени Макса Вебера, Университет Париж X – Нантер © Schnepp Renou
Здание имени Макса Вебера, Университет Париж X – Нантер © Schnepp Renou
Здание имени Макса Вебера, Университет Париж X – Нантер © Schnepp Renou
Здание имени Макса Вебера, Университет Париж X – Нантер © Schnepp Renou
Здание имени Макса Вебера, Университет Париж X – Нантер © Schnepp Renou
Здание имени Макса Вебера, Университет Париж X – Нантер © Atelier Pascal Gontier
Здание имени Макса Вебера, Университет Париж X – Нантер © Atelier Pascal Gontier
Здание имени Макса Вебера, Университет Париж X – Нантер © Atelier Pascal Gontier
Здание имени Макса Вебера, Университет Париж X – Нантер © Atelier Pascal Gontier
Здание имени Макса Вебера, Университет Париж X – Нантер © Atelier Pascal Gontier
Здание имени Макса Вебера, Университет Париж X – Нантер © Atelier Pascal Gontier
Здание имени Макса Вебера, Университет Париж X – Нантер © Atelier Pascal Gontier
Здание имени Макса Вебера, Университет Париж X – Нантер © Atelier Pascal Gontier
Здание имени Макса Вебера, Университет Париж X – Нантер © Atelier Pascal Gontier
Здание имени Макса Вебера, Университет Париж X – Нантер © Atelier Pascal Gontier