Размещено на портале Архи.ру (www.archi.ru)

15.11.2017

МАРХИ: 82 квартал Хорошево-Мневники

Проекты группы студентов МАРХИ для реального участка Концерна КРОСТ, связанного с программной реновации.

В рамках своего дипломного проекта студенты 5 курса МАРХИ провели комплексный анализ территории 82 квартала Хорошево-Мневники в Москве, предложили 4 концепции жилых кварталов и различные модели развития территории, а также разра­ботали жилые многофункциональные комплексы.

82 квартал Хорошево-Мневники. МАРХИ, 2017
82 квартал Хорошево-Мневники. МАРХИ, 2017

Благодаря сотрудничеству с Концерном КРОСТ студенты получили возможность рабо­тать над реальным участком в Москве, планируемым под застройку. Используя исходную информацию и требования ТЗ, предоставленные КРОСТом, студенты предложили свое видение развития территории. В ходе исследования у участников была возможность консультиро­ваться со специалистами, проектирующими на этой территории, а в июне 2017 года состоялась финальная защита выполненных работ.

Главными консультантами в проекте выступили эксперты Института Развития Территорий TDI в том числе его управляющий партнер Петр Кудрявцев.

Буклет с презентацией всех работ можно пролистать здесь.
Буклет «82 квартал Хорошево-Мневники». МАРХИ, 2017
Буклет «82 квартал Хорошево-Мневники». МАРХИ, 2017
Буклет «82 квартал Хорошево-Мневники». МАРХИ, 2017
Буклет «82 квартал Хорошево-Мневники». МАРХИ, 2017
Реновация. МАРХИ, 2017
Реновация. МАРХИ, 2017
82 квартал Хорошево-Мневники. МАРХИ, 2017
82 квартал Хорошево-Мневники. МАРХИ, 2017
Хорошево-Мневники. Положение в Москве. МАРХИ, 2017
Хорошево-Мневники. Положение в Москве. МАРХИ, 2017
Транспортное положение. МАРХИ, 2017
Транспортное положение. МАРХИ, 2017
Размеры участка. Сравнение. МАРХИ, 2017
Размеры участка. Сравнение. МАРХИ, 2017
Фотофиксация. МАРХИ, 2017
Фотофиксация. МАРХИ, 2017
***

Методология
Этап предпроектного исследования территории послужил от­правной точкой для создания концепций развития. Участники проекта проанализировали участок в контексте Москвы, сформировали образ района, исследовали его отличительные черты и особенности.

Комплексный градостроительный анализ участка в контексте ближайшего окружения позволил сформулировать преимущества и недостатки территории. Команда анализировала существующую застройку, жилой фонд, функциональную насыщенность, социальную обеспеченность, транспортное сообщение и пешеходные маршруты. Участники также составили представление о жителях, их образе жизни, досуге и возможных местах приложения труда.

Благодаря проведенному анализу студенты сформулировали новый запрос на необходимые качества современной жилой среды. Также анализ позволил выявить слабые и сильные стороны терри­тории, основные проблемы, варианты решения которых разрабатыва­лись студентами в четырех концепциях генпланов.

Социальное проектирование стало одним из самых важных этапов проекта: были разработаны четыре социальные модели:
  • Городское социально-коммуникативное пространство
  • Внутриквартальное коммуникативно-рекреационное пространство
  • Пространство соседских сообществ в жилом комплексе
  • Пространство межпоколенческих связей
Калейдоскоп фасадов. МАРХИ, 2017
Калейдоскоп фасадов. МАРХИ, 2017
Мощение как пятый фасад. МАРХИ, 2017
Мощение как пятый фасад. МАРХИ, 2017
Анализ застройки. МАРХИ, 2017
Анализ застройки. МАРХИ, 2017
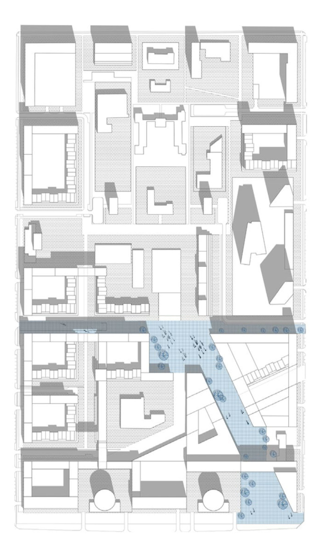
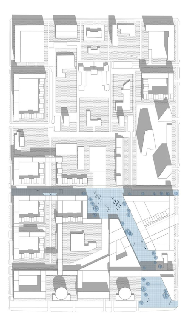
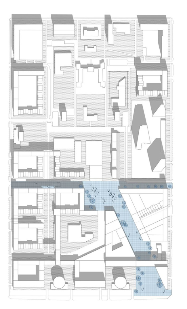
Транспорт. МАРХИ, 2017
Транспорт. МАРХИ, 2017

О проекте
Мария Троян,
преподаватель группы:
«Это не первый проект нашей группы с Концерном КРОСТ. Мы очень ценим совместные проекты на реальных площадках. Для нас особенно важно в этом проекте было посмотреть на выданную территорию в разных масштабах: как на часть территорий реновации Москвы, как часть района и как отдельный участок под будущий многофункциональный комплекс. Этот тот редкий случай, когда архитектор может разработать территорию комплексно, а значит, получить более глубокий и подробный анализ.

Каждая из предложенных концепций развития закладывает опре­деленную модель социального проектирования. Молодые архитекторы много внимания уделили поиску пространственных решений вовлечения разных социальных групп жителей в активную жизнь квартала, созданию платформы для формирования местных сообществ и максимальному разнообразию проектируемой среды. Каждый проект несет в себе не просто пространственную идею, но и социальный посыл преобразования жизни будущего сообщества».
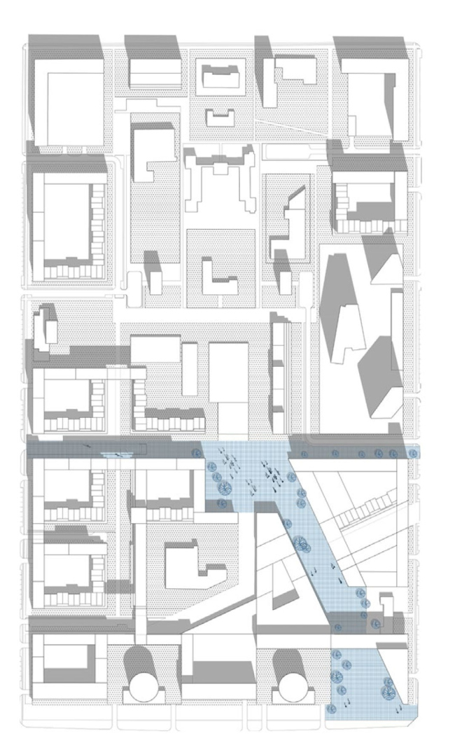
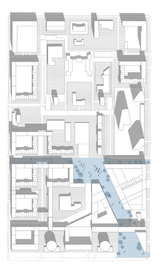
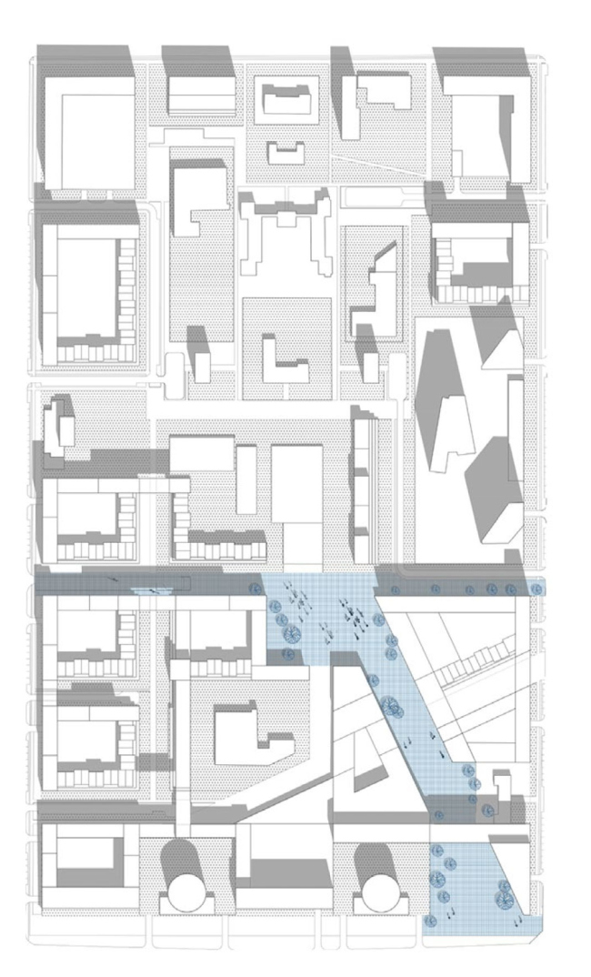
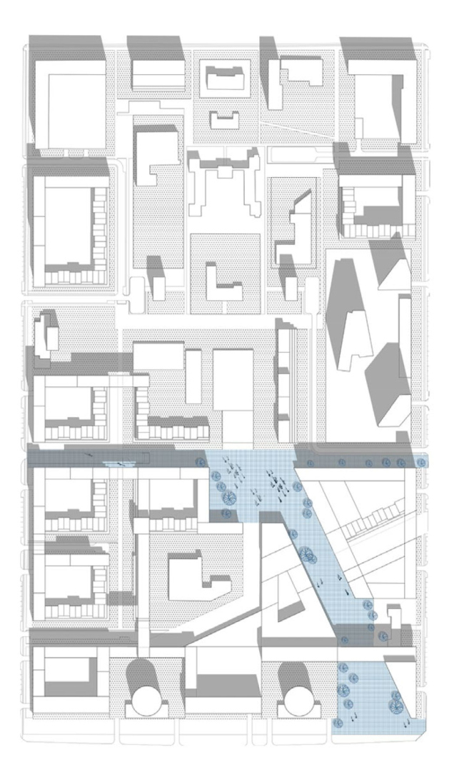
Общественный транспорт и пешеходные пути. МАРХИ, 2017
Общественный транспорт и пешеходные пути. МАРХИ, 2017
Озеленение и проницаемость. МАРХИ, 2017
Озеленение и проницаемость. МАРХИ, 2017
Озеленение и проницаемость. МАРХИ, 2017
Озеленение и проницаемость. МАРХИ, 2017
Инфраструктура. МАРХИ, 2017
Инфраструктура. МАРХИ, 2017
Инфраструктура после сноса пятиэтажек. МАРХИ, 2017
Инфраструктура после сноса пятиэтажек. МАРХИ, 2017
Социальное обеспечение. Образование. МАРХИ, 2017
Социальное обеспечение. Образование. МАРХИ, 2017
Социальное обеспечение. Здравоохранение. МАРХИ, 2017
Социальное обеспечение. Здравоохранение. МАРХИ, 2017
Портрет коренного жителя. МАРХИ, 2017
Портрет коренного жителя. МАРХИ, 2017
Сравнение с российским и зарубежным опытом. МАРХИ, 2017
Сравнение с российским и зарубежным опытом. МАРХИ, 2017
Существующая и предполагаемая застройка в сравнении с регулярными сетками. МАРХИ, 2017
Существующая и предполагаемая застройка в сравнении с регулярными сетками. МАРХИ, 2017
Сравнение с российским и зарубежным опытом. МАРХИ, 2017
Сравнение с российским и зарубежным опытом. МАРХИ, 2017
Варианты развития территории. МАРХИ, 2017
Варианты развития территории. МАРХИ, 2017

Студенты о проекте
Елизавета Райгородская:
«Совместная работа над исследованиями давалась особенно тяжело. У нас отсутствовал какой либо опыт работы в команде и сложно было договорится даже о сти­листике подачи. Но мы смогли! Стали прислушиваться друг к другу, каждый вносил что-то свое, и потом это вылилось в качественное исследование, которое один человек бы сделать не смог или делал бы очень долго. Результат того стоил!».

Александр Плутняков:
«Спустя некоторое время в голове остаются лишь самые главные впечатления, характеризующие то или иное событие. Я не могу сконцентрироваться на каком-то определенном моменте работы, но в целом работа была очень веселой, интенсивной и увлекательной. Она оставила только радость и гордость за полученный результат».

Дарья Кармазина:
«А мне приятно вспоминать день, когда мы утверждали наши градостроительные концепции перед Петром Ку­дрявцевым. Мы все оделись в бело-черное и по очереди рас­сказывали о наших районах. Готовых идей для самих мфжк еще ни у кого не было, но все были в предвкушении».

Ксения Строй:
«Очень запомнилась поездка в КРОСТ, где мы презенто­вали наш градостроительный анализ архитекторам. Они помогли посмотреть на исследование с другой стороны и задали нужные вопросы, которые помогли углубиться в тему и более профессионально изучить представленную ситуацию».
Концепция GRID. МАРХИ, 2017
Концепция GRID. МАРХИ, 2017
Концепция GRID. МАРХИ, 2017
Концепция GRID. МАРХИ, 2017
Концепция GRID. Фотография макета. МАРХИ, 2017
Концепция GRID. Фотография макета. МАРХИ, 2017
Концепция Линия жизни. МАРХИ, 2017
Концепция Линия жизни. МАРХИ, 2017
Концепция Линия жизни. МАРХИ, 2017
Концепция Линия жизни. МАРХИ, 2017
Концепция Линия жизни. Фотография макета. МАРХИ, 2017
Концепция Линия жизни. Фотография макета. МАРХИ, 2017
Концепция GARDEN INSIDE. МАРХИ, 2017
Концепция GARDEN INSIDE. МАРХИ, 2017
Концепция GARDEN INSIDE. МАРХИ, 2017
Концепция GARDEN INSIDE. МАРХИ, 2017
Концепция GARDEN INSIDE. Фотография макета. МАРХИ, 2017
Концепция GARDEN INSIDE. Фотография макета. МАРХИ, 2017
Концепция WAY. МАРХИ, 2017
Концепция WAY. МАРХИ, 2017
Концепция WAY. . МАРХИ, 2017
Концепция WAY. . МАРХИ, 2017
Концепция WAY. Фотография макета. МАРХИ, 2017
Концепция WAY. Фотография макета. МАРХИ, 2017
Проект многофункционального комплекса Ксении Ашитко. МАРХИ, 2017
Проект многофункционального комплекса Ксении Ашитко. МАРХИ, 2017
***

Проекты многофункциональных комплексов студентов МАРХИ

Руководители группы: Алексей Воронцов, Татьяна Набокова, Мария Троян
Руководители проекта: Петр Кудрявцев, Мария Троян

 
Ксения Ашитко
Проект многофункционального комплекса Ксении Ашитко. МАРХИ, 2017
Проект многофункционального комплекса Ксении Ашитко. МАРХИ, 2017

Жилой комплекс состоит из корпуса с квартирами для двух поколений, корпуса коммерческого жилья, бизнес-структуры «Городские фермы», детского образовательного центра и гаража подиумного типа, на крыше которого расположен жилой двор. «Городские фермы» – актуальный формат, поддерживающий идею эко-квартала. В них круглый год выращиваются овощи и зелень, которые продаются в магазинах на первом этаже и поставляют в расположенные здесь же эко-кафе. На крыше гаража жилой двор, доступный только жителям комплекса. Здесь расположены огород и игровые зоны для детей.
Проект многофункционального комплекса Вероники Давиташвили. МАРХИ, 2017
Проект многофункционального комплекса Вероники Давиташвили. МАРХИ, 2017


Вероника Давиташвили
Проект многофункционального комплекса Вероники Давиташвили. МАРХИ, 2017
Проект многофункционального комплекса Вероники Давиташвили. МАРХИ, 2017

Основная проблема мегаполисов это плохая экологическая обстановка. В современном мире в поисках комфортной среды люди вынуждены бежать за город.

Однако современный город может и должен служить этой комфортной средой. Данный проект – это попытка дать людям возможность каждый день наслаждаться природой, ощущением свободы и защищенности, пользуясь при этом всеми преимуществами городской жизни. Мой проект – это система жилых корпусов, функционирующих по принципу коливинга, расположенная в системе искусственных холмов, покрывающих общественную инфраструктуру.
Проект многофункционального комплекса Дарьи Кармазиной. МАРХИ, 2017
Проект многофункционального комплекса Дарьи Кармазиной. МАРХИ, 2017


Дарья Кармазина
Проект многофункционального комплекса Дарьи Кармазиной. МАРХИ, 2017
Проект многофункционального комплекса Дарьи Кармазиной. МАРХИ, 2017

Проект комплекса развивает концепцию эко-квартала и социальную модель «Городское социально-коммуникативное пространство». В первую очередь это выразилось в объемно-пространственной композиции: комплекс решен как «городская гостиная». В нем предусмотрена система многофункциональных общественных пространств, формирующих сообщества жителей района и отвечающих задачам рекреационной зоны в ткани жилой застройки. Комплекс состоит из универсального выставочного пространства, офисной зоны, кафе, антикафе, детского центра и жилых корпусов.
Проект многофункционального комплекса Виктории Матрюк. МАРХИ, 2017
Проект многофункционального комплекса Виктории Матрюк. МАРХИ, 2017


Виктория Матрюк
Проект многофункционального комплекса Виктории Матрюк. МАРХИ, 2017
Проект многофункционального комплекса Виктории Матрюк. МАРХИ, 2017

Расположенный на пересечении проспекта Маршала Жукова и бульвара Генерала Карбышева многофункциональный комплекс несет функцию нового городского социо-коммуникативного пространства, как 82 квартала, так и всего района Хорошево-Мневники. В его состав входит развитый общественно-культурный центр с кино-театральным залом на 400 мест, лекционным залами, библиотекой и мастерскими. В его состав входит развитый общественно-культурный центр с кинотеатральным залом на 400 мест, лекционным залами, библиотекой и мастерскими.

Сооружение имеет сложное пластическое решение для создания яркого и запоминающегося образа. Однако при этом его пространственная сложность сочетается с разнообразием насыщающих его функций.
Проект многофункционального комплекса Марии Николаевой. МАРХИ, 2017
Проект многофункционального комплекса Марии Николаевой. МАРХИ, 2017


Мария Николаева
Проект многофункционального комплекса Марии Николаевой. МАРХИ, 2017
Проект многофункционального комплекса Марии Николаевой. МАРХИ, 2017

Композиционной задачей было создание акцента в начале нового пешеходного бульвара, связывающего жилые кварталы района. Объемная композиция комплекса объединяет высотный объем жилого здания с протяженным горизонтальным подиумом многофункционального назначения.

Разрабатываемая социальная модель – «городское социально-коммуникативное пространство».

Комплекс состоит из жилой 24-этажной башни, бизнес-центра с жильем при офисах, библиотеки, гаража и общественного городского пространства, включенного в состав многофункциональной структуры.
Проект многофункционального комплекса Александра Плутякова. МАРХИ, 2017
Проект многофункционального комплекса Александра Плутякова. МАРХИ, 2017


Александр Плутяков
Проект многофункционального комплекса Александра Плутякова. МАРХИ, 2017
Проект многофункционального комплекса Александра Плутякова. МАРХИ, 2017

Многофункциональный комплекс запроектирован на пересечении пешеходных путей. Он состоит из 3 крупных блоков – коммерческое жилье, HUB и Гостиница. Также в состав комплекса включены: фитнес-центр, магазины и ресторан. Основные потребители коммерческого жилья в этом квартале – молодые люди. Молодые люди стараются быть максимально независимыми и пытаются создать что-то новое. Главная их цель цель – создание собственного бизнеса. HUB – это инновационная информационно-деловая среда, объединяющая рабочие, общественные и жилые пространства в одном объеме.
Проект многофункционального комплекса Елизаветы Райгородской. МАРХИ, 2017
Проект многофункционального комплекса Елизаветы Райгородской. МАРХИ, 2017


Елизавета Райгородская
Проект многофункционального комплекса Елизаветы Райгородской. МАРХИ, 2017
Проект многофункционального комплекса Елизаветы Райгородской. МАРХИ, 2017

Жизнь современного человека непосредственно связана с работой. Предоставить возможность жить рядом с работой и вести свой бизнес, не выходя из дома – одна из поставленных задач. Также проект стремится создать комфортные пространства в условиях плотной застройки и в соседстве с автомобильной трассой. Таким образом, комплекс состоит из пяти объемов: офисной структуры, апартаментов, отеля, общественного пространства и коммерческого жилья, и соединяющего их зеленого склона, на котором находится общедоступный двор, искусственно приподнятый над уровнем земли.
Проект многофункционального комплекса Ксении Строй. МАРХИ, 2017
Проект многофункционального комплекса Ксении Строй. МАРХИ, 2017


Ксения Строй
Проект многофункционального комплекса Ксении Строй. МАРХИ, 2017
Проект многофункционального комплекса Ксении Строй. МАРХИ, 2017

Идея проекта: современная молодежь – это новая группа потребителей на рынке жилья. Доступный для молодежи формат – арендное жилье. Социальная модель проекта – «внутриквартальное коммуникативно-рекреационное пространство» и «создание соседских сообществ в доме». Проектируемый комплекс включает три типа арендного жилья – для молодых семей, арендное жилье с офисами и кохаузинг. В состав комплекса также включены библиотека, предприятия общественного питания, фитнес-центр, продуктовый магазин и предприятия общественного обслуживания. Принципиальны для молодежного комплекса его открытость, территория трактуется как развитие пешеходного бульвара и как внутриквартальный парк, доступный всем жителям.
Проект многофункционального комплекса Татьяны Черкасовой. МАРХИ, 2017
Проект многофункционального комплекса Татьяны Черкасовой. МАРХИ, 2017


Татьяна Черкасова
Проект многофункционального комплекса Татьяны Черкасовой. МАРХИ, 2017
Проект многофункционального комплекса Татьяны Черкасовой. МАРХИ, 2017

В комплексе объединены дом с квартирами на два поколения, жилой дом для пожилых, арендное жилье для семейной молодежи с детьми и несемейной молодежи, центр раннего развития детей и учреждения общественного обслуживания. Основной целью было создание функционально-пространственной структуры, создающей базу для взаимодействия жителей всех возрастов. В проекте предусмотрен пешеходный молл связывающий корпус коммерческого жилья, корпус для пожилых, детский центр и жилье для семейной молодежи. Молл представляет собой сочетание горизонтальной коммуникации с гостиными, открытыми террасами и оздоровительными зонами комплекса. Вторым объединяющим элементом является внутренний озелененный двор, доступный только для жителей комплекса. Мой МФЖК – дом который станет площадкой для взаимодействия нескольких поколений, местом призывающим детей, молодежь, пожилых учавствовать в общей деятельности, вдохновлять друг друга или просто помогать нуждающимся людям в уходе, так что бы они не были оторваны от городской жизни.