Размещено на портале Архи.ру (www.archi.ru)

07.11.2017

Эффективное сжатие

Нина Фролова
Объект:
Административное здание на улице Рейнстрат, 8
Адрес:
Нидерланды, None, Гаага.
Мастерская:
OMA

Здание для четырех госучреждений на улице Рейнстрат в Гааге после реконструкции по проекту OMA сократило свою площадь, но стало более эффективным.

Административное здание на улице Рейнстрат, 8. Фото: Delfino Sisto Legnani & Marco Cappelletti © OMA
Административное здание на улице Рейнстрат, 8. Фото: Delfino Sisto Legnani & Marco Cappelletti © OMA


Административный корпус рядом с центральным вокзалом был построен в 1992 по проекту Яна Хогстада, но в начале XXI века он уже не соответствовал стандартам рабочего пространства и экологичности. Кроме того, экономический кризис заставил правительство Нидерландов пересмотреть свой «портфель недвижимости» с целью повысить его эффективность.
 
Административное здание на улице Рейнстрат, 8, Гаага. Проект бюро OMA. Фотография ©   Delfino Sisto Legnani & Marco Cappelletti
Административное здание на улице Рейнстрат, 8, Гаага. Проект бюро OMA. Фотография © Delfino Sisto Legnani & Marco Cappelletti


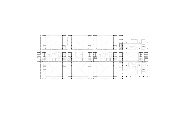
В соответствии с этими обстоятельствами, площадь здания уменьшилась со 180 000 м2 до 85 000 м2; 20% здания было снесено, однако 99,7% материала от демонтированных частей были использованы при новом строительстве. За реконструкцию отвечало частно-государственное партнерство PoortCentraal, куда вошли OMA, строительная фирма BAM и сервисная компания ISS.
 
Административное здание на улице Рейнстрат, 8. Фото: Delfino Sisto Legnani & Marco Cappelletti © OMA
Административное здание на улице Рейнстрат, 8. Фото: Delfino Sisto Legnani & Marco Cappelletti © OMA


На Рейнстрат, 8 разместились два министерства – иностранных дел и инфраструктуры и водного хозяйства, а также служба иммиграции и натурализации и центральное агентство принятия ищущих убежище. Конференц-залы предназначены для всех базирующихся в Гааге министерств. Вместимость постройки – 6000 чиновников и 4200 рабочих мест (3100 привычных столов со стульями + 2200 мест в переговорных и общественных зонах, где два места засчитываются как одно рабочее) – с учетом современной концепции «гибкого» их использования.
 
Административное здание на улице Рейнстрат, 8. Фото: Delfino Sisto Legnani & Marco Cappelletti © OMA
Административное здание на улице Рейнстрат, 8. Фото: Delfino Sisto Legnani & Marco Cappelletti © OMA


Шесть атриумов обеспечивают интерьер воздухом и светом и служат хранилищем теплого/холодного воздуха. Отходы перерабатываются в биогаз, на крыше установлены солнечные батареи, все лампы – светодиодные. С городом здание связал прозрачный фасад с тройным остеклением, который также обеспечил офисы естественным освещением; кроме того, проход под зданием превращен в площадь с магазинами и кафе.
 
Административное здание на улице Рейнстрат, 8. Фото: Delfino Sisto Legnani & Marco Cappelletti © OMA
Административное здание на улице Рейнстрат, 8. Фото: Delfino Sisto Legnani & Marco Cappelletti © OMA



Интерьеры оформлены OMA, произведения искусства для них архитекторы выбрали в архивах МИД. Специально для Рейнстрат, 8 создали арт-объекты художники Зоро Фейгл (главный атриум) и Тамар Франк (площадь).

Первоначальный архитектор здания Ян Хогстад также участвовал в проекте, командой OMA руководила партнер Элен ван Лон.
Административное здание на улице Рейнстрат, 8. Фото: Delfino Sisto Legnani & Marco Cappelletti © OMA
Административное здание на улице Рейнстрат, 8. Фото: Delfino Sisto Legnani & Marco Cappelletti © OMA
Административное здание на улице Рейнстрат, 8. Фото: Delfino Sisto Legnani & Marco Cappelletti © OMA
Административное здание на улице Рейнстрат, 8. Фото: Delfino Sisto Legnani & Marco Cappelletti © OMA
Административное здание на улице Рейнстрат, 8. Фото © Nick Guttridge, предоставлено OMA
Административное здание на улице Рейнстрат, 8. Фото © Nick Guttridge, предоставлено OMA
Административное здание на улице Рейнстрат, 8. Фото © Nick Guttridge, предоставлено OMA
Административное здание на улице Рейнстрат, 8. Фото © Nick Guttridge, предоставлено OMA
Административное здание на улице Рейнстрат, 8. Фото: Delfino Sisto Legnani & Marco Cappelletti © OMA
Административное здание на улице Рейнстрат, 8. Фото: Delfino Sisto Legnani & Marco Cappelletti © OMA
Административное здание на улице Рейнстрат, 8. Фото © Nick Guttridge, предоставлено OMA
Административное здание на улице Рейнстрат, 8. Фото © Nick Guttridge, предоставлено OMA
Административное здание на улице Рейнстрат, 8. Фото © Nick Guttridge, предоставлено OMA
Административное здание на улице Рейнстрат, 8. Фото © Nick Guttridge, предоставлено OMA
Административное здание на улице Рейнстрат, 8. Фото: Delfino Sisto Legnani & Marco Cappelletti © OMA
Административное здание на улице Рейнстрат, 8. Фото: Delfino Sisto Legnani & Marco Cappelletti © OMA
Административное здание на улице Рейнстрат, 8. Фото: Delfino Sisto Legnani & Marco Cappelletti © OMA
Административное здание на улице Рейнстрат, 8. Фото: Delfino Sisto Legnani & Marco Cappelletti © OMA
Административное здание на улице Рейнстрат, 8. Фото: Delfino Sisto Legnani & Marco Cappelletti © OMA
Административное здание на улице Рейнстрат, 8. Фото: Delfino Sisto Legnani & Marco Cappelletti © OMA
Административное здание на улице Рейнстрат, 8. Фото © Nick Guttridge, предоставлено OMA
Административное здание на улице Рейнстрат, 8. Фото © Nick Guttridge, предоставлено OMA
Административное здание на улице Рейнстрат, 8. Фото © Nick Guttridge, предоставлено OMA
Административное здание на улице Рейнстрат, 8. Фото © Nick Guttridge, предоставлено OMA
Административное здание на улице Рейнстрат, 8. Фото © Nick Guttridge, предоставлено OMA
Административное здание на улице Рейнстрат, 8. Фото © Nick Guttridge, предоставлено OMA
Административное здание на улице Рейнстрат, 8. Фото © Nick Guttridge, предоставлено OMA
Административное здание на улице Рейнстрат, 8. Фото © Nick Guttridge, предоставлено OMA
Административное здание на улице Рейнстрат, 8. Фото: Delfino Sisto Legnani & Marco Cappelletti © OMA
Административное здание на улице Рейнстрат, 8. Фото: Delfino Sisto Legnani & Marco Cappelletti © OMA
Административное здание на улице Рейнстрат, 8. Фото: Delfino Sisto Legnani & Marco Cappelletti © OMA
Административное здание на улице Рейнстрат, 8. Фото: Delfino Sisto Legnani & Marco Cappelletti © OMA
Административное здание на улице Рейнстрат, 8. Фото © Nick Guttridge, предоставлено OMA
Административное здание на улице Рейнстрат, 8. Фото © Nick Guttridge, предоставлено OMA
Административное здание на улице Рейнстрат, 8. Фото © Nick Guttridge, предоставлено OMA
Административное здание на улице Рейнстрат, 8. Фото © Nick Guttridge, предоставлено OMA
Административное здание на улице Рейнстрат, 8. Фото: Delfino Sisto Legnani & Marco Cappelletti © OMA
Административное здание на улице Рейнстрат, 8. Фото: Delfino Sisto Legnani & Marco Cappelletti © OMA
Административное здание на улице Рейнстрат, 8. Фото: Delfino Sisto Legnani & Marco Cappelletti © OMA
Административное здание на улице Рейнстрат, 8. Фото: Delfino Sisto Legnani & Marco Cappelletti © OMA
Административное здание на улице Рейнстрат, 8. Фото: Delfino Sisto Legnani & Marco Cappelletti © OMA
Административное здание на улице Рейнстрат, 8. Фото: Delfino Sisto Legnani & Marco Cappelletti © OMA
Административное здание на улице Рейнстрат, 8. Фото © Nick Guttridge, предоставлено OMA
Административное здание на улице Рейнстрат, 8. Фото © Nick Guttridge, предоставлено OMA
Административное здание на улице Рейнстрат, 8. Фото: Delfino Sisto Legnani & Marco Cappelletti © OMA
Административное здание на улице Рейнстрат, 8. Фото: Delfino Sisto Legnani & Marco Cappelletti © OMA
Административное здание на улице Рейнстрат, 8. Фото: Delfino Sisto Legnani & Marco Cappelletti © OMA
Административное здание на улице Рейнстрат, 8. Фото: Delfino Sisto Legnani & Marco Cappelletti © OMA
Административное здание на улице Рейнстрат, 8. Фото: Delfino Sisto Legnani & Marco Cappelletti © OMA
Административное здание на улице Рейнстрат, 8. Фото: Delfino Sisto Legnani & Marco Cappelletti © OMA
Административное здание на улице Рейнстрат, 8. Фото: Delfino Sisto Legnani & Marco Cappelletti © OMA
Административное здание на улице Рейнстрат, 8. Фото: Delfino Sisto Legnani & Marco Cappelletti © OMA
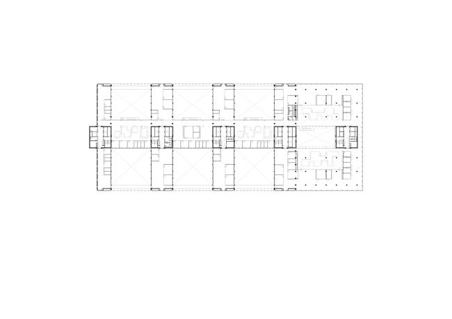
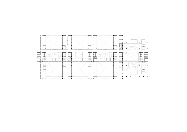
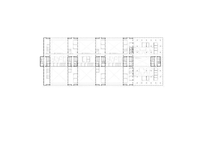
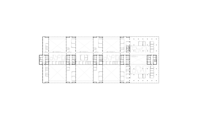
Административное здание на улице Рейнстрат, 8 © OMA
Административное здание на улице Рейнстрат, 8 © OMA
Административное здание на улице Рейнстрат, 8 © OMA
Административное здание на улице Рейнстрат, 8 © OMA
Административное здание на улице Рейнстрат, 8 © OMA
Административное здание на улице Рейнстрат, 8 © OMA
Административное здание на улице Рейнстрат, 8 © OMA
Административное здание на улице Рейнстрат, 8 © OMA
Административное здание на улице Рейнстрат, 8 © OMA
Административное здание на улице Рейнстрат, 8 © OMA
Административное здание на улице Рейнстрат, 8 © OMA
Административное здание на улице Рейнстрат, 8 © OMA
Административное здание на улице Рейнстрат, 8 © OMA
Административное здание на улице Рейнстрат, 8 © OMA
Административное здание на улице Рейнстрат, 8 © OMA
Административное здание на улице Рейнстрат, 8 © OMA
Административное здание на улице Рейнстрат, 8 © OMA
Административное здание на улице Рейнстрат, 8 © OMA
Административное здание на улице Рейнстрат, 8 © OMA
Административное здание на улице Рейнстрат, 8 © OMA
Административное здание на улице Рейнстрат, 8 © OMA
Административное здание на улице Рейнстрат, 8 © OMA
Административное здание на улице Рейнстрат, 8 © OMA
Административное здание на улице Рейнстрат, 8 © OMA
Административное здание на улице Рейнстрат, 8 © OMA
Административное здание на улице Рейнстрат, 8 © OMA
Административное здание на улице Рейнстрат, 8 © OMA
Административное здание на улице Рейнстрат, 8 © OMA
Административное здание на улице Рейнстрат, 8 © OMA
Административное здание на улице Рейнстрат, 8 © OMA
Административное здание на улице Рейнстрат, 8 © OMA
Административное здание на улице Рейнстрат, 8 © OMA