Размещено на портале Архи.ру (www.archi.ru)

02.11.2017

Летний стиль жизни

Объект:
Летний павильон дом в поселке «Родные просторы»
Адрес:
Россия, Саратов. поселок «Родные просторы»
Мастерская:
Spirin architects
Авторский коллектив:
Евгений Спирин, Марина Спирина

Летний павильон для дома в поселке «Родные просторы» близ Саратова по проекту Spirin architects.

Летний павильон. Общий вид. Фотография ©  Дмитрий Шведов
Летний павильон. Общий вид. Фотография © Дмитрий Шведов



Летний павильон площадью 320 м2 включает в себя зону столовой, бассейн, дворик с деревом.

Описание архитекторов:
«Скучная, однообразная типовая застройка коттеджного поселка, жаркое лето и бунтарская натура заказчика породили этот объект. Он вальяжно растянулся вдоль южной стороны небольшого участка площадью 15 соток, занятого основным домом, который оставил совсем немного места для маневра. Мы попытались выстроить систему микропространств, увязанную в единую иерархическую цепочку. Возник блок с вычлененными нишами, позволяющими основному дому дышать, а в объекте – заложить интересный сценарий для летней жизни.
Объект решен в мономатериале – керамограните, имитирующем брашированную доску, с разномасштабными, но одинаковыми по модулю пробивками, связывающим объект в единое целое.»
Летний павильон. Общий вид. Фотография ©  Дмитрий Шведов
Летний павильон. Общий вид. Фотография © Дмитрий Шведов
Летний павильон. Столовая зона. Фотография ©  Дмитрий Шведов
Летний павильон. Столовая зона. Фотография © Дмитрий Шведов
Летний павильон. Бассейн. Фотография ©  Дмитрий Шведов
Летний павильон. Бассейн. Фотография © Дмитрий Шведов
Летний павильон. Фрагмент. Фотография ©  Дмитрий Шведов
Летний павильон. Фрагмент. Фотография © Дмитрий Шведов
Летний павильон. Общий вид. Фотография ©  Дмитрий Шведов
Летний павильон. Общий вид. Фотография © Дмитрий Шведов
Летний павильон. Дворик. Фотография ©  Дмитрий Шведов
Летний павильон. Дворик. Фотография © Дмитрий Шведов
Летний павильон. Столовая зона. Фотография ©  Дмитрий Шведов
Летний павильон. Столовая зона. Фотография © Дмитрий Шведов
Летний павильон. Лестница. Фотография ©  Дмитрий Шведов
Летний павильон. Лестница. Фотография © Дмитрий Шведов
Летний павильон. Бассейн. Фотография ©  Дмитрий Шведов
Летний павильон. Бассейн. Фотография © Дмитрий Шведов
Летний павильон. Бассейн. Фотография ©  Дмитрий Шведов
Летний павильон. Бассейн. Фотография © Дмитрий Шведов
Летний павильон. Фрагмент. Фотография ©  Дмитрий Шведов
Летний павильон. Фрагмент. Фотография © Дмитрий Шведов
Летний павильон. Кухня. Фотография ©  Дмитрий Шведов
Летний павильон. Кухня. Фотография © Дмитрий Шведов
Летний павильон. Общий вид. Фотография ©  Дмитрий Шведов
Летний павильон. Общий вид. Фотография © Дмитрий Шведов
Летний павильон. Общий вид. Фотография ©  Дмитрий Шведов
Летний павильон. Общий вид. Фотография © Дмитрий Шведов
Летний павильон. Бассейн. Фотография ©  Дмитрий Шведов
Летний павильон. Бассейн. Фотография © Дмитрий Шведов
Летний павильон. Бассейн. Фотография ©  Дмитрий Шведов
Летний павильон. Бассейн. Фотография © Дмитрий Шведов
Летний павильон. Дворик. Фотография ©  Дмитрий Шведов
Летний павильон. Дворик. Фотография © Дмитрий Шведов
Летний павильон. Фрагмент. Лавка. Фотография ©  Дмитрий Шведов
Летний павильон. Фрагмент. Лавка. Фотография © Дмитрий Шведов
Летний павильон. Фрагмент. Лавка. Фотография ©  Дмитрий Шведов
Летний павильон. Фрагмент. Лавка. Фотография © Дмитрий Шведов
Летний павильон. Фрагмент. Фотография ©  Дмитрий Шведов
Летний павильон. Фрагмент. Фотография © Дмитрий Шведов
Летний павильон. Столовая зона. Фотография ©  Дмитрий Шведов
Летний павильон. Столовая зона. Фотография © Дмитрий Шведов
Летний павильон. Фрагмент. Фотография ©  Дмитрий Шведов
Летний павильон. Фрагмент. Фотография © Дмитрий Шведов
Летний павильон. Фрагмент. Фотография ©  Дмитрий Шведов
Летний павильон. Фрагмент. Фотография © Дмитрий Шведов
Летний павильон. Фрагмент. Фотография ©  Дмитрий Шведов
Летний павильон. Фрагмент. Фотография © Дмитрий Шведов
Летний павильон. Фрагмент. Фотография ©  Дмитрий Шведов
Летний павильон. Фрагмент. Фотография © Дмитрий Шведов
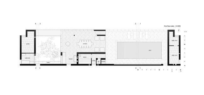
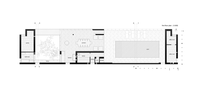
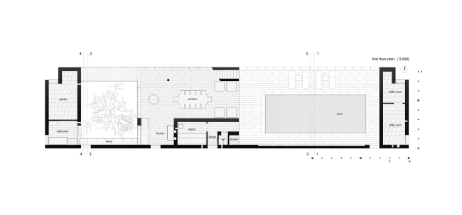
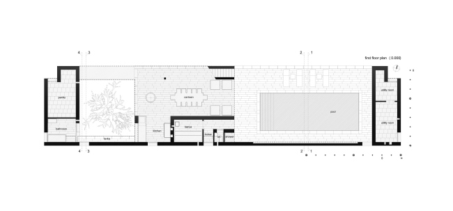
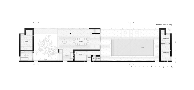
Летний павильон. План © Spirin architects
Летний павильон. План © Spirin architects
Летний павильон. Схемы фасадов. Разрез © Spirin architects
Летний павильон. Схемы фасадов. Разрез © Spirin architects
Летний павильон. Схема фасада © Spirin architects
Летний павильон. Схема фасада © Spirin architects
Летний павильон. Разрезы © Spirin architects
Летний павильон. Разрезы © Spirin architects
Летний павильон. Схема генплана © Spirin architects
Летний павильон. Схема генплана © Spirin architects