Размещено на портале Архи.ру (www.archi.ru)

19.10.2017

Практика использования ARCHICAD при проектировании научно-образовательного комплекса в Австралии

Мастерская:
GRAPHISOFT

Знаковым зданием для программы ARCHICAD 21 стал новый Центр Чарлза Перкинса при Университете Сиднея.

Фотография © Кира Ян Чжан (Keira Yang Zhang)
Фотография © Кира Ян Чжан (Keira Yang Zhang)

Проект здания Центра Чарльза Перкинса был создан компанией fjmt, занимающейся разработкой различных разделов документации и являющейся одной из передовых и наиболее титулованных компаний в области архитектуры и градостроительства в регионе. Компания fjmt ориентирована на высокие стандарты проектирования, внедрение инноваций и улучшение условий общественного пространства. Начав в 1990-х годах применять в своей работе передовые на тот момент технологии САПР и PDF, на данный момент fjmt владеет 97 лицензиями ARCHICAD.

В 2000 году компания поняла необходимость организации проектирования и разработки документации на основе 3D. Ознакомившись с возможностями трёх ведущих приложений, руководство сделало свой выбор в пользу ARCHICAD, прежде всего, из-за наилучшей организации командного проектирования в режиме реального времени.

Изначально ARCHICAD предполагалось использовать лишь для рабочего архитектурного проектирования и создания документации, однако со временем архитекторы fjmt существенно расширили область применения приложения.
Фотография © Патрик Рейнольдс (Patrick Reynolds)
Фотография © Патрик Рейнольдс (Patrick Reynolds)

По мере изучения функций координации 3D-моделей и организации работы со смежными специалистами и подрядчиками, специалисты компании стали экспертами в области информационного моделирования зданий.

В 2010-х годах наиболее важные проекты уже разрабатывались с применением подхода OPEN BIM, основанного на обмене информацией в междисциплинарном формате IFC.

На сегодняшний день для большей части проектов компании характерен высокий уровень BIM-моделирования в среде ARCHICAD, дополненного приложением dRufus при работе над очень сложными объектами.

С 2013 года, компания fjmt начала предоставлять полный пакет сервисных услуг управления BIM-данными как в процессе проектирования, так и на этапе строительства. Процесс эксплуатации объектов тоже может быть построен на основе ранее созданных информационных моделей зданий, представляющих собой строго упорядоченные базы данных.

fjmt также активно применяет приложения Rhino и Grasshopper, используя для прямого обмена данными недавно созданное GRAPHISOFT расширение Grasshopper-ARCHICAD Live Connection.

Это позволяет создавать практически любые формы и объемы, параметризуемые в соответствии с определенными алгоритмами, но одновременно являющиеся полноценными элементами информационных моделей зданий.
Управление BIM-данными при проектировании и строительстве. Схема: ©fjmt
Управление BIM-данными при проектировании и строительстве. Схема: ©fjmt

«Мы смогли перенаправить ресурсы c создания документации на более детальное моделирование. 3D-проектирование позволяет нам реализовать такие архитектурные решения, которые никак иначе просто нельзя проработать. С помощью Teamwork в ARCHICAD мы можем легко организовать совместную работу большого количества специалистов над крупными проектами. А с появлением решения BIMcloud мы получили возможность подключать к работе над одним и тем же проектом сотрудников из наших удаленных офисов. И, наконец, 3D-координация проектов – это единственно верный подход, если вам необходимо свести воедино сложные инженерные сети, конструктивные элементы и архитектурные решения, проверив их на соответствие всем нормам и правилам», – Джонатан Редман (Johnathan Redman), директор компании fjmt.

Центр Чарльза Перкинса – описание проекта и конструктивные решения

Центр Чарльза Перкинса (CPC), расположенный в западной части кампуса Кэмпердаун Университета Сиднея, представляет собой шестиэтажное здание (плюс три подвальных этажа). Возведение этого центра стало первым этапом создания территории, предназначенной для исследований в области биологии. Проект был разработан таким образом, чтобы организовать комфортное обучение и совместную научно-исследовательскую деятельность специалистов различных дисциплин, включая биомедицину, биоинформатику, а также вычислительные и социальные науки.

В здании общей площадью 50 000 м2 экспериментальные медицинские и компьютерные лаборатории занимают 16 000 м2. Внутренняя планировка и компоновка пространств максимально оптимизирована с учетом многофункциональности комплекса. Открытое офисное пространство и расположение блока основных лабораторий располагают к неформальному общению сотрудников, призванному по-новому подойти к процессу обучения и проведению научных исследований.
Центр Чарльза Перкинса – схема территории. Изображение ©fjmt
Центр Чарльза Перкинса – схема территории. Изображение ©fjmt
Облицованный песчаником фасад здания Центра Чарльза Перкинса и колледж Св. Джона. Фотография © Патрик Рейнольдс
Облицованный песчаником фасад здания Центра Чарльза Перкинса и колледж Св. Джона. Фотография © Патрик Рейнольдс

Объем и фасады здания привязаны к осевому расположению строений кампуса, включая Wilkinson Axis. Вертикальные пропорции облицованного песчаником северо-западного фасада усиливают гармоничное сочетание этого здания с прилегающим колледжем Св. Джона, который относится к объектам культурного наследия. Для этого фасада характерны вертикальные окна с глубокими четвертями, которые подчеркивают его ритм и создают дополнительную защиту от солнца.
Фасады Центра Чарльза Перкинса в ARCHICAD. Изображение: ©fjmt
Фасады Центра Чарльза Перкинса в ARCHICAD. Изображение: ©fjmt

Юго-восточный фасад, обращенный на треугольное открытое пространство, имеет большие площади остекления, разделенные многочисленными алюминиевыми горизонтальными планками с нейтральным щеточным анодированием. Остальные фасады отделаны горизонтальными рядами песчаника, которые чередуются с остеклением и алюминиевыми элементами в соответствии с функциями внутренних помещений и общими пропорциями облицовки.

В отдельно стоящем павильоне со стремительной линией кровли, расположенном рядом с главным входом, находится кафе и вход в аудиторию на 360 мест.
В павильоне, расположенном недалеко от входа в Центр, находится кафе и вход в подземную аудиторию на 360 мест. Фотография © Патрик Рейнольдс
В павильоне, расположенном недалеко от входа в Центр, находится кафе и вход в подземную аудиторию на 360 мест. Фотография © Патрик Рейнольдс


Пространственная планировка интерьера

Природа человеческого тела, схемы последовательности ДНК и циркуляция крови стали тем источником, который вдохновил архитекторов на новый подход к общим архитектурным решениям и дизайну интерьера здания. Большой центральный атриум – это сердце общественной жизни и место, где люди собираются, обмениваются информацией и новостями, делятся проблемами и просто общаются. Атриум имеет скульптурную форму с горизонтальными непрерывными «лентами», которые извилисто расходятся от этажа к этажу и связывают между собой галереи, лестницы атриума и ажурную декоративную стенку.

Организация окружающего атриум пространства усиливает ощущение открытости и располагает людей к общению, не нарушающему работу в лабораториях.
Открытое пространство вокруг атриума. Фотография © Патрик Рейнольдс
Открытое пространство вокруг атриума. Фотография © Патрик Рейнольдс
Поэтажный план с тремя горизонтальными функциональными ярусами (лаборатория, рабочая и коммуникационная зоны). Источник: architectureau.com
Поэтажный план с тремя горизонтальными функциональными ярусами (лаборатория, рабочая и коммуникационная зоны). Источник: architectureau.com

Типовые этажи имеют несложную компоновку, что облегчает ориентацию постоянных сотрудников и посетителей в здании, где на трех функциональных ярусах расположена лабораторная зона, зона совещаний и переговоров, а также рабочая зона. Теплые, насыщенные цвета и многослойная экологическая графика контрастируют с белыми галереями и способствуют визуальному зонированию всего здания.

Универсальность, сочетание материалов и высокая степень проработки деталей вместе с серией комплексных решений, таких как высокотехнологичное остекление, продуманная защита от солнца, применение фотоэлементов и правильное использование дневного освещения в атриуме – все это придает зданию современный вид, который соответствует не только требованиям сегодняшнего дня, но и отвечает передовым тенденциями развития архитектуры.
Графика на стеклянных перегородках лабораторий. Фотография © Патрик Рейнольдс
Графика на стеклянных перегородках лабораторий. Фотография © Патрик Рейнольдс
Атриум Центра Чарльза Перкинса. Фотография © Дема Расли (Demas Rusli)
Атриум Центра Чарльза Перкинса. Фотография © Дема Расли (Demas Rusli)
Атриум Центра Чарльза Перкинса. Фотография © Патрик Рейнольдс
Атриум Центра Чарльза Перкинса. Фотография © Патрик Рейнольдс

Проблемы, связанные с проектированием и документацией

При работе над крупными проектами всегда возникают как трудности, так и потенциальные возможности. Центр Чарльза Перкинса не является исключением.

Одной из особенностей стала совместная работа двух архитектурных компаний (fjmt и Building Studio архитекторы-партнеры) при разработке проекта и подготовке документации на одной и той же стадии проекта. Учитывая, что для здания характерно большое количество деталей и зон взаимодействия, одной из сложнейших задач была синхронизация работы двух команд.

Взаимодействие было основано на обмене IFC-моделями и ортогональными проекциями в формате DWG, включая поэтажные планы, сечения и фасады.

Немало сложностей возникло в процессе анализа здания, в котором объединено множество зон с различными функциями, включая рабочие места, учебные и клинические помещения, лаборатории с высокими техническими характеристиками. Все этого требовало пристального внимания и точной координации в условиях ограничений по времени и стоимости.

Повышение скорости проектирования и строительства – это отличительная особенность применения САПР, но в данном случае, проблема заключалось в том, что этапы проектирования, подготовки документации и строительства накладывались один на другой. Например, подготовка документации началась еще до согласования рабочего проекта и до начала эскизного проектирования интерьеров. При этом задание на проектирование включало в себя выпуск всех разделов документации.
Модель Центра Чарльза Перкинса в ARCHICAD. Изображение ©fjmt
Модель Центра Чарльза Перкинса в ARCHICAD. Изображение ©fjmt

Этот проект стал одним из первых зданий, спроектированных fjmt в ARCHICAD 13 и новая версия Teamwork 2.0 позволила существенно повысить скорость работы команды. Функции быстрого резервирования и редактирования отдельных составляющих проекта обеспечили гибкий подход и дали возможность организовывать рабочее пространство архитекторов по слоям, по этажам или просто на основе заданных критериев выбора элементов.
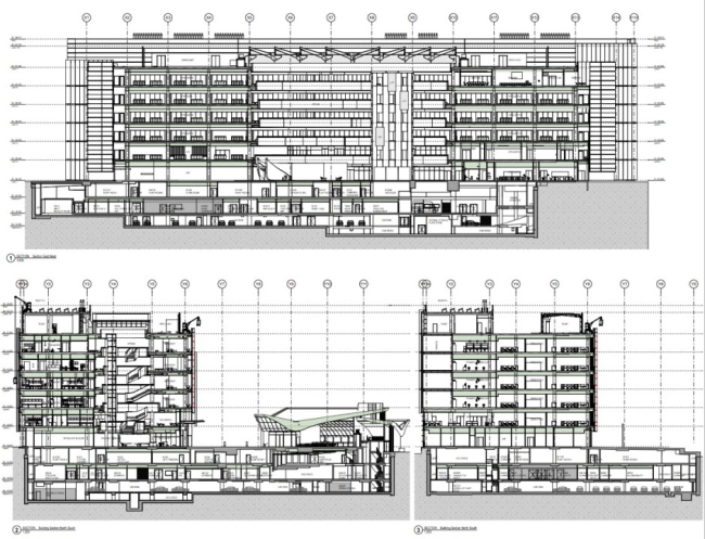
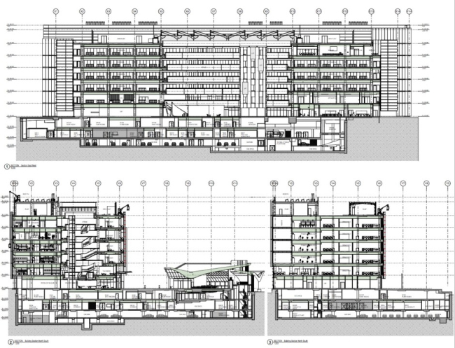
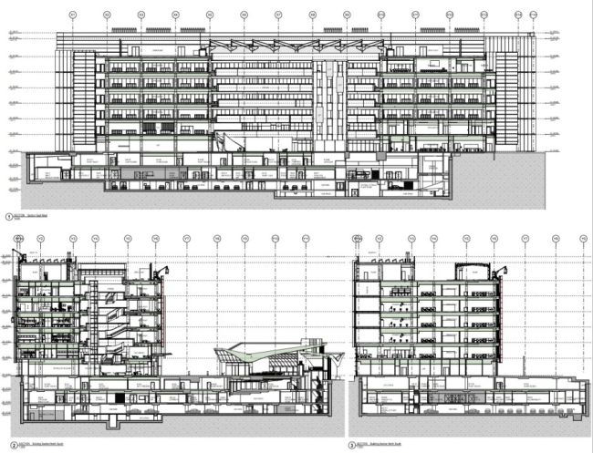
Разрезы Центра Чарльза Перкинса в ARCHICAD. Изображение ©fjmt
Разрезы Центра Чарльза Перкинса в ARCHICAD. Изображение ©fjmt

«Функция Teamwork стала важным дополнением, которое позволило нашим сотрудникам работать гибко и производительно. Члены команды могли резервировать и редактировать элементы модели как из офиса, так и удаленно. Эта технология значительно повысила эффективность работы в ARCHICAD, особенно в условиях жесткого графика проектирования и строительства», – Джонатан Редман (Johnathan Redman), директор fjmt.

Универсальность ARCHICAD позволила параллельно работать над эскизным и рабочим проектами, а также прорабатывать документацию даже при частичном совпадении периода проектирования и строительства. Информационные модели использовались для демонстрации различных вариантов проекта заказчику, согласований проектных решений со смежными специалистами и проведения рабочих совещаний с подрядчиками.

Из-за ускоренного проектирования и необходимости выпуска полного комплекта документации подрядчик (компания Brookfield Multiplex Constructions) включился в работу на раннем этапе. При помощи IFC-моделей осуществлялась вся координация и обнаружение коллизий, возникающих между конструкциями и элементами инженерных сетей.

«ARCHICAD отлично подходит для управления большим количеством экспортируемых и импортируемых данных. Мы использовали централизованную модель для объединения всей необходимой информации, которая была связана с отдельными файлами проекта и комплектами чертежей», – Джонатан Редман, директор fjmt.
Фотография © Демас Расли
Фотография © Демас Расли

Сложности моделирования

Компания fjmt начала работу над этим проектов в ARCHICAD 13, а закончила ее в ARCHICAD 15. В создании проекта участвовало 20 архитекторов и дизайнеров. Труднее всего было построить модель всего атриума, содержащую криволинейные профили и лестницы двоякой кривизны.
Модель конструкций/архитектуры одной из лестниц, созданная в Rhino/Grasshopper. Изображение ©fjmt
Модель конструкций/архитектуры одной из лестниц, созданная в Rhino/Grasshopper. Изображение ©fjmt

Архитекторам удалось воплотить проектный замысел при помощи различных инструментов и особых приемов. Однако время не стоит на месте, и за это время компания GRAPHISOFT создала новые инструменты, которые позволяют выполнить эти непростые задачи значительно быстрее и проще. Например, расширение Rhino-Grasshopper-ARCHICAD Live Connection позволяет организовать двунаправленный обмен данными между ARCHICAD и Rhino/Grasshopper. Таким образом некоторые элементы BIM-модели ARCHICAD можно создавать на основе определенных алгоритмов преобразования практически любой геометрии.
Лестница Центра Чарльза Перкинса, смоделированная в ARCHICAD 21. Изображение © fjmt
Лестница Центра Чарльза Перкинса, смоделированная в ARCHICAD 21. Изображение © fjmt

Кроме того, в ARCHICAD 21 появились абсолютно новые инструменты Лестница и Ограждение, действующие на основе запатентованной технологии Predictive Design™ и позволяющие легко и просто моделировать и создавать документацию даже очень сложных элементов.

Заключение

Творчески используя инструменты инновационного проектирования в сочетании с передовым программным обеспечением, компания fjmt создала проект Центра Чарльза Перкинса, который полностью отвечает высочайшим мировым стандартам и достойно послужит исследователям и преподавателям будущих поколений.
Фотография © Дема Расли
Фотография © Дема Расли
Фотография © Дема Расли
Фотография © Дема Расли

О компании fjmtО компании fjmt

Компания fjmt – обладатель многочисленных наград, австралийская архитектурная мастерская, которая стремится к созданию проектов с высокими характеристиками и улучшению условий общественного пространства.
Фотография ©fjmt
Фотография ©fjmt

Место и общность людей неразделимы. Каждый из наших проектов, разработанный с учетом этих понятий, представляет собой такое преобразование и интерпретацию площадки, которое позволяет клиенту и всему сообществу, для которых мы строим, увидеть реальное воплощение своих желаний. Мы стараемся создать архитектурную форму и открытое пространство, где находятся и отражены облик человека, ценности и идеи, и которое, что немаловажно, простирается на общественную территорию.

Компании fjmt были вручены многочисленные награды в области архитектуры и проектирования, включая награду Всемирного архитектурного фестиваля «Лучшее здание года в мире», награду AIA (Американского института архитекторов) «Награда сэра Зельмана Коуэна за общественные здания и сооружения» и премию Ллойда Риса за градостроительное проектирование, медаль за архитектуру NZIA (Новозеландского института архитекторов) и международную премию RIBA (Королевского института британских архитекторов).

В своих студиях, находящихся в Сиднее, Мельбурне (Австралия) и Оксфорде (Великобритания), компания fjmt выполняет заказы от общественных ведомств, коммерческих организаций и жителей по всей Австралии, а с недавних пор, и в Европе. Эти заказы компании зачастую оказываются результатом успешного участия в международных архитектурных конкурсах.