Размещено на портале Архи.ру (www.archi.ru)

13.10.2017

Музей Ленина в Горках

Константин Антипин
Объект:
Музей В.И. Ленина в Горках Ленинских
Адрес:
Россия, Москва.

Музей В.И. Ленина в Горках по проекту Леонида Павлова в контексте «ленинианы» его автора: публикация исследователя архитектуры и фотографа Константина Антипина.

Благодарим за помощь в подготовке материала Лию Иосифовну Павлову.

Музей В.И. Ленина в Горках. Фото © Константин Антипин
Музей В.И. Ленина в Горках. Фото © Константин Антипин



Московская область, Горки Ленинские

Архитекторы Л.Н. Павлов, Л.Ю. Гончар.
Конструкторы Л.А Муромцев, Н.Архангельский.
Дизайн экспозиции: творческая группа Комбината живописно-оформительского искусства (Ленинград) под руководством В.И. Короткова и В.Л. Ривина.
Проектирование: 1974–1980
Строительство: 1980–1987

Леонид Павлов – один из немногих советских архитекторов пост-авангардной эпохи, разработавших свою целостную архитектурную теорию. Будучи учеником Ивана Леонидова, он добивался гармонии формы и содержания. Его проекты отличают характерное авторское видение и яркая формальная трактовка, его стиль лаконичен и чем-то близок минимализму наших дней. На протяжении всего творческого пути Павлов в своих постройках использовал простые геометрические формы, и самым любимым для него был куб. Об этом свидетельствуют проект памятника архитекторам, погибшим в Великой Отечественной войне, и нереализованный административный комплекс на Лесной улице 1982 года, башня вычислительного центра Совета Министров 1990 года и проекты остальных вычислительных центров, в том числе – построенных на Новокировском проспекте (ныне Академика Сахарова) и в Измайлове.

Но наиболее полно тема кубов раскрылась в павловской «лениниане». По сути эта тема началась задолго до старта его архитектурной карьеры, через день после смерти Ленина, 22 января 1924 года, когда на экстренных пленумах принимались решения об увековечении памяти Ильича. Накануне Алексей Щусев получил заказ на проектирование временного мавзолея, а в стране развернулась широкая дискуссия о возможных формах памятников «Вождю русской революции». Наметили три основных направления: портретные скульптурные монументы, архитектурные композиции и общественные мемориальные здания, что на долгие десятилетия дало обширный материал для творчества советским деятелям искусств. Первым опытом в этой области для Леонида Павлова стал конкурсный проект музея В.И. Ленина в Москве.

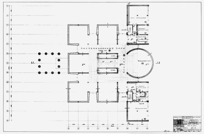
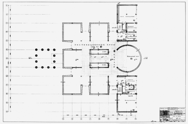
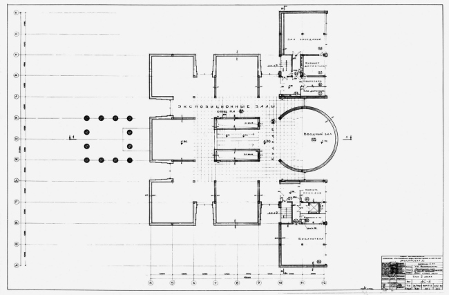
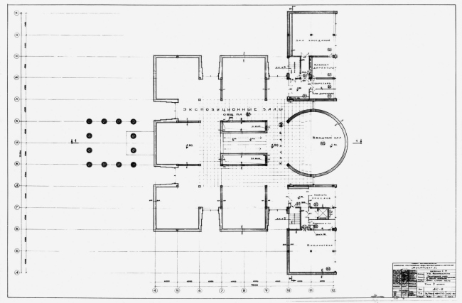
Проект здания на пересечении Волхонки и Знаменки представлял из себя симметричную композицию из 19 разновысоких кубов, облицованных белым мрамором. Соответственно, размещенные в них экспозиционные залы имели различную площадь и высоту – в зависимости от содержания жизненных этапов Ленина, о которых они рассказывали. В центре стоял объем наибольшей высоты – с вводным залом, а в пространствах между залами-кубами предполагались зоны отдыха для посетителей. Павлову было свойственно отражать содержания здания в его объемно-планировочном решении, и в проекте Центрального музея В.И. Ленина этот прием особенно уместен.

Леонид Павлов. Генплан Центрального музея В.И. Ленина в Москве
Леонид Павлов. Генплан Центрального музея В.И. Ленина в Москве
Леонид Павлов. Макет Центрального музея В.И. Ленина в Москве
Леонид Павлов. Макет Центрального музея В.И. Ленина в Москве



Архитектор Евгений Розанов писал о проекте в книге «Архитектура музеев В.И. Ленина»:
«Монументальные формы отражают, по мнению авторов, идеи единства и коллективизма. Разновысокие кубы облицованы белым мрамором. Западающие черные гранитные цоколи четко отсекают их от стилобата. Первый этаж стилобата тоже облицован черным гранитом, чтобы зрительно оторвать здание от Земли.
По широкой 18-метровой лестнице посетители поднимаются на основной экспозиционный уровень и, двигаясь по часовой стрелке, последовательно осматривают залы. Экспозицию окружают проходные помещения для отдыха посетителей. Система кинопроекционных экранов превращает экспозиционные залы в кинопанораму, воспроизводящую среду, в которой протекала жизнь и деятельность Ленина.
Вспомогательные помещения расположены в нижних этажах, а хранение фондов – ниже уровня земли.»

Леонид Павлов. Макет Центрального музея В.И. Ленина в Москве
Леонид Павлов. Макет Центрального музея В.И. Ленина в Москве



Павлов участвовал во всех трех этапах конкурса. По его итогам была сформирована сборная бригада из авторов трех проектов, и они по отдельности еще пять лет работали над зданием. Получившийся у них «периптер», напоминавший проект Михаила Посохина и Леонида Павлова из третьего тура, на фоне огромного числа достойных конкурсных работ выглядел очень скучным. В конце концов, проект не был реализован ни в одном из вариантов, но история на этом не закончилась…

«В конце жизни я построил Парфенон», – говорил Павлов о своем мемориальном музее В.И. Ленина в Горках. 

В усадьбе «Горки», до революции принадлежавшей Зинаиде Григорьевне Морозовой-Рейнбот, вдове Саввы Морозова, Ленин прожил последние два года и умер здесь же в январе 1924. На выбор этого места повлияла отличная сохранность дома, наличие в нем электричества и парового отопления, а также природное окружение: лес, река, пруд. В 1949 в усадебном доме открыли музей, а в 1974, к 50-летней годовщине смерти вождя, было принято решение о строительстве здесь Мемориального музея Ленина – вместо несостоявшегося на Волхонкe. В Горки планировали перевезти даже рабочий кабинет Ленина из Кремля.

В это же время развернулась полномасштабная реконструкция имения в том виде, каким оно было при Морозовой-Рейнбот, также велись работы по обустройству парковой зоны.

Приступив к проектированию музея в Горках, Павлов не сразу пришел к «кубическому» решению. В одном из первых вариантов он предложил образ «Ленин – знамя»: скульптурный портрет на фоне волнистой стены. Сверху – прямоугольная крыша, опирающаяся на редко расставленные колонны. Архитектор уже использовал эту концепцию в проекте монумента на Ленинских горах и в одном из туров конкурса на музей вождя в центре Москвы. Позже он все-таки реализовал этот замысел в павильоне «Траурный поезд» у Павелецкого вокзала.

Леонид Павлов. Макет мемориального музея В.И. Ленина в Горках
Леонид Павлов. Макет мемориального музея В.И. Ленина в Горках


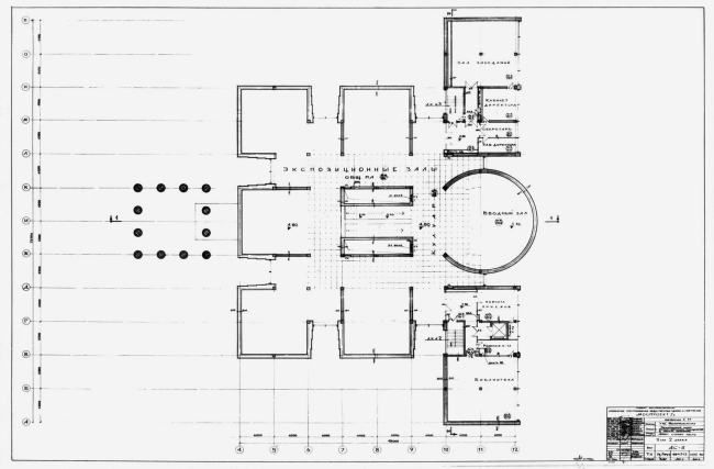
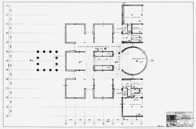
Работа продолжалась до 1980 года. За основу была взята многокубовая концепция из первого тура конкурса проектов музея на Волхонке, но число кубов уменьшилось с 19 до одиннадцати, а их размер стал одинаковым. Исчезло массивное основание, поэтому здание буквально вырастает из насыпного холма посреди поля. Еще большей монументальности удалось добиться за счет уплотнения объемов: облицованные белым мрамором кубы отделены друг от друга лишь тонкими стенками-кулисами из красного туфа и узкими вертикальными полосами остекления. Павлов прорабатывал и вариант с красными кубами, о чем свидетельствует сохранившийся эскиз.

Леонид Павлов. Чертеж мемориального музея В.И. Ленина в Горках
Леонид Павлов. Чертеж мемориального музея В.И. Ленина в Горках
Леонид Павлов. Ситуационный план мемориального музея В.И. Ленина в Горках
Леонид Павлов. Ситуационный план мемориального музея В.И. Ленина в Горках
Музей В.И. Ленина в Горках. Фото © Константин Антипин
Музей В.И. Ленина в Горках. Фото © Константин Антипин
Музей В.И. Ленина в Горках. Фото © Константин Антипин
Музей В.И. Ленина в Горках. Фото © Константин Антипин
Музей В.И. Ленина в Горках. Фото © Константин Антипин
Музей В.И. Ленина в Горках. Фото © Константин Антипин
Музей В.И. Ленина в Горках. Фото © Константин Антипин
Музей В.И. Ленина в Горках. Фото © Константин Антипин
Леонид Павлов. Ранний чертеж мемориального музея В.И. Ленина в Горках
Леонид Павлов. Ранний чертеж мемориального музея В.И. Ленина в Горках
Музей В.И. Ленина в Горках. Фото © Константин Антипин
Музей В.И. Ленина в Горках. Фото © Константин Антипин
Музей В.И. Ленина в Горках. Фото © Константин Антипин
Музей В.И. Ленина в Горках. Фото © Константин Антипин
Музей В.И. Ленина в Горках. Фото © Константин Антипин
Музей В.И. Ленина в Горках. Фото © Константин Антипин


В отличие от проекта музея на Волхонке, в Горках Павлов выполнил объем центрального зала в виде цилиндра, а не куба. Хотя изначально он предполагал разместить его в центре, позже архитектор сдвинул его к краю, так что он выступал за границу сооружения. В плане музей стал напоминать церковь с выделенной алтарной частью. Если смотреть на него со стороны усадьбы, то видно, как облицованный красным туфом цилиндр мемориального зала словно раздвигает здание, образуя полукруглый aпcидный выступ. Соединенные попарно кубы лишены стен и сплошь остеклены, сильно контрастируя с остальными фасадами.

Музей В.И. Ленина в Горках. Фото © Константин Антипин
Музей В.И. Ленина в Горках. Фото © Константин Антипин
Музей В.И. Ленина в Горках. Фото © Константин Антипин
Музей В.И. Ленина в Горках. Фото © Константин Антипин
Музей В.И. Ленина в Горках. Фото © Константин Антипин
Музей В.И. Ленина в Горках. Фото © Константин Антипин
Музей В.И. Ленина в Горках. Фото © Константин Антипин
Музей В.И. Ленина в Горках. Фото © Константин Антипин
Музей В.И. Ленина в Горках. Фото © Константин Антипин
Музей В.И. Ленина в Горках. Фото © Константин Антипин
Музей В.И. Ленина в Горках. Фото © Константин Антипин
Музей В.И. Ленина в Горках. Фото © Константин Антипин
Музей В.И. Ленина в Горках. Фото © Константин Антипин
Музей В.И. Ленина в Горках. Фото © Константин Антипин
Музей В.И. Ленина в Горках. Фото © Константин Антипин
Музей В.И. Ленина в Горках. Фото © Константин Антипин
Музей В.И. Ленина в Горках. Фото © Константин Антипин
Музей В.И. Ленина в Горках. Фото © Константин Антипин
Музей В.И. Ленина в Горках. Фото © Константин Антипин
Музей В.И. Ленина в Горках. Фото © Константин Антипин
Музей В.И. Ленина в Горках. Фото © Константин Антипин
Музей В.И. Ленина в Горках. Фото © Константин Антипин
Музей В.И. Ленина в Горках. Фото © Константин Антипин
Музей В.И. Ленина в Горках. Фото © Константин Антипин
Музей В.И. Ленина в Горках. Фото © Константин Антипин
Музей В.И. Ленина в Горках. Фото © Константин Антипин
Музей В.И. Ленина в Горках. Фото © Константин Антипин
Музей В.И. Ленина в Горках. Фото © Константин Антипин


Вход в музей оформлен портиком, отстоящим от переднего края здания из трех мраморных кубов, но соединенным с ними небольшим козырьком. Сооружение, напоминающее «киоск» императора Траяна lI века н.э. на острове Филе на юге Египта, также имеет силуэт куба, но не глухого, а открытого, приглашающего зайти внутрь музея. Попадая в интерьер, посетитель окунается в темноту холла с давяще низким потолком, набранным из латунных кубов. В это же время перед ним раскрывается перспектива лестницы, устланной красной ковровой дорожкой и освещенной светильниками-факелами. По мере подъема перед зрителем открывается вид на круглый зал с фигурой Ленина в центре. За статуей с потолка свисает красное полотнище: по праздникам и к приезду делегаций включают поддув, заставляющий его развеваться. На полукруглой мраморной стене позади скульптуры золотом обозначены основные вехи революции: цитаты Ленина, пять основных его декретов на золотых пластинах, карта «триумфального шествия советской власти».

Музей В.И. Ленина в Горках. Фото © Константин Антипин
Музей В.И. Ленина в Горках. Фото © Константин Антипин
Музей В.И. Ленина в Горках. Фото © Константин Антипин
Музей В.И. Ленина в Горках. Фото © Константин Антипин
Музей В.И. Ленина в Горках. Фото © Константин Антипин
Музей В.И. Ленина в Горках. Фото © Константин Антипин
Музей В.И. Ленина в Горках. Фото © Константин Антипин
Музей В.И. Ленина в Горках. Фото © Константин Антипин
Музей В.И. Ленина в Горках. Фото © Константин Антипин
Музей В.И. Ленина в Горках. Фото © Константин Антипин
Музей В.И. Ленина в Горках. Фото © Константин Антипин
Музей В.И. Ленина в Горках. Фото © Константин Антипин
Музей В.И. Ленина в Горках. Фото © Константин Антипин
Музей В.И. Ленина в Горках. Фото © Константин Антипин
Музей В.И. Ленина в Горках. Фото © Константин Антипин
Музей В.И. Ленина в Горках. Фото © Константин Антипин
Музей В.И. Ленина в Горках. Фото © Константин Антипин
Музей В.И. Ленина в Горках. Фото © Константин Антипин


Музей в Горках не должен был стать «очередным»: ему отводилась роль главного мемориального центра в стране, поэтому художником Владимиром Коротковым была проработана интерактивная и мультимедийная составляющие, которые должны были по-настоящему захватывать дух посетителей. Основная экспозиция состоит из пяти частей, посвященных различным этапам жизни Ленина, и в центре каждого зала стоит стеклянный черный куб. По нажатию экскурсоводом кнопки на пульте внутри куба загорается свет, начинается движение, из динамиков доносится речь… Использованы очень необычные решения, так что даже после распада СССР люди продолжали приезжать в Горки, чтобы увидеть технологическое «шоу». Управляется мультимедийная система компьютером Macintosh. Компания Apple представила его в 1984, а в 1985 Стив Джобс приезжал в СССР, чтобы продать свои компьютеры советской Академии наук, на что позже наложили запрет власти США. Музей был открыт в 1987.

Музей В.И. Ленина в Горках. Фото © Константин Антипин
Музей В.И. Ленина в Горках. Фото © Константин Антипин
Музей В.И. Ленина в Горках. Фото © Константин Антипин
Музей В.И. Ленина в Горках. Фото © Константин Антипин
Музей В.И. Ленина в Горках. Фото © Константин Антипин
Музей В.И. Ленина в Горках. Фото © Константин Антипин
Музей В.И. Ленина в Горках. Фото © Константин Антипин
Музей В.И. Ленина в Горках. Фото © Константин Антипин
Музей В.И. Ленина в Горках. Фото © Константин Антипин
Музей В.И. Ленина в Горках. Фото © Константин Антипин
Музей В.И. Ленина в Горках. Фото © Константин Антипин
Музей В.И. Ленина в Горках. Фото © Константин Антипин
Музей В.И. Ленина в Горках. Фото © Константин Антипин
Музей В.И. Ленина в Горках. Фото © Константин Антипин
Музей В.И. Ленина в Горках. Фото © Константин Антипин
Музей В.И. Ленина в Горках. Фото © Константин Антипин
Музей В.И. Ленина в Горках. Фото © Константин Антипин
Музей В.И. Ленина в Горках. Фото © Константин Антипин
Музей В.И. Ленина в Горках. Фото © Константин Антипин
Музей В.И. Ленина в Горках. Фото © Константин Антипин
Музей В.И. Ленина в Горках. Фото © Константин Антипин
Музей В.И. Ленина в Горках. Фото © Константин Антипин
Музей В.И. Ленина в Горках. Фото © Константин Антипин
Музей В.И. Ленина в Горках. Фото © Константин Антипин
Музей В.И. Ленина в Горках. Фото © Константин Антипин
Музей В.И. Ленина в Горках. Фото © Константин Антипин
Музей В.И. Ленина в Горках. Фото © Константин Антипин
Музей В.И. Ленина в Горках. Фото © Константин Антипин
Музей В.И. Ленина в Горках. Фото © Константин Антипин
Музей В.И. Ленина в Горках. Фото © Константин Антипин
Музей В.И. Ленина в Горках. Фото © Константин Антипин
Музей В.И. Ленина в Горках. Фото © Константин Антипин
Музей В.И. Ленина в Горках. Фото © Константин Антипин
Музей В.И. Ленина в Горках. Фото © Константин Антипин
Музей В.И. Ленина в Горках. Фото © Константин Антипин
Музей В.И. Ленина в Горках. Фото © Константин Антипин
Музей В.И. Ленина в Горках. Фото © Константин Антипин
Музей В.И. Ленина в Горках. Фото © Константин Антипин
Музей В.И. Ленина в Горках. Фото © Константин Антипин
Музей В.И. Ленина в Горках. Фото © Константин Антипин



Интерьер выглядит гораздо мрачнее внешнего облика музея: торжественно-гнетущая обстановка, отсылки к древнеегипетской архитектуре, черный пол с красными коврами – сочетание цветов наплечной траурной повязки.

Экспозиция подтверждает мысль о том, что это здание, прежде всего, не музей, но наполненный сакральными смыслами заупокойный храм. Тему «святилища» подтверждал сам Павлов: «В конце жизни я построил Парфенон». И если здание мавзолея на Красной площади открыло в архитектурном плане эпоху Советского Союза, то музей в Горках стал надгробием этому историческому периоду.

Постройки Павлова всегда отличалась собственным стилем, мало зависящим от окружающих веяний. Поэтому так незаметно произошел в процессе адаптации модернистского проекта Центрального музея В.И. Ленина на Волхонке к контексту комплекса в Горках переход к постмодернизму, ознаменовав приход этого стиля к популярности на закате СССР.
Музей В.И. Ленина в Горках. Фото © Константин Антипин
Музей В.И. Ленина в Горках. Фото © Константин Антипин