Размещено на портале Архи.ру (www.archi.ru)

12.10.2017

Мостовой кран для будущих художников

Нина Фролова
Объект:
Факультет изящных искусств, музыки и дизайна Бергенского университета
Адрес:
Норвегия, None, Берген.
Мастерская:
Snøhetta

В Бергене открылось здание факультета искусств городского университета, спроектированное бюро Snøhetta.

Факультет изящных искусств, музыки и дизайна Бергенского университета © Tomasz Majewski Photography
Факультет изящных искусств, музыки и дизайна Бергенского университета © Tomasz Majewski Photography

Архитекторы Snøhetta выиграли конкурс на проект этого учебного корпуса еще в 2005. В тот момент он предназначался для Академии художеств, одного из двух важнейших профильных вузов страны, но с этого года она вместе с музыкальной Академией Грига влилась в факультет изящных искусств, музыки и дизайна (KMD) Бергенского университета.
 
Факультет изящных искусств, музыки и дизайна Бергенского университета © Trond Isaksen, Statsbygg
Факультет изящных искусств, музыки и дизайна Бергенского университета © Trond Isaksen, Statsbygg

Изменился также и сам проект: изначально это была белая постройка смелых очертаний, но позже заказчик – государство – по соображениям экономии потребовало полностью переработать замысел. В результате, на месте завода по производству кранов компании Munck, близ берега фьорда появился слегка асимметричный «блок», обшитый алюминиевыми пластинами с узором; кажется, что они прилегают к фасадам с разной степенью плотности. С течением времени под воздействием влажного климата на них появится слой окиси.
 
Факультет изящных искусств, музыки и дизайна Бергенского университета © Trond Isaksen, Statsbygg
Факультет изящных искусств, музыки и дизайна Бергенского университета © Trond Isaksen, Statsbygg

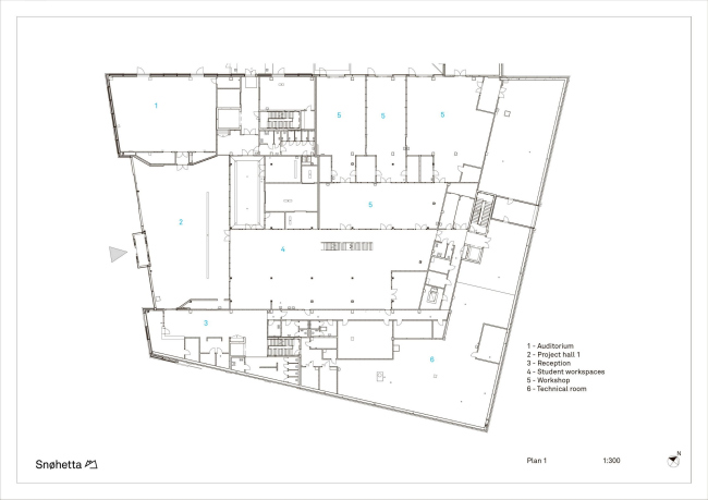
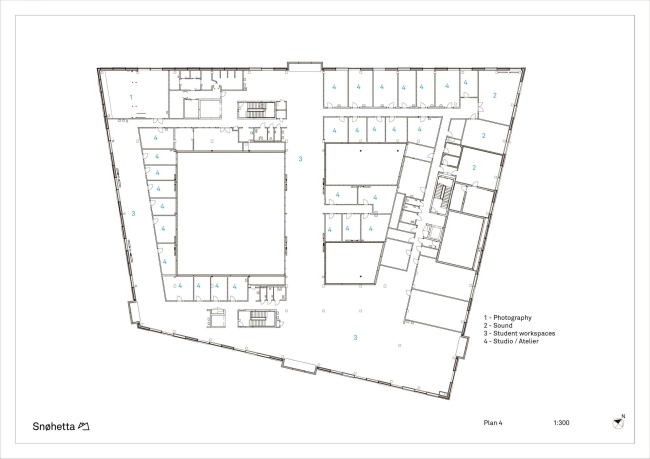
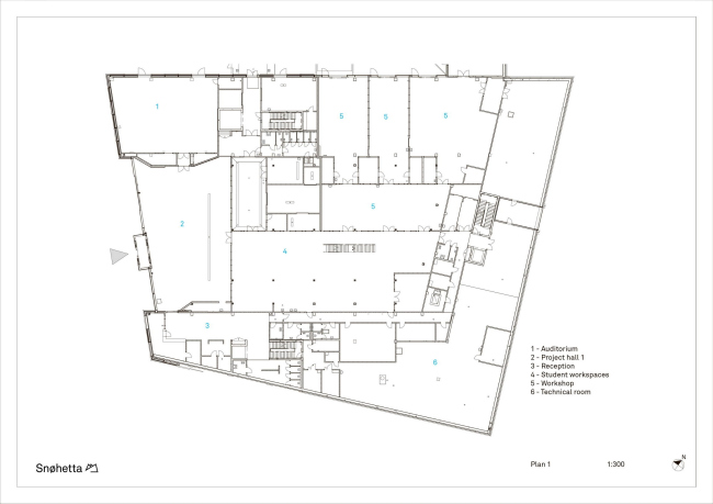
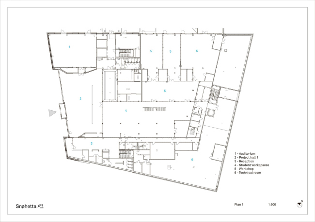
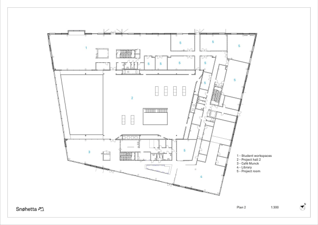
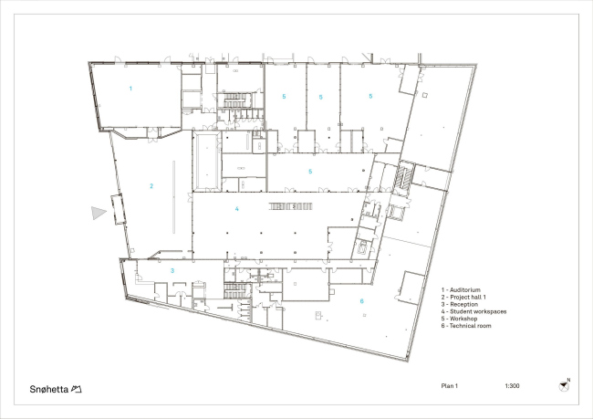
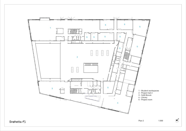
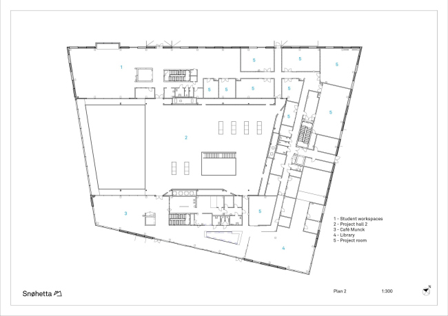
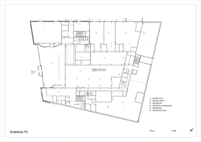
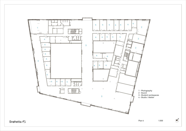
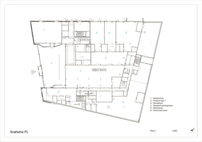
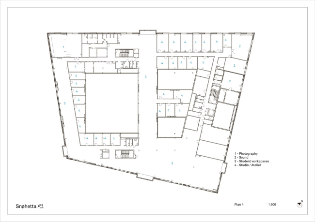
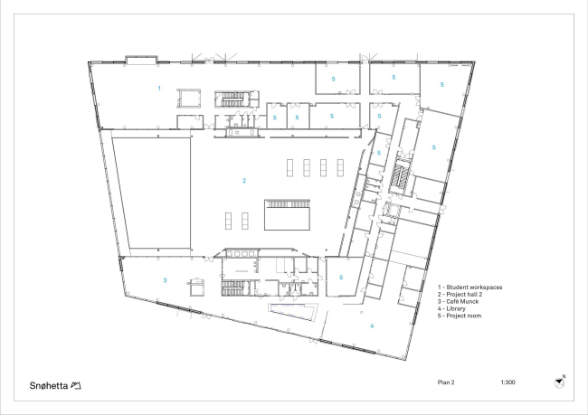
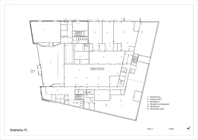
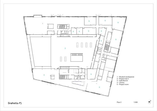
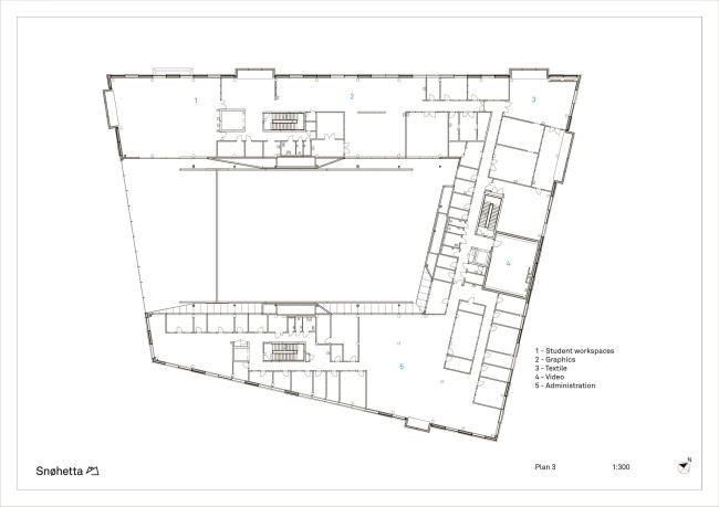
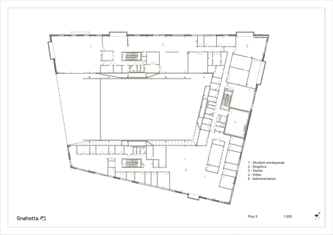
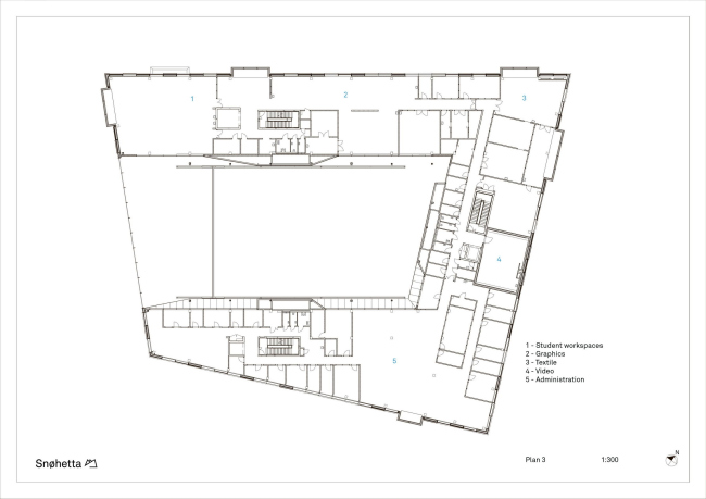
Фасад также оживляют окна разных форм и размеров, включая консоли-эркеры, в интерьере которых устроены небольшие рекреационные зоны. Кроме того, в проект включена старая каменная стена, стоявшая еще на территории завода, но главный памятник индустриальному прошлому – мостовой кран Munck, помещенный в самом большом зале факультета, Проектном. Это пространство во всю высоту здания (23 м, площадь 1300 м2) можно использовать для самых разных целей, как вузовских, так и общегородских: он расположен на пересечении двух планировочных осей постройки, публичной и факультетской, и его большое остекленное окно связывает интерьер с окружением. Той же цели служит новая «плаза» рядом.
 
Факультет изящных искусств, музыки и дизайна Бергенского университета © Tomasz Majewski Photography
Факультет изящных искусств, музыки и дизайна Бергенского университета © Tomasz Majewski Photography

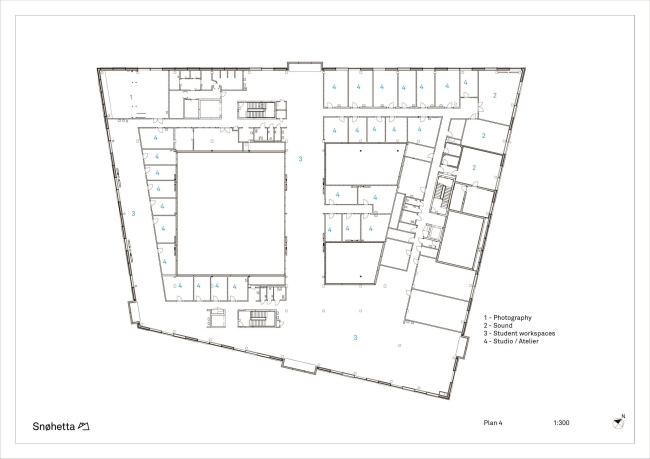
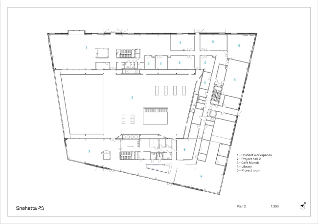
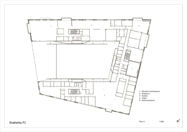
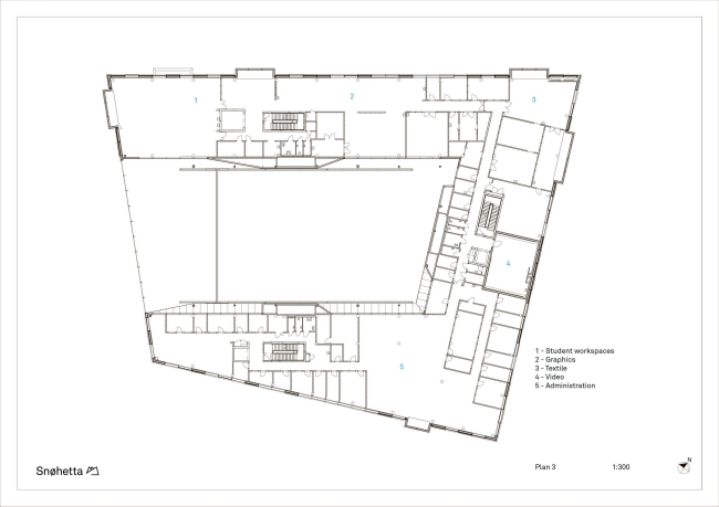
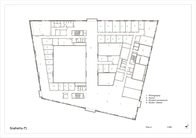
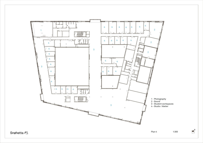
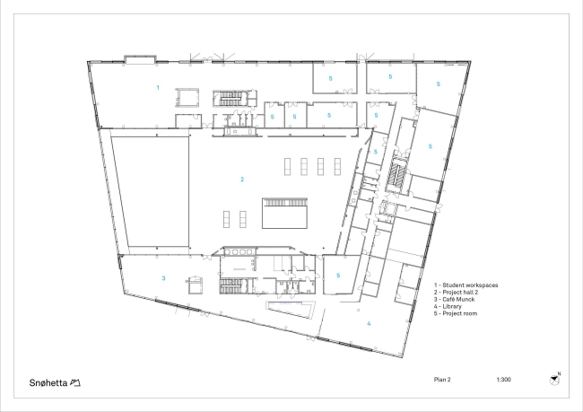
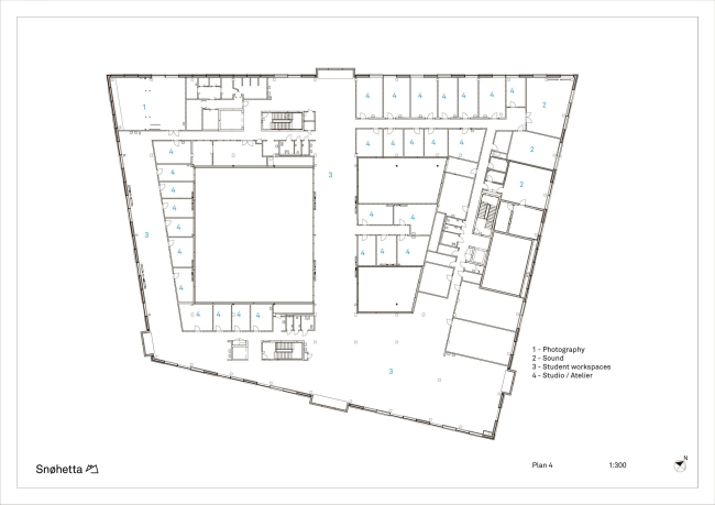
Вокруг Проектного зала размещены остальные 410 помещений, включая 32 большие мастерские, которые можно использовать и для выставок. Они рассчитаны на работу с деревом, керамикой, металлом, гипсом, создание гравюр, текстиля, видео- и саунд-арта, фотографий, на 3D-моделирование и –печать. На втором этаже находятся кафе Munck с открытой террасой, библиотека и библиотека материалов, на третьем – кабинеты администрации на четвертом – большинство студенческих мастерских и студий, семинарские аудитории, кабинеты преподавателей.
 
Факультет изящных искусств, музыки и дизайна Бергенского университета © Tomasz Majewski Photography
Факультет изящных искусств, музыки и дизайна Бергенского университета © Tomasz Majewski Photography

Общая площадь в 14 800 м2 рассчитана на 350 студентов – художников и дизайнеров. В других зданиях KMD учатся музыканты, композиторы, кураторы, специалисты по музыкальной терапии, музыковеды, будущие преподаватели музыки и ИЗО. Всего на факультете – 600 студентов и 190 профессоров и других сотрудников.
 
Факультет изящных искусств, музыки и дизайна Бергенского университета © Trond Isaksen, Statsbygg
Факультет изящных искусств, музыки и дизайна Бергенского университета © Trond Isaksen, Statsbygg

Из площади участка в 4,6 га 3,6 га – открытое пространство: это озеленение, плазы и парковка. Учитывая дождливый климат Бергена, особое внимание было уделено сбору и переработке дождевой воды, чтобы снизить нагрузку на канализационную систему города. С вымощенных площадей и с крыши вода попадает в два «заболоченных» сада с местной флорой (жостер, терн, черника, ива, папоротники, купальница, рогоз, таволга). Кроме того, под террасой кафе устроена цистерна, способная в шторм принять с крыши до 90 литров в секунду; оттуда вода поступает в водоем объемом 500 м3.
Факультет изящных искусств, музыки и дизайна Бергенского университета © Tomasz Majewski Photography
Факультет изящных искусств, музыки и дизайна Бергенского университета © Tomasz Majewski Photography
Факультет изящных искусств, музыки и дизайна Бергенского университета © Trond Isaksen, Statsbygg
Факультет изящных искусств, музыки и дизайна Бергенского университета © Trond Isaksen, Statsbygg
Факультет изящных искусств, музыки и дизайна Бергенского университета © Trond Isaksen, Statsbygg
Факультет изящных искусств, музыки и дизайна Бергенского университета © Trond Isaksen, Statsbygg
Факультет изящных искусств, музыки и дизайна Бергенского университета © Tomasz Majewski Photography
Факультет изящных искусств, музыки и дизайна Бергенского университета © Tomasz Majewski Photography
Факультет изящных искусств, музыки и дизайна Бергенского университета © Tomasz Majewski Photography
Факультет изящных искусств, музыки и дизайна Бергенского университета © Tomasz Majewski Photography
Факультет изящных искусств, музыки и дизайна Бергенского университета © Stephen Paolo Citrone
Факультет изящных искусств, музыки и дизайна Бергенского университета © Stephen Paolo Citrone
Факультет изящных искусств, музыки и дизайна Бергенского университета © Tomasz Majewski Photography
Факультет изящных искусств, музыки и дизайна Бергенского университета © Tomasz Majewski Photography
Факультет изящных искусств, музыки и дизайна Бергенского университета © Trond Isaksen, Statsbygg
Факультет изящных искусств, музыки и дизайна Бергенского университета © Trond Isaksen, Statsbygg
Факультет изящных искусств, музыки и дизайна Бергенского университета © Trond Isaksen, Statsbygg
Факультет изящных искусств, музыки и дизайна Бергенского университета © Trond Isaksen, Statsbygg
Факультет изящных искусств, музыки и дизайна Бергенского университета © Trond Isaksen, Statsbygg
Факультет изящных искусств, музыки и дизайна Бергенского университета © Trond Isaksen, Statsbygg
Факультет изящных искусств, музыки и дизайна Бергенского университета © Tomasz Majewski Photography
Факультет изящных искусств, музыки и дизайна Бергенского университета © Tomasz Majewski Photography
Факультет изящных искусств, музыки и дизайна Бергенского университета © Tomasz Majewski Photography
Факультет изящных искусств, музыки и дизайна Бергенского университета © Tomasz Majewski Photography
Факультет изящных искусств, музыки и дизайна Бергенского университета © Tomasz Majewski Photography
Факультет изящных искусств, музыки и дизайна Бергенского университета © Tomasz Majewski Photography
Факультет изящных искусств, музыки и дизайна Бергенского университета © Tomasz Majewski Photography
Факультет изящных искусств, музыки и дизайна Бергенского университета © Tomasz Majewski Photography
Факультет изящных искусств, музыки и дизайна Бергенского университета © Tomasz Majewski Photography
Факультет изящных искусств, музыки и дизайна Бергенского университета © Tomasz Majewski Photography
Факультет изящных искусств, музыки и дизайна Бергенского университета © Trond Isaksen, Statsbygg
Факультет изящных искусств, музыки и дизайна Бергенского университета © Trond Isaksen, Statsbygg
Факультет изящных искусств, музыки и дизайна Бергенского университета © Tomasz Majewski Photography
Факультет изящных искусств, музыки и дизайна Бергенского университета © Tomasz Majewski Photography
Факультет изящных искусств, музыки и дизайна Бергенского университета © Tomasz Majewski Photography
Факультет изящных искусств, музыки и дизайна Бергенского университета © Tomasz Majewski Photography
Факультет изящных искусств, музыки и дизайна Бергенского университета © Trond Isaksen, Statsbygg
Факультет изящных искусств, музыки и дизайна Бергенского университета © Trond Isaksen, Statsbygg
Факультет изящных искусств, музыки и дизайна Бергенского университета © Tomasz Majewski Photography
Факультет изящных искусств, музыки и дизайна Бергенского университета © Tomasz Majewski Photography
Факультет изящных искусств, музыки и дизайна Бергенского университета © Tomasz Majewski Photography
Факультет изящных искусств, музыки и дизайна Бергенского университета © Tomasz Majewski Photography
Факультет изящных искусств, музыки и дизайна Бергенского университета © Trond Isaksen, Statsbygg
Факультет изящных искусств, музыки и дизайна Бергенского университета © Trond Isaksen, Statsbygg
Факультет изящных искусств, музыки и дизайна Бергенского университета © Tomasz Majewski Photography
Факультет изящных искусств, музыки и дизайна Бергенского университета © Tomasz Majewski Photography
Факультет изящных искусств, музыки и дизайна Бергенского университета © Trond Isaksen, Statsbygg
Факультет изящных искусств, музыки и дизайна Бергенского университета © Trond Isaksen, Statsbygg
Факультет изящных искусств, музыки и дизайна Бергенского университета © Trond Isaksen, Statsbygg
Факультет изящных искусств, музыки и дизайна Бергенского университета © Trond Isaksen, Statsbygg
Факультет изящных искусств, музыки и дизайна Бергенского университета © Tomasz Majewski Photography
Факультет изящных искусств, музыки и дизайна Бергенского университета © Tomasz Majewski Photography
Факультет изящных искусств, музыки и дизайна Бергенского университета © Tomasz Majewski Photography
Факультет изящных искусств, музыки и дизайна Бергенского университета © Tomasz Majewski Photography
Факультет изящных искусств, музыки и дизайна Бергенского университета © Trond Isaksen, Statsbygg
Факультет изящных искусств, музыки и дизайна Бергенского университета © Trond Isaksen, Statsbygg
Факультет изящных искусств, музыки и дизайна Бергенского университета © Snøhetta
Факультет изящных искусств, музыки и дизайна Бергенского университета © Snøhetta
Факультет изящных искусств, музыки и дизайна Бергенского университета © Snøhetta
Факультет изящных искусств, музыки и дизайна Бергенского университета © Snøhetta
Факультет изящных искусств, музыки и дизайна Бергенского университета © Snøhetta
Факультет изящных искусств, музыки и дизайна Бергенского университета © Snøhetta
Факультет изящных искусств, музыки и дизайна Бергенского университета © Snøhetta
Факультет изящных искусств, музыки и дизайна Бергенского университета © Snøhetta
Факультет изящных искусств, музыки и дизайна Бергенского университета © Snøhetta
Факультет изящных искусств, музыки и дизайна Бергенского университета © Snøhetta
Факультет изящных искусств, музыки и дизайна Бергенского университета © Snøhetta
Факультет изящных искусств, музыки и дизайна Бергенского университета © Snøhetta
Факультет изящных искусств, музыки и дизайна Бергенского университета © Snøhetta
Факультет изящных искусств, музыки и дизайна Бергенского университета © Snøhetta
Факультет изящных искусств, музыки и дизайна Бергенского университета © Snøhetta
Факультет изящных искусств, музыки и дизайна Бергенского университета © Snøhetta