Размещено на портале Архи.ру (www.archi.ru)

11.10.2017

Радуга внутри

Нина Фролова
Объект:
Книжный магазин «Чжуншу» в Сучжоу
Адрес:
Китай, None, Сучжоу.
Мастерская:
Wutopia Lab

Книжный магазин сети «Чжуншу» в Сучжоу по проекту шанхайского бюро Wutopia Lab.

Книжный магазин «Чжуншу». Фото © Hu Yijie
Книжный магазин «Чжуншу». Фото © Hu Yijie

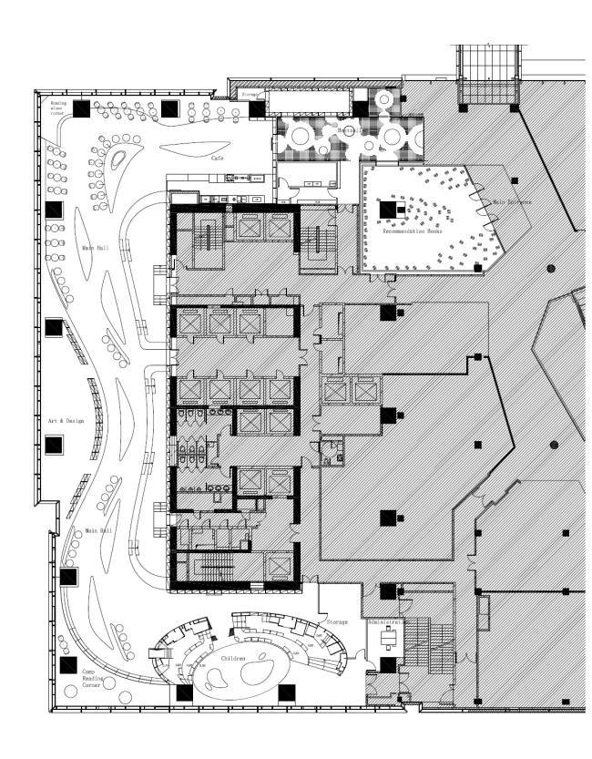
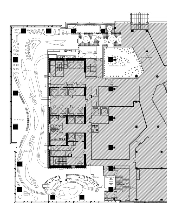
Восьмой по счету магазин сети «Чжуншу» открылся в Сучжоу в основании многоэтажного здания. Архитекторы разделили интерьер на четыре четко отличающиеся функциональные зоны, придав каждой поэтический образ.
 
Книжный магазин «Чжуншу». Фото © Hu Yijie
Книжный магазин «Чжуншу». Фото © Hu Yijie

Входной зал, где размещены новинки, назван «Святилище из хрусталя»: белый интерьер из стеклоблоков и зеркал кажется нематериальным; поэтому внимание сразу привлекают разноцветные книги на подставках из прозрачного акрил-полимера.
 
Книжный магазин «Чжуншу». Фото © CreatAR (Ai Qing, Mao Yingchen, Shi Kaichen)
Книжный магазин «Чжуншу». Фото © CreatAR (Ai Qing, Mao Yingchen, Shi Kaichen)
Книжный магазин «Чжуншу». Фото © Hu Yijie
Книжный магазин «Чжуншу». Фото © Hu Yijie

Следующее помещение, «Пещера светлячков», напротив – темный тоннель со светящимися оптоволоконными «занавесами». Там размещены рекомендованные к покупке издания: с ними читатели могут пройти дальше, в главный зал – «Радужный Занаду» или же «Радужный рай на Земле».
 
Книжный магазин «Чжуншу». Фото © CreatAR (Ai Qing, Mao Yingchen, Shi Kaichen)
Книжный магазин «Чжуншу». Фото © CreatAR (Ai Qing, Mao Yingchen, Shi Kaichen)
Книжный магазин «Чжуншу». Фото © CreatAR (Ai Qing, Mao Yingchen, Shi Kaichen)
Книжный магазин «Чжуншу». Фото © CreatAR (Ai Qing, Mao Yingchen, Shi Kaichen)
Книжный магазин «Чжуншу». Фото © Hu Yijie
Книжный магазин «Чжуншу». Фото © Hu Yijie
Книжный магазин «Чжуншу». Фото © CreatAR (Ai Qing, Mao Yingchen, Shi Kaichen)
Книжный магазин «Чжуншу». Фото © CreatAR (Ai Qing, Mao Yingchen, Shi Kaichen)

В нем есть стеллажи, кресла и столы для чтения, большие окна – источник естественного света, меняющийся уровень пола. Но главное – это алюминиевые перфорированные панели плавных очертаний, окрашенные в разные цвета радуги, с тонкими переходами между оттенками. Плотность их расположения, тон и форма меняются, создавая сложное, неопределенное и одновременно привлекательное пространство. В темное время суток подсвеченный радужный интерьер хорошо заметен снаружи, привлекая внимание к магазину.
 
Книжный магазин «Чжуншу». Фото © Hu Yijie
Книжный магазин «Чжуншу». Фото © Hu Yijie
Книжный магазин «Чжуншу». Фото © Hu Yijie
Книжный магазин «Чжуншу». Фото © Hu Yijie

Еще одна зона интерьера – «Замок невинности», детская комната, ограниченная белыми стенами из полимера ETFE.
Книжный магазин «Чжуншу». Фото © CreatAR (Ai Qing, Mao Yingchen, Shi Kaichen)
Книжный магазин «Чжуншу». Фото © CreatAR (Ai Qing, Mao Yingchen, Shi Kaichen)
Книжный магазин «Чжуншу». Фото © CreatAR (Ai Qing, Mao Yingchen, Shi Kaichen)
Книжный магазин «Чжуншу». Фото © CreatAR (Ai Qing, Mao Yingchen, Shi Kaichen)
Книжный магазин «Чжуншу». Фото © Hu Yijie
Книжный магазин «Чжуншу». Фото © Hu Yijie
Книжный магазин «Чжуншу». Фото © Hu Yijie
Книжный магазин «Чжуншу». Фото © Hu Yijie
Книжный магазин «Чжуншу». Фото © CreatAR (Ai Qing, Mao Yingchen, Shi Kaichen)
Книжный магазин «Чжуншу». Фото © CreatAR (Ai Qing, Mao Yingchen, Shi Kaichen)
Книжный магазин «Чжуншу». Фото © CreatAR (Ai Qing, Mao Yingchen, Shi Kaichen)
Книжный магазин «Чжуншу». Фото © CreatAR (Ai Qing, Mao Yingchen, Shi Kaichen)
Книжный магазин «Чжуншу». Фото © CreatAR (Ai Qing, Mao Yingchen, Shi Kaichen)
Книжный магазин «Чжуншу». Фото © CreatAR (Ai Qing, Mao Yingchen, Shi Kaichen)
Книжный магазин «Чжуншу». Фото © CreatAR (Ai Qing, Mao Yingchen, Shi Kaichen)
Книжный магазин «Чжуншу». Фото © CreatAR (Ai Qing, Mao Yingchen, Shi Kaichen)
Книжный магазин «Чжуншу». Фото © Hu Yijie
Книжный магазин «Чжуншу». Фото © Hu Yijie
Книжный магазин «Чжуншу». Фото © Hu Yijie
Книжный магазин «Чжуншу». Фото © Hu Yijie
Книжный магазин «Чжуншу». Фото © CreatAR (Ai Qing, Mao Yingchen, Shi Kaichen)
Книжный магазин «Чжуншу». Фото © CreatAR (Ai Qing, Mao Yingchen, Shi Kaichen)
Книжный магазин «Чжуншу». Фото © CreatAR (Ai Qing, Mao Yingchen, Shi Kaichen)
Книжный магазин «Чжуншу». Фото © CreatAR (Ai Qing, Mao Yingchen, Shi Kaichen)
Книжный магазин «Чжуншу». Фото © CreatAR (Ai Qing, Mao Yingchen, Shi Kaichen)
Книжный магазин «Чжуншу». Фото © CreatAR (Ai Qing, Mao Yingchen, Shi Kaichen)
Книжный магазин «Чжуншу». Фото © Hu Yijie
Книжный магазин «Чжуншу». Фото © Hu Yijie
Книжный магазин «Чжуншу». Фото © CreatAR (Ai Qing, Mao Yingchen, Shi Kaichen)
Книжный магазин «Чжуншу». Фото © CreatAR (Ai Qing, Mao Yingchen, Shi Kaichen)
Книжный магазин «Чжуншу». Фото © Hu Yijie
Книжный магазин «Чжуншу». Фото © Hu Yijie
Книжный магазин «Чжуншу». Фото © CreatAR (Ai Qing, Mao Yingchen, Shi Kaichen)
Книжный магазин «Чжуншу». Фото © CreatAR (Ai Qing, Mao Yingchen, Shi Kaichen)
Книжный магазин «Чжуншу». Фото © Hu Yijie
Книжный магазин «Чжуншу». Фото © Hu Yijie
Книжный магазин «Чжуншу». Фото © Hu Yijie
Книжный магазин «Чжуншу». Фото © Hu Yijie
Книжный магазин «Чжуншу». Фото © Hu Yijie
Книжный магазин «Чжуншу». Фото © Hu Yijie
Книжный магазин «Чжуншу». Фото © Hu Yijie
Книжный магазин «Чжуншу». Фото © Hu Yijie
Книжный магазин «Чжуншу» © Wutopia Lab
Книжный магазин «Чжуншу» © Wutopia Lab
Книжный магазин «Чжуншу» © Wutopia Lab
Книжный магазин «Чжуншу» © Wutopia Lab
Книжный магазин «Чжуншу» © Wutopia Lab
Книжный магазин «Чжуншу» © Wutopia Lab