Размещено на портале Архи.ру (www.archi.ru)

25.09.2017

Фасад-абстракция

Нина Фролова
Объект:
Башня Experimenta 21
Адрес:
Аргентина, None, Кордова.
Мастерская:
Morini Arquitectos

Башня с лабораториями и мастерскими Experimenta 21 в Университете XXI века в аргентинской Кордове по проекту Morini Arquitectos.

Башня Experimenta 21 © Gonzalo Viramonte
Башня Experimenta 21 © Gonzalo Viramonte

Предпринимательский университет XXI века – сравнительно новый вуз, расположенный в Кордове на севере Аргентины. Мастерплан его кампуса разработал в 1999 Сезар Пелли, однако и в наши дни к комплексу добавляются новые постройки. Так, башня Experimenta 21 завершила каре просторного двора, заложенного в план еще Пелли.
 
Башня Experimenta 21 © Gonzalo Viramonte
Башня Experimenta 21 © Gonzalo Viramonte

Башня вмещает в себя лаборатории и мастерские для самых необычных и новаторских исследований в сфере техники и технологий, и ее облик должен был отражать это содержание. Несущий фасад с асимметричными проемами, а также эффектный вход в виде красного коридора вполне отвечают этой задаче. Также этому служит вертикальный силуэт здания в окружении остальных – горизонтальных – корпусов; башня также заметна в ландшафте Кордовы, несмотря на расположение кампуса на окраине.
 
Башня Experimenta 21 © Gonzalo Viramonte
Башня Experimenta 21 © Gonzalo Viramonte

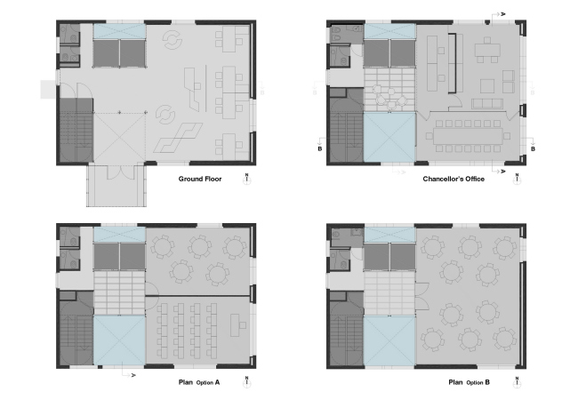
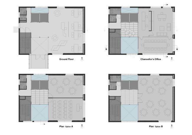
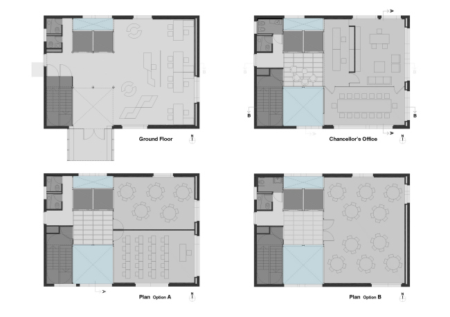
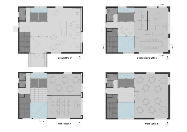
Фасад высотой в 41 метр был возведен из монолитного бетона за две недели. Структура интерьера проста – лестнично-лифтовые узлы связаны на каждом этаже с холлом, который в будущем может послужить для расширения мастерских. Кроме оконных проемов, за освещение интерьера отвечают световые колодцы: такую роль, помимо прочего, играет стеклянная шахта лифта.
 
Башня Experimenta 21 © Gonzalo Viramonte
Башня Experimenta 21 © Gonzalo Viramonte

Среди эко-элементов – система сбора дождевой воды (в нее входит прозрачная цистерна, служащая перекрытием вестибюля), смачиваемый пористый материал на стенах открытых внутренних дворов (он охлаждает поступающий снаружи воздух, который затем попадает в мастерские через выходящие туда окна), использование естественного освещения и тепловой инерции бетона.
Башня Experimenta 21 © Gonzalo Viramonte
Башня Experimenta 21 © Gonzalo Viramonte
Башня Experimenta 21 © Gonzalo Viramonte
Башня Experimenta 21 © Gonzalo Viramonte
Башня Experimenta 21 © Gonzalo Viramonte
Башня Experimenta 21 © Gonzalo Viramonte
Башня Experimenta 21 © Gonzalo Viramonte
Башня Experimenta 21 © Gonzalo Viramonte
Башня Experimenta 21 © Gonzalo Viramonte
Башня Experimenta 21 © Gonzalo Viramonte
Башня Experimenta 21 © Gonzalo Viramonte
Башня Experimenta 21 © Gonzalo Viramonte
Башня Experimenta 21 © Gonzalo Viramonte
Башня Experimenta 21 © Gonzalo Viramonte
Башня Experimenta 21 © Gonzalo Viramonte
Башня Experimenta 21 © Gonzalo Viramonte
Башня Experimenta 21 © Gonzalo Viramonte
Башня Experimenta 21 © Gonzalo Viramonte
Башня Experimenta 21 © Gonzalo Viramonte
Башня Experimenta 21 © Gonzalo Viramonte
Башня Experimenta 21 © Gonzalo Viramonte
Башня Experimenta 21 © Gonzalo Viramonte
Башня Experimenta 21 © Gonzalo Viramonte
Башня Experimenta 21 © Gonzalo Viramonte
Башня Experimenta 21 © Gonzalo Viramonte
Башня Experimenta 21 © Gonzalo Viramonte
Башня Experimenta 21 © Gonzalo Viramonte
Башня Experimenta 21 © Gonzalo Viramonte
Башня Experimenta 21 © Gonzalo Viramonte
Башня Experimenta 21 © Gonzalo Viramonte
Башня Experimenta 21 © Gonzalo Viramonte
Башня Experimenta 21 © Gonzalo Viramonte
Башня Experimenta 21 © Gonzalo Viramonte
Башня Experimenta 21 © Gonzalo Viramonte
Башня Experimenta 21 © Gonzalo Viramonte
Башня Experimenta 21 © Gonzalo Viramonte
Башня Experimenta 21 © Morini Arquitectos
Башня Experimenta 21 © Morini Arquitectos
Башня Experimenta 21 © Morini Arquitectos
Башня Experimenta 21 © Morini Arquitectos
Башня Experimenta 21 © Morini Arquitectos
Башня Experimenta 21 © Morini Arquitectos
Башня Experimenta 21 © Morini Arquitectos
Башня Experimenta 21 © Morini Arquitectos