Размещено на портале Архи.ру (www.archi.ru)

20.09.2017

Атриум-зерно

Нина Фролова
Объект:
Музей современного африканского искусства Цайца
Адрес:
ЮАР, None, Кейптаун.

В Кейптауне в бывшем элеваторе открывается музей современного африканского искусства по проекту Heatherwick Studio.

Музей современного африканского искусства Цайца © Iwan Baan
Музей современного африканского искусства Цайца © Iwan Baan

Музей расположен в комплексе Victoria & Alfred Waterfront: бывший порт превращен в зону коммерческой застройки, которую посещает до 100 000 человек в день. Там не хватало лишь культурной «точки притяжения», которой и стал музей Zeitz MOCAA. Представленное там собрание принадлежит немецкому предпринимателю Йохену Цайцу, бывшему CEO компании Puma: это работы африканских художников, живущих на родине и в эмиграции. Zeitz MOCAA станет крупнейшим в мире музеем современного искусства Африки.
 
Ати-Патри Руга. Проект мемориала ЛГБТ-активисту и борцу с апартеидом Саймону Нколе © Antonia Steyn
Ати-Патри Руга. Проект мемориала ЛГБТ-активисту и борцу с апартеидом Саймону Нколе © Antonia Steyn
Музей современного африканского искусства Цайца © Iwan Baan
Музей современного африканского искусства Цайца © Iwan Baan

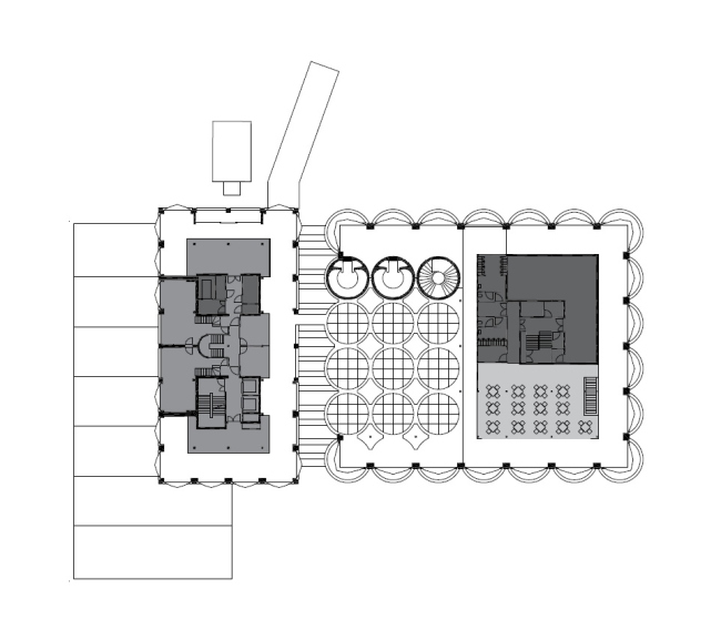
Реконструированный сейчас под новые нужды элеватор был построен в первой половине 1920-х; вплоть до 1990-х там хранили пшеницу, кукурузу, сорго и сою. При высоте в 57 метров сооружение из рабочей башни и 42 силосных корпусов хорошо заметно в ландшафте Кейптауна.
 
Музей современного африканского искусства Цайца © Iwan Baan
Музей современного африканского искусства Цайца © Iwan Baan

Элеваторы по своей сути сложны для реконструкции, хотя примеры превращения их в жилье или в студенческое общежитие все же встречаются. С музеем в определенном смысле было сложнее, т.к. для него было необходимо создать качественное общественное пространство. Им стал атриум, «вырезанный» архитекторами в форме овала – зерна – из части силосных корпусов: его высота – 27 метров, объем – 4600 м3. Стенки корпусов толщиной всего 170 мм частично укрепили новыми бетонными рукавами-вкладками (в итоге толщина выросла до 420 мм), а линию среза отполировали, чтобы подчеркнуть разницу между старой и обновленной фактурой. Верх «атриумных» цилиндров остеклили: они составляют большую часть поверхности сада скульптур, открытого на крыше музея. Поверхность стекла для защиты от солнечных лучей покрыта фриттованным узором по мотивам «Космического алфавита» африканского художника Эль Локо.
 
Музей современного африканского искусства Цайца © Iwan Baan
Музей современного африканского искусства Цайца © Iwan Baan
Музей современного африканского искусства Цайца © Iwan Baan
Музей современного африканского искусства Цайца © Iwan Baan
Сад скульптур на крыше музея © Antonia Steyn
Сад скульптур на крыше музея © Antonia Steyn

Стенки остальных силосных корпусов в интерьере были убраны, вместо них появились 80 нейтральных залов общей площадью 6000 м2. В подземных тоннелях будут показывать созданные специально для них художественные произведения.
 
Зал с серией работ Сайруса Кабиру «Мачо №№ 01-25» © Antonia Steyn
Зал с серией работ Сайруса Кабиру «Мачо №№ 01-25» © Antonia Steyn
Центр видео © Antonia Steyn
Центр видео © Antonia Steyn
Зал с работами Занеле Мухоли © Antonia Steyn
Зал с работами Занеле Мухоли © Antonia Steyn

Рабочая башня элеватора по своим пропорциям не подходила для превращения в художественную галерею, поэтому ее использовали как маяк: верхнюю часть ее стен заменили на выпуклые стеклянные панели, напоминающие о фонарях из венецианского стекла.
 
Музей современного африканского искусства Цайца © Iwan Baan
Музей современного африканского искусства Цайца © Iwan Baan

Новый музей общей площадью 9500 м2 и высотой в девять этажей, кроме выставочных залов и атриума, включает в себя помещения Института костюма, центров фотографии, видео, кураторства, перформанса и художественного образования. Также там есть запасник, реставрационные мастерские, книжный магазин, читальные залы, бар и ресторан. Бюджет проекта – 500 млн рандов (30 млн фунтов).
Музей современного африканского искусства Цайца © Iwan Baan
Музей современного африканского искусства Цайца © Iwan Baan
Музей современного африканского искусства Цайца © Iwan Baan
Музей современного африканского искусства Цайца © Iwan Baan
Музей современного африканского искусства Цайца
Музей современного африканского искусства Цайца
Фотография © Iwan Baan
Музей современного африканского искусства Цайца © Iwan Baan
Музей современного африканского искусства Цайца © Iwan Baan
Музей современного африканского искусства Цайца © Iwan Baan
Музей современного африканского искусства Цайца © Iwan Baan
Сад скульптур на крыше музея © Antonia Steyn
Сад скульптур на крыше музея © Antonia Steyn
Сад скульптур на крыше музея © Antonia Steyn
Сад скульптур на крыше музея © Antonia Steyn
Центр видео © Antonia Steyn
Центр видео © Antonia Steyn
Зал с инсталляцией Кендалла Гирса «Висящее произведение» © Antonia Steyn
Зал с инсталляцией Кендалла Гирса «Висящее произведение» © Antonia Steyn
Музей современного африканского искусства Цайца © Heatherwick Studio
Музей современного африканского искусства Цайца © Heatherwick Studio
Музей современного африканского искусства Цайца © Heatherwick Studio
Музей современного африканского искусства Цайца © Heatherwick Studio
Музей современного африканского искусства Цайца © Heatherwick Studio
Музей современного африканского искусства Цайца © Heatherwick Studio
Музей современного африканского искусства Цайца © Heatherwick Studio
Музей современного африканского искусства Цайца © Heatherwick Studio
Музей современного африканского искусства Цайца © Heatherwick Studio
Музей современного африканского искусства Цайца © Heatherwick Studio
Музей современного африканского искусства Цайца © Heatherwick Studio
Музей современного африканского искусства Цайца © Heatherwick Studio
Музей современного африканского искусства Цайца © Heatherwick Studio
Музей современного африканского искусства Цайца © Heatherwick Studio
Музей современного африканского искусства Цайца © Heatherwick Studio
Музей современного африканского искусства Цайца © Heatherwick Studio
Музей современного африканского искусства Цайца © Heatherwick Studio
Музей современного африканского искусства Цайца © Heatherwick Studio
Музей современного африканского искусства Цайца © Heatherwick Studio
Музей современного африканского искусства Цайца © Heatherwick Studio
Музей современного африканского искусства Цайца © Heatherwick Studio
Музей современного африканского искусства Цайца © Heatherwick Studio
Музей современного африканского искусства Цайца © Heatherwick Studio
Музей современного африканского искусства Цайца © Heatherwick Studio
Музей современного африканского искусства Цайца © Heatherwick Studio
Музей современного африканского искусства Цайца © Heatherwick Studio