Размещено на портале Архи.ру (www.archi.ru)

05.09.2017

Зеленая долина

Нина Фролова
Объект:
Комплекс Valley
Адрес:
Нидерланды, None, Амстердам.
Мастерская:
MVRDV

В Амстердаме начато строительство комплекса Valley по проекту бюро MVRDV.

Комплекс Valley
Комплекс Valley
© Vero Visuals

Здание с общественным нижним ярусом, семью этажами офисов и завершающими его 196 квартирами появится в амстердамском районе Зёйдас, важнейшем деловом центре Нидерландов. Там преобладает офисная застройка, и комплекс Valley девелопера OVG Real Estate призван выровнять этот функциональный перекос.
 
Комплекс Valley
Комплекс Valley
© Vero Visuals

Достигающий высоты 100 м комплекс получит множество общественных и частных озелененных террас: их дизайном займется специалист по садам Пит Аудолф. Растения будут высажены в вазоны с автоматическим поливом, продуманный подбор видов обеспечит зданию зеленый облик круглый год.
 
Комплекс Valley
Комплекс Valley
© Vero Visuals

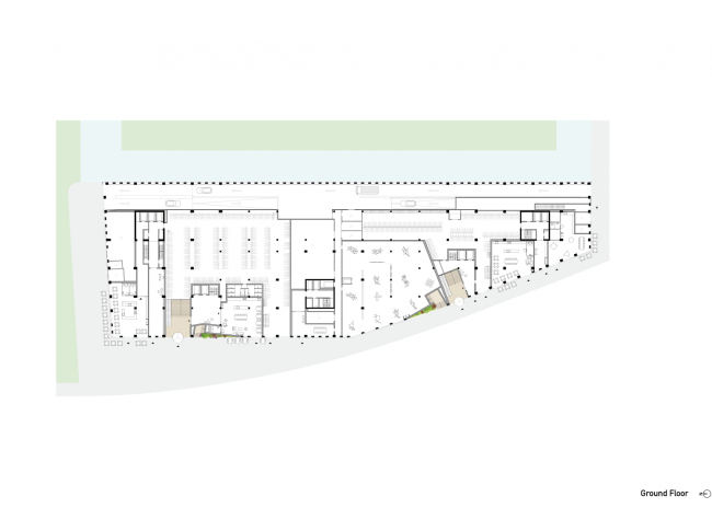
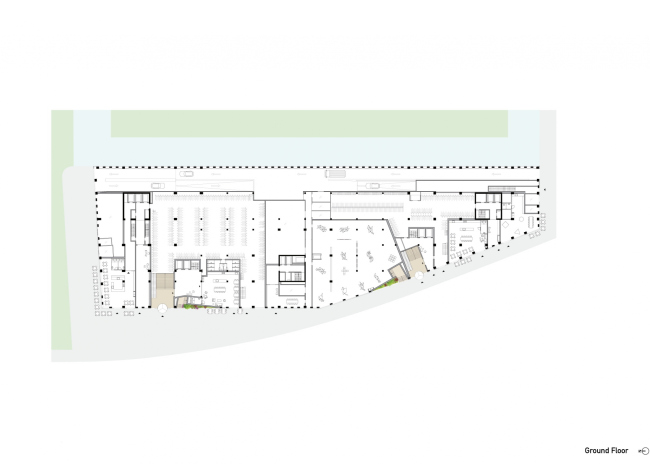
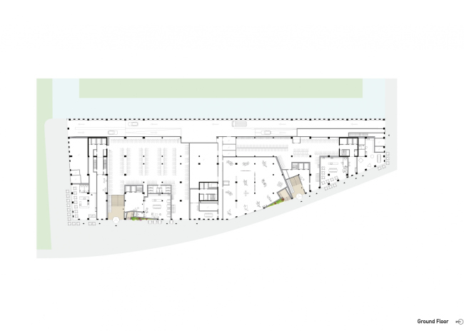
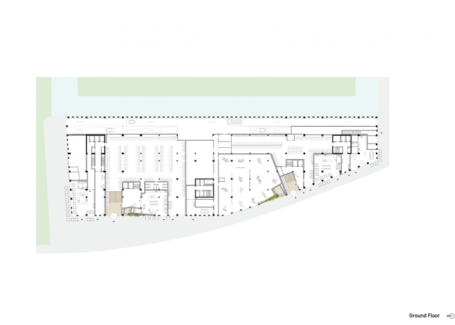
В проекте очень сильна общественная функция: с уровня улицы по террасам мимо кафе и магазинов до уровня четвертого и пятого этажа проложат пешеходный путь, завершающийся в зеленой «долине», давшей название всему комплексу. На первом этаже расположится вход в «грот», большой облицованный природным камнем зал, освещенный через два фонаря – на самом деле, стеклянные днища двух бассейнов в «долине». Он станет гостиной для жильцов и фойе для расположенных в Valley культурных и коммерческих учреждений. На самом верху постройки поместят двухъярусный SkyBar с панорамными видами на Амстердам.
 
Комплекс Valley
Комплекс Valley
@ MVRDV

К улице комплекс будет обращен остекленным «корпоративным» фасадом, остальные его части с террасами получат облицовку из природного камня. Сложный профиль постройки получен с помощью специально разработанной MVRDV и Arup параметрической программы: он учитывает оптимальный объем естественного света и солнечного жара, защиту частных пространств от взглядов посторонних, устойчивость конструкции и т.д. Кроме того, благодаря такой сложной конфигурации у каждой квартиры – уникальная планировка.
 
Комплекс Valley
Комплекс Valley
© MVRDV

Офисные этажи получат панорамное остекление и полные солнечного света пространства. На жилых уровнях запланированы большие открывающиеся окна и раздвижные двери на террасы, защищенные от ветра и уличного шума стеклянным ограждением. Также в комплексе общей площадью 75 000 м2 будет трехъярусная подземная парковка на 375 машин. Завершение строительства запланировано на лето 2021.
Комплекс Valley
Комплекс Valley
@ MVRDV
Комплекс Valley
Комплекс Valley
@ MVRDV
Комплекс Valley
Комплекс Valley
@ MVRDV
Комплекс Valley
Комплекс Valley
@ MVRDV
Комплекс Valley
Комплекс Valley
@ MVRDV
Комплекс Valley
Комплекс Valley
@ MVRDV
Комплекс Valley
Комплекс Valley
@ MVRDV
Комплекс Valley
Комплекс Valley
@ MVRDV
Комплекс Valley
Комплекс Valley
@ MVRDV
Комплекс Valley
Комплекс Valley
@ MVRDV
Комплекс Valley
Комплекс Valley
@ MVRDV