Размещено на портале Архи.ру (www.archi.ru)

20.09.2017

Британка-2017: лучшее

Программу BA (Hons) Interior Architecture and Design БВШД часто путают с курсом по дизайну интерьеров. Тем не менее архитектурная составляющая для нее – ключевая. Мы поговорили с архитекторами-преподавателями Британки, попросили рассказать об особенностях программы и показать, над чем работают студенты.

Бакалавриат Interior Architecture and Design БВШД в Индии. Фотография предоставлена БВШД
Бакалавриат Interior Architecture and Design БВШД в Индии. Фотография предоставлена БВШД

Кураторы программы BA (Hons)
Interior Architecture & Design – Джозеф Ван дер Стин, Джеймс О’Брайан: 


«Четкая грань между внешним и внутренним размывается в отношении комнаты к зданию, здания к кварталу, квартала к району и района к городу, экстерьер и интерьер становятся непрерывной составляющей сложной неоднородной городской структуры. Мы учим студентов критически рассматривать город, изучать его, принимая вызов контекста и учитывая современный глобальный архитектурный дискурс, а также вдохновляться локальной историей. В рамках учебных проектов исследуются возможности адаптации и программирования зданий в постоянно меняющейся городской среде. Сложность сочетания истории и культуры, политики и экономики, общества и города формируют особенный, интересный для изучения контекст. На программе затрагивается два основополагающих вопроса: Что такое правильное здание и каков его потенциал? Каким образом правильное здание может качественно изменить городскую среду?
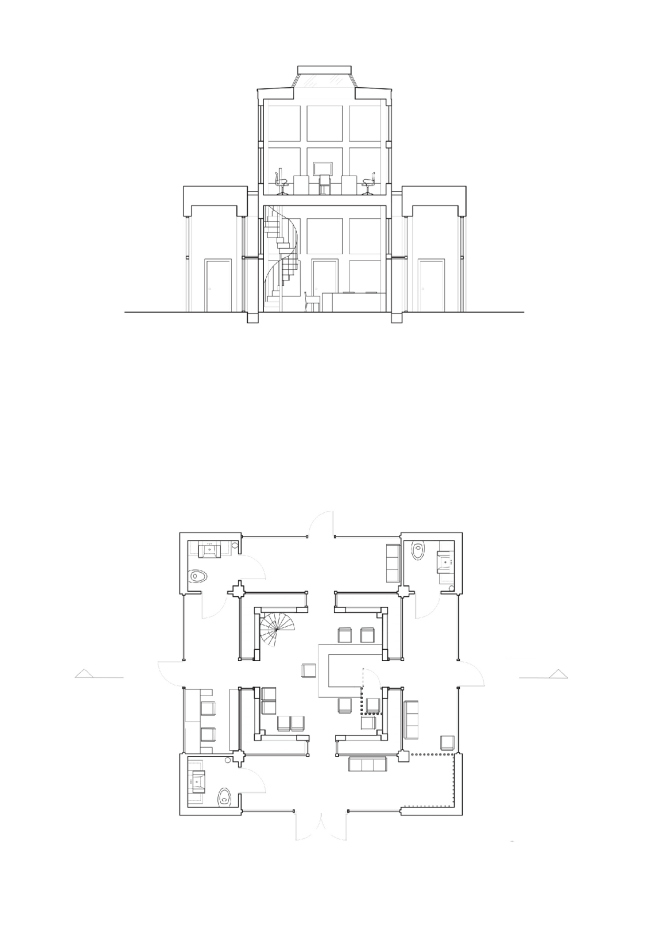
Баня 1 к 1. Фотография предоставлена БВШД
Баня 1 к 1. Фотография предоставлена БВШД

В 2016-17 учебном году наши проектные студии трех курсов бакалавриата исследовали различные по масштабу и сложности, характерные пространства Москвы:

– первый курс занимался осмыслением базовых функций и форм, того, как пользователь и архитектор влияют на них. Двигаясь от простого к сложному, студенты смогли ощутить различные масштабы пространств и узнать принципиальные методы работы с ними.

– второкурсники рассматривали проблемы пористости «закупоренности» Москвы на примере «недостроев», неиспользуемых и заброшенных зданий, среди которых оказалась забытая жемчужина конструктивизма – рабочий клуб завода «Серп и Молот» по проекту Игнатия Милиниса.

– третий курс изучал потенциал сохранения и адаптации зданий и неосвоенных территорий, спальных районов и промышленных зон вокруг МЦК в контексте неминуемого сноса и уничтожения памяти места».
***

Выставка Interior Architecture and Design БВШД. Фотография предоставлена БВШД
Выставка Interior Architecture and Design БВШД. Фотография предоставлена БВШД
Макет кровли. Фотография предоставлена БВШД
Макет кровли. Фотография предоставлена БВШД
Изготовление макета кровли в процессе. Фотография предоставлена БВШД
Изготовление макета кровли в процессе. Фотография предоставлена БВШД
Макет перголы. Фотография предоставлена БВШД
Макет перголы. Фотография предоставлена БВШД
Павильоны для keune. Фотография предоставлена БВШД
Павильоны для keune. Фотография предоставлена БВШД
Павильоны для keune. Фотография предоставлена БВШД
Павильоны для keune. Фотография предоставлена БВШД
Печка. Фотография предоставлена БВШД
Печка. Фотография предоставлена БВШД
Печка в процессе строительства. Фотография предоставлена БВШД
Печка в процессе строительства. Фотография предоставлена БВШД
Строительство портика. Фотография предоставлена БВШД
Строительство портика. Фотография предоставлена БВШД
Павильоны для keune. Фотография предоставлена БВШД
Павильоны для keune. Фотография предоставлена БВШД
Стройка keune. Фотография предоставлена БВШД
Стройка keune. Фотография предоставлена БВШД
Процесс проектирования. Фотография предоставлена БВШД
Процесс проектирования. Фотография предоставлена БВШД
Первый курс
В рамках первого модуля «Representing Space» студенты знакомятся с пространством как главным материалом и основными конвенциями его репрезентации.
Франциска Дедерер, 1 курс БВШД. Пространство вестибюля станции метро “Автозаводская”. Изображение предоставлено БВШД
Франциска Дедерер, 1 курс БВШД. Пространство вестибюля станции метро “Автозаводская”. Изображение предоставлено БВШД

Второй модуль «Anatomy of Space» посвящен осознанию пространства как многогранного концепта, связанного не только с объемом, но и с другими физическими и метафизическими аспектами. Серия заданий, помогающих воспринять и опробовать архитектуру как процесс, как череду исследований и размышлений, открывающих мыслительную и гуманитарную сторону профессии – взаимосвязь архитектуры с культурным, социальным и политическим контекстами. В рамках «Anatomy of Space» студенты впервые сталкиваются с фигурой заказчика, которого они должны найти, для того чтобы придумать для него сначала многофункциональный предмет мебели, а затем организовать вокруг него и всё жилое пространство, основываясь на пожеланиях заказчика.
Изготовление макета. Фотография предоставлена БВШД
Изготовление макета. Фотография предоставлена БВШД
Франциска Дедерер, 1 курс БВШД.
Жилище. Вид в окружении. Изображение предоставлено БВШД
Франциска Дедерер, 1 курс БВШД. Жилище. Вид в окружении. Изображение предоставлено БВШД
Кристина Микрюкова, 1 курс БВШД. Многофункциональный предмет мебели. Изображение предоставлено БВШД
Кристина Микрюкова, 1 курс БВШД. Многофункциональный предмет мебели. Изображение предоставлено БВШД

Оят Шукуров, ведущий преподаватель BA (Hons) Interior Architecture and Design: «Важное место в первом семестре занимает воркшоп под названием «Introducing Materiality», посвященный изучению строительных практик. Он состоит из двух частей, сначала студенты изучают фрагмент существующей постройки, вычерчивая ее и создавая ее макет, стараясь отразить методы возведения и узлы с наибольшим количеством подробностей. Во второй части этого модуля, студенты знакомятся с кирпичной кладкой, видами кирпича и растворов, типами швов и штукатурок. Результат этого модуля – кирпичные колонны спроектированные и возведенные студентами».
Франциска Дедерер, 1 курс БВШД.   Интерьерные виды жилища. Изображение предоставлено БВШД
Франциска Дедерер, 1 курс БВШД. Интерьерные виды жилища. Изображение предоставлено БВШД
Воркшоп под названием «Introducing Materiality». Фотография предоставлена БВШД
Воркшоп под названием «Introducing Materiality». Фотография предоставлена БВШД

Во втором семестре, уже имея представления о базовых этапах проектной работы, техниках рисунка, черчения и изготовления макетов, студенты приступают к третьему модулю, «Serious Play», на который отведен целый семестр. Если предыдущий модуль сконцентрирован на переходе от объекта к пространству, содержащему его, и единственной их функции – жилой, то в этом модуле студенты берутся за преобразования того или иного участка в городе, состоящего из множества пространств, имеющих разные функции. Цель семестра не только углубить и расширить знания, полученные ранее, но и осознать пространство, как сложную систему взаимодействующих субъектов, и найти пути его трансформации.
Воркшоп под названием «Introducing Materiality». Фотография предоставлена БВШД
Воркшоп под названием «Introducing Materiality». Фотография предоставлена БВШД

В этом учебном году студенты занимались изучением возможностей преобразования гаражного кооператива в маленькое самодостаточное селение.

Между членами группы были распределены базовые функции (мэрия, полиция, библиотека, банк, медицинское заведение, пекарня, крематорий и т.д.), которые каждый студент должен был исследовать и, после размышлений о природе той или иной функции, найти в обсуждении с группой место для своего объекта и выработать программу для него, после чего объект спроектировать.
Групповой макет гаражного кооператива с интервенциями для модуля “Serious Play”. Фотография предоставлена БВШД
Групповой макет гаражного кооператива с интервенциями для модуля “Serious Play”. Фотография предоставлена БВШД
Работа 1 курса бакалавриата Interior Architecture and Design БВШД. Изображение предоставлено БВШД
Работа 1 курса бакалавриата Interior Architecture and Design БВШД. Изображение предоставлено БВШД
Работа Юлии Осиной, студентки 1 курса бакалавриата Interior Architecture and Design БВШД. Изображение предоставлено БВШД
Работа Юлии Осиной, студентки 1 курса бакалавриата Interior Architecture and Design БВШД. Изображение предоставлено БВШД
Работа Юлии Осиной, студентки 1 курса бакалавриата Interior Architecture and Design БВШД. Изображение предоставлено БВШД
Работа Юлии Осиной, студентки 1 курса бакалавриата Interior Architecture and Design БВШД. Изображение предоставлено БВШД
Работа 1 курса бакалавриата Interior Architecture and Design БВШД. Изображение предоставлено БВШД
Работа 1 курса бакалавриата Interior Architecture and Design БВШД. Изображение предоставлено БВШД
Второй курс
Обращаясь к Вальтеру Беньямину и к категории «пористости», мы считаем, что московские городские «поры» сильно забиты. Бриф предлагает студентам поразмышлять о «восстановлении пористости» Москвы. Студентам необходимо найти и идентифицировать «забитые поры» города, тщательно изучить их, сформулировать проблему в результате анализа, а затем прийти к комплексному проектному решению, которое позволяет «включить» эти пространства, вернуть их городу.

Структура брифа методично и последовательно комбинирует теорию с практикой, исследование и проектирование, одновременно с этим, поставленные задачи симулируют действительные проектные этапы, изложенные в стандартах и рекомендациях RIBA. Учебный модуль и бриф рассчитан на развитие у студентов критических и аналитических навыков, а также различных техник репрезентации.

Михаил Микадзе, ведущий преподаватель BA (Hons) Interior Architecture and Design:
«Город для нас есть некое первичное внутреннее пространство для спора и изучения. В частности нас интересуют метаморфозы городского пространства, поэтому мы со студентами внимательно исследуем потенциал существующих морфем Москвы, будь то первые этажи жилых домов, заброшенные или неиспользуемые здания, объекты инфраструктуры и иные, так называемые, «городские неудобья».

Первым делом мы просим студентов заняться фланерством по, казалось бы, известному им пространству и попытаться в процессе этого «проживания» по-новому взглянуть на привычное, прочувствовать характер пространства и отношение между человеком и средой его обитания. Результатом фланерства является обнаружение городской «закупоренности», будь то недострой из 90-ых, ничего не производящий завод или же заколоченный объект культурного наследия. Следующим этапом исследования студенты рассматривают эти здания или пространства с точки зрения ценностей как общекультурных так и непосредственно личных. Нам интересно рассматривать Москву сквозь призму формулы Лефевра «право на город», где центральным моментом является право на изменение сложившегося порядка вещей – в сторону лучшего порядка.

Таким образом, постепенно погружаясь в процесс понимания пространства через поиск и вырабатывание субъективного нарратива и происходит формирование критического мышления – краеугольного камня всей профессиональной деятельности, что, в свою очередь, приводит к проектам осмысленным, ответственным и прочувствованным».
***

СЕРП И МОЛОТ Архитектурная Институция
Александра Ивашкевич
Проект Александры Ивашкевич, 2 курс БВШД. 
СЕРП И МОЛОТ Архитектурная Институция. Изображение предоставлено БВШД
Проект Александры Ивашкевич, 2 курс БВШД. СЕРП И МОЛОТ Архитектурная Институция. Изображение предоставлено БВШД

Клуб рабочих завода «Серп и Молот» является ярчайшим примером беспощадности времени и безответственности нашего общества. Крайне симптоматично, что памятник авангарда, выявленный объект культурного наследия, охраняемый государством, превратился в руину. Первоначально, концепция культурного комплекса была задумана и спроектирована Игнатием Милинисом в 1927-33 гг. «Серп и Молот» стал отражением ключевых принципов конструктивизма: свободная планировка, крупное ленточное остекление, приподнятый на пилонах первый этаж, открытые террасы на крыше. Комплекс являлся манифестом возрождения плановой экономики во время первого Пятилетнего плана. Здание претерпело существенные изменения в ходе реконструкции 50-х годов: фасады и интерьеры были украшены пилястрами, розеттами и другими несвойственными архитектуре авангарда деталями. В 70-х пространство между пилонами было застроено дополнительными помещениями. А в самом начале 21-го века интерьер был практически полностью разрушен. В данный момент, лишь полуциркульный портик намекает на былое величие архитектуры авангарда.

Воссозданный на основе бывшего клуба рабочих завода «Серп и Молот» архитектурный институт наследует традиции двух либеральных школ: UNAM и Black Mountain College, которые отстаивали свободу мысли, самовыражение, повышали уровень компетентности, опираясь на практический опыт работы. Проект архитектурной институции состоит из четырех основополагающих частей целого: теории, практики, этики и политики. Ядром данного проекта является существование архитектурной практики на кампусе. Обычно закрытое для широкой аудитории бюро превращается в доброжелательную, открытую рабочую среду, интегрирующую теорию с непосредственной практикой. Вопрос взаимодействия архитектуры и общества отражается в открытых общественных пространствах проектируемой институции, позволяющих проводить открытые презентации, встречи, лекции и другие публичные мероприятия. Проект кампуса также предусматривает жилой корпус, предоставляющий возможность постоянного пребывания в архитектурной среде.
Проект Александры Ивашкевич, 2 курс БВШД. 
СЕРП И МОЛОТ Архитектурная Институция. Изображение предоставлено БВШД
Проект Александры Ивашкевич, 2 курс БВШД. СЕРП И МОЛОТ Архитектурная Институция. Изображение предоставлено БВШД
Проект Александры Ивашкевич, 2 курс БВШД.
СЕРП И МОЛОТ Архитектурная Институция. Интерьер. Изображение предоставлено БВШД
Проект Александры Ивашкевич, 2 курс БВШД. СЕРП И МОЛОТ Архитектурная Институция. Интерьер. Изображение предоставлено БВШД
Проект Александры Ивашкевич, 2 курс БВШД. 
СЕРП И МОЛОТ Архитектурная Институция. Интерьер. Изображение предоставлено БВШД
Проект Александры Ивашкевич, 2 курс БВШД. СЕРП И МОЛОТ Архитектурная Институция. Интерьер. Изображение предоставлено БВШД
Проект Александры Ивашкевич, 2 курс БВШД. 
СЕРП И МОЛОТ Архитектурная Институция. Изображение предоставлено БВШД
Проект Александры Ивашкевич, 2 курс БВШД. СЕРП И МОЛОТ Архитектурная Институция. Изображение предоставлено БВШД
Проект Александры Ивашкевич, 2 курс БВШД. 
СЕРП И МОЛОТ Архитектурная Институция. Фото детали. Изображение предоставлено БВШД
Проект Александры Ивашкевич, 2 курс БВШД. СЕРП И МОЛОТ Архитектурная Институция. Фото детали. Изображение предоставлено БВШД
Проект Александры Ивашкевич, 2 курс БВШД. 
СЕРП И МОЛОТ Архитектурная Институция. Мастер-план. Изображение предоставлено БВШД
Проект Александры Ивашкевич, 2 курс БВШД. СЕРП И МОЛОТ Архитектурная Институция. Мастер-план. Изображение предоставлено БВШД
Проект Александры Ивашкевич, 2 курс БВШД. 
СЕРП И МОЛОТ Архитектурная Институция. Ситуационный макет. Изображение предоставлено БВШД
Проект Александры Ивашкевич, 2 курс БВШД. СЕРП И МОЛОТ Архитектурная Институция. Ситуационный макет. Изображение предоставлено БВШД
Проект Александры Ивашкевич, 2 курс БВШД. 
СЕРП И МОЛОТ Архитектурная Институция. Отпечатки памяти. Изображение предоставлено БВШД
Проект Александры Ивашкевич, 2 курс БВШД. СЕРП И МОЛОТ Архитектурная Институция. Отпечатки памяти. Изображение предоставлено БВШД
Проект Александры Ивашкевич, 2 курс БВШД. 
СЕРП И МОЛОТ Архитектурная Институция. Макет. Изображение предоставлено БВШД
Проект Александры Ивашкевич, 2 курс БВШД. СЕРП И МОЛОТ Архитектурная Институция. Макет. Изображение предоставлено БВШД
Проект Александры Ивашкевич, 2 курс БВШД. 
СЕРП И МОЛОТ Архитектурная Институция. Концепция. Изображение предоставлено БВШД
Проект Александры Ивашкевич, 2 курс БВШД. СЕРП И МОЛОТ Архитектурная Институция. Концепция. Изображение предоставлено БВШД
Проект Александры Ивашкевич, 2 курс БВШД. 
СЕРП И МОЛОТ Архитектурная Институция. Аксонометрия. Изображение предоставлено БВШД
Проект Александры Ивашкевич, 2 курс БВШД. СЕРП И МОЛОТ Архитектурная Институция. Аксонометрия. Изображение предоставлено БВШД
Проект Александры Ивашкевич, 2 курс БВШД. 
СЕРП И МОЛОТ Архитектурная Институция. Разрез 1. Изображение предоставлено БВШД
Проект Александры Ивашкевич, 2 курс БВШД. СЕРП И МОЛОТ Архитектурная Институция. Разрез 1. Изображение предоставлено БВШД
Проект Александры Ивашкевич, 2 курс БВШД. 
СЕРП И МОЛОТ Архитектурная Институция. Разрез 2. Изображение предоставлено БВШД
Проект Александры Ивашкевич, 2 курс БВШД. СЕРП И МОЛОТ Архитектурная Институция. Разрез 2. Изображение предоставлено БВШД
***

Культурный центр и архив
Полина Муравинская
Проект Полины Муравинской, 2 курс БВШД.  Культурный центр и архив. Изображение предоставлено БВШД
Проект Полины Муравинской, 2 курс БВШД. Культурный центр и архив. Изображение предоставлено БВШД

«Человек смертен, и его единственная возможность стать бессмертным состоит в том, чтобы оставить после себя нечто бессмертное», – Уильям Фолкнер.

Недостроенный гаражный комплекс на улице Большая Декабрьская 11 находится между Армянским и Ваганьковским кладбищем в жилом районе на северо-западе Москвы. Этот объект является уникальным, так как является барьером между «жизнью» и «смертью» в эмоциональном и физическом плане, где «смерть» – это кладбище, а «жизнь» – это жилой район по соседству. Для предотвращения приближения кладбища к жилой среде, снос здания абсолютно исключен. Общей концепцией проекта стала тема Жизни, Смерти и Бессмертия. Согласно этой концепции Культурный центр и архив – это место процессов, которые можно описать, как бессмертные: информация и воспоминания, собранные в архиве, а также результаты творческой и научной деятельности, проходящие в центре, и есть воплощение бессмертия.

Культурный центр и архив является плавным переходом между двумя контрастными зонами, потому что он обладает как функционалом для посетителей кладбища, так и для обычных людей. В Центре есть цветочный магазин, который находится прямо напротив входа на кладбище. Он невидим для местных жителей, но удобно расположен для посетителей кладбища. В проекте также предусмотрено пространство для медитации, где люди могли бы провести время после посещения кладбища. Они также могут посетить библиотеку, архив и небольшое кафе, которые расположены на первом этаже культурного центра, или посетить мастер-классы, лекции и выставки, которые находятся на втором этаже. Посетители центра также могут подняться на террасу на третьем этаже или перейти в один из внутренних дворов, в которые есть выходы из каждого помещения центра. Проект также призван решить некоторые очевидные проблемы, вызванные недостроенным состоянием объекта. В частности, сделать удобный вход на кладбище и перевести все ритуальные услуги с первых этажей жилых зданий в этом районе.

Проект также предусматривает существенные изменения в существующей структуре здания. Без изменений были оставлены только коммуникационные узлы – лестницы и рампа, а также колонны, которые задают навигацию по зданию. Фасад здания, выходящий на кладбище, скрывает его пейзаж от посетителей. Первый этаж создает чувство защищённости за счёт минимального использования дневного света и аскетичности форм. Второй этаж является просторным с рассеянным мягким светом в течении всего дня. Площадь мастерских имеет систему мобильных перегородок, которые при необходимости делят одно большое пространство на несколько разных по размеру.
Проект Полины Муравинской, 2 курс БВШД. Культурный центр и архив. Изображение предоставлено БВШД
Проект Полины Муравинской, 2 курс БВШД. Культурный центр и архив. Изображение предоставлено БВШД
Проект Полины Муравинской, 2 курс БВШД. Культурный центр и архив. Изображение предоставлено БВШД
Проект Полины Муравинской, 2 курс БВШД. Культурный центр и архив. Изображение предоставлено БВШД
Проект Полины Муравинской, 2 курс БВШД.  Культурный центр и архив. Изображение предоставлено БВШД
Проект Полины Муравинской, 2 курс БВШД. Культурный центр и архив. Изображение предоставлено БВШД
Проект Полины Муравинской, 2 курс БВШД.  Культурный центр и архив. Изображение предоставлено БВШД
Проект Полины Муравинской, 2 курс БВШД. Культурный центр и архив. Изображение предоставлено БВШД
Проект Полины Муравинской, 2 курс БВШД.  Культурный центр и архив. Изображение предоставлено БВШД
Проект Полины Муравинской, 2 курс БВШД. Культурный центр и архив. Изображение предоставлено БВШД
Проект Полины Муравинской, 2 курс БВШД.  Культурный центр и архив. Изображение предоставлено БВШД
Проект Полины Муравинской, 2 курс БВШД. Культурный центр и архив. Изображение предоставлено БВШД
Проект Полины Муравинской, 2 курс БВШД.  Культурный центр и архив. Изображение предоставлено БВШД
Проект Полины Муравинской, 2 курс БВШД. Культурный центр и архив. Изображение предоставлено БВШД
Проект Полины Муравинской, 2 курс БВШД.  Культурный центр и архив. Изображение предоставлено БВШД
Проект Полины Муравинской, 2 курс БВШД. Культурный центр и архив. Изображение предоставлено БВШД
Проект Полины Муравинской, 2 курс БВШД.  Культурный центр и архив. Изображение предоставлено БВШД
Проект Полины Муравинской, 2 курс БВШД. Культурный центр и архив. Изображение предоставлено БВШД
Проект Полины Муравинской, 2 курс БВШД.  Культурный центр и архив. Изображение предоставлено БВШД
Проект Полины Муравинской, 2 курс БВШД. Культурный центр и архив. Изображение предоставлено БВШД
Проект Полины Муравинской, 2 курс БВШД.  Культурный центр и архив. Изображение предоставлено БВШД
Проект Полины Муравинской, 2 курс БВШД. Культурный центр и архив. Изображение предоставлено БВШД
Проект Полины Муравинской, 2 курс БВШД.  Культурный центр и архив. Изображение предоставлено БВШД
Проект Полины Муравинской, 2 курс БВШД. Культурный центр и архив. Изображение предоставлено БВШД
Проект Полины Муравинской, 2 курс БВШД.  Культурный центр и архив. Изображение предоставлено БВШД
Проект Полины Муравинской, 2 курс БВШД. Культурный центр и архив. Изображение предоставлено БВШД
***
Третий курс

Заключительный дипломный год обучения позволяет учащимся объединить все свои навыки для проведения широкого круга исследований и разработки комплексного архитектурного проекта. В этом году мы рассмотрели вопрос о размещении жилья и общественных пространств в промышленных зданиях 20-го века и порассуждали о том, как их повторное использование может служить основой того, как мы думаем о городе, о его наследии и общих стандартах жилья и пространства.

Наследие в последние годы все чаще становится ненужным современной Москве ввиду своей «несовременности», опускается вопрос последствий стирания памяти о городе. Таким образом наследие стало поляризованной темой в более широком контексте развития или регенерации города, нужно ли помнить о прошлом, чтобы двигаться в будущее?

В этом году мы сосредоточились на открытии MЦК и промышленных территорий, расположенных поблизости от новых станций на этой транспортной артерии. Интеграция этой железнодорожной линии в гражданскую инфраструктуру города, в отличие от промышленной сети, открывает потенциал для перестройки этих районов Москвы, которые в основном являются промышленными для жилья и общественных удобств.

Мы критически посмотрели на здания и дворы в этих районах, чтобы определить их потенциал для повторного использования с намерением предложить альтернативное мышление постоянному циклу сноса и реконструкции, который пронизывает любой город. Уделяя особое внимание определению наследия промышленной архитектуры 20-го века, мы активно пытаемся интегрировать существующий строительный фонд города в его идею о будущем.

Год был структурирован таким образом, чтобы каждый модуль мог быть интегрирован в тему дипломного проекта, чтобы создать единое синтетическое поле. В течение первого семестра через каждый модуль мы критически оценивали районы, в которых находилось здание, и составляли подробный индивидуальный отчет для каждого участка (модуль «Generator»), проводили технический осмотр и анализ зданий, рассматривали их структурное состояние и потенциал (модуль «Contemporary Technologies»), а также углублялись в теоретических аспектах, изучая интеллектуальные наработки в отношении жилья в течение всего 20-го века (модуль Degree Essay). Во втором семестре мы методично приступили к проектированию, тщательно тестируя и моделируя те или иные идеи. При работе со зданиями и прилегающими участками важно не только уловить характер этого пространства и артикулировать его, но также обеспечить современные стандарты жизни. Эти два условия не являются взаимоисключающими и с более критическим подходом к городу и тем, как мы можем восстановить наш существующий строительный фонд, получается интегрировать «память места» в будущее своего города. Это достигается с помощью концептуально выверенного и технически строгого процесса исследования и тестирования идей. Мы стремимся к проектным предложениям, которые сочетают архитектурное мышление с технической и инженерной реальностью. Так, проекты выпускников нашей программы, рассматривают проблему повторного использования зданий во всей полноте, принимая во внимание все разнообразие факторов влияющих на городское пространство и общество. 
***
Новая Хохловка
Евгения Хашимова

Проект Евгении Хашимовой, 3 курс БВШД. Новая Хохловка.  Анализ освещения существующего положения. Изображение предоставлено БВШД
Проект Евгении Хашимовой, 3 курс БВШД. Новая Хохловка. Анализ освещения существующего положения. Изображение предоставлено БВШД

С появлением МЦК, некоторые прилегающие индустриальные территории сразу же попали во внимание девелоперов, в то время как остальные все еще находятся в плачевном состоянии.

Один из таких примеров – Нижегородский район. В век индустриализации земля, принадлежащая деревне Хохловке, была полностью застроена фабриками и заводами, на смену деревенским жителям пришли рабочие, а напоминанием об историческом поселении осталось только название улицы.

Сегодня район, известный как самая крупная индустриальная территория города, по факту таковым не является, так как большинство предприятий уже заброшены. Люди, проживающие здесь, страдают от неудобств, связанных с градостроительным планом места, его изолированностью и нехватки простейших функций, необходимых для жизни.

Таким образом, целью проекта стал поиск возможностей развития территории так, чтобы она вписывалась в современный характер города, но при этом не потеряла и свой собственный.

Так как на территории полностью отсутствуют любые виды медицинских учреждений, было принято решение адаптировать выбранное место – заброшенную советскую прачечную – под жилой комплекс с функцией клиники на первых этажах.

Особенностью нового жилища стала цель вернуть дух общности, характерный как для деревенских жителей, так и для рабочего класса, посредством создания серии общественных и частных пространств.

Подобная система решит проблему разделения потоков, хаотичного наложения различного рода пространств друг на друга и в то же время поможет привнести дружественную, схожую с деревенской, атмосферу.

Ценность проекта заключается в том, что, сохраняя особенности пространств, с которыми мы работаем, более значимые и глобальные аспекты могут быть сохранены. То есть, попытки найти подход к уже существующей архитектуре и поиски путей для ее адаптации под новые функции, помогают людям, населяющим территории, продолжать сложившийся образ жизни и сохранять связь со своей культурой и историей.
Проект Евгении Хашимовой, 3 курс БВШД. Новая Хохловка. Вид из окна. Изображение предоставлено БВШД
Проект Евгении Хашимовой, 3 курс БВШД. Новая Хохловка. Вид из окна. Изображение предоставлено БВШД
Проект Евгении Хашимовой, 3 курс БВШД. Новая Хохловка. Внутренний двор. Изображение предоставлено БВШД
Проект Евгении Хашимовой, 3 курс БВШД. Новая Хохловка. Внутренний двор. Изображение предоставлено БВШД
Проект Евгении Хашимовой, 3 курс БВШД. Новая Хохловка. Галерея. Изображение предоставлено БВШД
Проект Евгении Хашимовой, 3 курс БВШД. Новая Хохловка. Галерея. Изображение предоставлено БВШД
Проект Евгении Хашимовой, 3 курс БВШД. Новая Хохловка. Коллаж. Изображение предоставлено БВШД
Проект Евгении Хашимовой, 3 курс БВШД. Новая Хохловка. Коллаж. Изображение предоставлено БВШД
Проект Евгении Хашимовой, 3 курс БВШД. Новая Хохловка. Макет (1:25). Изображение предоставлено БВШД
Проект Евгении Хашимовой, 3 курс БВШД. Новая Хохловка. Макет (1:25). Изображение предоставлено БВШД
Проект Евгении Хашимовой, 3 курс БВШД. Новая Хохловка. Макет существующего положения. Изображение предоставлено БВШД
Проект Евгении Хашимовой, 3 курс БВШД. Новая Хохловка. Макет существующего положения. Изображение предоставлено БВШД
Проект Евгении Хашимовой, 3 курс БВШД. Новая Хохловка. Макет. Изображение предоставлено БВШД
Проект Евгении Хашимовой, 3 курс БВШД. Новая Хохловка. Макет. Изображение предоставлено БВШД
Проект Евгении Хашимовой, 3 курс БВШД. Новая Хохловка. Мастер-план. Изображение предоставлено БВШД
Проект Евгении Хашимовой, 3 курс БВШД. Новая Хохловка. Мастер-план. Изображение предоставлено БВШД
Проект Евгении Хашимовой, 3 курс БВШД. Новая Хохловка. Макет существующего положения. Изображение предоставлено БВШД
Проект Евгении Хашимовой, 3 курс БВШД. Новая Хохловка. Макет существующего положения. Изображение предоставлено БВШД
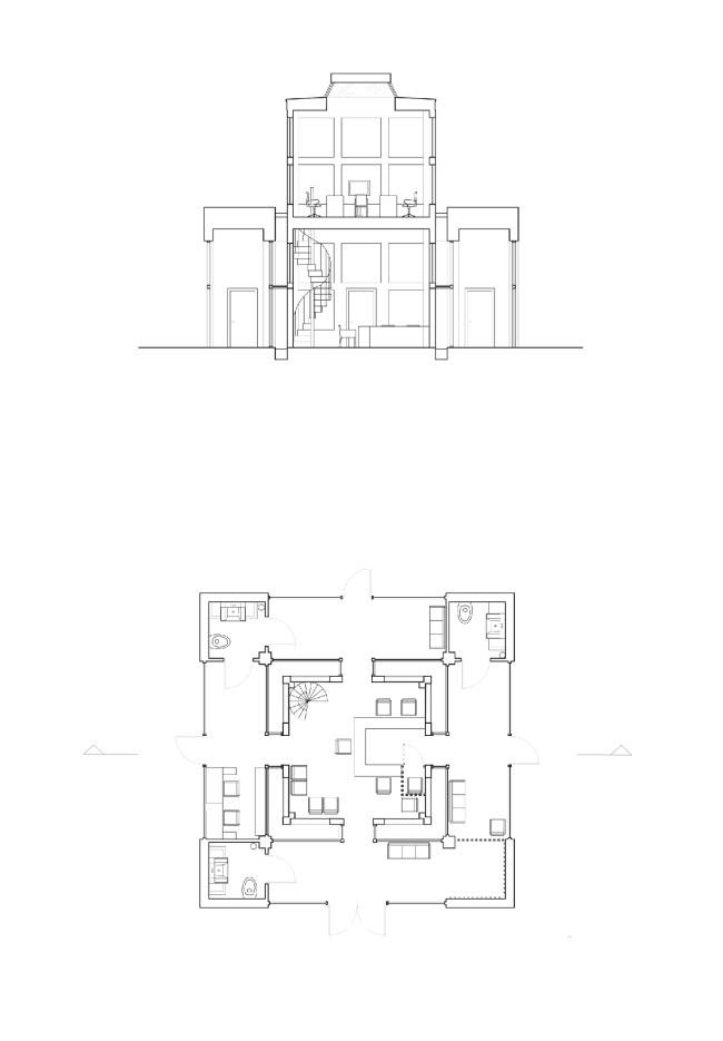
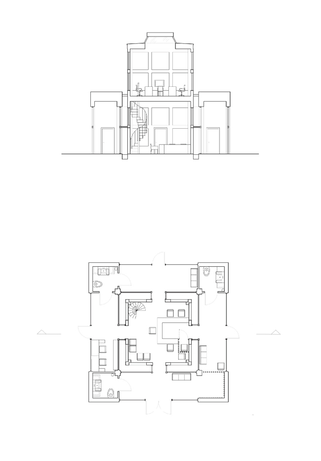
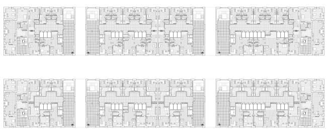
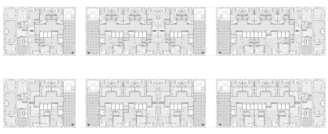
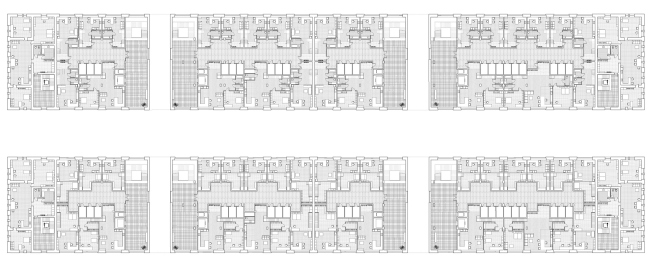
Проект Евгении Хашимовой, 3 курс БВШД. Новая Хохловка. Планировка квартиры. Изображение предоставлено БВШД
Проект Евгении Хашимовой, 3 курс БВШД. Новая Хохловка. Планировка квартиры. Изображение предоставлено БВШД
Проект Евгении Хашимовой, 3 курс БВШД. Новая Хохловка. Разрез через двор. Изображение предоставлено БВШД
Проект Евгении Хашимовой, 3 курс БВШД. Новая Хохловка. Разрез через двор. Изображение предоставлено БВШД
Проект Евгении Хашимовой, 3 курс БВШД. Новая Хохловка. Типовой жилой этаж. Изображение предоставлено БВШД
Проект Евгении Хашимовой, 3 курс БВШД. Новая Хохловка. Типовой жилой этаж. Изображение предоставлено БВШД
Проект Евгении Хашимовой, 3 курс БВШД.  Новая Хохловка. Первый этаж. Изображение предоставлено БВШД
Проект Евгении Хашимовой, 3 курс БВШД. Новая Хохловка. Первый этаж. Изображение предоставлено БВШД
Проект Евгении Хашимовой, 3 курс БВШД. Новая Хохловка. Существующее положение. Изображение предоставлено БВШД
Проект Евгении Хашимовой, 3 курс БВШД. Новая Хохловка. Существующее положение. Изображение предоставлено БВШД
Проект Евгении Хашимовой, 3 курс БВШД. Новая Хохловка. Ценности. Изображение предоставлено БВШД
Проект Евгении Хашимовой, 3 курс БВШД. Новая Хохловка. Ценности. Изображение предоставлено БВШД
Проект Евгении Хашимовой, 3 курс БВШД. Новая Хохловка. Ситуационный план. Изображение предоставлено БВШД
Проект Евгении Хашимовой, 3 курс БВШД. Новая Хохловка. Ситуационный план. Изображение предоставлено БВШД
***
Ростокинская фабрика Труд
Александра Ушакова
Проект Александры  Ушаковой, 3 курс БВШД. Ростокинская фабрика Труд.  Изображение предоставлено БВШД
Проект Александры Ушаковой, 3 курс БВШД. Ростокинская фабрика Труд. Изображение предоставлено БВШД

Создание общественной среды на территории Ростокинской фабрики меха – это формирование точки притяжения и интеграции жилых микрорайонов района Ростокино. Прежде всего – Это внедрение необходимой городской инфраструктуры для нынешних и будущих жителей, которое связано с развитием базовых услуг и появлением культурных и образовательных программ. Жилая часть проекта – это другой подход к проектированию апартаментов по сравнению с жилыми комплексами, которые в настоящее время находятся в стадии строительства вблизи самого района и в рамках МЦК. Величина пространства, высота потолков и количество дневного света уже существующей структуры фабричных зданий являются потенциальными преимуществами, на основе которых создается нетиповой дизайн квартир, а также достижение комфортности полузакрытых общественных пространств.
Проект Александры  Ушаковой, 3 курс БВШД. Ростокинская фабрика Труд.
 Визуализация двора. Изображение предоставлено БВШД
Проект Александры Ушаковой, 3 курс БВШД. Ростокинская фабрика Труд. Визуализация двора. Изображение предоставлено БВШД
Проект Александры  Ушаковой, 3 курс БВШД. Ростокинская фабрика Труд. 
 Визуализация квартиры. Изображение предоставлено БВШД
Проект Александры Ушаковой, 3 курс БВШД. Ростокинская фабрика Труд. Визуализация квартиры. Изображение предоставлено БВШД
Проект Александры  Ушаковой, 3 курс БВШД. Ростокинская фабрика Труд.  
 Коммунальное пространство. Изображение предоставлено БВШД
Проект Александры Ушаковой, 3 курс БВШД. Ростокинская фабрика Труд. Коммунальное пространство. Изображение предоставлено БВШД
Проект Александры  Ушаковой, 3 курс БВШД. Ростокинская фабрика Труд.  Мастер-план. Изображение предоставлено БВШД
Проект Александры Ушаковой, 3 курс БВШД. Ростокинская фабрика Труд. Мастер-план. Изображение предоставлено БВШД
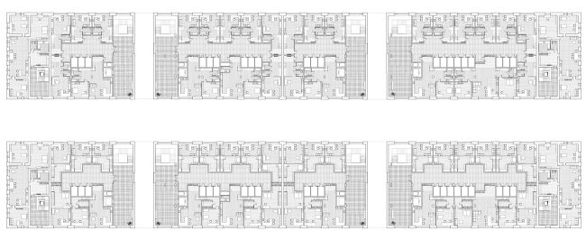
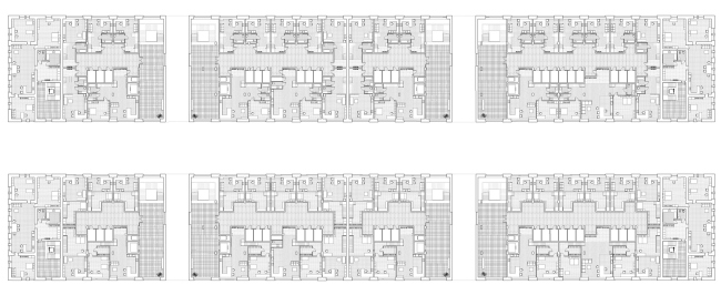
Проект Александры  Ушаковой, 3 курс БВШД. Ростокинская фабрика Труд. Планировки – жилой этаж. Изображение предоставлено БВШД
Проект Александры Ушаковой, 3 курс БВШД. Ростокинская фабрика Труд. Планировки – жилой этаж. Изображение предоставлено БВШД
Проект Александры  Ушаковой, 3 курс БВШД. Ростокинская фабрика Труд. Поиск. Изображение предоставлено БВШД
Проект Александры Ушаковой, 3 курс БВШД. Ростокинская фабрика Труд. Поиск. Изображение предоставлено БВШД
Проект Александры Ушаковой, 3 курс БВШД. Ростокинская фабрика Труд. Разрез. Изображение предоставлено БВШД
Проект Александры Ушаковой, 3 курс БВШД. Ростокинская фабрика Труд. Разрез. Изображение предоставлено БВШД
Проект Александры  Ушаковой, 3 курс БВШД. Ростокинская фабрика Труд. Ситуационный макет. Изображение предоставлено БВШД
Проект Александры Ушаковой, 3 курс БВШД. Ростокинская фабрика Труд. Ситуационный макет. Изображение предоставлено БВШД
Проект Александры  Ушаковой, 3 курс БВШД. Ростокинская фабрика Труд. Существующее положение и зоны. Изображение предоставлено БВШД
Проект Александры Ушаковой, 3 курс БВШД. Ростокинская фабрика Труд. Существующее положение и зоны. Изображение предоставлено БВШД
Проект Александры  Ушаковой, 3 курс БВШД. Ростокинская фабрика Труд.
Топография местности. Изображение предоставлено БВШД
Проект Александры Ушаковой, 3 курс БВШД. Ростокинская фабрика Труд. Топография местности. Изображение предоставлено БВШД