Размещено на портале Архи.ру (www.archi.ru)

08.09.2017

Ракета на перекрестке

Мария Трошина
Объект:
Отель «Шератон» в Калуге
Адрес:
Россия, Калуга. ул. Академика Королева, 16
Мастерская:
Архитектурная мастерская "Линия"

История одного здания: гостиницу проектировали и строили больше 15 лет, за это время изменилась площадь и статус, но задуманный первоначально акцент остался неизменным.

Отель «Шератон» в Калуге, архитекторы Ольга и Евгений Голышевы. Фотография предоставлена ФСК «Лидер»
Отель «Шератон» в Калуге, архитекторы Ольга и Евгений Голышевы. Фотография предоставлена ФСК «Лидер»

Улица Гагарина – западная часть трапеции главных улиц города, спроектированных Петром Никитиным при Екатерине II. Улица входила в тройку главных калужских бульваров, на которые были нанизаны полукруглые площади; в советское время они превратились в автомобильные трассы, чему много способствовал построенный в 1965 (и замененный новым в 2008) мост через Оку. По Гагаринскому мосту мы въезжаем в Калугу со стороны Тулы и Перемышля, но сюда же ведет и путь из Москвы, от Киевского шоссе, так что улица Гагарина – один главный въезд в город. Здесь расположена парадная часть советской Калуги: слева музей истории космонавтики, справа стела в честь 600-летия города, дальше элитные многоэтажки розового кирпича – развитием главной части советской Калуги в 1960-е занимался тогдашний главный архитектор города Евгений Киреев. Он соавтор музея истории космонавтики, он же автор жилого дома (Гагарина, 8а) с арками и лестничными башнями крепостного вида. Он заложил и футуристический взгляд на город через призму фантазий Циолковского, и отдал дань романтической идее средневековой крепости в духе еще свежего в 1980-е постмодернизма.

улица Гагарина перед отелем Шератон, справа дом-стена Евгения Киреева:


Гостиница Sheraton Four Points стоит на границе парадно-советской и исторической части Калуги – на пересечении улиц Гагарина и Циолковского. Так что неудивительно, что входная часть отеля была задумана как ребристо-алюминиевая башня при въезде, похожая и на ступень ракеты, и на юбку-кринолин, на сноп каких-то упрямых растений и в то же время на крепостную башню, только не обычную, а из каких-нибудь неснятых «Звездных войн». Башня, с одной стороны, перекликается с музеем космонавтики и металлической стелой памятника, а с другой – продолжает «крепостную стену» дома Евгения Киреева.
Отель «Шератон» в Калуге © архитекторы Ольга и Евгений Голышевы
Отель «Шератон» в Калуге © архитекторы Ольга и Евгений Голышевы

Словом, башня Шератона – яркий акцент, отношение к нему в городе непростое, но и мимо пройти невозможно. К тому же отель – первый в России Sheraton, и самый большой представитель сети в СНГ. Таким ее сделал девелопер ФСК «Лидер», подключившись к строительству после 2012 и выбрав оператора.

Проектирование начал в 1999 архитектор Евгений Голышев, впоследствии в течение 3 лет, с февраля 2011 по август 2014, бывший главным архитектором Калуги. Евгения Голышева пригласила строительная компания «Монолит», которая занимается множеством проектов в городе и области.

По словам архитектора, главной идеей изобретенной им формы были ассоциации с ракетой и полетами в космос. «Я нарисовал проект за один вечер и сразу же придумал, каким образом можно его воплотить, используя монолитные конструкции», – рассказывает Евгений Голышев. Основа предложенной схемы – вертикальный ствол с лифтовой и вентиляционной шахтами; 14 балок с криволинейными осями создают жесткую конструкцию, что позволяло освободить этажи от колонн. Архитектору стоило немалых усилий убедить конструкторов, затем расчеты показали, что интуиция его не обманула. Кроме того, в начале 2000-х непросто было найти разработчика наклонной опалубки, но привлеченная к работе немецкая компания решила и эту проблему. Планировалось, что посетители будут попадать вначале в открытый двор, затем в атриум, куда выходили бы окна гостиничных номеров.

Особняк Аксаковых, расположенный в северо-восточной части территории на улице Гагарина обмерили и снесли за ветхостью, заменив копией с тремя воспроизведенными фасадами и новой начинкой; недавно на нем появилась мемориальная доска.
Отель «Шератон» в Калуге, архитекторы Ольга и Евгений Голышевы. Фотография предоставлена ФСК «Лидер»
Отель «Шератон» в Калуге, архитекторы Ольга и Евгений Голышевы. Фотография предоставлена ФСК «Лидер»
Отель «Шератон» в Калуге © архитекторы Ольга и Евгений Голышевы
Отель «Шератон» в Калуге © архитекторы Ольга и Евгений Голышевы

Параллельно с гостиницей, в 1999-2000, 2005-2007 и 2002-2006, Евгений Голышев проектировал и строил для СК «Монолит» несколько кварталов по обе стороны улицы Королева: от 5 этажей вдоль улицы до 10 этажей на углу. В этом же ключе был спроектирован квартал, прилегающий к гостинице: его строительство началось в 2007. Архитектор, таким образом, стал автором комплексной застройки целого района, решив его «из уважения к историческому окружению в ретро-стиле».

слева жилые дома Евгения Голышева, справа гостиница Шератон:


К 2008 году часть жилых домов была построена, часть – начата; началось и строительство гостиницы, но финансовый кризис скорректировал планы. Первой реакций СК «Монолит» на кризис было желание увеличить площадь гостиницы, пристроив корпус с юго-восточной стороны по улице Королева. «Он приглушил доминанту «ракеты», – признается архитектор, – хотелось оставить зазор между зданиями, чтобы при движении по улице постепенно раскрывалась идея главного здания – через башнеобразный объем задней части, через взбегающие по боковому фасаду ступени балконов, подчеркивающие общую устремленность ввысь. Но ситуация, в основном связанная с экономикой проекта, не позволила этого сделать. Хотя и в нынешнем положении есть плюс, который я вижу в эффекте неожиданности появления «пирамиды» для зрителя, движущегося вниз по улице Королева».

Затем, в основном из-за развития финансового кризиса, строительство и гостиницы, и пристройки, и ЖК дальше по южной линии улицы Королева было заморожено. Кроме того в 2011 Евгений Голышев, став главным архитектором города, отошел от проектирования, занявшись разработкой ПЗЗ и благоустройством территории.

Годом позже, в 2012 году, компания ФСК «Лидер», которая сотрудничала с СК «Монолит» с 2008 на жилом комплексе «Тайфун», заинтересовалась идеей строительства отеля высокого класса, так как гостиничный рынок Калуги был развит слабо и спрос на качественные отели в городе превышал предложение. Так что тендер, объявленный среди гостиничных операторов, привлек внимание крупнейших мировых сетей, таких как Hilton Hotels, Kempinski и Starwood Hotels & Resorts Worldwide Inc.

В том же году были озвучены планы по возведению в Калуге гостиницы Sheraton Four Points, принадлежащей корпорации Starwood, и работы на стройке возобновились. Главным архитектором проекта стала Ольга Голышева, сменившая ушедшего на повышение мужа – ей предстояло превратить недостроенный остов в гостиничный комплекс, соответствующий международным стандартам.
Отель «Шератон» в Калуге. В процессе строительства © архитекторы Ольга и Евгений Голышевы
Отель «Шератон» в Калуге. В процессе строительства © архитекторы Ольга и Евгений Голышевы

Расположение и изначально заложенная функция гостиницы были удачны, но для Шератона требовалось в три с половиной раза больше заложенных в проекте даже с учетом пристройки 4500 м2. Для того, чтобы получить искомые 16 000 м2 полезной площади, к гостинице присоединили участок недостроенного жилого комплекса, разобрав его фундаменты для строительства подземной парковки гостиницы. Впрочем часть заложенных проектных решений ЖК сохранилась: прежде всего, вынесенные вперед арочные галереи первых этажей с кафе и магазинами, оформленные с воспоминанием в калужских торговых рядах – во всяком случае, похожими декоративными псевдоготическими пинаклями. Собственно трасса улицы Королева, переходя в улицу Пушкина, а затем Баженова, мимо кремля и Троицкого собора ведет напрямик к торговым рядам (построенным Петром Никитиным, создавшим екатерининский генплан города). Так что говорящая деталь неслучайна.
Отель «Шератон» в Калуге, архитекторы Ольга и Евгений Голышевы. Фотография предоставлена ФСК «Лидер»
Отель «Шератон» в Калуге, архитекторы Ольга и Евгений Голышевы. Фотография предоставлена ФСК «Лидер»
Отель «Шератон» в Калуге. Фасад по ул. Академика Королева © архитекторы Ольга и Евгений Голышевы
Отель «Шератон» в Калуге. Фасад по ул. Академика Королева © архитекторы Ольга и Евгений Голышевы

Открытый двор в «ракете» заменили гостиничными номерами, получившими наклонные окна. Монолитно-бетонные балки выше 4 этажа заменили металлическими еще до 2012 года. Поскольку здание расширяли и приспосабливали, возникло достаточно много сложных решений. В частности, из-за высоты этажей 3,6 м инженерные коммуникации пришлось вынести в коридоры. В части, которая первоначально планировалась как жилой комплекс, за арками появились небольшие патио – открытые дворики, обеспечивающие гостям защиту от шума городской магистрали.
Отель «Шератон» в Калуге © архитекторы Ольга и Евгений Голышевы
Отель «Шератон» в Калуге © архитекторы Ольга и Евгений Голышевы
Фасад 28-1 © архитекторы Ольга и Евгений Голышевы
Фасад 28-1 © архитекторы Ольга и Евгений Голышевы
Отель «Шератон» в Калуге. Ситуационный план © архитекторы Ольга и Евгений Голышевы
Отель «Шератон» в Калуге. Ситуационный план © архитекторы Ольга и Евгений Голышевы

Над интерьерами Sheraton Four Points работала дизайнер Мария Сонне-Фредериксон. Мария работала ЦНИИЭП торгово-бытовых зданий и туристических комплексов, а затем в 1994 основала собственное бюро в Германии; для нее это был первый опыт работы с Sheraton. В гостинице 174 номера и 40 типов планировок; их требовалось унифицировать до пяти типов. Затем она же работала с интерьерами отелей сети Шератон в Шереметьево и в Саранске.

По отзывам останавливающихся в гостинице, особенной популярностью пользуются номера, расположенные за наклонным остеклением «ракеты» – окна, которые по первоначальному замыслу должны были служить для освещения двора. 
Отель «Шератон» в Калуге © архитекторы Ольга и Евгений Голышевы
Отель «Шератон» в Калуге © архитекторы Ольга и Евгений Голышевы
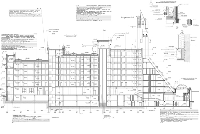
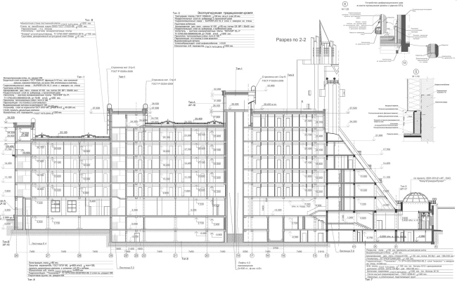
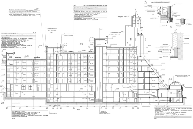
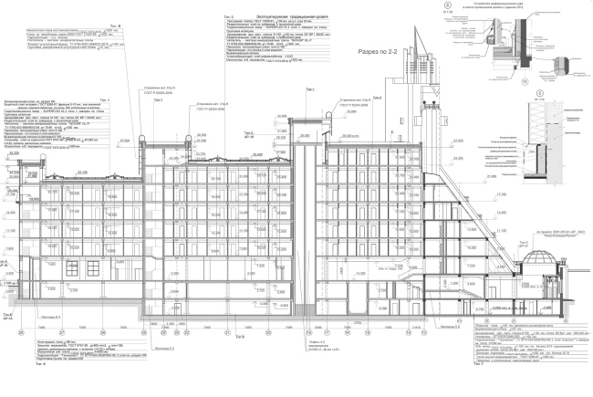
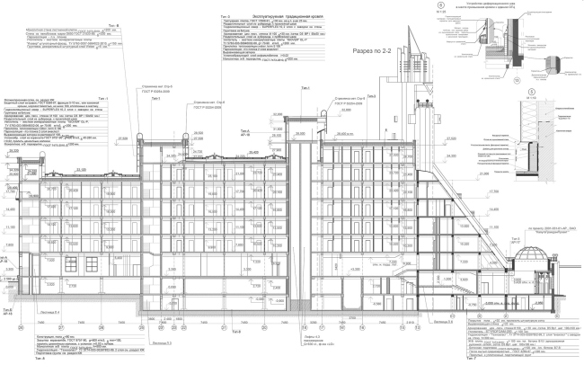
Разрезы © архитекторы Ольга и Евгений Голышевы
Разрезы © архитекторы Ольга и Евгений Голышевы
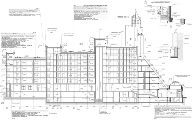
Разрез 2 © архитекторы Ольга и Евгений Голышевы
Разрез 2 © архитекторы Ольга и Евгений Голышевы
Разрез фасада © архитекторы Ольга и Евгений Голышевы
Разрез фасада © архитекторы Ольга и Евгений Голышевы
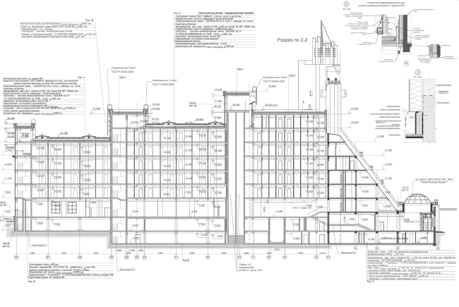
Отель «Шератон» в Калуге. Поперечный разрез © архитекторы Ольга и Евгений Голышевы
Отель «Шератон» в Калуге. Поперечный разрез © архитекторы Ольга и Евгений Голышевы
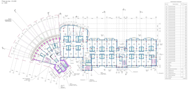
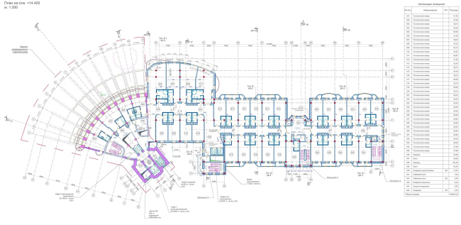
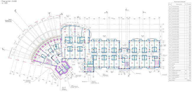
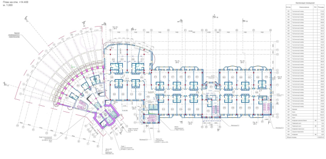
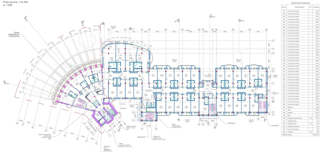
Отель «Шератон» в Калуге. План 5 этажа © архитекторы Ольга и Евгений Голышевы
Отель «Шератон» в Калуге. План 5 этажа © архитекторы Ольга и Евгений Голышевы