Размещено на портале Архи.ру (www.archi.ru)

31.08.2017

Два в одном

Объект:
Вилла WH Residence
Адрес:
Украина, None, Одесса.
Мастерская:
M3 Architects

Вилла WH Residence в Одессе по проекту бюро M3 Architects.

Вилла WH Residence. Фото © Антон Гарец
Вилла WH Residence. Фото © Антон Гарец

Резиденция общей площадью в 740 м2 расположена на берегу Черного моря, в курортном районе Аркадия – главной рекреационной зоне Одессы, считающейся также центром клубной жизни Украины. Основная идея проекта состоит в соединении двух отдельных и в то же время однородных объемов с одинаковым набором функций. Ключевым фактором при разработке интерьера и экстерьера виллы было решение создать максимально открытое, но приватное пространство двух отдельных, но симметричных объемов в условиях плотной городской застройки. Главный фасад здания ориентирован на многоэтажное жилое здание, визуально он закрыт.
 
Вилла WH Residence. Фото © Антон Гарец
Вилла WH Residence. Фото © Антон Гарец

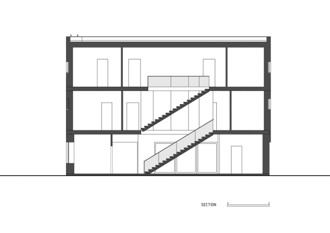
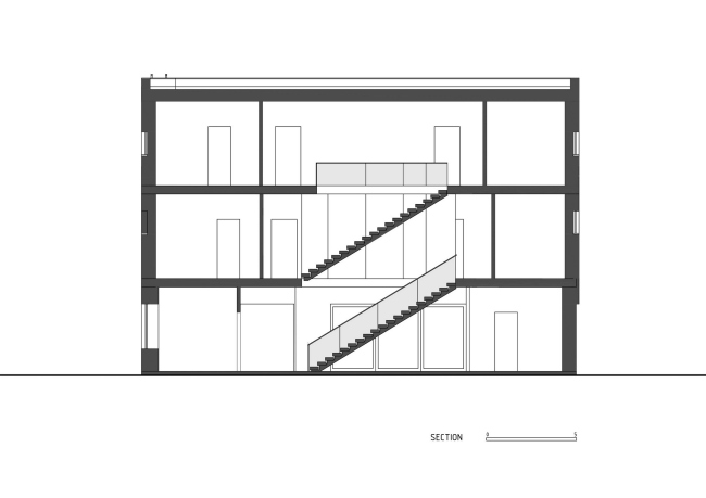
Первый этаж занят общественными пространствами: вестибюль, гардеробные, зона встреч, столовая, гостиная, сауны, санузлы. Технические помещения расположены на этом же этаже отдельным блоком. Первый этаж визуально объединен с двором и бассейнами. Композиционно оба объема раскрыты друг к другу и составляют общее пространство.
 
Вилла WH Residence. Фото © Антон Гарец
Вилла WH Residence. Фото © Антон Гарец

Первый этаж играет роль основания композиции и в то же время воспринимается как свободный, с условными границами, он наполнен воздухом и теплым светом. Для достижения максимально удобной и открытой компоновки пространств первого уровня вход с улицы находится на той же плоскости, что и бассейны, веранда и гостиная с другой стороны участка, а входная группа и выход на террасу из гостиной расположены в разных частях зданий, обеспечивая приватность владельцам.
 
Вилла WH Residence. Фото © Антон Гарец
Вилла WH Residence. Фото © Антон Гарец

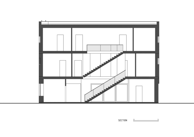
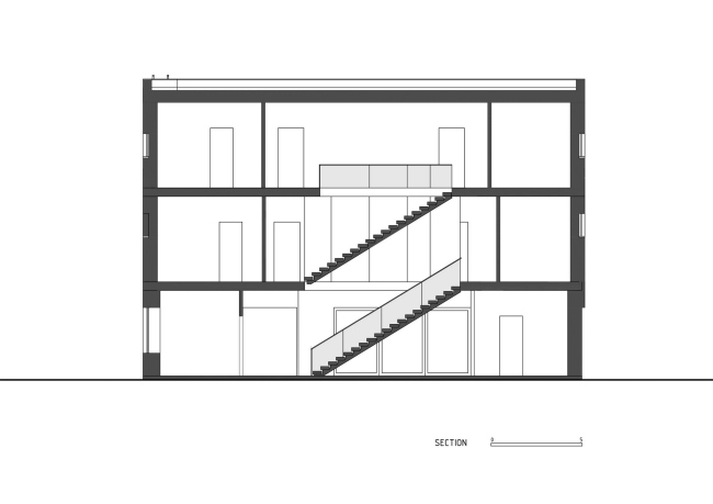
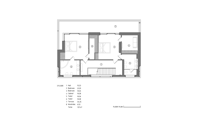
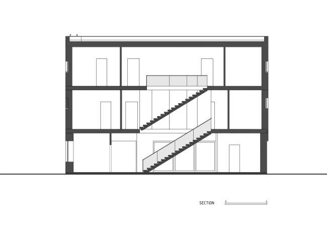
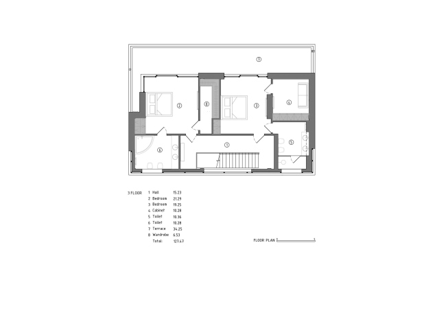
Открытый объем лестницы ведет на второй и третий этажи, где располагаются спален, объединенные в блоки с санузлами и гардеробными. У каждой спальни имеется выход на террасу. Дизайн кроватей, дверей, ворот выполнен M3 Architects.
 
Вилла WH Residence. Фото © Антон Гарец
Вилла WH Residence. Фото © Антон Гарец

Вилла оборудована солнечными коллекторами с возможностью сброса энергии на подогрев бассейнов, резервными котлами, системами вентиляции и кондиционирования воздуха.
 
Вилла WH Residence. Фото © Антон Гарец
Вилла WH Residence. Фото © Антон Гарец

Конструктивная схема: Железо-бетонный каркас с заполнением из пенобетонных блоков
Напольное покрытие – Porcelaingres, паркетная доска,
Отделка лестница, санузлов, столешниц, подоконников – кварц
Декоративный камень – травертин.
Оконные системы – Reynaers Aluminum CS86HI
Напольное покрытие, керамогранит – Porcelaingres
Электрофурнитура – Gira E2
Архитектурный свет – Delta light
Сантехника – Laufen
Наружные окна и двери – Reynaers Aluminium
Вилла WH Residence. Фото © Антон Гарец
Вилла WH Residence. Фото © Антон Гарец
Вилла WH Residence. Фото © Антон Гарец
Вилла WH Residence. Фото © Антон Гарец
Вилла WH Residence. Фото © Антон Гарец
Вилла WH Residence. Фото © Антон Гарец
Вилла WH Residence. Фото © Антон Гарец
Вилла WH Residence. Фото © Антон Гарец
Вилла WH Residence. Фото © Антон Гарец
Вилла WH Residence. Фото © Антон Гарец
Вилла WH Residence. Фото © Антон Гарец
Вилла WH Residence. Фото © Антон Гарец
Вилла WH Residence. Фото © Антон Гарец
Вилла WH Residence. Фото © Антон Гарец
Вилла WH Residence. Фото © Антон Гарец
Вилла WH Residence. Фото © Антон Гарец
Вилла WH Residence. Фото © Антон Гарец
Вилла WH Residence. Фото © Антон Гарец
Вилла WH Residence. Фото © Антон Гарец
Вилла WH Residence. Фото © Антон Гарец
Вилла WH Residence. Фото © Антон Гарец
Вилла WH Residence. Фото © Антон Гарец
Вилла WH Residence. Фото © Антон Гарец
Вилла WH Residence. Фото © Антон Гарец
Вилла WH Residence. Фото © Антон Гарец
Вилла WH Residence. Фото © Антон Гарец
Вилла WH Residence. Фото © Антон Гарец
Вилла WH Residence. Фото © Антон Гарец
Вилла WH Residence. Фото © M3 Architects
Вилла WH Residence. Фото © M3 Architects
Вилла WH Residence. Фото © M3 Architects
Вилла WH Residence. Фото © M3 Architects
Вилла WH Residence. Фото © M3 Architects
Вилла WH Residence. Фото © M3 Architects
Вилла WH Residence. Фото © M3 Architects
Вилла WH Residence. Фото © M3 Architects
Вилла WH Residence. Фото © M3 Architects
Вилла WH Residence. Фото © M3 Architects
Вилла WH Residence. Фото © M3 Architects
Вилла WH Residence. Фото © M3 Architects
Вилла WH Residence. Фото © M3 Architects
Вилла WH Residence. Фото © M3 Architects
Вилла WH Residence. Фото © M3 Architects
Вилла WH Residence. Фото © M3 Architects
Вилла WH Residence. Фото © M3 Architects
Вилла WH Residence. Фото © M3 Architects