Размещено на портале Архи.ру (www.archi.ru)

28.08.2017

Солнечный парус

Нина Фролова
Объект:
Центр La Seine Musicale
Адрес:
Франция, None, Париж.

Парижский концертный зал La Seine Musicale по проекту Сигэру Бана получил мобильный «парус» из солнечных батарей.

Центр La Seine Musicale © Didier Boy de la Tour
Центр La Seine Musicale © Didier Boy de la Tour

La Seine Musicale расположен на острове Сеген на Сене, там, где до 1992 работал завод Renault. Сейчас остров и прилегающий берег – территория парижского пригорода Булонь-Бийанкур – превращаются из промзоны в район смешанной застройки. Концертный зал Сигэру Бана и его французского партнера Жана де Гастена (Jean de Gastines) появился на месте планировавшегося здесь в начале 2000-х музея коллекции Франсуа Пино по проекту Тадао Андо.
 
Центр La Seine Musicale © Didier Boy de la Tour
Центр La Seine Musicale © Didier Boy de la Tour

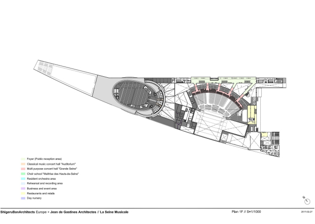
Согласно мастерплану Жана Нувеля (подробнее о нем здесь и здесь), «нос» острова очерчивает бетонная стена – фасад концертного зала, но его облик определяет не она, а стеклянная сфера на деревянном решетчатом каркасе, в которую помещен зал академической музыки «Аудиториум» (1150 мест). Ее интерьер защищает от солнечных лучей 45-метровый «парус» из солнечных батарей (800 м2), перемещающийся в течение дня вслед за солнцем со скоростью 0,08 м/с. Под ним расположен многофункциональный зал «Большая Сена» на 4000 зрителей (или 6000 – при сочетании кресел и стоячих мес): его легко трансформировать под самые разные мероприятия. Зеленая крыша этого зала превращена в часть нового парка, который в целом занимает 7410 м2.
 
Центр La Seine Musicale © Didier Boy de la Tour
Центр La Seine Musicale © Didier Boy de la Tour

В La Seine Musicale на общей площади в 36 500 м2 расположены также студии звукозаписи и репетиций, образовательные помещения, в том числе – новой Академии Филиппа Жаруски, призванной сделать классическое музыкальное образование более демократичным. Над входом в здание помещен светодиодный экран размером 800 м2, куда транслируются идущие внутри концерты. Бюджет постройки – 170 млн евро.
Центр La Seine Musicale © Didier Boy de la Tour
Центр La Seine Musicale © Didier Boy de la Tour
Центр La Seine Musicale © Didier Boy de la Tour
Центр La Seine Musicale © Didier Boy de la Tour
Центр La Seine Musicale © Didier Boy de la Tour
Центр La Seine Musicale © Didier Boy de la Tour
Центр La Seine Musicale © Didier Boy de la Tour
Центр La Seine Musicale © Didier Boy de la Tour
Центр La Seine Musicale © Didier Boy de la Tour
Центр La Seine Musicale © Didier Boy de la Tour
Центр La Seine Musicale © Didier Boy de la Tour
Центр La Seine Musicale © Didier Boy de la Tour
Центр La Seine Musicale © Didier Boy de la Tour
Центр La Seine Musicale © Didier Boy de la Tour
Центр La Seine Musicale © Didier Boy de la Tour
Центр La Seine Musicale © Didier Boy de la Tour
Центр La Seine Musicale © Didier Boy de la Tour
Центр La Seine Musicale © Didier Boy de la Tour
Центр La Seine Musicale © Didier Boy de la Tour
Центр La Seine Musicale © Didier Boy de la Tour
Центр La Seine Musicale © Didier Boy de la Tour
Центр La Seine Musicale © Didier Boy de la Tour
Центр La Seine Musicale © Didier Boy de la Tour
Центр La Seine Musicale © Didier Boy de la Tour
Центр La Seine Musicale © Didier Boy de la Tour
Центр La Seine Musicale © Didier Boy de la Tour
Центр La Seine Musicale © Didier Boy de la Tour
Центр La Seine Musicale © Didier Boy de la Tour
Центр La Seine Musicale © Didier Boy de la Tour
Центр La Seine Musicale © Didier Boy de la Tour
Центр La Seine Musicale © Didier Boy de la Tour
Центр La Seine Musicale © Didier Boy de la Tour
Центр La Seine Musicale © Didier Boy de la Tour
Центр La Seine Musicale © Didier Boy de la Tour
Центр La Seine Musicale © Didier Boy de la Tour
Центр La Seine Musicale © Didier Boy de la Tour
Центр La Seine Musicale © Didier Boy de la Tour
Центр La Seine Musicale © Didier Boy de la Tour
Центр La Seine Musicale © Didier Boy de la Tour
Центр La Seine Musicale © Didier Boy de la Tour
Центр La Seine Musicale © Didier Boy de la Tour
Центр La Seine Musicale © Didier Boy de la Tour
Центр La Seine Musicale © Didier Boy de la Tour
Центр La Seine Musicale © Didier Boy de la Tour
Центр La Seine Musicale © Didier Boy de la Tour
Центр La Seine Musicale © Didier Boy de la Tour
Центр La Seine Musicale © Didier Boy de la Tour
Центр La Seine Musicale © Didier Boy de la Tour
Центр La Seine Musicale © Didier Boy de la Tour
Центр La Seine Musicale © Didier Boy de la Tour
Центр La Seine Musicale © Didier Boy de la Tour
Центр La Seine Musicale © Didier Boy de la Tour
Центр La Seine Musicale © Didier Boy de la Tour
Центр La Seine Musicale © Didier Boy de la Tour
Центр La Seine Musicale © Didier Boy de la Tour
Центр La Seine Musicale © Didier Boy de la Tour
Центр La Seine Musicale © Didier Boy de la Tour
Центр La Seine Musicale © Didier Boy de la Tour
Центр La Seine Musicale © Didier Boy de la Tour
Центр La Seine Musicale © Didier Boy de la Tour
Центр La Seine Musicale © Didier Boy de la Tour
Центр La Seine Musicale © Didier Boy de la Tour
Центр La Seine Musicale © Didier Boy de la Tour
Центр La Seine Musicale © Didier Boy de la Tour
Центр La Seine Musicale © Didier Boy de la Tour
Центр La Seine Musicale © Didier Boy de la Tour
Центр La Seine Musicale © Shigeru Ban Architects
Центр La Seine Musicale © Shigeru Ban Architects
Центр La Seine Musicale © Shigeru Ban Architects
Центр La Seine Musicale © Shigeru Ban Architects
Центр La Seine Musicale © Shigeru Ban Architects
Центр La Seine Musicale © Shigeru Ban Architects
Центр La Seine Musicale © Shigeru Ban Architects
Центр La Seine Musicale © Shigeru Ban Architects
Центр La Seine Musicale © Shigeru Ban Architects
Центр La Seine Musicale © Shigeru Ban Architects
Центр La Seine Musicale © Shigeru Ban Architects
Центр La Seine Musicale © Shigeru Ban Architects
Центр La Seine Musicale © Shigeru Ban Architects
Центр La Seine Musicale © Shigeru Ban Architects
Центр La Seine Musicale © Shigeru Ban Architects
Центр La Seine Musicale © Shigeru Ban Architects
Центр La Seine Musicale © Shigeru Ban Architects
Центр La Seine Musicale © Shigeru Ban Architects
Центр La Seine Musicale © Shigeru Ban Architects
Центр La Seine Musicale © Shigeru Ban Architects
Центр La Seine Musicale © Shigeru Ban Architects
Центр La Seine Musicale © Shigeru Ban Architects
Центр La Seine Musicale © Shigeru Ban Architects
Центр La Seine Musicale © Shigeru Ban Architects
Центр La Seine Musicale © Shigeru Ban Architects
Центр La Seine Musicale © Shigeru Ban Architects
Центр La Seine Musicale © Shigeru Ban Architects
Центр La Seine Musicale © Shigeru Ban Architects
Центр La Seine Musicale © Shigeru Ban Architects
Центр La Seine Musicale © Shigeru Ban Architects
Центр La Seine Musicale © Shigeru Ban Architects
Центр La Seine Musicale © Shigeru Ban Architects
Центр La Seine Musicale © Shigeru Ban Architects
Центр La Seine Musicale © Shigeru Ban Architects
Центр La Seine Musicale © Shigeru Ban Architects
Центр La Seine Musicale © Shigeru Ban Architects
Центр La Seine Musicale © Shigeru Ban Architects
Центр La Seine Musicale © Shigeru Ban Architects