Размещено на портале Архи.ру (www.archi.ru)

28.08.2017

Образцовая субурбия

Лилия Аронова
Объект:
Жилой комплекс «Андерсен»
Адрес:
Россия, Москва. Ленинский муниципальный район, с.п. Десеновское, дер. Десна
Мастерская:
Архитектуриум
Авторский коллектив:
Архитекторы: В. Биндеман, Н. Котова, К. Смирнова, В. Абрамова, М. Федорова, И. Арефина, Е. Горбунова, А. Сумин, А. Гевак, М. Салыкин, М. Невзорова

Воплощение в жизнь проекта жилого поселка «Андерсен» мастерской «Архитектуриум»: удачи и потери.

Жилой комплекс «Андерсен». Постройка, 2016. Фотография © Денис Есаков
Жилой комплекс «Андерсен». Постройка, 2016. Фотография © Денис Есаков

Несколько лет назад мы уже писали о проекте подмосковного жилого поселка «Андерсен», над которым работало бюро Владимира Биндемана «Архитектуриум». Тогда строительство района только начиналось, теперь же бóльшая его часть завершена и даже заселена, так что самое время вернуться к проекту и посмотреть, что из задуманного удалось воплотить в жизнь. Тем более что на примере этого объекта можно сделать целый ряд актуальных выводов, которые могли бы быть полезны при освоении необъятных пространств новых столичных предместий.

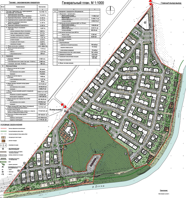
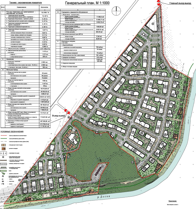
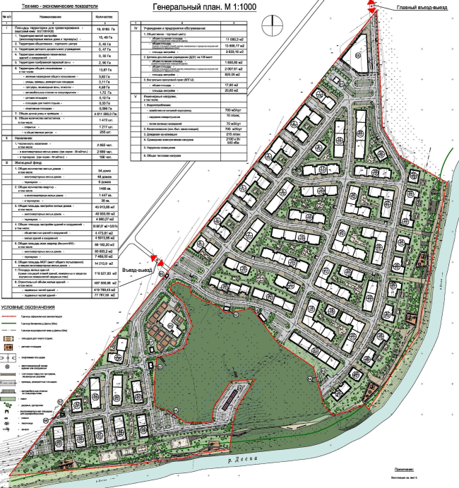
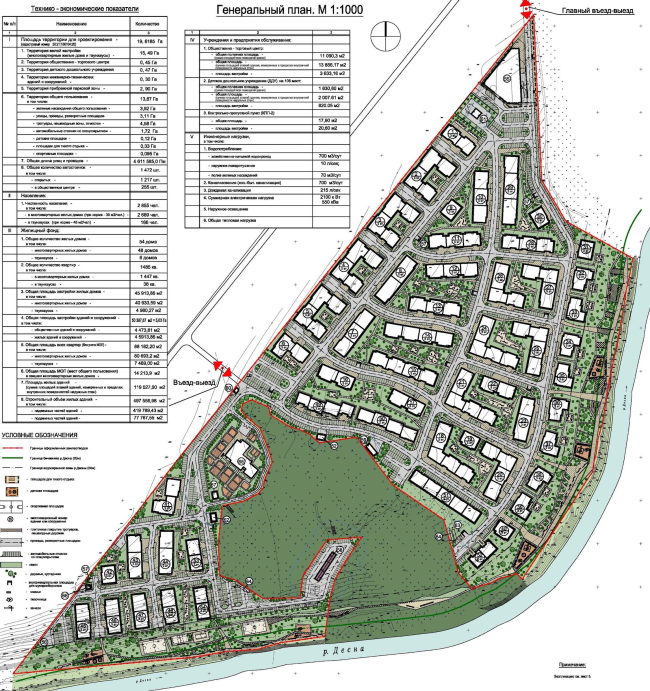
Впрочем, когда история поселка «Андерсен» только начиналась, о грядущем расширении Москвы никто и не подозревал. Территория площадью двадцать гектаров в 11 километрах от МКАД по Калужскому шоссе на берегу Десны представлялась прекрасным местом для загородного поселка, состоящего из таунхаусов и коттеджей. Соответственно рассчитывалась и плотность застройки, и когда после присоединения этих земель к Москве типология жилья была закономерно изменена на малоэтажную городскую застройку, архитекторам пришлось вписываться в уже утвержденный генплан. Условный полукруг, дуга которого повторяет изгиб Десны, а хорда обращена в сторону шоссе, разделен на две неравные части сегментом леса; оговоримся, что сейчас речь идет только о застройке бóльшего по площади участка, судьба же меньшего пока не совсем ясна.
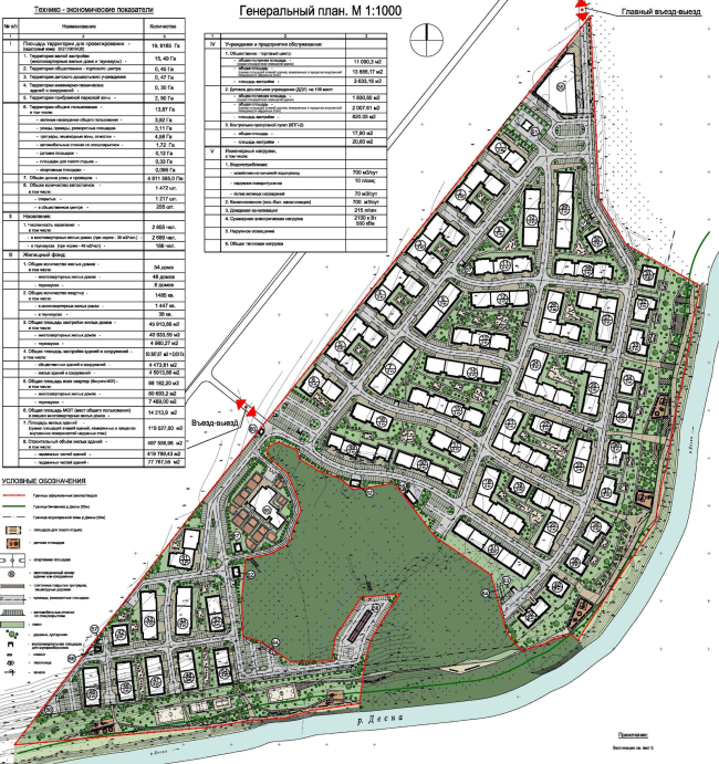
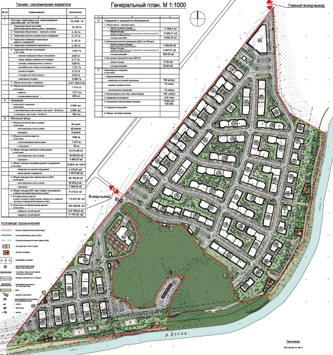
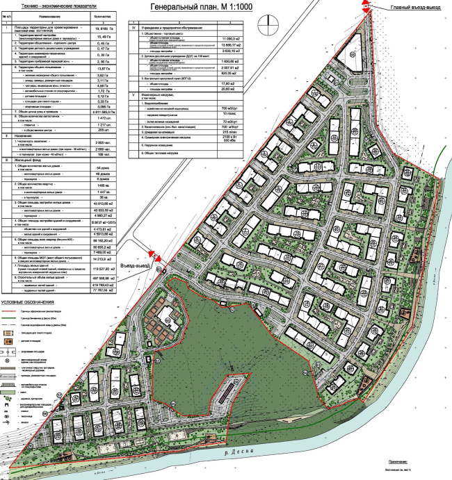
Жилой комплекс «Андерсен». Генеральный план, 2014 © Архитектуриум
Жилой комплекс «Андерсен». Генеральный план, 2014 © Архитектуриум

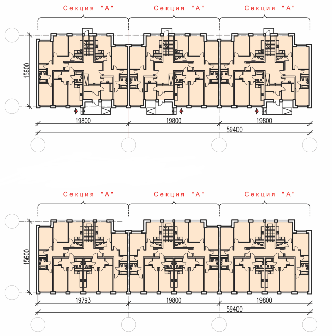
Территория разделена на равные по площади кварталы, образованные тремя сходящимися к северному въезду продольными улицами, которые пересекают более короткие поперечные, направленные к набережной. Ширина улиц – 15-17 м, размер дворовых квадратов – примерно 20 на 20. Что адекватно для загородного поселка, тесновато для города, а для малоэтажного предместья, при условии грамотных градостроительных решений, – достаточно гармонично и пропорционально. И это первый, вполне оптимистичный вывод.

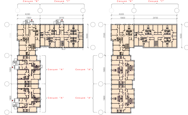
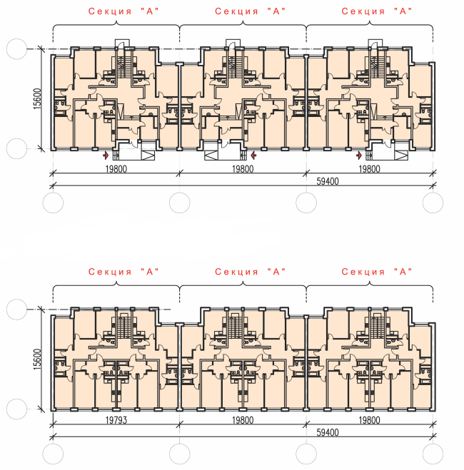
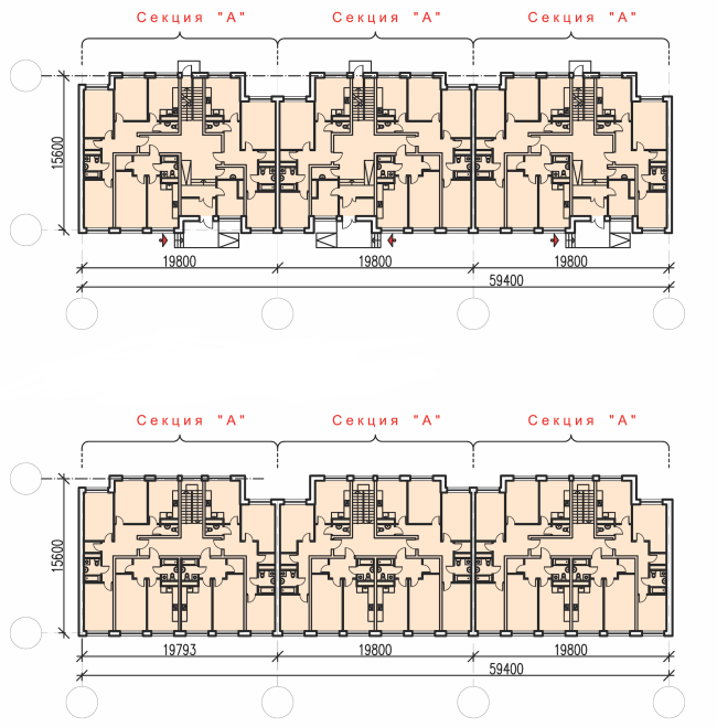
С самого начала одной из главных задач, которые ставила перед собой мастерская, было обеспечение визуального разнообразия застройки. Как выяснилось на практике, это тоже вполне возможно, причем с не слишком широкой палитрой средств. При наличии всего лишь одиннадцати типовых секций и нескольких типах кварталов, состоящих из двух Г-образных домов, либо из трех прямых в виде буквы «П», либо из одного Г-образного и одного односекционного, – среди них нет повторов. Результат достигнут исключительно благодаря фасадным решениям: чередованию красного и светлого кирпича, сдвижке пилонов, вставкам алюмокомпозитных и металлосайдинговых панелей, выбору белых или серых оконных рам. Так что теперь в «Андерсене» есть кварталы «белые», есть «красные» с белыми окнами и вкраплениями темно-зеленых панелей, есть «мозаичные», а есть «полосатые» – как модный вязаный свитер. Это ведь хоть и Новая, а все же Москва, так что некоторая степень пестроты ей к лицу.
Жилой комплекс «Андерсен». Постройка, 2016. Фотография © Денис Есаков
Жилой комплекс «Андерсен». Постройка, 2016. Фотография © Денис Есаков
Жилой комплекс «Андерсен». Постройка, 2016. Фотография © Денис Есаков
Жилой комплекс «Андерсен». Постройка, 2016. Фотография © Денис Есаков
Жилой комплекс «Андерсен». Постройка, 2016. Фотография © Денис Есаков
Жилой комплекс «Андерсен». Постройка, 2016. Фотография © Денис Есаков
Жилой комплекс «Андерсен». Постройка, 2016. Фотография © Денис Есаков
Жилой комплекс «Андерсен». Постройка, 2016. Фотография © Денис Есаков
Жилой комплекс «Андерсен». Постройка, 2016. Фотография © Денис Есаков
Жилой комплекс «Андерсен». Постройка, 2016. Фотография © Денис Есаков
Жилой комплекс «Андерсен». Постройка, 2016. Фотография © Денис Есаков
Жилой комплекс «Андерсен». Постройка, 2016. Фотография © Денис Есаков
Жилой комплекс «Андерсен». Постройка, 2016. Фотография © Денис Есаков
Жилой комплекс «Андерсен». Постройка, 2016. Фотография © Денис Есаков
Жилой комплекс «Андерсен». Постройка, 2016. Фотография © Денис Есаков
Жилой комплекс «Андерсен». Постройка, 2016. Фотография © Денис Есаков

«Можно сказать – то, что мы задумывали с точки зрения создания архитектурной среды, тоже вполне удалось», – говорит Владимир Биндеман. Действительно, несложно заметить, что новоселы обживают пространство уже вполне по-хозяйски: устанавливают на балконных решетках цветочные ящики, разбивают клумбы, выставляют под окнами забавные вазоны… Создается ощущение небольшого, уютного европейского городка, достаточно демократичного, без ограничений по перемещению и деления на классы. Но при этом, что интересно, к развитию комьюнити как таковой жители «Андерсена» пока как-то не стремятся – вплоть до того, что из предложенных проектировщиками планов благоустройства попросили удалить все внутриквартальные дорожки и скамейки и засеять квадраты дворов сплошным газоном. Какие выводы делать из этого факта и делать ли вообще – вопрос открытый, но задуматься стоит.

Впрочем, с пространством для общения в «Андерсене» проблем не будет: вдоль высокого берега Десны обустраивается протяженная набережная с променадом, велодорожками, спортивными и детскими площадками и прочими атрибутами современной коммунальной жизни. С набережной, как и из окон домов первой линии, виды открываются совершенно природные: за рекой стеной стоит лесной массив, который закрывает от глаз следующий участок застройки Новой Москвы. Надо сказать, что и с противоположной стороны «Андерсен» защищен от шума и пыли: поле, которое отделяет от поселка Калужское шоссе, находится чуть выше по рельефу. Там, впрочем, запланировано строительство большого жилого района этажностью повыше, но для «Андерсена» и в этом есть свои преимущества: жители поселка получат возможность пользоваться тамошними коммунальными благами, потому что в самом поселке из соцкультбыта запланированы только детский сад на месте нынешнего перелеска и минимальный набор ретейла при въезде.
Жилой комплекс «Андерсен». Постройка, 2016. Фотография © Денис Есаков
Жилой комплекс «Андерсен». Постройка, 2016. Фотография © Денис Есаков
Жилой комплекс «Андерсен». Постройка, 2016 © Архитектуриум
Жилой комплекс «Андерсен». Постройка, 2016 © Архитектуриум
Жилой комплекс «Андерсен». Постройка, 2016. Фотография © Денис Есаков
Жилой комплекс «Андерсен». Постройка, 2016. Фотография © Денис Есаков
Жилой комплекс «Андерсен». Постройка, 2016. Фотография © Денис Есаков
Жилой комплекс «Андерсен». Постройка, 2016. Фотография © Денис Есаков
Жилой комплекс «Андерсен». Постройка, 2016 © Архитектуриум
Жилой комплекс «Андерсен». Постройка, 2016 © Архитектуриум
Жилой комплекс «Андерсен». Постройка, 2016. Фотография © Денис Есаков
Жилой комплекс «Андерсен». Постройка, 2016. Фотография © Денис Есаков
Жилой комплекс «Андерсен». Постройка, 2016. Фотография © Денис Есаков
Жилой комплекс «Андерсен». Постройка, 2016. Фотография © Денис Есаков
Жилой комплекс «Андерсен». Постройка, 2016. Фотография © Денис Есаков
Жилой комплекс «Андерсен». Постройка, 2016. Фотография © Денис Есаков
Жилой комплекс «Андерсен». Постройка, 2016. Фотография © Денис Есаков
Жилой комплекс «Андерсен». Постройка, 2016. Фотография © Денис Есаков
Жилой комплекс «Андерсен». Постройка, 2016. Фотография © Денис Есаков
Жилой комплекс «Андерсен». Постройка, 2016. Фотография © Денис Есаков
Жилой комплекс «Андерсен». Постройка, 2016 © Архитектуриум
Жилой комплекс «Андерсен». Постройка, 2016 © Архитектуриум
Жилой комплекс «Андерсен». Постройка, 2016 © Архитектуриум
Жилой комплекс «Андерсен». Постройка, 2016 © Архитектуриум

Вечную проблему паркинга, усугубившуюся с дружным отказом градостроителей загромождать автомобилями внутридомовые территории, в проекте «Андерсена» планировали решить неординарно, отдав под парковки три этажа общественного центра, который должен был стать «визитной карточкой» поселка. Однако теперь известно, что общественный центр в первоначально задуманном виде построен не будет: на его месте появится восьмиэтажный жилой дом с небольшим ретейлом на первом этаже. Машины тем не менее куда-то ставить надо, и архитекторы с ювелирной точностью, соблюдая, естественно, нормативные отступы, выгадывали то там, то здесь участки под торцевые парковки на пять-десять машин. Плюс параллельные стоянки вдоль улиц. В результате никакой катастрофы не произошло – похоже, места всем хватает. Следовательно, даже с учетом плотного генплана в подобных малоэтажных комплексах можно обойтись без дорогостоящих подземных паркингов.
Жилой комплекс «Андерсен». Проект общественного центра, 2013 © Архитектуриум
Жилой комплекс «Андерсен». Проект общественного центра, 2013 © Архитектуриум

А вот то, что не будет воплощен в жизнь проект общественного центра, – конечно, серьезная потеря. Динамичная и изобретательная архитектура этого здания придавала «Андерсену» оттенок острой современности, сочетая в себе решение практических задач с ярким эстетическим высказыванием. «Ну что ж, – печально констатирует Владимир Биндеман, – материальное в очередной раз победило идеальное». Но даже несмотря на эту утрату поселок, удостоенный нескольких профессиональных наград, может служить образцом современной субурбии, какой она востребована сегодня у нас в стране и особенно, по известным причинам, в столице: экономичной, комфортной, демократичной – и при этом, что особенно ценно, обладающей собственным неповторимым лицом. Это пока редкость, но, как показывает пример «Андерсена», вполне достижимая. Было бы желание.
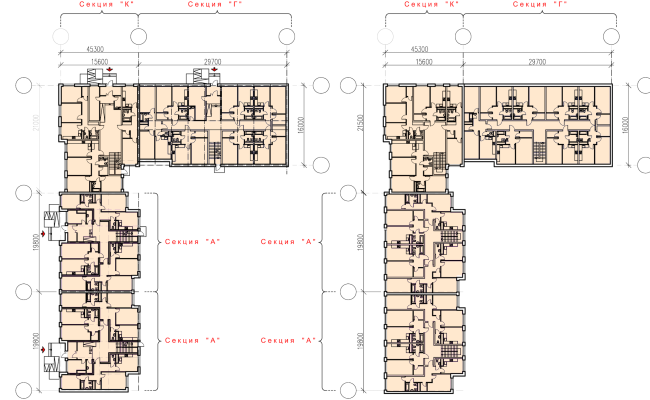
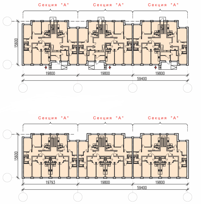
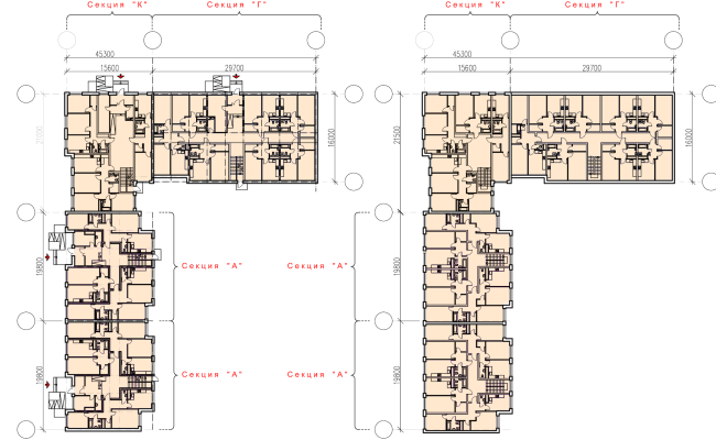
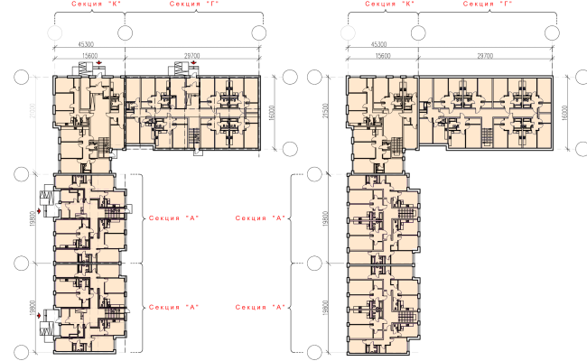
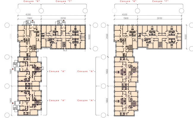
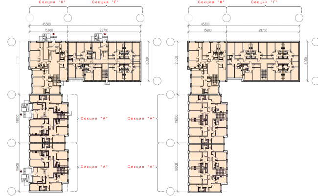
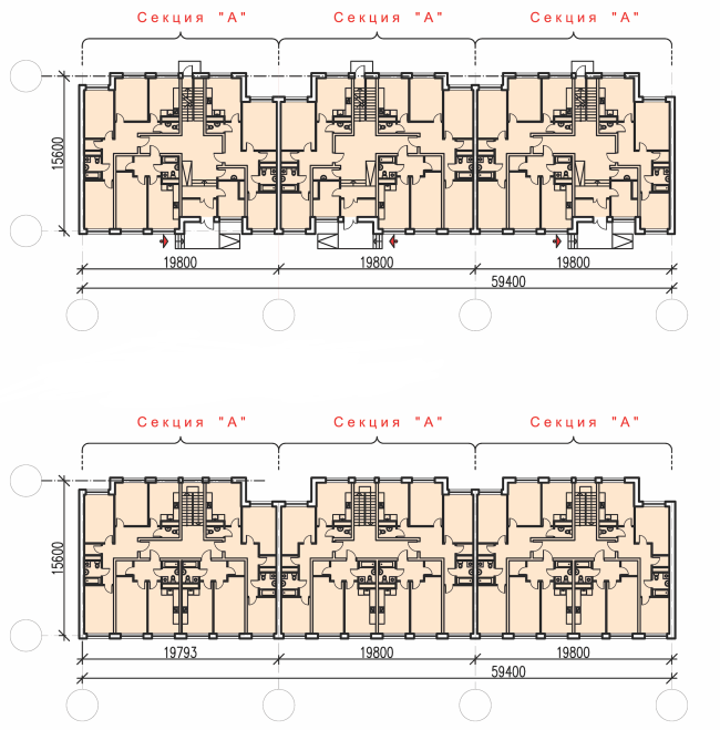
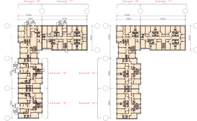
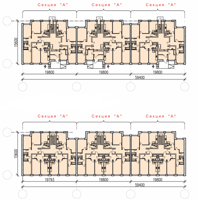
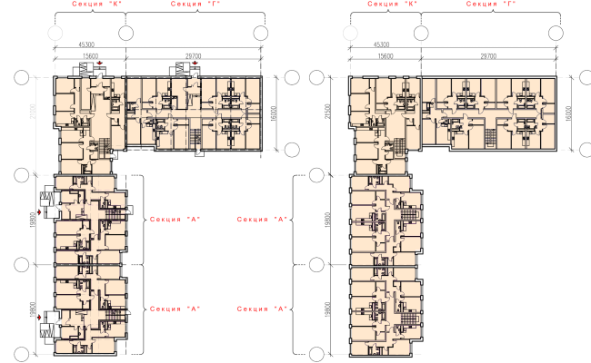
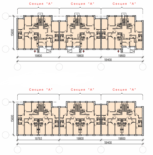
Жилой комплекс «Андерсен». Планы 1 и типового этажей  © Архитектуриум
Жилой комплекс «Андерсен». Планы 1 и типового этажей © Архитектуриум
Жилой комплекс «Андерсен». Планы 1 и типового этажей © Архитектуриум
Жилой комплекс «Андерсен». Планы 1 и типового этажей © Архитектуриум
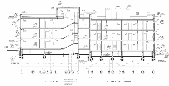
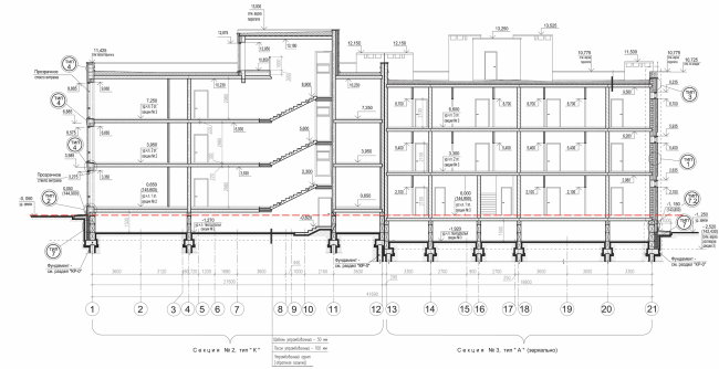
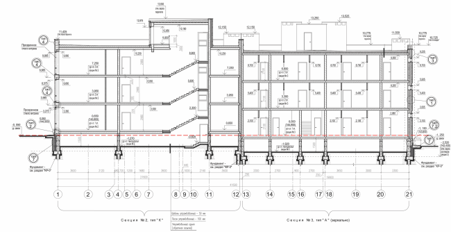
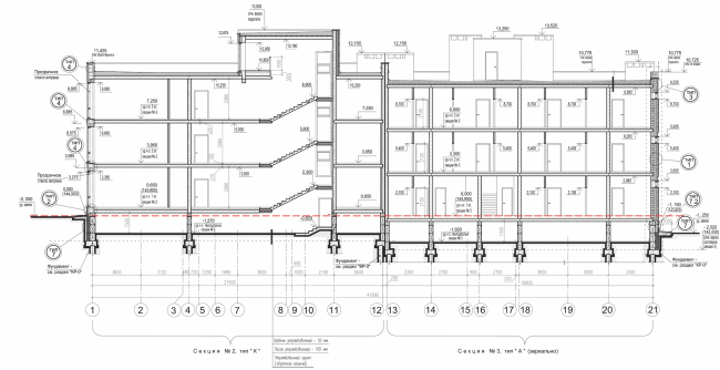
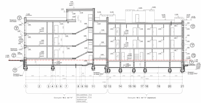
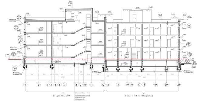
Жилой комплекс «Андерсен». Разрез 1-1  © Архитектуриум
Жилой комплекс «Андерсен». Разрез 1-1 © Архитектуриум
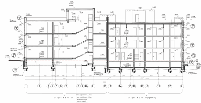
Жилой комплекс «Андерсен». Разрез © Архитектуриум
Жилой комплекс «Андерсен». Разрез © Архитектуриум
Жилой комплекс «Андерсен». Разрез 1-1  © Архитектуриум
Жилой комплекс «Андерсен». Разрез 1-1 © Архитектуриум