Размещено на портале Архи.ру (www.archi.ru)

24.08.2017

Демократичность на фасадах и планах

Нина Фролова
Объект:
Жилой комплекс Îlot 19 в районе Дефанс
Адрес:
Франция, None, Париж.

Комплекс доступного жилья в районе Дефанс по проекту бюро Фаршид Муссави.

Жилой комплекс в районе Дефанс © Stephen Gill
Жилой комплекс в районе Дефанс © Stephen Gill

Многоквартирный дом по проекту Farshid Moussavi Architecture – первое в деловом центре Парижа жилое здание за тридцать лет. Он появился в рамках комплекса Jardins de l’Arche – «Сады Арки» – и занял очень необычный и заметный участок. Длинным южным фасадом он выходит на «историческую ось», идущую от Лувра через Елисейские поля и проходящую под Большой аркой Дефанса. Благодаря повороту этого фасада на два градуса жильцы дома смогут любоваться с балконов этой замечательной перспективой. Также дальние виды открываются для них и с других сторон, так как дом соседствует с кладбищами Путо и Нёйи, которые совсем не загораживают ему панорамы.
 
Жилой комплекс в районе Дефанс © Stephen Gill
Жилой комплекс в районе Дефанс © Stephen Gill

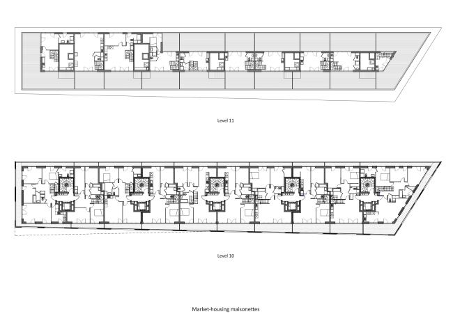
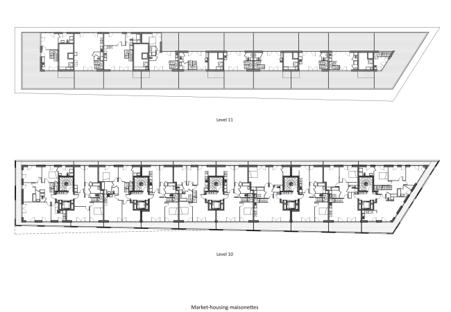
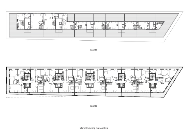
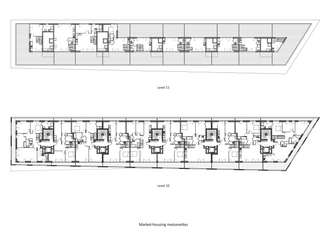
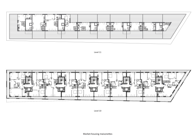
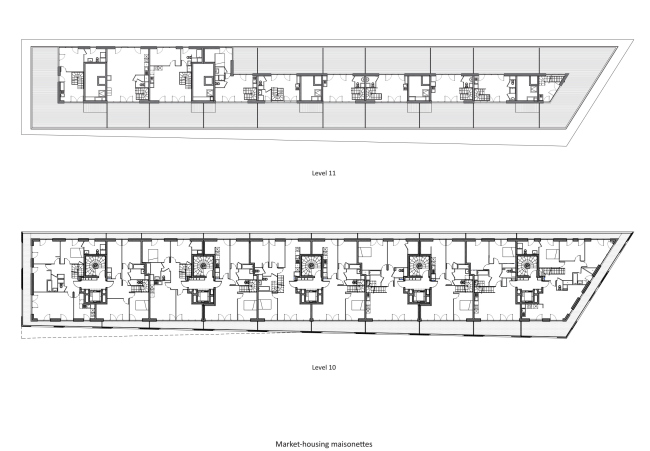
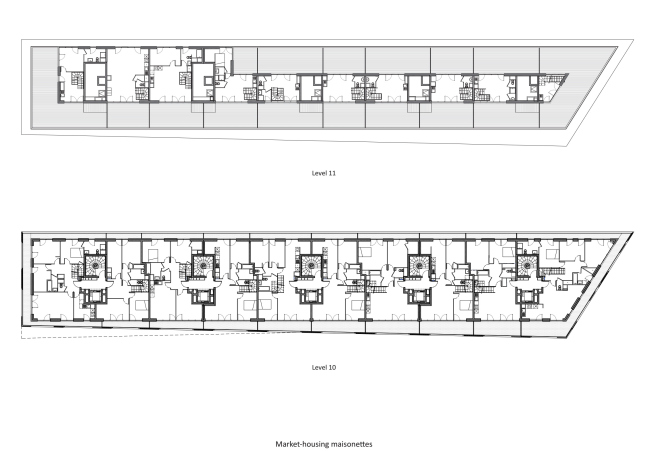
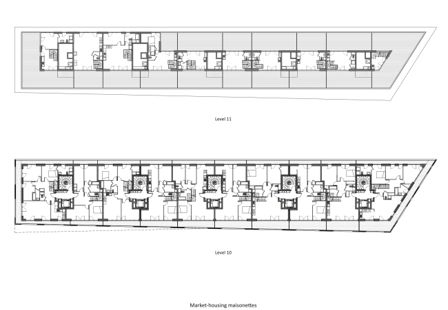
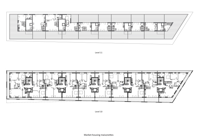
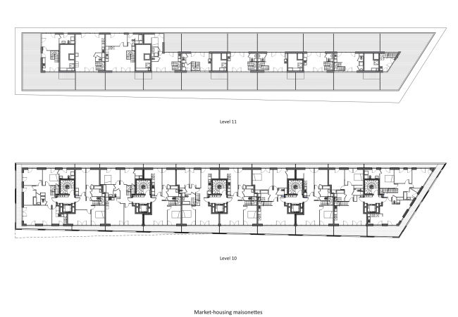
Однако самое интересное в доме не его участок, а разнообразие типов жилья. Нижнюю часть занимают коммерческие функции (пять секций) и также оживляющее окрестности студенческое общежитие (110 комнат), над ними – 72 «доступные» квартиры и девять социальных, для жителей города Нантер, где расположена эта часть Дефанса. Завершают здание десять коммерческих пентхаусов. Такая социальная смесь – в духе парижских доходных домов до реконструкции барона Османа, подчеркивают авторы проекта.
 
Жилой комплекс в районе Дефанс © Stephen Gill
Жилой комплекс в районе Дефанс © Stephen Gill

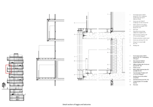
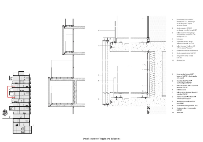
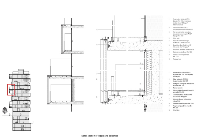
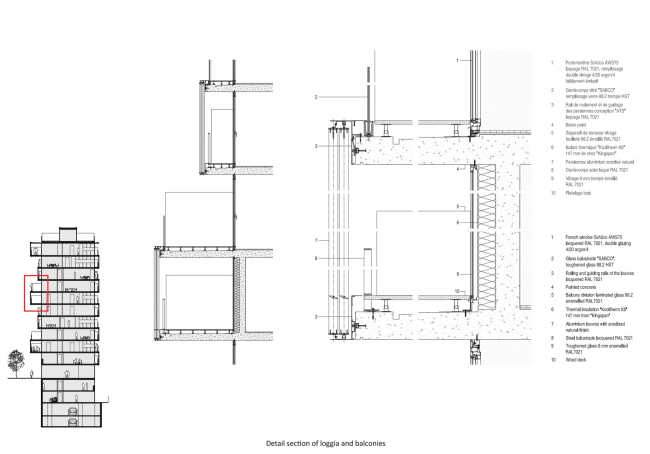
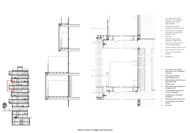
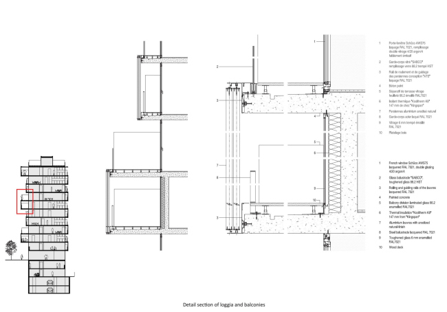
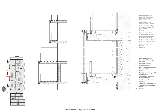
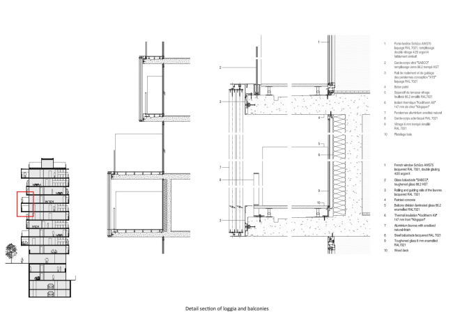
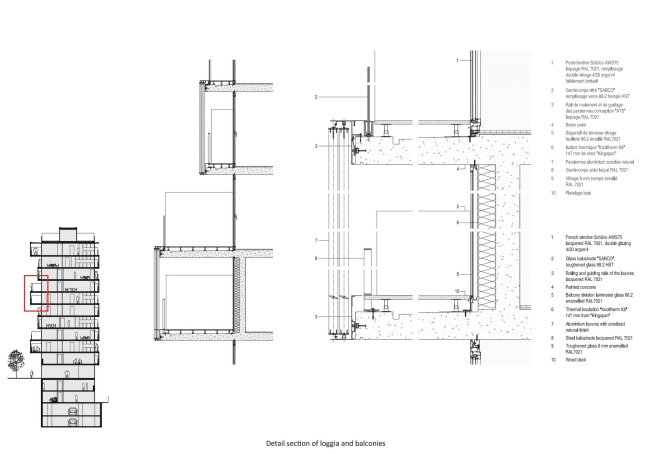
Фасады, где чередуются выступающие ярусы с лоджиями, закрытыми алюминиевыми экранами, и затененные «нишевые» этажи с балконами, – полностью одинаковые и выглядят очень привлекательно. У всех квартир и студенческих комнат – панорамное остекление и есть лоджия или балкон. Архитекторам было важно развеять стереотип «социальное жилье – простенькая и недорогая архитектура» (впрочем, стереотип не слишком актуальный для современной Франции с ее поразительно высоким уровнем качества таких объектов).
 
Жилой комплекс в районе Дефанс © Stephen Gill
Жилой комплекс в районе Дефанс © Stephen Gill

Здание в ширину – 12 метров, все квартиры выходят на обе стороны, что обеспечивает их солнечным светом и сквозной вентиляцией. Чтобы живущие под одной крышей люди с разным образом жизни не мешали друг другу, в доме нет коридоров: у каждой пары квартир свой лифт и лестничная клетка. Внутри жилищ все стены – не несущие, поэтому владельцы могут менять планировку по своему вкусу (что часть уже и сделала). Чтобы им можно было дольше обойтись без ремонта, архитекторы использовали устойчивые к течению времени материалы: стекло, анодированный алюминий, бетон, полы из твердых пород дерева.
Жилой комплекс в районе Дефанс © Stephen Gill
Жилой комплекс в районе Дефанс © Stephen Gill
Жилой комплекс в районе Дефанс © l’Image Contemporaine
Жилой комплекс в районе Дефанс © l’Image Contemporaine
Жилой комплекс в районе Дефанс © Stephen Gill
Жилой комплекс в районе Дефанс © Stephen Gill
Жилой комплекс в районе Дефанс © Stephen Gill
Жилой комплекс в районе Дефанс © Stephen Gill
Жилой комплекс в районе Дефанс © Stephen Gill
Жилой комплекс в районе Дефанс © Stephen Gill
Жилой комплекс в районе Дефанс © Stephen Gill
Жилой комплекс в районе Дефанс © Stephen Gill
Жилой комплекс в районе Дефанс © l’Image Contemporaine
Жилой комплекс в районе Дефанс © l’Image Contemporaine
Жилой комплекс в районе Дефанс © Stephen Gill
Жилой комплекс в районе Дефанс © Stephen Gill
Жилой комплекс в районе Дефанс © Stephen Gill
Жилой комплекс в районе Дефанс © Stephen Gill
Жилой комплекс в районе Дефанс © Stephen Gill
Жилой комплекс в районе Дефанс © Stephen Gill
Жилой комплекс в районе Дефанс © Stephen Gill
Жилой комплекс в районе Дефанс © Stephen Gill
Жилой комплекс в районе Дефанс © Frederik Soueix
Жилой комплекс в районе Дефанс © Frederik Soueix
Жилой комплекс в районе Дефанс © Farshid Moussavi Architecture
Жилой комплекс в районе Дефанс © Farshid Moussavi Architecture
Жилой комплекс в районе Дефанс © Farshid Moussavi Architecture
Жилой комплекс в районе Дефанс © Farshid Moussavi Architecture
Жилой комплекс в районе Дефанс © Farshid Moussavi Architecture
Жилой комплекс в районе Дефанс © Farshid Moussavi Architecture
Жилой комплекс в районе Дефанс © l’Image Contemporaine
Жилой комплекс в районе Дефанс © l’Image Contemporaine
Жилой комплекс в районе Дефанс © Stephen Gill
Жилой комплекс в районе Дефанс © Stephen Gill
Жилой комплекс в районе Дефанс © l’Image Contemporaine
Жилой комплекс в районе Дефанс © l’Image Contemporaine
Жилой комплекс в районе Дефанс © Farshid Moussavi Architecture
Жилой комплекс в районе Дефанс © Farshid Moussavi Architecture
Жилой комплекс в районе Дефанс © Farshid Moussavi Architecture
Жилой комплекс в районе Дефанс © Farshid Moussavi Architecture
Жилой комплекс в районе Дефанс © Farshid Moussavi Architecture
Жилой комплекс в районе Дефанс © Farshid Moussavi Architecture
Жилой комплекс в районе Дефанс © Farshid Moussavi Architecture
Жилой комплекс в районе Дефанс © Farshid Moussavi Architecture
Жилой комплекс в районе Дефанс © Farshid Moussavi Architecture
Жилой комплекс в районе Дефанс © Farshid Moussavi Architecture
Жилой комплекс в районе Дефанс © Farshid Moussavi Architecture
Жилой комплекс в районе Дефанс © Farshid Moussavi Architecture
Жилой комплекс в районе Дефанс © Farshid Moussavi Architecture
Жилой комплекс в районе Дефанс © Farshid Moussavi Architecture
Жилой комплекс в районе Дефанс © Farshid Moussavi Architecture
Жилой комплекс в районе Дефанс © Farshid Moussavi Architecture
Жилой комплекс в районе Дефанс © Farshid Moussavi Architecture
Жилой комплекс в районе Дефанс © Farshid Moussavi Architecture
Жилой комплекс в районе Дефанс © Farshid Moussavi Architecture
Жилой комплекс в районе Дефанс © Farshid Moussavi Architecture
Жилой комплекс в районе Дефанс © Farshid Moussavi Architecture
Жилой комплекс в районе Дефанс © Farshid Moussavi Architecture
Жилой комплекс в районе Дефанс © Farshid Moussavi Architecture
Жилой комплекс в районе Дефанс © Farshid Moussavi Architecture
Жилой комплекс в районе Дефанс © Farshid Moussavi Architecture
Жилой комплекс в районе Дефанс © Farshid Moussavi Architecture