Размещено на портале Архи.ру (www.archi.ru)

05.08.2008

Два брата

Анна Герасименко
Объект:
Многофункциональный торгово-офисный комплекс в г. Тюмени
Адрес:
Россия, Тюмень.
Многофункциональный торгово-офисный комплекс в Липецке
Адрес:
Россия, Липецк.
Архитектор:
Андрей Асадов
Александр Асадов
Мастерская:
АБ ASADOV
Авторский коллектив:
архитекторы: А.Асадов, Е.Вдовин (ГАП), А.А.Асадов, Б.Насыров, А.Асташов инженер: Г. Каркло

Мастерская А. Асадова проектирует два торгово-офисных комплекса, в Тюмени и Липецке. Типологически они похожи – состоят из распластанного торгового центра и офисной башни, а образно – различаются: один острый, угловатый, подвижный, второй – сдержанный и спокойный, тягучий, компактный. Как будто два брата с разными характерами

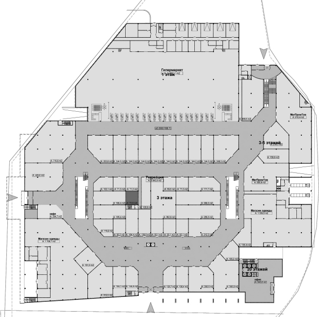
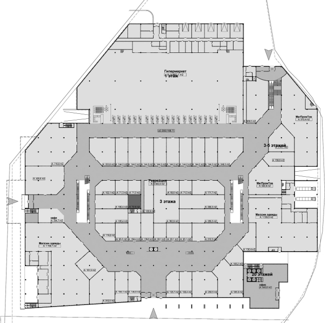
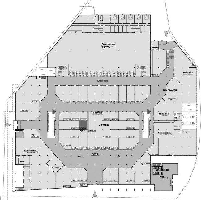
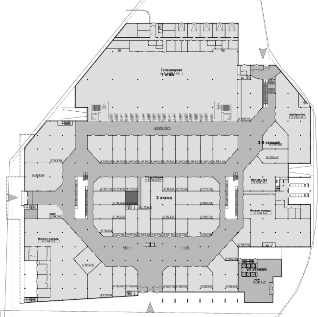
Многофункциональный торгово-офисный комплекс в г. Тюмени © Архитектурное бюро Асадова
Многофункциональный торгово-офисный комплекс в г. Тюмени © Архитектурное бюро Асадова

Современный город, где бы он не находился, в Европе, Америке или Азии, многослоен, каждая эпоха, пережитая им, вкладывает свою лепту в его облик. В России когда-то на смену усадебным домам пришли площади с памятниками Ленину и дома-коммуны, теперь же их сменяют знаковые постройки «рыночной» современности – огромные торговые центры, молы, как их называют в Америке, родоначальнице их типологии. Сравнительно новая тенденция состоит в том, чтобы делать их частью многофункциональных комплексов, объединяя с общественными пространствами – магазинами, кафе, кинотеатрами, а также – c офисными башнями и гостиницами. Надо признать что сейчас эта типология – хит, московские архитекторы и девелоперы активно ее разрабатывают. Мастерская А. Асадова по заказу «DVI Group» разработала два проекта торговых центров, объединенных в один ансамбль с офисной башней, для Тюмени и Липецка. Оба комплекса претендуют на роль   новой городской доминанты, своего рода «маяка», видного издалека отовсюду и притягивающего жителей. По типологии – и даже по цвету – комплексы похожи, а архитектурным решением различаются.

Комплекс в Тюмени входит в обширную концепцию реконструкции территории бывшего завода, которая также была предложена архитекторами мастерской А. Асадова. Помимо торгово-офисного здания здесь должны расположиться большой спортивный комплекс с аквапарком и несколько жилых башен, поднимающихся из искусственного ландшафта крыши еще одного одноэтажного объема. Овеществление этой концепции начинается с проекта торгового центра.

Его основная часть – это протяженный одноэтажный объем, на торце которого змеей извивается огромный экран-мост, частично приподнятый на ножки и подныривающий под башню с офисами. V-образное в плане офисное здание возвышается над всем комплексом и окружающей застройкой. Рисунок его фасадов напоминает на секунду приоткрытый театральный занавес, куда успел прошмыгнуть изогнутый мост – как будто бы для того, чтобы попасть за кулисы всего этого представления. Перед упомянутым экраном-мостом авторы предложили устроить небольшую площадь и амфитеатр – место проведения городских праздников. Новая площадь задумана так, чтобы войти «в резонанс» с интерьерами комплекса, устройство которых – изогнутые улочки со сдвинутыми ячейками магазинов – имитирует для посетителей ощущение передвижения в старом городе, когда не знаешь, что ждет за поворотом. По замыслу архитекторов, город внешний и внутренний взаимодействуют друг с другом, создавая подобие общности. А снаружи комплекс выглядит заостренным, подвижным, жестковато-энергичным, как будто бы он состоит из медно-стеклянных полос, срастающихся в здания с помощью какого-то неизвестного спрятанного механизма.

Архитектурное решение торгово-офисного комплекса для Липецка иное – здесь здание похоже на подводную лодку с обтекаемыми и слоящимися поверхностями. «Лодка» всплывает в городском пространстве, а высотная башня служит «перископом», поднявшемся повыше, чтобы рассмотреть все вокруг.

Для того, чтобы визуально объединить торговые помещения и офисную башню, архитекторы накрыли их общей кровлей текучей формы, «обнимающей» здания сверху, а где-то – и сбоку. Теплая оранжевая расцветка напоминает медь, а скругления углов подчеркивают это металлическое сходство – будучи завернут в такую оболочку гигантский комплекс выглядит довольно-таки компактным, во всяком случае – цельным. «Обертка» местами расслаивается, как будто бы ее разрезали на ленты, а общая полосатость расцветки поддерживает эту игру. По словам Андрея Асадова, при разработке силуэта комплекса архитекторам помогла местная легенда – «известно, что в Липецке есть огромный металлургический комбинат. Мы представили, что наше покрытие - это кусок металла, который раскатали и обернули им здание».
Учитывая довольно-таки обширную площадь крыши, архитекторы постарались найти ей полезное применение, устроив там площадки для открытых кафе и дополнительных зеленых территорий. Укутанность основного объема прорывает эффектный козырек перед входом – он выдвинут далеко и буквально разрезает площадь парковки на две части, зазывая потенциальных посетителей.

Надо сказать, что оба комплекса используют тему металла в сочетании со стеклом. Этот металл – коричневато-оранжевый создает между ними цветовую общность, но он определяет и различие. В Тюмени стеклянные фасады прикрыты полосами, напоминающими скульптуру, вырезанную из ржавого железа (очень популярный сейчас и недешевый материал). Ему свойственны острые углы, широкие прорези, некоторый налет романтической брутальности. В Липецке имитирующие металл части больше напоминают медь – гибкую, податливую, теплую. Сравнение, разумеется, более чем условно – но все же оно позволяет составить предствление о «разнице характеров» этих похожих зданий.

Многофункциональный комплекс в современном городе – это важное общественное пространство, можно сказать, это город в городе. В двух проектах многофункциональных центров мастерская А. Асадова предприняла попытку создать именно такое целостное городское образование, которое стало бы новой доминантой городов Тюмени и Липецка.

Многофункциональный торгово-офисный комплекс в г. Тюмени © Архитектурное бюро Асадова
Многофункциональный торгово-офисный комплекс в г. Тюмени © Архитектурное бюро Асадова
Многофункциональный торгово-офисный комплекс в г. Тюмени © Архитектурное бюро Асадова
Многофункциональный торгово-офисный комплекс в г. Тюмени © Архитектурное бюро Асадова
Многофункциональный торгово-офисный комплекс в г. Тюмени © Архитектурное бюро Асадова
Многофункциональный торгово-офисный комплекс в г. Тюмени © Архитектурное бюро Асадова
Многофункциональный торгово-офисный комплекс в г. Тюмени © Архитектурное бюро Асадова
Многофункциональный торгово-офисный комплекс в г. Тюмени © Архитектурное бюро Асадова
Многофункциональный торгово-офисный комплекс в г. Тюмени © Архитектурное бюро Асадова
Многофункциональный торгово-офисный комплекс в г. Тюмени © Архитектурное бюро Асадова
Многофункциональный торгово-офисный комплекс в г. Тюмени © Архитектурное бюро Асадова
Многофункциональный торгово-офисный комплекс в г. Тюмени © Архитектурное бюро Асадова
Многофункциональный торгово-офисный комплекс в Липецке © Архитектурное бюро Асадова
Многофункциональный торгово-офисный комплекс в Липецке © Архитектурное бюро Асадова
Многофункциональный торгово-офисный комплекс в Липецке © Архитектурное бюро Асадова
Многофункциональный торгово-офисный комплекс в Липецке © Архитектурное бюро Асадова
Многофункциональный торгово-офисный комплекс в Липецке © Архитектурное бюро Асадова
Многофункциональный торгово-офисный комплекс в Липецке © Архитектурное бюро Асадова
Многофункциональный торгово-офисный комплекс в Липецке © Архитектурное бюро Асадова
Многофункциональный торгово-офисный комплекс в Липецке © Архитектурное бюро Асадова
Многофункциональный торгово-офисный комплекс в Липецке © Архитектурное бюро Асадова
Многофункциональный торгово-офисный комплекс в Липецке © Архитектурное бюро Асадова