Размещено на портале Архи.ру (www.archi.ru)

22.08.2017

Культура вместо торговли

Нина Фролова
Объект:
Музей «Сад 8/10»
Адрес:
Китай, None, Шанхай.
Мастерская:
Wutopia Lab

Комплекс «Сад 8/10» в Шанхае по проекту местного бюро Wutopia Lab.

Музей «Сад 8/10» © CreatAR
Музей «Сад 8/10» © CreatAR

Расположенный в районе Цзядин комплекс занял место центра продаж: в середине треугольного торгового комплекса размещены музей (на самом деле, скорее, миниатюрный многофункциональный центр) и сад. Еще один сад, напоминающий традиционные сады ученых мужей, разбит на крыше здания.
 
Музей «Сад 8/10» © CreatAR
Музей «Сад 8/10» © CreatAR

Новое здание – реконструкция прежней постройки. Теперь там открыт музей эмали: заказчик был последним руководителем фабрики по производству украшенных в этой технике изделий, когда-то очень популярных, но теперь не пользующихся спросом. В экспозиции – разного рода исторические сосуды и даже ванна, причем вдохновленный проектом сын заказчика вернулся в Шанхай из Милана, где жил ранее, и открыл на третьем этаже нового здания фирму по производству «эмалированных» предметов.
 
Музей «Сад 8/10» © CreatAR
Музей «Сад 8/10» © CreatAR

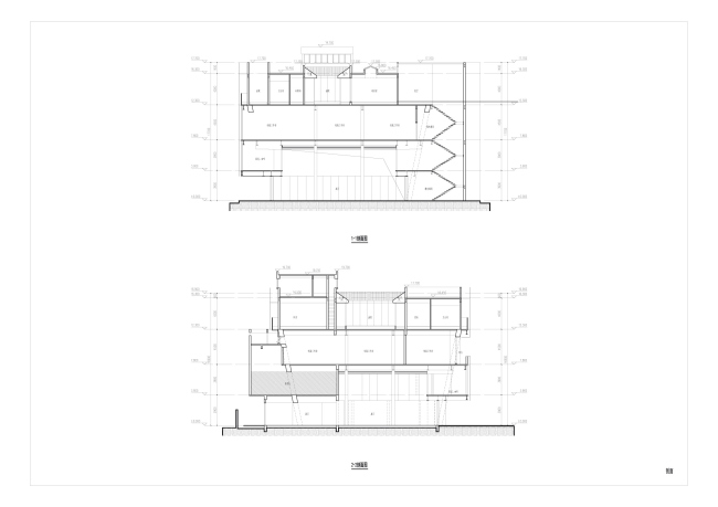
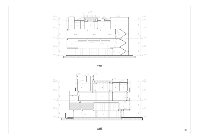
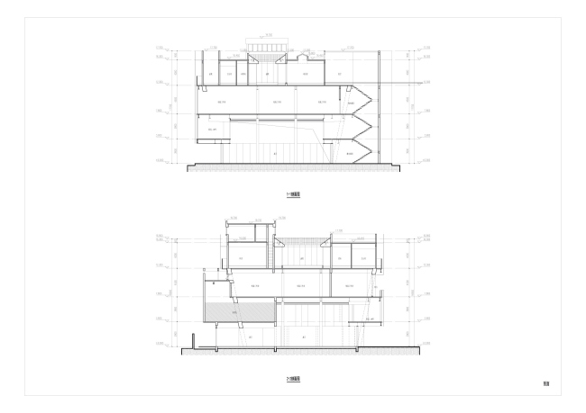
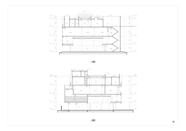
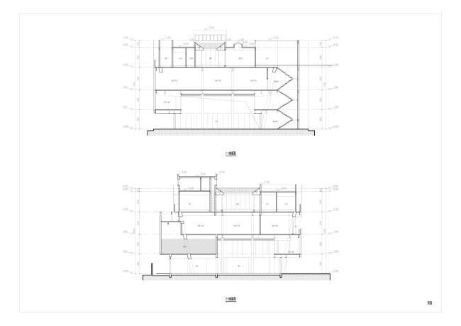
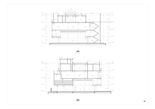
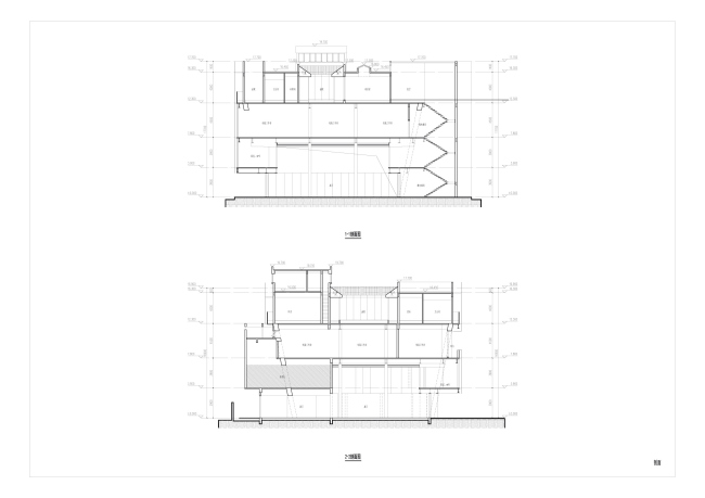
Кроме того, на шести этажах и площади в 2000 м2 поместились кофейня и ресторан, библиотека, пансион и комната для игры в шахматы. Такое плодотворное соединение функций, считают авторы проекта, характерно для самого духа Шанхая. При этом название «Восемь десятых» отсылает к идее полной, но не слишком полной жизни. Важный аспект: сад доступен для отдыха всем желающим, включая местных жителей.
 
Музей «Сад 8/10» © CreatAR
Музей «Сад 8/10» © CreatAR

Ландшафтный дизайн (бюро Atelier VISION) вдохновлен традиционными китайскими садами и композициями из камней; озелененный таким образом двор открыт для местных жителей, которые успели высоко оценить этот дар. Новое здание при этом привлекает внимание белым фасадом-«ширмой» из перфорированного алюминия, чей узор призван напоминать пейзажный свиток художника начала XII века Ван Симэна «Горы и воды на тысячу ли». Сама идея многоэтажной постройки вдохновлена другим мастером изображения ландшафтов – живописцем XVI столетия Цю Ином.
Музей «Сад 8/10» © CreatAR
Музей «Сад 8/10» © CreatAR
Музей «Сад 8/10» © CreatAR
Музей «Сад 8/10» © CreatAR
Музей «Сад 8/10» © CreatAR
Музей «Сад 8/10» © CreatAR
Музей «Сад 8/10». Вид до и после реализации проекта © CreatAR
Музей «Сад 8/10». Вид до и после реализации проекта © CreatAR
Музей «Сад 8/10» © CreatAR
Музей «Сад 8/10» © CreatAR
Музей «Сад 8/10» © CreatAR
Музей «Сад 8/10» © CreatAR
Музей «Сад 8/10» © CreatAR
Музей «Сад 8/10» © CreatAR
Музей «Сад 8/10» © CreatAR
Музей «Сад 8/10» © CreatAR
Музей «Сад 8/10» © CreatAR
Музей «Сад 8/10» © CreatAR
Музей «Сад 8/10» © CreatAR
Музей «Сад 8/10» © CreatAR
Музей «Сад 8/10» © CreatAR
Музей «Сад 8/10» © CreatAR
Музей «Сад 8/10» © CreatAR
Музей «Сад 8/10» © CreatAR
Музей «Сад 8/10» © CreatAR
Музей «Сад 8/10» © CreatAR
Музей «Сад 8/10» © CreatAR
Музей «Сад 8/10» © CreatAR
Музей «Сад 8/10» © CreatAR
Музей «Сад 8/10» © CreatAR
Музей «Сад 8/10» © CreatAR
Музей «Сад 8/10» © CreatAR
Музей «Сад 8/10» © CreatAR
Музей «Сад 8/10» © CreatAR
Музей «Сад 8/10» © Wutopia Lab
Музей «Сад 8/10» © Wutopia Lab
Музей «Сад 8/10» © Wutopia Lab
Музей «Сад 8/10» © Wutopia Lab
Музей «Сад 8/10» © Wutopia Lab
Музей «Сад 8/10» © Wutopia Lab
Музей «Сад 8/10» © Wutopia Lab
Музей «Сад 8/10» © Wutopia Lab
Музей «Сад 8/10» © Wutopia Lab
Музей «Сад 8/10» © Wutopia Lab
Музей «Сад 8/10» © Wutopia Lab
Музей «Сад 8/10» © Wutopia Lab
Музей «Сад 8/10» © Wutopia Lab
Музей «Сад 8/10» © Wutopia Lab
Музей «Сад 8/10» © Wutopia Lab
Музей «Сад 8/10» © Wutopia Lab